Maurveien 69A
3 490 000 kr
115 m²
3 soverom
Solgt

Gjekstad
Bud innkommet - Moderne og praktisk enderekkehus i barnevennlige omgivelser - lekker uteplass - nytt bad fra 2023 - 3 soverom og garasje
Prisantydning
3 490 000 krAndel fellesgjeld
500 712 krOmkostninger
1 090 krTotalpris
3 991 802 kr
Pris
Bruksareal
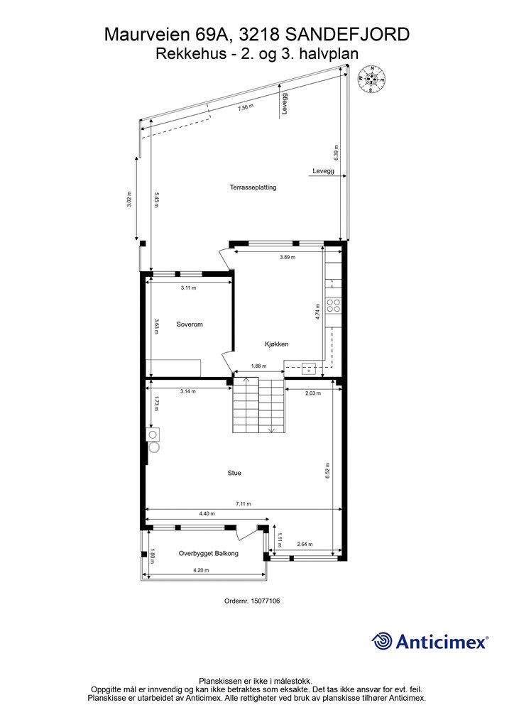
137 m²BRA-I (internt bruksareal)
115 m²BRA-E (eksternt bruksareal)
22 m²TBA (terrasse-balkongareal)
56 m²
Areal
Byggeår
1981Soverom
3 soveromType
RekkehusEierform
AndelFasiliteter
Garasje/P-plass og Balkong/TerrasseFellesutgifter
7 255 krEnergimerke
Oransje F
Nøkkelinfo
Unngå doble boligrenter
Vi tilbyr gunstig forsikring.
Vurderer du utleie?
Få et tilbud fra Utleie KrogsveenHva koster lånet?
Sjekk estimert lånekostnadBeskrivelse
Kort om eiendommen
Velholdt og pent innredet enderekkehus med en innholdsrik og god planløsning. Det gjennomgående delikate og tidsriktige farge- og materialvalget. Badet ble oppusset i 2023. Vaskerom og kjøkken er fra ca. 2018. Rekkehuset ligger fritt til på enden, med usjenerte og solrike utearealer. Fra stuen er det utgang til overbygget balkong, og fra kjøkkenet til koselig bakhage med stor uteplass og eget utekjøkken. Her kan du flytte rett inn. Parkering i egen gårdsplass.
Her bor du i populære og barnevennlige omgivelser, med kort avstand til skoler, barnehager, lekeplass og fritidsaktiviteter. Flere matbutikker i nærområdet. Det er cirka 3 km til sentrum. Det er også en lekeplass i nærheten av boligen. Innen gangavstand finner du Lahelle badestrand og fine turområder. Velkommen til visning.
Område
Legg til steder som er viktige for deg
På flyttefot? Tenk kjøp og salg samtidig.
Få din egen rådgiver gjennom hele kjøps- og salgsprosessen. Det starter med en verdivurdering.
Unngå doble boligrenter
Vi tilbyr gunstig forsikring.
Vurderer du utleie?
Få et tilbud fra Utleie KrogsveenHva koster lånet?
Sjekk estimert lånekostnadVil du varsles om lignende boliger?
Ved å lagre ditt boligsøk hos oss får du beskjed når vi har en bolig som ligner denne, før den legges ut på markedet!

