Tingsakermoen 55
5 290 000 kr
152 m²
5 soverom
Solgt

Delikat og innholdsrik enebolig. Solrik flott tomt i blindvei I 5 soverom I Dobbel garasje m/ loft I Sentralt
Prisantydning
5 290 000 krOmkostninger
153 240 krTotalpris
5 443 240 kr
Pris
Bruksareal
189 m²BRA-I (internt bruksareal)
152 m²BRA-E (eksternt bruksareal)
37 m²TBA (terrasse-balkongareal)
65 m²
Areal
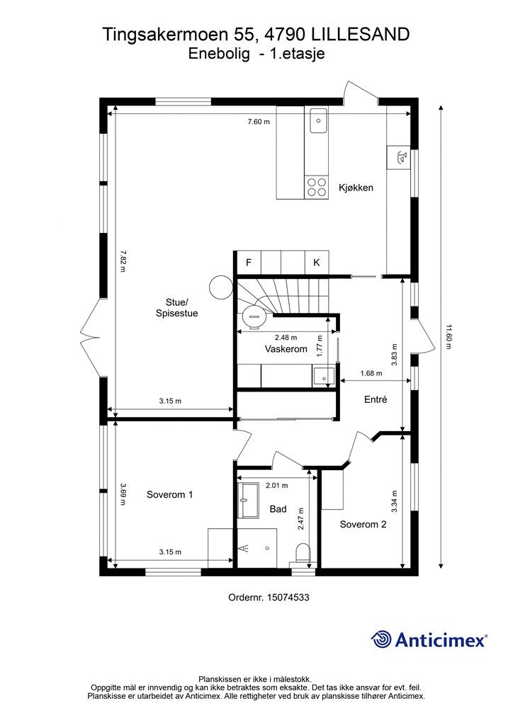
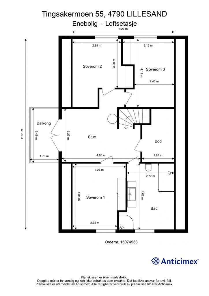
Etasje
2Byggeår
2011Soverom
5 soveromBad
2 badTomteareal
438 m² (eiet)Type
Enebolig - FrittliggendeEierform
EietFasiliteter
Garasje/P-plass og Balkong/TerrasseEnergimerke
Oransje B
Nøkkelinfo
Unngå doble boligrenter
Vi tilbyr gunstig forsikring.
Vurderer du utleie?
Få et tilbud fra Utleie KrogsveenHva koster lånet?
Sjekk estimert lånekostnadBeskrivelse
Kort om eiendommen
Velkommen til Tingsakermoen 55 - En pen og innholdsrik enebolig med sentral beliggenhet i barnevennlig boligområde, i blindvei! Sjøutsikt.
Dette er en flott enebolig fra 2011 som byr på god plass, inne som ute, ypperlige solforhold, flott opparbeidet tomt og uteområde, dobbel garasje og hele 5 soverom!
Her bor du rolig med gåavstand til både skoler, barnehager og flere dagligvarer i nærområdet. 5 minutter gange fra huset finner du Lillesand senter med flere butikker, helsetjenester og cafe, samt et bredt utvalg dagligvarebutikker. Noen hundre meter fra boligen finner du Langedalstjønna, og sjøen med båtplasser og flotte badeplasser.
Ellers byr boligen på god planløsning, lekkert kjøkken, stor stue og spisestue, 5 soverom, eget vaskerom, to romslige bad og et herlig uteområde!
Område
Legg til steder som er viktige for deg
På flyttefot? Tenk kjøp og salg samtidig.
Få din egen rådgiver gjennom hele kjøps- og salgsprosessen. Det starter med en verdivurdering.
Unngå doble boligrenter
Vi tilbyr gunstig forsikring.
Vurderer du utleie?
Få et tilbud fra Utleie KrogsveenHva koster lånet?
Sjekk estimert lånekostnadVil du varsles om lignende boliger?
Ved å lagre ditt boligsøk hos oss får du beskjed når vi har en bolig som ligner denne, før den legges ut på markedet!

