Vesterøyveien 28
2 690 000 kr
62 m²
1 soverom
Solgt

Indre Havn/Kilen
Lys og urban andelsleilighet med sentral og sjønær beliggenhet - lav fellesgjeld - heis, carport og felles takterrasse
Prisantydning
2 690 000 krAndel fellesgjeld
194 368 krOmkostninger
11 040 krTotalpris
2 895 408 kr
Pris
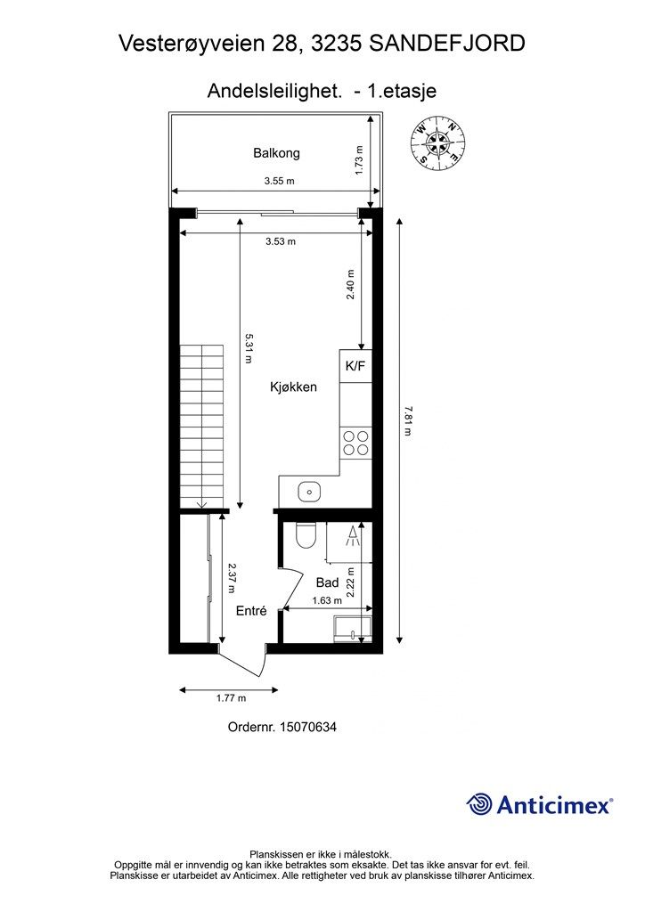
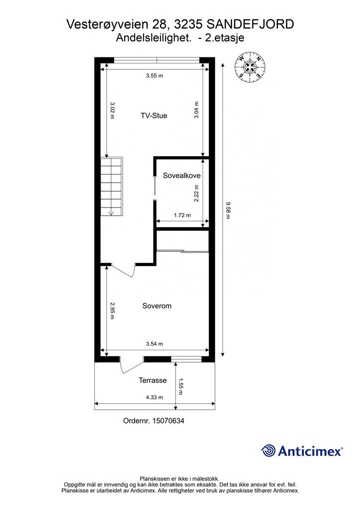
Bruksareal
67 m²BRA-I (internt bruksareal)
62 m²BRA-E (eksternt bruksareal)
5 m²TBA (terrasse-balkongareal)
13 m²
Areal
Etasje
2Byggeår
2008Soverom
1 soveromBad
1 badType
AndelsleilighetEierform
AndelFasiliteter
Garasje/P-plass og HeisFellesutgifter
4 592 krEnergimerke
Rød D
Nøkkelinfo
Unngå doble boligrenter
Vi tilbyr gunstig forsikring.
Vurderer du utleie?
Få et tilbud fra Utleie KrogsveenHva koster lånet?
Sjekk estimert lånekostnadBeskrivelse
Kort om eiendommen
Moderne og urban andelsleilighet med sentral og fri beliggenhet. Leiligheten er gjennomgående og har en effektiv planløsning fordelt over to etasjer. Store vindusflater sørger for rikelig med lys og en god romfølelse. Leiligheten ligger høyt og fritt til med fint utsyn og to uteplasser. I tillegg har bygningen felles, solrik takterrasse med flott utsikt og egen utestue til glede for beboerne. Det medfølger parkering i carport hvor det også er montert elbillader. Her bor du lettstelt til med kort avstand til sentrum og Kilen/Indre Havn. Ved Kilen området finner du blant annet treningssenter, apotek, matvarebutikker og flere forretninger. Flotte turområder finnes ikke langt unna og det er kun en kort sykkeltur ut til Vesterøya`s flotte badeplasser og strender. Velkommen til visning.
Område
Legg til steder som er viktige for deg
På flyttefot? Tenk kjøp og salg samtidig.
Få din egen rådgiver gjennom hele kjøps- og salgsprosessen. Det starter med en verdivurdering.
Unngå doble boligrenter
Vi tilbyr gunstig forsikring.
Vurderer du utleie?
Få et tilbud fra Utleie KrogsveenHva koster lånet?
Sjekk estimert lånekostnadVil du varsles om lignende boliger?
Ved å lagre ditt boligsøk hos oss får du beskjed når vi har en bolig som ligner denne, før den legges ut på markedet!

