Sledevegen 1
3 400 000 kr
79 m²
3 soverom
Solgt

NY PRIS - Innflyttingsklar 4-roms selveier fra 2023 med solrik terrasse!
Prisantydning
3 400 000 krOmkostninger
96 040 krTotalpris
3 496 040 kr
Pris
Bruksareal
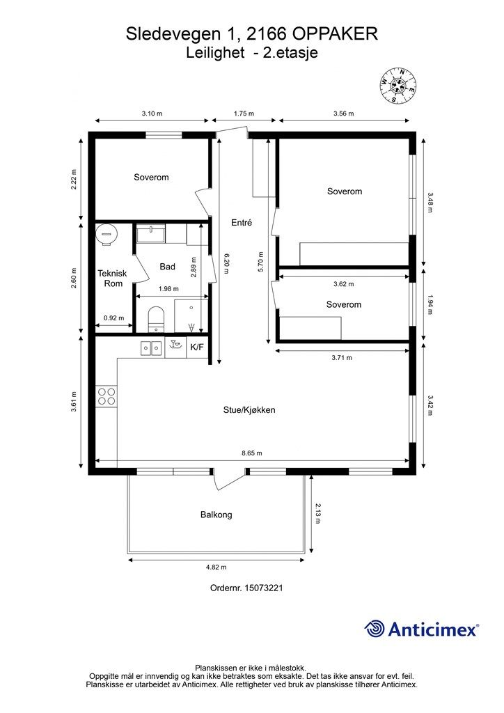
84 m²BRA-I (internt bruksareal)
79 m²BRA-E (eksternt bruksareal)
5 m²TBA (terrasse-balkongareal)
10 m²
Areal
Etasje
2Byggeår
2023Soverom
3 soveromBad
1 badType
EierleilighetEierform
EierseksjonFasiliteter
Balkong/TerrasseFellesutgifter
1 925 krEnergimerke
Rød B
Nøkkelinfo
Unngå doble boligrenter
Vi tilbyr gunstig forsikring.
Vurderer du utleie?
Få et tilbud fra Utleie KrogsveenHva koster lånet?
Sjekk estimert lånekostnadBeskrivelse
Kort om eiendommen
Sledevegen 1 er en moderne og stilren 4-roms selveierleilighet fra 2023, beliggende i 2. etasje i et etablert og populært boligområde. Her bor du barnevennlig med lekeplass i fellesarealet, flotte turstier langs Glomma og kort vei til rekreasjonsområder og servicetilbud. Leiligheten byr på en lys og romslig stue med store vindusflater og åpen løsning mot et elegant kjøkken. Det helflisede badet er delikat innredet og har opplegg for vaskemaskin. Videre har boligen tre soverom med plass til garderobeskap, samt utvendig bod. Fra stuen er det utgang til en solrik, skjermet terrasse – et perfekt sted å nyte rolige stunder og sosiale sammenkomster i hyggelige omgivelser.
Område
Legg til steder som er viktige for deg
På flyttefot? Tenk kjøp og salg samtidig.
Få din egen rådgiver gjennom hele kjøps- og salgsprosessen. Det starter med en verdivurdering.
Unngå doble boligrenter
Vi tilbyr gunstig forsikring.
Vurderer du utleie?
Få et tilbud fra Utleie KrogsveenHva koster lånet?
Sjekk estimert lånekostnadVil du varsles om lignende boliger?
Ved å lagre ditt boligsøk hos oss får du beskjed når vi har en bolig som ligner denne, før den legges ut på markedet!

