Jernbaneplassen 1 Leilighet 602
1 350 000 kr
98 m²
2 soverom
Komplett salgsoppgave
Sentrum
Stor leilighet med flott utsikt over byen på hele 98! kvm -mulighet for 3 soverom
Prisantydning
1 350 000 krAndel fellesgjeld
1 350 000 krOmkostninger
78 540 krTotalpris
2 778 540 kr
Pris
Bruksareal
98 m²BRA-I (internt bruksareal)
98 m²
Areal
Etasje
6Byggeår
1964Soverom
2 soveromBad
1 badType
AndelsleilighetEierform
AndelFasiliteter
HeisFellesutgifter
12 281 krEnergimerke
Rød G
Nøkkelinfo
Unngå doble boligrenter
Vi tilbyr gunstig forsikring.
Vurderer du utleie?
Få et tilbud fra Utleie KrogsveenHva koster lånet?
Sjekk estimert lånekostnadBeskrivelse
Kort om eiendommen
Vi ønsker alle interessenter velkommen til en lettstelt leilighet i øvre del av sentrum med flott utsikt som bærer helt til sjøen!
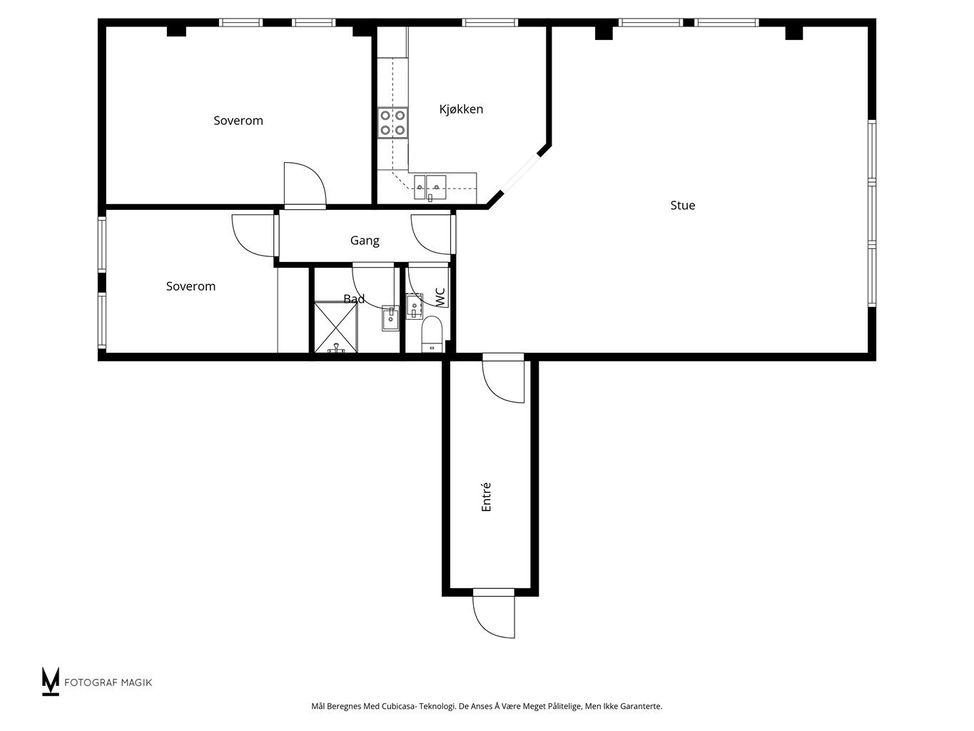
Leiligheten ligger høyt i sjette etasje og har en lys og innbydende atmosfære. Den har en gjennomtenkt planløsning med to soverom, en romslig stue og et kjøkken med naturlige soner for både matlaging og spising. Stuen er et flott samlepunkt med god plass til både større spisebord og romslige sofagrupper. Leiligheten disponerer også en bod i kjelleren, og bygningen har heis som gjør hverdagen enkel og praktisk. Her bor du sentralt i sentrum, med alle fasiliteter rett utenfor døren. Leiligheten byr på flotte muligheter til å sette sitt eget preg, samtidig som den er lettstelt.
Vi ønsker velkommen til en hyggelig visning
Innhold og byggemåte
Innhold og byggemåte
Eiendommen
Jernbaneplassen 1 Leilighet 602, 3210 SANDEFJORD
Kommunenummer 3907, gårdsnummer 171, bruksnummer 33, ideell andel 1/1
Andelsnummer 35, Jernbaneplassen Borettslag, organisasjonsnummer 936017959
Innhold
Totalt bruksareal BRA: 98 kvm
BRA-i: 98 kvm: Entre, stue, kjøkken, gang, toalettrom, bad, 2 soverom
Leiligheten disponerer 1 bod i kjelleren.
Vedlagte plantegninger er ikke målbare. De oppgitte arealer er hentet fra rapport med befaringsdato 11.02.2026 utført av Metiri 2 AS. Arealene er beregnet og rom er definert etter dagens faktiske bruk, uavhengig av hva som er godkjent av bygningsmyndighetene.
Byggemåte
Selger har fått utarbeidet en tilstandsrapport, dvs. en teknisk gjennomgang av boligen hvor eventuelle avvik, risiko for kjøper og prisoverslag for hva som bør gjøres av oppgradering, er skissert. Se særskilt TGIU (tilstandsgrad ikke undersøkt), samt TG2 og TG3 som viser hva som er boligens normale slitasje, alder og type, hva som er avvik fra dette og hva som bør/må utbedres. Rapporten og selgers egenerklæring er en del av salgsoppgaven og må leses nøye før bud inngis. Kjøper overtar ansvaret for de opplysninger som fremkommer av salgsdokumentasjonen, og kan ikke gjøre gjeldende som mangel noe som burde vært kjent eller som ikke kan anses å ha betydning for avtalen.
Bygningen er iht. tilstandsrapporten oppført med bærende konstruksjoner av betong, vegger over 1. etg. har innfellingselementer av bindeverk i tre og utvendig forblending med lakkerte og malte stålplater. Deler av fasade i underetasje er forblendet med teglstein. Les for øvrig mer om byggemåte og den tekniske tilstanden i rapporten.
Det gjøres spesielt oppmerksom på leilighetens TG3: Badet, kjøkkenet og toalettrom gis tg3. Les spesielt i tilstandsrapporten om disse rommene. Det må påregnes oppgraderinger.
Leilighetens TG2:
- Ytterdør: Fronten på entredør er sprøytemalt i senere tid, men utført arbeid er noe unøyaktig utført.
- Åpninger i rekkverk er større enn dagens forskriftskrav til rekkverk i trapper. Rekkverkshøyder er under dagens forskriftskrav til rekkverk i trapper.
- Det er målt høydeforskjell på mellom 15-30 mm gjennom hele rommet. Tilstandsgrad 2 gis med bakgrunn i standardens krav til godkjente måleavvik.
- Vannledninger: Det er påvist ufagmessig utførelse av vannledninger.
- Avløpsrør: Det er påvist ufagmessig utførelse av avløpsledninger. Det er påvist at avløpsrør av jern har rustskader.
- Ventilasjon: Leiligheten fremstår som noe svakt ventilert, da det kun er naturlig ventilasjon fra bad og toalettrom, samt at det mangler tilluft i dører.
Forøvrig slitasje pga alder. Se supplerende tekst i tilstandsrapporten og spesielt om punktene som gis TG3.
Standard
Praktisk og flott andelsleilighet med god planløsning og en fantastisk utsikt over Sandefjord sentrum og sjøen ! Slette vegger malt i lyse fargerr. God skap- og benkeplass på kjøkken som også har plass til spisebord, romslig stue med god plass til flere sitte soner. Leiligheten har i dag 2 soverom med gode muligheter for 3 ved å endre noe på planløsningen.
Kjøkkenet har profilerte fronter i formpresset utførelse, benkeplate av laminat og nedfelt oppvaskkum med ett-greps armatur. Det er godt med både skal og benkplass for tilbedelse av dagens mange måltider.
Baderommet er flislagt og her finner du dusjkabinett og servant i innredning med overspeil. Eget toalett rom ved siden av bad
Velkommen til visning og velkommen hjem til denne store og lettstelte sentrumsleiligheten!
Løsøre og tilbehør
Vi viser til liste fra Norges Eiendomsmeglerforbund som gjelder fra 01.01.2020 angående løsøre og tilbehør.
Oppvarming
Elektrisk oppvarming via panelovner.
Dersom beboelsesrom ikke har vegg- eller fastmonterte varmekilder ved visning, følger dette heller ikke med.
Ferdigattest/brukstillatelse
Eiendommen har vært brukt til boligformål siden byggeår. Leiligheten stemmer ikke overens med tegninger hos kommunen fra 2016. Det er på dagens planløsning ett ekstra soverom plassert i stue, godkjent for varig opphold.
Kommunen opplyser at det ikke foreligger ferdigattest eller midlertidig brukstillatelse for eiendommen. Det finnes av den grunn ikke dokumentasjon over eiendommens lovlighet. Kjøper overtar eiendommen slik den fremstår på visning med risiko og ansvaret for eventuelle pålegg fra kommunen og kostnader forbundet med dette.
Det gjøres oppmerksom på at det ikke lenger utstedes ferdigattest på tiltak det er søkt om før 1998 jf. plan- og bygningsloven § 21-10. Kommunen vil ikke kreve ferdigattest for disse tiltakene og vil avvise eventuelle søknader. Bestemmelsen innebærer ikke at tiltak med manglende søknad blir lovlige, men at man ikke trenger å avslutte gamle byggesaker. Normalt sett kreves ferdigattest for alle søknadspliktige tiltak som gjøres etter plan- og bygningsloven.
Tinglyste heftelser og rettigheter
Utover andel fellesgjeld overdras leiligheten fri for pengeheftelser.
Det er tinglyst 2 servitutter på borettslagets eiendom, disse vil følge eiendommen:
Dagboknr 3688, tinglyst 31.08.1964, type heftelse: Elektriske kraftlinjer. Bestemmelse om trafostasjon/kiosk
Dagboknr 4749, tinglyst 13.07.1963, type heftelse: Elektriske kraftlinjer. Jordkabel.
Servituttene vil følge eiendommen. Kjøpers bank vil få prioritet etter ovennevnte heftelser og servitutter.
Borettslaget har legalpant for forfalte felleskostnader og andre krav som følger av borettslagsforholdet iht. burettslagsloven § 5-20. Pantet er begrenset oppad til 2G (G = folketrygdens grunnbeløp).
Eventuell adgang til utleie
Dagens styre er positive til utleie. Andelseier kan ikke uten samtykke fra styret i borettslaget overlate bruken av boligen til andre. Med samtykke kan andelseier overlate boligen til andre i inntil tre år hvis andelseier har bodd i boligen i minst ett av de to siste år. Utleie i andre tilfeller kan godtas ved særlige grunner, jf. burettslagslova § 5-6. Se også borettslagets vedtekter og konferer megler ved spørsmål.
Diverse
Tilbud av produkter og tjenester fra våre samarbeidspartnere
VI er opptatt av verdiskapning, og har knyttet til oss samarbeidspartnere som skal sikre våre kunder de beste produkter og tjenester;
• Gjensidige leverer boligselgerforsikring og tilbyr bygningsforsikring
• Boligkjøperforsikring levers av Hiscox og med Sedgwick som skadebehandler, og er formidlet gjennom Gjensidige.
• BN bank tilbyr finansieringsløsninger
• Vår avdeling Krogsveen Pluss tilbyr flyttetjenester som utvask, visningsvask, lager, tømming og transport av flyttelass, i tillegg til å formidle kontakt med Flip for overflateoppussing.
• I forbindelse med overtagelse av eiendommen tilbyr Overo avtale om strøm, alarm og bredbånd.
• Krogsveen er, sammen med øvrige bransjeaktører, medeier i den digitale annonseringsplattformen Hjem.
Selger har ikke bebodd eiendommen og har derfor ikke kunnskap om eiendommens tilstand. Kjøper må derfor kunne påregne at det kan være flere feil og mangler som normalt oppdages ved bruk av boligen, men som selger ikke har mulighet å vite. Kjøper overtar derfor all risiko for denne type feil og mangler. Leiligheten vil ikke bli ytterligere vasket før overtakelse.
Beliggenhet og tomteforhold
Beliggenhet og tomteforhold
Beliggenhet
Velkommen til Jernbaneplassen 1 og Sandefjords kanskje mest sentrale beliggenhet.
Sandefjord er kjent som en av landets flotteste sommerbyer, mye grunnet vår lange sjølinje, praktfulle skjærgård og vakre badestrender. Nyetablerte strømbadet gjør bademuligheten i sentrum lett tilgjengelig både på de varmeste sommerdagene og vinterstid om du liker isbading.
Byens grønne lunger, som blant annet Preståsen, ligger en kort spasertur unna. Her er det flotte turstier og benker hvor praktfull utsikt over sentrum og Indre Havn kan nytes. Byens sentrumsparker som Badeparken og Byparken har store grønne arealer. Spesielt rundt Byparken er det et bredt utvalg av diverse forretninger og serveringsteder. Av populære serveringssteder er det kort vei til Brygga med en variasjon av restauranter og steder for hyggelige kvelder med venner.
For deg som er på reisefot eller pendler, er det godt å vite at buss og togstasjon ligger rett utenfor inngangsdøren. Fergen til Sverige er i gangavstand fra leiligheten samt Torp flyplass. Her kan du enkelt la bilen stå når du skal på tur ut i verden.
Her bor du i attraktive omgivelser i den øvre delen av sentrumskjernen. Alle byens fasiliteter, som butikker, kontorer og servicefunksjoner ligger innen gangavstand, rett på utsiden av døren. Søndagsåpen dagligvarebutikk ligger praktisk til i byggets første etasje.
Velkommen til en hyggelig visning.
Adkomst
Godt med gjesteparkering rett på utsiden av leiligheten. Det vil bli skiltet med Krogsveen visningsskilt ved fellesvisninger.
Barnehager, skoler og fritid
Byskolen barneskole og Ranvik ungdomsskole. Dersom skole- og barnehagetilbud er av betydning for kjøpet, ber vi om at det rettes en særskilt henvendelse til kommunen for oppdatert informasjon.
Beskrivelse av tomt
Eiertomt på 954 kvm som tilhører borettslaget. Tomten består av bygningsmassen.
Parkering
Parkering etter områdets bestemmelser.
Vei, vann og avløp
Eiendommen har adkomst via kommunal vei.
Eiendommen er tilknyttet kommunalt ledningsnett via private stikkledninger. Borettslaget er ansvarlig for private stikkledninger til bygningen.
Regulerings-og arealplaner
Område er regulert i reguleringsplan "Kvartal 62, rutebilstasjonen" datert 10.01.1985 med formål for gang-/sykkelsti, park, kjørevei og boliger.
Område er regulert i reguleringsplan datert 21.09.2023 med formål for sentrumsformål, ras/skredfare, støy (gul og rød støysone), felles planlegging, byromsstrategi.
Økonomi
Økonomi
Boligens kostnader
Felleskostnadene er kr 12.281,- pr. mnd. og inkluderer: Bygningsforsikring, renter fellesgjeld, kommunale avgifter, tv/internett grunnpakke, felles vedlikehold, felles strøm, forretningsfører, trappevask.
Felleskostnadene justeres normalt en til to ganger årlig i forhold til borettslagets faktiske utgifter
Felleskostnadene fordeles slik:
Renteutgifter kr 6.356,- (dekker fellesgjelden)
Driftsutgifter kr 5.820,-
Tv/Bredbånd kr 105,-
Borettslagets lån er avdragsfritt i 10 år. Frem til 2035 betales det dermed kun renter. Etter utløpet av avdragsfri periode for fellesgjelden, anslås at felleskostnadene vil øke til kr 15.326,- pr. mnd. Dette forutsetter uendret rente, samt at øvrige utgiftsposter forblir på dagens nivå.
Strømforbruk på denne type leilighet kan regnes å være ca. kr 6-12 tusen kwh. pr. år.
Boligen er tilknyttet Telenor som leverandør av tv/internett grunnpakke. Tv-tuner/dekoder medfølger ikke.
Utgiftene er basert på nåværende eiers forbruk. Kjøper må selv tegne innboforsikring.
Formuesverdi
Ved hjelp av Skatteetatens kalkulator er formuesverdien for 2025 beregnet til kr 508.299,- når eier er fast bosatt på eiendommen.(primærbolig). Leiligheten har ikke tidligere vært omsatt. Det er derfor ikke vært fastsatt en formuesverdi.
Ved eventuell øvrig bruk av eiendommen (f.eks. fritidsbolig, pendlerbolig, utleieobjekt) var formuesverdien for 2025 kr 2.033.194,-
Formuesverdien justeres normalt årlig. Se skatteetaten.no for mer informasjon om fastsettelse av formuesverdienv
Opplysninger om fellesgjeld
Andel fellesgjeld er kr 1.350.000,- pr. 01.09.2025
Total fellesgjeld for boligselskapet er kr 55.445.000,- pr. 01.09.2025 og lånevilkårene er:
Rentebetingelser: 5,65%
Lånets løpetid: 30 år
Avdragsfrihet: 10 år første avdrag 01.01.2036
Dette borettslaget har tilrettelagt for individuell nedbetaling av andel fellesgjeld (IN-ordning). Det vil si at hver enkelt andelseier helt eller delvis kan velge å nedbetale sin andel av borettslagets fellesgjeld til boligbyggelaget. Dette vil i så fall medføre en reduksjon av de månedlige felleskostnadene (andel av renter og avdrag på fellesgjelden). Nedbetalt andel av fellesgjeld knyttes til andelen og følger andelen ved et eventuelt salg.
kr 1.350.000,- kr av fellesgjelden kan innløses. Ny felleskostnad etter nedbetaling av fellesgjeld blir med dagens priser kr 5.925,-(reduksjon på kr 6.356,-)
Omkostninger
1 350 000,00 Prisantydning
1 350 000,00 Andel av fellesgjeld
--------------------------------------------------------
2 700 000,00 Pris inkl. fellesgjeld
Omkostninger
67 500,00 Dokumentavgift til staten garasje (2,5% av kjøpesum)
9 950,00 Gjensidige Boligkjøperpakke (valgfri)
545,00 Tinglysing hjemmel
545,00 Tinglysing panterettsdokument
--------------------------------------------------------
78 540,00 Omkostninger totalt
--------------------------------------------------------
2 778 540,00 Totalpris inkl. omkostninger
--------------------------------------------------------
Tilbud om lånefinansiering
Megler formidler gjerne kontakt med rådgiver hos vår samarbeidspartner BN Bank. De har konkurransedyktige betingelser samt rask og løsningsorientert behandling av din lånesøknad. Krogsveen mottar et honorar dersom lån opprettes.
Betalingsbetingelser
Kjøpesum inkludert omkostninger, samt pantedokument tilknyttet eventuelt lån, skal være disponibelt hos megler 2 virkedager før overtagelsen.
Annen viktig informasjon
Annen viktig informasjon
Eier
Alaras AS
Informasjon om borettslaget
Leiligheten er tilknyttet Jernbaneplassen Borettslag. Borettslaget består av 58 leiligheter og 4 næringsseksjoner
Forretningsfører er OBOS
Dugnad må påregnes.
Dyrehold er tillatt.
Foretatt påkostninger de senere år: Fornyelse og maling av fasaden samt oppussing av alle fellesområder (ganger, dører, inngangsparti) ferdigstilt nå august/september 2025.
I henhold til borettslagets vedtekter må kjøper godkjennes av styret som ny andelseier. Det er kjøpers ansvar at styregodkjenning blir gitt, men styret kan ikke nekte godkjenning uten saklig grunn.
Iht. burettslagslova kan man bare eie én andel i borettslaget. Kun fysiske personer kan være andelseiere.
For å dekke eventuell manglende innbetaling av fellesutgifter fra øvrige andelseiere, er borettslaget tilknyttet et sikringsfond gjennom OBOS. Dette innebærer at OBOS innbetaler samtlige felleskostnader til borettslaget hver måned og dermed overtar ansvar og risiko for eventuell inndrivelse av utestående fellesutgifter. Avtalen om sikringsfond gjennom OBOS er gyldig til den sies opp av en av partene. Oppsigelsesfrist er 12 måneder.
Overtakelse
Etter nærmere avtale.
Boligselgerforsikring
Det gjøres oppmerksom på at selger ikke har tegnet boligselgerforsikring som dekker selgers ansvar etter avhendingsloven. Likevel foreligger selgers egenerklæring og godkjent tilstandsrapport som interessenter må sette seg inn i før bud inngis. Eventuelle reklamasjoner må rettes direkte til selger.
Boligkjøperforsikring
Innen kontraktsmøtet må kjøper ta stilling til om det ønskes å bestille Boligkjøperpakken gjennom Gjensidige. I denne gunstige pakken er boligen ferdig forsikret og inkluderer rettshjelpsforsikring, også kalt Boligkjøperforsikring. Rettshjelpsforsikring gir trygghet og tilgang på profesjonell juridisk hjelp dersom det oppdages uventede feil eller mangler det første året etter overtagelse. Forsikringsselskapet behandler i så fall ethvert mangelskrav kjøper måtte ha overfor selger.
Boligkjøperpakken inkluderer bygningsforsikring for hus og hytte, innboforsikring, flytteforsikring og dobbel rentedekning - i situasjoner hvor kjøper ikke får solgt nåværende primærbolig.
Kjøper mottar ingen særskilt faktura for Boligkjøperpakken da kostnaden det første året legges til kjøpesummen for boligen. Det gjøres oppmerksom på Krogsveen mottar et honorar for denne formidlingen.
Produktark for Boligkjøperpakken ligger vedlagt i salgsoppgaven.
Dersom ikke boligkjøperpakke ønskes kan kun rettshjelpsforsikring, også kalt boligkjøperforsikring, tegnes særskilt via megler. Rettshjelpsforsikringen varer i 5 år fra overtagelse og leveres gjennom Gjensidige. Ta kontakt med megler for ytterligere informasjon.
Selskap og privatpersoner som driver med kjøp/salg/utvikling som ledd i egen næringsvirksomhet kan ikke tegne boligkjøperpakke eller rettshjelpsforsikring.
Budgivning
Forbrukerinformasjon om budgivning er vedlagt denne salgsoppgaven og er også på vår hjemmeside Krogsveen.no. Alle bud og budforhøyelser må inngis skriftlig. I tillegg må legitimasjon være fremlagt sammen med signatur fra budgiver.
Vi oppfordrer til å gi bud elektronisk via GI BUD-knappen på eiendommens hjemmeside på Krogsveen.no. Da vil samtlige vilkår bli oppfylt.
Eventuelle forhøyelser eller endringer av budet kan bekreftes pr SMS eller på e-post. Vi oppfordrer alltid til å kontakte megler pr. telefon i tillegg da forsinkelser i SMS og e-post kan forekomme.
For at budene skal kunne bli behandlet og videreformidlet skriftlig til alle involverte parter, må alle bud ha en tilstrekkelig lang akseptfrist, jf. eiendomsmeglingsforskriften § 6-3.
Selger må også skriftlig akseptere budet før aksept kan formidles til budgiver. Akseptfrist bør derfor være på minimum 30 minutter, og budforhøyelser må derfor skje i god tid før fristens utløp.
Bud i forbrukerforhold kan uansett ikke settes med kortere frist enn kl. 12.00 første virkedag etter siste annonserte visning. I tillegg kan ikke budet ha forbehold om at det skal holdes hemmelig ovenfor øvrige interessenter. Megler har iht lov om eiendomsmegling ikke anledning til å videreformidle disse budene, og de vil dermed heller ikke bli journalført.
Etter at eiendommen er solgt vil kjøper og selger få tilsendt budjournal. Øvrige budgivere kan få utlevert kopi av budjournalen i anonymisert form.
Hvitvaskingsreglene
I henhold til lov om hvitvasking og terrorfinansiering har megler plikt til å gjennomføre kontrolltiltak overfor kunder, herunder fullmektiger. Dette innebærer bl.a. å bekrefte kunders og reelle rettighetshaveres identitet på bakgrunn av fremvist gyldig legitimasjon eller på annen godkjent måte, samt å innhente opplysninger om kundeforholdets formål og tilsiktede art.
Dersom slike kundetiltak ikke kan gjennomføres, kan megler ikke etablere kundeforholdet eller utføre transaksjonen.
Hvis kjøper ikke bidrar til gjennomføring av kundekontrollen og dette fører til at transaksjonen blir forsinket eller ikke kan gjennomføres, vil dette ansees som mislighold av avtalen og gi selger rettigheter etter avhendingslova kapittel 5. I tilfeller der selger ikke bidrar til gjennomføring av løpende kundekontroll underveis i oppdraget, er det selger som misligholder sine forpliktelser etter avtalen og gi kjøper rettigheter etter avhendingslovens kapittel 4. Partene er selv ansvarlige for eventuelle kostnader og ansvar dette kan medføre. Eiendomsmegleren eller eiendomsmeglingsforetaket kan ikke holdes ansvarlig for de konsekvenser dette vil kunne få for partene eller andre som har interesser i eiendomshandelen.
Kjøper oppfordres til å innbetale kjøpesummen som ikke kommer fra låneinstitusjon i én samlet innbetaling fra egen konto i norsk bank. Megler har plikt til å melde fra til Økokrim om eiendomshandler som fremstår som mistenkelige. Melding sendes Økokrim uten at partene varsles.
Personopplysningsloven
I henhold til personopplysningsloven gjør vi oppmerksom på at interessenter kan bli registrert for videre oppfølging.
Lovanvendelse
Generelle bestemmelser
Salgsoppgaven er basert på de opplysningene selger har gitt til megler, den bygningssakyndiges tilstandsrapport, samt opplysninger innhentet fra kommunen, Kartverket og andre tilgjengelige kilder. Det er viktig at kjøper setter seg grundig inn i alle salgsdokumentene, herunder salgsoppgave, tilstandsrapport og selgers egenerklæring. Kjøper anses kjent med forhold som er tydelig beskrevet i salgsdokumentene, og slike forhold kan ikke påberopes som mangler. Dette gjelder uavhengig av om kjøper har lest dokumentene. Alle interessenter oppfordres til å undersøke eiendommen nøye, gjerne sammen med fagkyndig før bud inngis. Kjøper som velger å kjøpe usett kan ikke gjøre gjeldende som mangel noe han burde blitt kjent med ved undersøkelsen.
Dersom det er behov for avklaringer, anbefaler vi at interessenter rådfører seg med eiendomsmegler eller egne rådgivere før det legges inn bud.
En bolig som har blitt brukt i en viss tid, har vanligvis blitt utsatt for slitasje og skader kan ha oppstått. Slik bruksslitasje må kjøper regne med, og det kan avdekkes enkelte forhold etter overtakelse som nødvendiggjør utbedringer. Normal slitasje og skader som nødvendiggjør utbedring, er innenfor hva kjøper må forvente og vil ikke utgjøre en mangel.
Kjøper og selgers rettigheter og plikter reguleres av avtalen mellom partene, samt informasjonen som har vært tilgjengelig for kjøperen i forbindelse med handelen. Avtalen utfylles av avhendingsloven, og det gjelder ulike avtalevilkår avhengig av om kjøper er forbrukerkjøper eller ikke. Dette er nærmere beskrevet nedenfor.
På grunn av ulike avtalevilkår kan selger vurdere bud fra en som ikke er forbruker, ulikt fra en forbrukers bud. Dersom kjøper ikke er forbruker, er selger sitt mulige mangelsansvar begrenset fordi eiendommen selges "som den er". Selger kan ikke ta «som den er»- forbehold overfor en forbrukerkjøper. Selv et lavere bud fra en som ikke er forbruker kan foretrekkes fordi begrensningen i mulig mangelsansvar kan ha egenverdi for selger. Selger står fritt til å forkaste eller akseptere ethvert bud, og er for eksempel ikke forpliktet til å akseptere høyeste bud.
Budgiver skal i budskjema avgi egenerklæring om budgiver er forbruker eller næringsdrivende/ person som hovedsakelig handler som ledd i næringsvirksomhet. Budgivere får informasjon dersom andre bud er inngitt av en som ikke er forbruker.
Forbrukerkjøp - definisjon
Med forbrukerkjøp menes kjøp av eiendom når kjøperen er en fysisk person som ikke hovedsakelig handler som ledd i næringsvirksomhet.
Forbruker – avtalevilkår
Eiendommen har en mangel dersom den ikke er i samsvar med kravene som følger av avtalen, eller det foreligger brudd på bestemmelsene i avhendingsloven §§ 3-2 til 3-8. Hvis eiendommen ikke er i samsvar med det kjøperen må kunne forvente ut ifra alder, type og synlig tilstand, kan det være grunnlag for mangelskrav. Det samme gjelder hvis det er holdt tilbake eller gitt uriktige opplysninger om eiendommen. Dette gjelder likevel bare dersom man kan gå ut ifra at det virket inn på avtalen at opplysningen ikke ble gitt eller at mangelskravet ikke blir rettet i tide på en tydelig måte.
Boligen kan ha en mangel etter avhendingsloven § 3-3 andre ledd, dersom det er avvik mellom opplyst og faktisk innvendig areal, forutsatt at avviket er på 2% eller mer og minimum 1 kvm.
Ved beregning av et eventuelt prisavslag eller erstatning må kjøper selv dekke tap/kostnader opptil et beløp på kr 10 000 (egenandel).
Ikke-forbruker (næringsdrivende) – definisjon
Hvis kjøper er en juridisk person, eller en fysisk person som hovedsakelig handler som ledd i næringsvirksomhet, vil kjøpet ikke anses som et forbrukerkjøp.
Ikke-forbruker – avtalevilkår
Eiendommen har en mangel dersom den ikke er i samsvar med kravene som følger av avtalen.
Eiendommen selges «som den er», og selgers ansvar utover det konkret avtalte er da begrenset etter avhendingsloven § 3-9, første ledd andre setning.
Avhendingsloven § 3-3 andre ledd fravikes, og hvorvidt boligens arealsvikt utgjør en mangel vurderes etter avhendingsloven § 3-8.
Informasjon om kjøpers undersøkelsesplikt, herunder oppfordringen om å undersøke eiendommen nøye, gjelder også for kjøpere som ikke anses som forbrukere.
Det forutsettes at hjemmel overføres til kjøper. Hvis kjøper ikke ønsker hjemmelsoverføring av eiendommen, må det tas forbehold om dette i budet.
Meglers vederlag
Meglers vederlag betales av selger og er avtalt til:
Vederlag: 37.000,-
Tilrettelegging fra kr 6.250,-
Oppgjør: kr 7.500,-
Markedspakke: kr 8.950
Oppslag eiendomsregister: kr 2.900,-
Foto: 4000,-
Opplysninger om oppdraget
Oppdragsnummer 22-0288/25
Eiendomsmegler Krogsveen AS, avd. Sandefjord
Jernbanealléen 13, 3210, SANDEFJORD
950 007 613
Oppdragets KR-kode KR22.25288
Dato
Sist oppdatert: 05. mars 2026 kl. 15:55
Dokumenter
Dokumenter
PDF – 166 KB
PDF – 3 MB
PDF – 312 KB
PDF – 29 KB
PDF – 127 KB
PDF – 392 KB
Område
Legg til steder som er viktige for deg
Visning
For å delta på visning, ber vi om at du melder deg på. Da sikrer vi at du får nødvendig informasjon og at det er satt av tilstrekkelig med tid. Kontakt megler dersom annet tidspunkt ønskes. Husk å lese salgsoppgaven før visningen, så du stiller forberedt. NB. Visning utgår dersom det ikke er noen påmeldte.
Ønsker du kun å bli holdt orientert, kan du fra eiendommens hjemmeside få varsel om solgtpris, eller kontakte megler.
Lurer du på noe?
Unngå doble boligrenter
Vi tilbyr gunstig forsikring.
Vurderer du utleie?
Få et tilbud fra Utleie KrogsveenHva koster lånet?
Sjekk estimert lånekostnadVil du varsles om lignende boliger?
Ved å lagre ditt boligsøk hos oss får du beskjed når vi har en bolig som ligner denne, før den legges ut på markedet!




