Henrik Sørensens gate 5B
3 550 000 kr
45 m²
1 soverom
Komplett salgsoppgave
Lillestrøm
Pen 2-roms leilighet i Lillestrøm med god planløsning og solrik balkong 7 m² | Sentrumsnær | Mulighet for parkering
Prisantydning
3 550 000 krAndel fellesgjeld
126 347 krOmkostninger
19 252 krTotalpris
3 695 599 kr
Pris
Bruksareal
52 m²BRA-I (internt bruksareal)
45 m²BRA-E (eksternt bruksareal)
7 m²TBA (terrasse-balkongareal)
7 m²
Areal
Etasje
1Byggeår
1954Soverom
1 soveromBad
1 badType
AndelsleilighetEierform
AndelFasiliteter
Heis og Balkong/TerrasseFellesutgifter
3 839 krEnergimerke
Rød E
Nøkkelinfo
Unngå doble boligrenter
Vi tilbyr gunstig forsikring.
Vurderer du utleie?
Få et tilbud fra Utleie KrogsveenHva koster lånet?
Sjekk estimert lånekostnadBeskrivelse
Kort om eiendommen
Innhold og byggemåte
Innhold og byggemåte
Eiendommen
Henrik Sørensens gate 5B, 2003 LILLESTRØM
Kommunenummer 3205, gårdsnummer 81, bruksnummer 1478, ideell andel 1/1
Andelsnummer 43, Henrik Sørensensgate Borettslag, organisasjonsnummer 948370387
Innhold
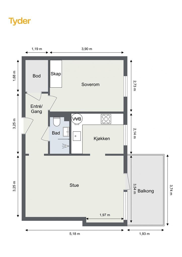
Totalt bruksareal BRA: 52 kvm
BRA-i:
1. etasje 45 kvm: Bad, Entré/gang, Kjøkken, Stue, Soverom, Bod
BRA-e:
-1. etasje 4 kvm: Ekstern bod
4. etasje 3 kvm: Ekstern bod
Åpent areal:
1. etasje 7 kvm: Balkong
Deler av loftsboden er ikke måleverdig på grunn av lav takhøyde iht. retningslinjer for arealmåling NS 3940. Gulvareal (GUA) er oppmålt til ca. 10 m²
Boligen disponerer to boder hvor en er på loftet og en i kjeller. Det gjøres oppmerksom på at boligens eksterne boder tilhører borettslagets fellesareal, og at boden således ikke eies av den enkelte andelseier. Dette medfører at borettslaget i fellesskap beslutter bruken, og at man ikke selv har eierrett og rettsvern for boden. Borettslaget kan ved vedtak beslutte annet bruk av fellesarealet og disponering av bodarealet kan dermed opphøre.
Vedlagte plantegninger er ikke målbare. De oppgitte arealer er hentet fra rapport med befaringsdato 02.12.2025 utført av Daniel Aas.
Byggemåte
Selger har fått utarbeidet en tilstandsrapport, dvs. en teknisk gjennomgang av boligen hvor eventuelle avvik, risiko for kjøper og prisoverslag for hva som bør gjøres av oppgradering, er skissert. Se særskilt TGIU (tilstandsgrad ikke undersøkt), samt TG2 og TG3 som viser hva som er boligens normale slitasje, alder og type, hva som er avvik fra dette og hva som bør/må utbedres. Rapporten og selgers egenerklæring er en del av salgsoppgaven og må leses nøye før bud inngis. Kjøper overtar ansvaret for de opplysninger som fremkommer av salgsdokumentasjonen, og kan ikke gjøre gjeldende som mangel noe som burde vært kjent eller som ikke kan anses å ha betydning for avtalen.
Bygningen er iht. tilstandsrapporten oppført med grunnmur i betong, Yttervegger i murverk med pusset og malte overflater og Yttertak i trekonstruksjon, tekket med takstein. Les for øvrig mer om byggemåte og den tekniske tilstanden i rapporten.
Det gjøres spesielt oppmerksom på:
TG2:
-Varmtvannsbereder: Plassert i rom uten sluk. Alder.
-Ventilasjon: Mangler luftespalte under dør til bad. Anbefales og ikke ha elektronisk avtrekksvifte på oppdriftsventilasjon.
-Elektrisk anlegg: Manglende samsvarserklæring. Komfyrvakt ikke etablert.
-Bad gulv og vegger: Toppen av membranen ved dørterskel bør være min. 25 mm høyere enn sluket. I dette tilfelle er det lavere. Det er et hull i en veggflis i dusjsonen som er fylt med fugemasse. Panel ved toalett har fukt/svelleskade. Bomlyd i enkelte veggfliser. Tettesjikt vegger i dusjsone har fått tg2 grunnet alder. Dør er plassert under 1 meter fra dusj.
-Fast inventar - bad: Innredningen har fuktskader/svelling
-Sanitetsinstallasjoner: Det er ikke etablert dreneringsspalte fra innebygget sisternen.
-Innvendig dør - bad: fukt/svelleskade i bunn av dørbladet.
TG2 grunnet alder/slitasje:
Ledningsnett for sanitær, Elektrisk oppvarming - bad
Se supplerende tekst i tilstandsrapporten. Kjøper overtar ansvar og risiko for dette.
Standard
E N T R E
Leiligheten ønsker deg velkommen med en hyggelig felles inngang med calin system. Inni boligen er det er skoskap samt oppheng for klær. Moderne ringsystem med video.
B A D
Flott baderom med flislagte vegger og gulv, samt behagelig gulvvarme. Moderne innredning med benkeskap i stilrene, glatte fronter, speil med integrert belysning over servant. Dusj med glassfelt, veggmontert klosett med innebygd sisterne og praktisk servantløsning gir et tidløst og funksjonelt uttrykk.
K J Ø K K E N
Kjøkkenet har en stilfull innredning med profilerte fronter og enkelte overskap med elegante glassfronter. Laminert benkeplate med nedfelt keramisk kum gir et tidløst preg. Kullfilterventilator og integrerte hvitevarer som induksjonstopp, stekeovn, oppvaskmaskin, mikrobølgeovn og kjøl/frys gir en helhetlig og funksjonell løsning. Det er også opplegg for vaskemaskin.
S T U E
Romslig og lys stue med store vindusflater som slipper inn rikelig med naturlig lys. Her er det god plass til en stor sofagruppe med TV-møbel, og i tillegg er det rom for et spisebord av god størrelse – perfekt for både hverdagsmåltider og hyggelige sammenkomster.
S O V E R O M
Soverommet er romslig og gir god plass til dobbeltseng, nattbord og skapløsninger – samtidig som rommet oppleves luftig og behagelig.'
B A L K O N G
Fra stuen er det utgang til en romslig balkong på ca 7 kvm.
Løsøre og tilbehør
Vi viser til liste fra Norges Eiendomsmeglerforbund som gjelder fra 01.01.2020 angående løsøre og tilbehør.
Kun hvitevarer på kjøkken medfølger
Oppvarming
Leiligheter er oppvarmet gjennom varmekabler på bad og panelovner.
Dersom beboelsesrom ikke har vegg- eller fastmonterte varmekilder ved visning, følger dette heller ikke med.
Ferdigattest/brukstillatelse
Eiendommen har vært brukt til boligformål siden 1954.
Det foreligger ferdigattest for riving og nybygg garasjer datert 10.05.2012
Kommunen opplyser at det ikke foreligger ferdigattest eller midlertidig brukstillatelse for eiendommen. Det finnes av den grunn ikke dokumentasjon over eiendommens lovlighet.
Det foreligger vedtak om byggeanmeldelse av boligblokker datert 23.07.1952.
Det foreligger byggetillatelseskort for nye balkonger+ tilleggsisolasjon datert 08.07.1987 samt bygningsrådvedtak datert 25.05.1987 på disse vilkårene:
- Ansvarshavende må være godkjent.
- Avgifter for tilsyn må være betalt.
- Gravetillatelse for tomten må være undertegnet.
- Rørleggerarbeid må være anmeldt av rørlegger og godkjent.
- Redegjørelse for konstruksjoner m nødvendige tegninger og beregninger skal innsendes i 2 ekspl.
- Eventuelle fyringsanlegg/ventilasjonsanlegg skal anmeldes særskilt til brannsjefen.
Kjøper overtar eiendommen slik den fremstår på visning med risiko og ansvaret for eventuelle pålegg fra kommunen og kostnader forbundet med dette.
Det gjøres oppmerksom på at det ikke lenger utstedes ferdigattest på tiltak det er søkt om før 1998 jf. plan- og bygningsloven § 21-10. Kommunen vil ikke kreve ferdigattest for disse tiltakene og vil avvise eventuelle søknader. Bestemmelsen innebærer ikke at tiltak med manglende søknad blir lovlige, men at man ikke trenger å avslutte gamle byggesaker. Normalt sett kreves ferdigattest for alle søknadspliktige tiltak som gjøres etter plan- og bygningsloven.
Tinglyste heftelser og rettigheter
Utover andel fellesgjeld overdras leiligheten fri for pengeheftelser.
Borettslaget har legalpant for forfalte felleskostnader og andre krav som følger av borettslagsforholdet iht. burettslagsloven § 5-20. Pantet er begrenset oppad til 2G (G = folketrygdens grunnbeløp).
Eventuell adgang til utleie
Andelseier kan ikke uten samtykke fra styret i borettslaget overlate bruken av boligen til andre. Med samtykke kan andelseier overlate boligen til andre i inntil tre år hvis andelseier har bodd i boligen i minst ett av de to siste år. Utleie i andre tilfeller kan godtas ved særlige grunner, jf. burettslagslova § 5-6. Utleie forutsetter at leiligheten har forsvarlige radonverdier. Se også borettslagets vedtekter og konferer megler ved spørsmål.
Beliggenhet og tomteforhold
Beliggenhet og tomteforhold
Beliggenhet
Henrik Sørensens gate 5B har en meget sentral beliggenhet. Boligen har en svært ideell beliggenhet for deg som liker å bruke byen og å ha det du trenger i hverdagen nært og lett tilgjengelig. Her bor du bare en kort spasertur fra jernbanestasjonen, gode kafeer og restauranter, kjøpesenter, et godt og variert kulturtilbud, en mengde fritidsaktiviteter, flotte friluftsområder, offentlige tjenester og servicetilbud. Coop Prix kun 130m gange fra utgangsdøren.
I Lillestrøm finnes et rikt shopping tilbud. Lillestrøm Torv har 70 butikker som inneholder noe for alle. Deler av storgata i Lillestrøm er bilfri og har et rikt tilbud av serverings - og spisesteder som Mirabel, Chi, Casa Mia og Olivia. Det er heller ikke lange kjøreturen til Strømmen storsenter - et av landets største kjøpesenter med hele 195 butikker!
Lillestrøm stasjon er et knutepunkt for Nedre Romerike med hyppige avganger mot Oslo (11 min) og Gardermoen (12 min). Buss 401 går mot Oslo og bruker bla. 12 min til AHUS.
Lillestrøm har et rikt tilbud på fritiden. Det er kino med filmtilbud for alle aldre og på kulturhuset er det flere konsert og teater oppsetninger. De aller fleste idrettstilbud finnes i Lillestrøm, med området rundt Skedsmohallen som sentrum. Her er det flere treningssentre, friidrettsbane, hestegård, stor innehall, bowling, fotballhall, gressbaner og kunstgressbaner.
Nebbursvollen ligger på Volla siden av byen, her er det bassenger for store og små, samt vannsklier og sandvolleyball baner. Langs flomvollen mot Nitelva er det gode rekreasjonsmuligheter. På vinteren er det kort vei til Tæruddalen og innover i Romeriksåsene. Innover i marka finner man et veletablert turstinett som er merket etter DNT - standard, fiske- og badevann, skiløyper m.m.
Adkomst
Det vil bli skiltet med Krogsveen visningsskilt ved fellesvisninger.
Barnehager, skoler og fritid
BARNEHAGER
- Måsan barnehage (1-5 år) 4 min gange
- Volla barnehage (1-5 år) 8 min gange
- Paviljongene barnehage (0-3 år) 10 min gange
SKOLER
- Volla skole (1-7 kl.) 11 min gange
- Vigernes skole (1-7 kl.) 15 min gange
- Kjeller skole (1-10 kl.) 21 min gange
- Sophie Radich skole (8-10 kl.) 16 min gange
- Lillestrøm videregående skole 8 min gange
- Skedsmo videregående skole 13 min gange
Informasjon om tilhørende skolekretser er hentet fra Prognosesenteret som dataleverandør, og tilhørigheten kan årlig endres av kommunen. Dersom skole- og barnehagetilbud er av betydning for kjøpet, ber vi om at det rettes en særskilt henvendelse til kommunen/bydelsadministrasjonen for oppdatert informasjon.
Beskrivelse av tomt
Eiertomt på 7 148 kvm som tilhører borettslaget. Tomten er opparbeidet med parkeringsplasser og gressplen.
Parkering
Parkering følger ikke leiligheten, men foreles av styret etter forespørsel(venteliste). Parkering på oppmerkede plasser utenfor blokken. Styret må kontaktes for parkeringsplass. Gjesteparkering etter områdets bestemmelser.
Det gjøres oppmerksom på at dagens parkeringsløsning er etablert på borettslagets fellesareal, og at parkeringsplassene således ikke eies av den enkelte andelseier. Dette medfører at borettslaget i fellesskap beslutter bruken, og at man ikke selv har eierrett og rettsvern for parkeringsplassen. Borettslaget kan ved vedtak beslutte annet bruk av fellesarealet.
Vei, vann og avløp
Eiendommen har adkomst via kommunal vei.
Eiendommen er tilknyttet kommunalt ledningsnett via private stikkledninger. Borettslaget er ansvarlig for private stikkledninger til bygningen.
Regulerings-og arealplaner
Eiendommen ligger i et uregulert område.
Eiendommen og nærliggende områder er i kommuneplanen avsatt til boligbebyggelse nåværende, Bebyggelse og anlegg kombinert nåværende, Bebyggelse for off. eller priv. tjenesteyting nåværende, Ulike typer militære formål nåværende og friområdet nåværende.
Utsnitt av plan med tilhørende bestemmelser kan fås ved henvendelse til megler.
Økonomi
Økonomi
Boligens kostnader
Felleskostnadene er kr 3.839,- pr. mnd. og inkluderer: Reparasjon/vedlikehold, felles bygningsforsikring, Kommunale avgifter, eiendomsskatt, grunnpakke kabel-tv/internett, Driftskostnader og nedbetaling av fellesgjeld.
Felleskostnadene justeres normalt en til to ganger årlig. Styreleder informerer om at det de følger prisøkning i samfunnet.
Felleskostnadene fordeles slik:
Renteutgifter kr 551,-
Avdrag kr 686,-
Felleskostnader kr 2.602,-
Nåværende eier har parkeringsplass og betaler kl 250,- pr mnd.
Nåværende eier har et strømforbruk som tilsvarer ca. 10.000 kwh. pr. år.
Boligen er tilknyttet Telia som leverandør av kabel-tv. Tv-tuner/dekoder medfølger ikke.
Utgiftene er basert på nåværende eiers forbruk. Kjøper må selv tegne innboforsikring.
Formuesverdi
Formuesverdi for 2024 var kr 735 461,- ifølge skatteetaten. Beløpet forutsetter at eier bor fast i boligen (primærbolig).
Ved eventuell øvrig bruk av eiendommen (f.eks. fritidsbolig, pendlerbolig, utleieobjekt) var formuesverdien for 2024 kr 2 941 843,-
Formuesverdien justeres normalt årlig. Se skatteetaten.no for mer informasjon om fastsettelse av formuesverdien.
Opplysninger om fellesgjeld
Andel formue er kr 12 344,- pr. 31.12.2024
Andel fellesgjeld er kr 126 347,- pr. 03.12.2025
Total fellesgjeld for boligselskapet er kr 9 551 962,- pr. 03.12.2025.
Lån 1: Nordea Bank
Annuitetslån, 2 terminer per år.
Rentesats: 5,5%
Saldo: kr 1 011 962,-
Andel av saldo: kr 13 385,-
Løpetid: 26.03.12 - 30.06.37
Lån 1: Nordea bank
Annuitetslån, 4 terminer per år.
Rentesats 5,5%
Saldo: kr 8 540 000,-
Andel av saldo: kr 112 962,-
Løpetid: 10.06.15 - 30.12.40
Omkostninger
3 550 000,00 Prisantydning
126 347,00 Andel av fellesgjeld
--------------------------------------------------------
3 676 347,00 Pris inkl. fellesgjeld
Omkostninger
8 212,00 Forkjøpsrett - forhåndsutlyst (kjøper)
9 950,00 Gjensidige Boligkjøperpakke (valgfri)
545,00 Tinglysing hjemmel
545,00 Tinglysing panterettsdokument
--------------------------------------------------------
19 252,00 Omkostninger totalt
--------------------------------------------------------
3 695 599,00 Totalpris inkl. omkostninger
--------------------------------------------------------
Dersom kjøper ikke er medlem av boligbyggelaget, må det påregnes en innmeldingsavgift og årlig medlemsgebyr pr. ny andelseier. Dette faktureres direkte fra boligbyggelaget.
Dersom borettslaget har fellesgjeld, vil leilighetens andel av fellesgjelden komme i tillegg til kjøpesummen. Denne gjelden skal ikke innbetales i oppgjøret, men følger leiligheten.
Det tas forbehold om endringer i avgifter og gebyrer.
Tilbud om lånefinansiering
Megler formidler gjerne kontakt med rådgiver hos vår samarbeidspartner BN Bank. De har konkurransedyktige betingelser samt rask og løsningsorientert behandling av din lånesøknad. Krogsveen mottar et honorar dersom lån opprettes.
Betalingsbetingelser
Kjøpesum inkludert omkostninger, samt pantedokument tilknyttet eventuelt lån, skal være disponibelt hos megler 2 virkedager før overtagelsen.
Annen viktig informasjon
Annen viktig informasjon
Eier
Victor Berget Kjernsholen
Informasjon om borettslaget
Leiligheten er tilknyttet Henrik Sørensensgate Borettslag.
Borettslaget består av 64 leiligheter.
Forretningsfører er BORI Boligbyggelaget.
Borettslagets hjemmeside: https://hsbrl.no
Dugnad må påregnes.
Dyrehold er tillatt. Dersom en ønsker å holde mer enn en hund/katt må dette godkjennes av styret.
Borettslaget tar ikke kostnaden for skiftning av sluk ved evt oppussing.
Vedlikehold utføres ihht borettslagets vedlikeholdsplan.
Foretatt påkostninger de senere år:
- Løpende vedlikehold.
- Montert seriekoblede røykvarslere i kjellere.
- Etablert nytt callinganlegg med kamera og automatiske døråpnere.
- Byttet alle håndslukkere i leiligheter og fellesarealer.
- Fuktproblemer i kjeller i 3 har blitt utredet med kamerainspeksjon av rør, byggtørker, men årsak til problemene er ennå ikke avdekket. Styret jobber videre med saken.
- Tilstandsvurdering/vedlikeholdsplan av bygningsmassen er på plass. Følges opp fortløpende. Sees i sammenheng med brannvesenets inspeksjon. Vi er kjent med at det blir noen forhold som må følges opp innenfor vedtatt budsjett.
- Sykkelparkering ved 5a/5b er utvidet.
- EL-billading. Anlegget er ferdig. Saken er imidlertid fortsatt under oppfølging, fordi det hevdes å være en utfordring med trådløs kommunikasjon mellom lade-enhetene.
2009 Rørfornying av gamle soilrør
2010 Nye vinduer og balkongdører
2015 Total rehabilitering av tak og fasader
2015 Avfallsbrønner
2016 Snøfanger på tak
2022 Callinganlegg dørtelefonanlegg døråpnere
Planlagte påkostninger:
- Styreleder informerer pr. 10.12.25 at det ikke har besluttet større prosjekter som medfører økning i felleskostnadene.
I henhold til borettslagets vedtekter må kjøper godkjennes av styret som ny andelseier. Det er kjøpers ansvar at styregodkjenning blir gitt, men styret kan ikke nekte godkjenning uten saklig grunn.
Iht. burettslagslova kan man bare eie én andel i borettslaget. Kun fysiske personer kan være andelseiere.
Øvrige andelseiere i borettslaget og eventuelt medlemmer av boligbyggelaget har forkjøpsrett. Dersom boligen tas på forkjøpsrett løses kjøper fra avtalen. Det er noen som har meldt forkjøpsrett.
Borettslaget er tilknyttet Borettslagenes Sikringsordning AS som dekker manglende innbetaling av felleskostnader fra øvrige andelseiere. Avtalen om sikring er gyldig til avtalen sies opp av en av partene. Oppsigelsesfrist er 1 desember med gyldighet fra førstkommende årsskifte.
Dokumenter for borettslaget kan fås ved henvendelse til megler.
Overtakelse
Etter nærmere avtale. Overtakelse kan tidligst skje etter at forkjøpsretten for øvrige andelseiere i borettslaget og eventuelt medlemmer av boligbyggelaget er avklart, samt at styrets godkjennelse er avklart.
Boligselgerforsikring
Selger har i forbindelse med salget tegnet boligselgerforsikring levert av Gjensidige.
Boligselgerforsikringen dekker selgers ansvar etter avhendingsloven begrenset oppad til kr 14 millioner. Dersom kjøper oppdager forhold ved eiendommen som hen mener utgjør en mangel ved eiendommen, vil Gjensidige behandle reklamasjonen på vegne av selger. Forsikringsvilkår kan fås ved henvendelse til megler.
Vedlagt salgsoppgaven følger selgers egenerklæringsskjema og tilstandsrapport. Interessenter må sette seg inn i dokumentene før bud inngis.
Boligkjøperforsikring
Innen kontraktsmøtet må kjøper ta stilling til om det ønskes å bestille Boligkjøperpakken gjennom Gjensidige. I denne gunstige pakken er boligen ferdig forsikret og inkluderer rettshjelpsforsikring, også kalt Boligkjøperforsikring. Rettshjelpsforsikring gir trygghet og tilgang på profesjonell juridisk hjelp dersom det oppdages uventede feil eller mangler det første året etter overtagelse. Forsikringsselskapet behandler i så fall ethvert mangelskrav kjøper måtte ha overfor selger.
Boligkjøperpakken inkluderer bygningsforsikring for hus og hytte, innboforsikring, flytteforsikring og dobbel rentedekning - i situasjoner hvor kjøper ikke får solgt nåværende primærbolig.
Kjøper mottar ingen særskilt faktura for Boligkjøperpakken da kostnaden det første året legges til kjøpesummen for boligen. Det gjøres oppmerksom på Krogsveen mottar et honorar for denne formidlingen.
Produktark for Boligkjøperpakken ligger vedlagt i salgsoppgaven.
Dersom ikke boligkjøperpakke ønskes kan kun rettshjelpsforsikring, også kalt boligkjøperforsikring, tegnes særskilt via megler. Rettshjelpsforsikringen varer i 5 år fra overtagelse og leveres gjennom Gjensidige. Ta kontakt med megler for ytterligere informasjon.
Selskap og privatpersoner som driver med kjøp/salg/utvikling som ledd i egen næringsvirksomhet kan ikke tegne boligkjøperpakke eller rettshjelpsforsikring.
Budgivning
Forbrukerinformasjon om budgivning er vedlagt denne salgsoppgaven og er også på vår hjemmeside Krogsveen.no. Alle bud og budforhøyelser må inngis skriftlig. I tillegg må legitimasjon være fremlagt sammen med signatur fra budgiver.
Vi oppfordrer til å gi bud elektronisk via GI BUD-knappen på eiendommens hjemmeside på Krogsveen.no. Da vil samtlige vilkår bli oppfylt.
Eventuelle forhøyelser eller endringer av budet kan bekreftes pr SMS eller på e-post. Vi oppfordrer alltid til å kontakte megler pr. telefon i tillegg da forsinkelser i SMS og e-post kan forekomme.
For at budene skal kunne bli behandlet og videreformidlet skriftlig til alle involverte parter, må alle bud ha en tilstrekkelig lang akseptfrist, jf. eiendomsmeglingsforskriften § 6-3.
Selger må også skriftlig akseptere budet før aksept kan formidles til budgiver. Akseptfrist bør derfor være på minimum 30 minutter, og budforhøyelser må derfor skje i god tid før fristens utløp.
Bud i forbrukerforhold kan uansett ikke settes med kortere frist enn kl. 12.00 første virkedag etter siste annonserte visning. I tillegg kan ikke budet ha forbehold om at det skal holdes hemmelig ovenfor øvrige interessenter. Megler har iht lov om eiendomsmegling ikke anledning til å videreformidle disse budene, og de vil dermed heller ikke bli journalført.
Etter at eiendommen er solgt vil kjøper og selger få tilsendt budjournal. Øvrige budgivere kan få utlevert kopi av budjournalen i anonymisert form.
Hvitvaskingsreglene
I henhold til lov om hvitvasking og terrorfinansiering har megler plikt til å gjennomføre kontrolltiltak overfor kunder, herunder fullmektiger. Dette innebærer bl.a. å bekrefte kunders og reelle rettighetshaveres identitet på bakgrunn av fremvist gyldig legitimasjon eller på annen godkjent måte, samt å innhente opplysninger om kundeforholdets formål og tilsiktede art.
Dersom slike kundetiltak ikke kan gjennomføres, kan megler ikke etablere kundeforholdet eller utføre transaksjonen.
Hvis kjøper ikke bidrar til gjennomføring av kundekontrollen og dette fører til at transaksjonen blir forsinket eller ikke kan gjennomføres, vil dette ansees som mislighold av avtalen og gi selger rettigheter etter avhendingslova kapittel 5. I tilfeller der selger ikke bidrar til gjennomføring av løpende kundekontroll underveis i oppdraget, er det selger som misligholder sine forpliktelser etter avtalen og gi kjøper rettigheter etter avhendingslovens kapittel 4. Partene er selv ansvarlige for eventuelle kostnader og ansvar dette kan medføre. Eiendomsmegleren eller eiendomsmeglingsforetaket kan ikke holdes ansvarlig for de konsekvenser dette vil kunne få for partene eller andre som har interesser i eiendomshandelen.
Kjøper oppfordres til å innbetale kjøpesummen som ikke kommer fra låneinstitusjon i én samlet innbetaling fra egen konto i norsk bank. Megler har plikt til å melde fra til Økokrim om eiendomshandler som fremstår som mistenkelige. Melding sendes Økokrim uten at partene varsles.
Personopplysningsloven
I henhold til personopplysningsloven gjør vi oppmerksom på at interessenter kan bli registrert for videre oppfølging.
Lovanvendelse
Generelle bestemmelser
Salgsoppgaven er basert på de opplysningene selger har gitt til megler, den bygningssakyndiges tilstandsrapport, samt opplysninger innhentet fra kommunen, Kartverket og andre tilgjengelige kilder. Det er viktig at kjøper setter seg grundig inn i alle salgsdokumentene, herunder salgsoppgave, tilstandsrapport og selgers egenerklæring. Kjøper anses kjent med forhold som er tydelig beskrevet i salgsdokumentene, og slike forhold kan ikke påberopes som mangler. Dette gjelder uavhengig av om kjøper har lest dokumentene. Alle interessenter oppfordres til å undersøke eiendommen nøye, gjerne sammen med fagkyndig før bud inngis. Kjøper som velger å kjøpe usett kan ikke gjøre gjeldende som mangel noe han burde blitt kjent med ved undersøkelsen.
Dersom det er behov for avklaringer, anbefaler vi at interessenter rådfører seg med eiendomsmegler eller egne rådgivere før det legges inn bud.
En bolig som har blitt brukt i en viss tid, har vanligvis blitt utsatt for slitasje og skader kan ha oppstått. Slik bruksslitasje må kjøper regne med, og det kan avdekkes enkelte forhold etter overtakelse som nødvendiggjør utbedringer. Normal slitasje og skader som nødvendiggjør utbedring, er innenfor hva kjøper må forvente og vil ikke utgjøre en mangel.
Kjøper og selgers rettigheter og plikter reguleres av avtalen mellom partene, samt informasjonen som har vært tilgjengelig for kjøperen i forbindelse med handelen. Avtalen utfylles av avhendingsloven, og det gjelder ulike avtalevilkår avhengig av om kjøper er forbrukerkjøper eller ikke. Dette er nærmere beskrevet nedenfor.
På grunn av ulike avtalevilkår kan selger vurdere bud fra en som ikke er forbruker, ulikt fra en forbrukers bud. Dersom kjøper ikke er forbruker, er selger sitt mulige mangelsansvar begrenset fordi eiendommen selges "som den er". Selger kan ikke ta «som den er»- forbehold overfor en forbrukerkjøper. Selv et lavere bud fra en som ikke er forbruker kan foretrekkes fordi begrensningen i mulig mangelsansvar kan ha egenverdi for selger. Selger står fritt til å forkaste eller akseptere ethvert bud, og er for eksempel ikke forpliktet til å akseptere høyeste bud.
Budgiver skal i budskjema avgi egenerklæring om budgiver er forbruker eller næringsdrivende/ person som hovedsakelig handler som ledd i næringsvirksomhet. Budgivere får informasjon dersom andre bud er inngitt av en som ikke er forbruker.
Forbrukerkjøp - definisjon
Med forbrukerkjøp menes kjøp av eiendom når kjøperen er en fysisk person som ikke hovedsakelig handler som ledd i næringsvirksomhet.
Forbruker – avtalevilkår
Eiendommen har en mangel dersom den ikke er i samsvar med kravene som følger av avtalen, eller det foreligger brudd på bestemmelsene i avhendingsloven §§ 3-2 til 3-8. Hvis eiendommen ikke er i samsvar med det kjøperen må kunne forvente ut ifra alder, type og synlig tilstand, kan det være grunnlag for mangelskrav. Det samme gjelder hvis det er holdt tilbake eller gitt uriktige opplysninger om eiendommen. Dette gjelder likevel bare dersom man kan gå ut ifra at det virket inn på avtalen at opplysningen ikke ble gitt eller at mangelskravet ikke blir rettet i tide på en tydelig måte.
Boligen kan ha en mangel etter avhendingsloven § 3-3 andre ledd, dersom det er avvik mellom opplyst og faktisk innvendig areal, forutsatt at avviket er på 2% eller mer og minimum 1 kvm.
Ved beregning av et eventuelt prisavslag eller erstatning må kjøper selv dekke tap/kostnader opptil et beløp på kr 10 000 (egenandel).
Ikke-forbruker (næringsdrivende) – definisjon
Hvis kjøper er en juridisk person, eller en fysisk person som hovedsakelig handler som ledd i næringsvirksomhet, vil kjøpet ikke anses som et forbrukerkjøp.
Ikke-forbruker – avtalevilkår
Eiendommen har en mangel dersom den ikke er i samsvar med kravene som følger av avtalen.
Eiendommen selges «som den er», og selgers ansvar utover det konkret avtalte er da begrenset etter avhendingsloven § 3-9, første ledd andre setning.
Avhendingsloven § 3-3 andre ledd fravikes, og hvorvidt boligens arealsvikt utgjør en mangel vurderes etter avhendingsloven § 3-8.
Informasjon om kjøpers undersøkelsesplikt, herunder oppfordringen om å undersøke eiendommen nøye, gjelder også for kjøpere som ikke anses som forbrukere.
Det forutsettes at hjemmel overføres til kjøper. Hvis kjøper ikke ønsker hjemmelsoverføring av eiendommen, må det tas forbehold om dette i budet.
Meglers vederlag
Meglers vederlag betales av selger og er avtalt til:
Vederlag: 0,90 % av salgssummen inkl. eventuell fellesgjeld. Minimumsprovisjon er kr 30 000,00
Vederlag:
Kontroll av hjemmel og heftelser kr 2 900,00
Markedsføringspakke kr 27 400,00
Oppgjør kr 7 500,00
Tilrettelegging kr 14 000,00
Visninger pr stk / Overtagelse kr 2 000,00
Utlegg:
Eierskiftegebyr forretningsfører (selger) kr 6 570,00
Innhenting av informasjon forretningsfører kr 4 500,00
Innhenting av offentlig opplysninger kr 3 810,00
Tinglysing sikring kr 545,00
Andre utgifter:
Foto kr 4 000,00
Tilstandsrapport leilighet kr 10 000,00
Vi er opptatt av verdiskapning, og har knyttet til oss samarbeidspartnere som skal sikre våre kunder de beste produkter og tjenester;
• I forbindelse med forberedelse av salget, innhenter vi informasjon om eiendommen hovedsakelig fra vår samarbeidspartner Amibita.
• Gjensidige leverer boligselgerforsikring og tilbyr bygningsforsikring
• Boligkjøperforsikring leveres av Hiscox og med Sedgwick som skadebehandler, og er formidlet gjennom Gjensidige.
• BN bank tilbyr finansieringsløsninger
• Vår avdeling Krogsveen Pluss tilbyr flyttetjenester som utvask, visningsvask, lager, tømming og transport av flyttelass, i tillegg til å formidle kontakt med Flip for overflateoppussing.
• I forbindelse med overtagelse av eiendommen tilbyr Overo avtale om strøm, alarm og bredbånd.
• Krogsveen er, sammen med øvrige bransjeaktører, medeier i Bomega AS som tilbyr den digitale annonseringsplattformen Hjem.
Opplysninger om oppdraget
Oppdragsnummer 59-0154/25
Eiendomsmegler Krogsveen AS, avd. Skedsmokorset
Furuholtet 1, 2020, SKEDSMOKORSET
950 007 613
Oppdragets KR-kode KR59.25154
Dato
Sist oppdatert: 01. februar 2026 kl. 00:48
Dokumenter
Dokumenter
PDF – 100 KB
PDF – 746 KB
PDF – 940 KB
PDF – 312 KB
PDF – 29 KB
PDF – 127 KB
PDF – 392 KB
Område
Legg til steder som er viktige for deg
Visning
For å delta på visning, ber vi om at du melder deg på. Da sikrer vi at du får nødvendig informasjon og at det er satt av tilstrekkelig med tid. Kontakt megler dersom annet tidspunkt ønskes. Husk å lese salgsoppgaven før visningen, så du stiller forberedt. NB. Visning utgår dersom det ikke er noen påmeldte.
Ønsker du kun å bli holdt orientert, kan du fra eiendommens hjemmeside få varsel om solgtpris, eller kontakte megler.
Lurer du på noe?
Unngå doble boligrenter
Vi tilbyr gunstig forsikring.
Vurderer du utleie?
Få et tilbud fra Utleie KrogsveenHva koster lånet?
Sjekk estimert lånekostnadVil du varsles om lignende boliger?
Ved å lagre ditt boligsøk hos oss får du beskjed når vi har en bolig som ligner denne, før den legges ut på markedet!




