Ragna Nielsens vei 30B
4 600 000 kr
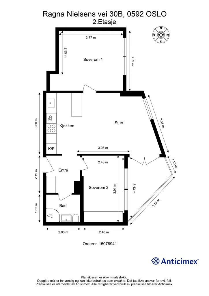
54 m²
2 soverom
Solgt

Toppen av Tonsenhagen
Meget pen og arealsmart 3-roms med balkong, beliggende i markanære omgivelser! VV./fyring inkludert - Parkering*
Prisantydning
4 600 000 krAndel fellesgjeld
162 860 krOmkostninger
130 090 krTotalpris
4 892 950 kr
Pris
Bruksareal
61 m²BRA-I (internt bruksareal)
54 m²BRA-E (eksternt bruksareal)
7 m²TBA (terrasse-balkongareal)
4 m²
Areal
Etasje
2Byggeår
1958Soverom
2 soveromBad
1 badType
EierleilighetEierform
EierseksjonFasiliteter
Balkong/TerrasseFellesutgifter
5 274 krEnergimerke
Lysegrønn C
Nøkkelinfo
Unngå doble boligrenter
Vi tilbyr gunstig forsikring.
Vurderer du utleie?
Få et tilbud fra Utleie KrogsveenHva koster lånet?
Sjekk estimert lånekostnadBeskrivelse
Kort om eiendommen
Velkommen til en innholdsrik 3-roms i stille og rolige omgivelser på toppen av Tonsenhagen! Her får du en kvadratsmart planløsning med romslige oppholdsrom og god standard etter oppussing i 2020. Store vindusflater slipper både lys og naturen inn. I stuen er det doble balkongdører som tar deg ut til balkongen som måler 4 kvm.
Her bor man idyllisk til med marka som nærmeste nabo, i et område kjent for sitt gode bomiljø. Fra stuevindu kan du nyte en grønn utsikt hvor du kan se både rådyr, og ekorn som leker i trærne. Rett ved siden av blokken går stien inn til marka med både turstier og skiløyper som strekker seg milevis innover.
Her bor du både supersentralt med kort vei til kollektiv- og servicetilbud, samtidig som du får en skjermet beliggenhet med nærhet til marka!
Område
Legg til steder som er viktige for deg
På flyttefot? Tenk kjøp og salg samtidig.
Få din egen rådgiver gjennom hele kjøps- og salgsprosessen. Det starter med en verdivurdering.
Unngå doble boligrenter
Vi tilbyr gunstig forsikring.
Vurderer du utleie?
Få et tilbud fra Utleie KrogsveenHva koster lånet?
Sjekk estimert lånekostnadVil du varsles om lignende boliger?
Ved å lagre ditt boligsøk hos oss får du beskjed når vi har en bolig som ligner denne, før den legges ut på markedet!

