Svalevegen 25
4 690 000 kr
110 m²
3 soverom
Solgt

Pen familiebolig over to plan med 3 gode soverom | 2 bad | Flotte uteplasser | Garasje m/lader | Barnevennlig boområde
Prisantydning
4 690 000 krOmkostninger
138 240 krTotalpris
4 828 240 kr
Pris
Bruksareal
139 m²BRA-I (internt bruksareal)
110 m²BRA-E (eksternt bruksareal)
29 m²TBA (terrasse-balkongareal)
74 m²
Areal
Etasje
2Byggeår
2018Soverom
3 soveromBad
2 badTomteareal
206 m² (eiet)Type
Enebolig - FrittliggendeEierform
EietFasiliteter
Garasje/P-plass og Balkong/TerrasseÅrlig velavgift
2 400 krEnergimerke
Grønn B
Nøkkelinfo
Unngå doble boligrenter
Vi tilbyr gunstig forsikring.
Vurderer du utleie?
Få et tilbud fra Utleie KrogsveenHva koster lånet?
Sjekk estimert lånekostnadDette liker selger best ved boligen
Det sol på uteplassen hele dagen
Beskrivelse
Kort om eiendommen
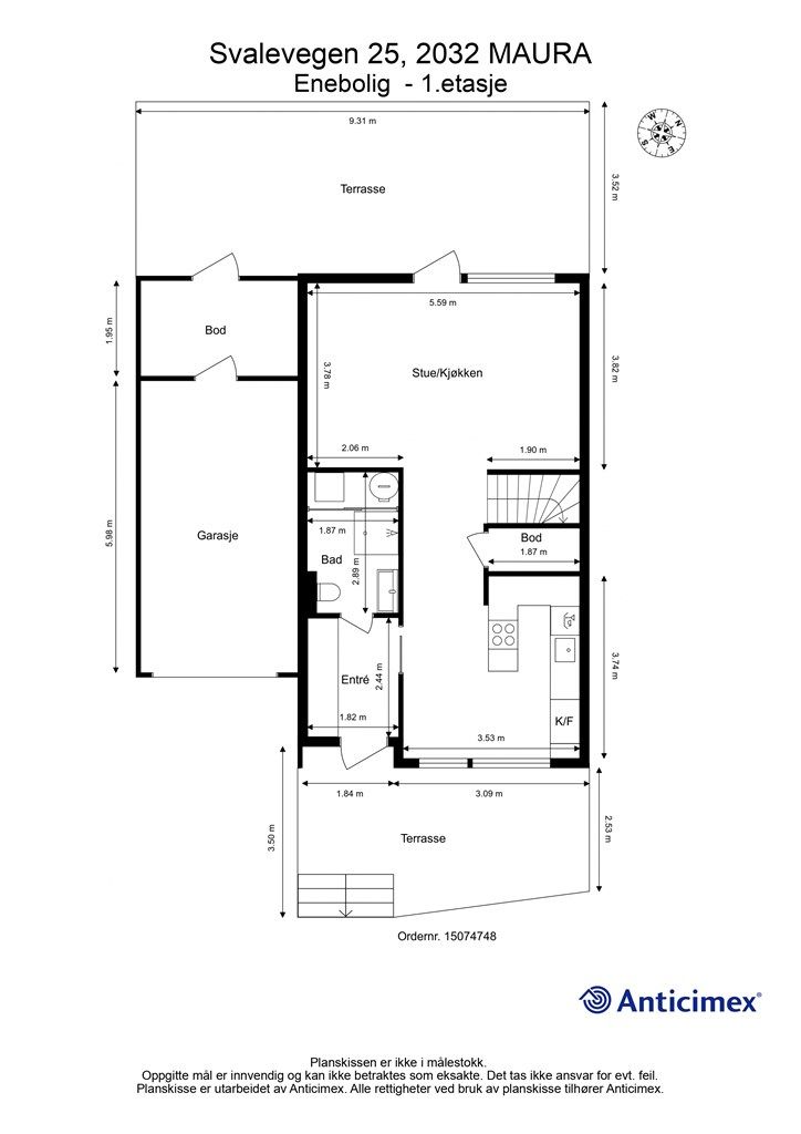
Boligen ligger i et godt etablert og populært boområde med kort vei områdets fasiliteter. Eneboligen går over to plan hvor det er adkomst via overbygget inngangsparti. Boligen består av 1.etasje med entré, stue/kjøkken, bad og bod, og 2.etasje inneholder gang, tre soverom, omkledningsrom, bod og bad. Det er utgang fra entré til terrasse, utgang fra stue/kjøkken til hyggelig terrasse med hage, og utgang fra 2.etasje til flott takterrasse.
Eiendommen har en fin og barnevennlig beliggenhet med nærhet til skoler, barnehager, offentlig kommunikasjon, gode servicetilbud, og Bjerke stadion som er nærmeste nabo. Perfekt for deg som ønsker å bo med gode tilbud i nærheten. Fra boligen er det kort vei til Kiwi og Coop, og et godt utvalg av ulike forretninger i Maura sentrum.
Område
Legg til steder som er viktige for deg
På flyttefot? Tenk kjøp og salg samtidig.
Få din egen rådgiver gjennom hele kjøps- og salgsprosessen. Det starter med en verdivurdering.
Unngå doble boligrenter
Vi tilbyr gunstig forsikring.
Vurderer du utleie?
Få et tilbud fra Utleie KrogsveenHva koster lånet?
Sjekk estimert lånekostnadVil du varsles om lignende boliger?
Ved å lagre ditt boligsøk hos oss får du beskjed når vi har en bolig som ligner denne, før den legges ut på markedet!

