Sørligata 8D
4 850 000 kr
49 m²
2 soverom
Komplett salgsoppgave
Tøyen
Moderne og særegen 3-roms med generøs takhøyde og flott lysinnslipp. Kjøkken fra 2021, bad fra 2012. Selveier.
Prisantydning
4 850 000 krOmkostninger
132 290 krTotalpris
4 982 290 kr
Pris
Bruksareal
54 m²BRA-I (internt bruksareal)
49 m²BRA-E (eksternt bruksareal)
5 m²
Areal
Etasje
2Byggeår
1938Soverom
2 soveromBad
1 badType
EierleilighetEierform
EierseksjonFasiliteter
HeisFellesutgifter
3 971 krEnergimerke
Grønn F
Nøkkelinfo
Unngå doble boligrenter
Vi tilbyr gunstig forsikring.
Vurderer du utleie?
Få et tilbud fra Utleie KrogsveenHva koster lånet?
Sjekk estimert lånekostnadBeskrivelse
Kort om eiendommen
Velkommen til Sørligata 8D! Presentert av Halvor L. Heikkilä ved Krogsveen Majorstuen og Oslo Vest. En moderne og særegen 3-roms med smart planløsning og et unikt industrielt preg. Leiligheten ligger i et tidligere fabrikk bygg som ble bygget om til leiligheter i 2012. Dette sørger for et unikt industrielt preg med store vinduer og fine detaljer. Innvendig har boligen også nytt kjøkken fra 2021 og nyslipte gulv. Sameiet byr på en hyggelig felles bakgård, samt takterrasse med heisadkomst. Kort informasjon om boligen:
- Romslig bod på 5kvm
- Felles takterrasse med gode solforhold
- Fleksibel planløsning: To soverom eller ett soverom og en tv-stue
- Selveier
- Takhøyde på opp til 2,72m
- Hyggelig bakgård
- Sentral og attraktiv beliggenhet på Tøyen. Stille, men sentralt og nærhet til "alt"
Innhold og byggemåte
Innhold og byggemåte
Eiendommen
Sørligata 8D, 0577 OSLO
Kommunenummer 301, gårdsnummer 229, bruksnummer 147, seksjonsnummer 13, ideell andel 1/1
Innhold
Totalt bruksareal BRA: 54 kvm
BRA-i:
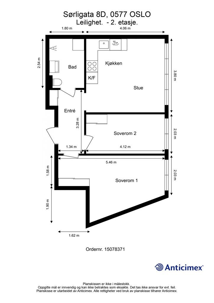
2. etasje 49 kvm: Entre, bad, to soverom og stue/kjøkken.
BRA-e:
1. etasje 5 kvm: Bod
Boligen disponerer 1 bod i byggets 1.etasje. Boden er tinglyst som en tilleggsdel til seksjonen.
Vedlagte plantegninger er ikke målbare. De oppgitte arealer er hentet fra rapport med befaringsdato 21.01.2026 utført av Anticimex AS v/ Henrik Landberg.
Byggemåte
Selger har fått utarbeidet en tilstandsrapport, dvs. en teknisk gjennomgang av boligen hvor eventuelle avvik, risiko for kjøper og prisoverslag for hva som bør gjøres av oppgradering, er skissert. Se særskilt TGIU (tilstandsgrad ikke undersøkt), samt TG2 og TG3 som viser hva som er boligens normale slitasje, alder og type, hva som er avvik fra dette og hva som bør/må utbedres. Rapporten og selgers egenerklæring er en del av salgsoppgaven og må leses nøye før bud inngis. Kjøper overtar ansvaret for de opplysninger som fremkommer av salgsdokumentasjonen, og kan ikke gjøre gjeldende som mangel noe som burde vært kjent eller som ikke kan anses å ha betydning for avtalen.
Bygningen er iht. tilstandsrapporten ett boligbygg over fem etasjer samt underetasje og kjeller. Grunnmur, bærende konstruksjoner og etasjeskillere hovedsakelig av betong
Det gjøres spesielt oppmerksom på følgende forhold som er tildelt TG2 i tilstandsrapporten:
Våtrom:
- Fallforhold (gulv): Informasjon gjelder: Lokalfall i dusjsonen er mindre enn hva som ideelt anbefales, men er likevel vurdert som tilstrekkelig. Målingen er foretatt på tilfeldig sted. TG2 gjelder: Nivåforskjell fra døråpning på topp overflate gulv og til hovedsluk er på tilfeldig sted målt til ca. 20 mm. Dette er vurdert til å kunne være begrenset.
Dører og vinduer:
- Vinduer: Det er observert tegn til fuktskade på innvendig list på vindu ved soverom 1. Det er i tillegg observert malingsavflassing utvendig på vinduer. Tiltak bør vurderes. Vindu ved soverom 2 fungerer ikke åpne og lukkefunksjonen som tiltenkt da vinduet treffer karmen. Justering av vinduer anbefales.
Alle øvrige forhold er tildelt TG1 eller TGIU.
Se utfyllende informasjon i tilstandsrapporten.
Standard
Entré: Lys og romslig entré med plass til å sette fra seg sko og henge opp ytterklær eller annen bekledning. Entréen tar deg inn til leilighetens stue, kjøkken, bad og 2 soverom. Leiligheten er registrert som H0105 (1.etasje), men er fysisk beliggende i 2.etasje ut mot bakgård.
Stue: Åpen stue- og kjøkkenløsning med store vindusflater og generøs takhøyde. Rommet kan innredes med både sofa og spisebord, eller med et større spisebord som et stort spisekjøkken.
Kjøkken: Moderne og pen kjøkkeninnredning fra IKEA fra 2021 med glatte fronter. . Laminert benkeplate med nedsenket oppvaskkum og ett-greps armatur. Induksjonstopp og integrert komfyr og oppvaskmaskin. Frittstående kjøleskap med frysedel. Ventilator med belysning. Vannrør av typen rør-i-rør og forkrommede kobberrør. Avløpsrør av typen plast. Lekkasjestopper og komfyrvakt. Hvitevarer medfølger.
Bad: Delikat flislagt baderom innredet med heldekkende servant på underskap, speil med belysning, toalett og dusj. Det er tilrettelagt for opplegg til vaskemaskin.
Soverom: Boligen har to soverom som begge vender mot bakgård og begge har god størrelse. Plass til dobbeltseng, garderobe og tilhørende møblement i begge rom. Boligens planløsning er fleksibel og et soverom kan feks benyttes som tv-stue/hjemmekontor o.l.
Diverse:
Overflater Vegger: Malte flater. Fliser på bad.
Overflater Gulv: Parkett. Fliser på bad. Slipt gulv i entre og begge soverom i 2026, nye gulv på kjøkken/stue.
Overflater Himling: Malte flater i himling.
Sikringsskap med automatsikringer plassert på vegg i entre.
Vinduer fra 2011
Takhøyde på opp til 2,72m
Velkommen på visning!
Løsøre og tilbehør
Vi viser til liste fra Norges Eiendomsmeglerforbund som gjelder fra 01.01.2020 angående løsøre og tilbehør. Hvitevarer på kjøkken medfølger.
Oppvarming
Radiatorer med vannbåren varme samt varmekabler på bad. Dersom beboelsesrom ikke har vegg- eller fastmonterte varmekilder ved visning, følger dette heller ikke med.
Ferdigattest/brukstillatelse
Det foreligger ferdigattest på ombygging fra kontorbygg til boliger datert 20.06.2012. Denne kan fås ved henvendelse til megler.
Byggetegningene fra ombyggingen i 2012 stemmer overens med dagens planløsning.
Tinglyste heftelser og rettigheter
Utover andel fellesgjeld overdras leiligheten fri for pengeheftelser.
Sameiet har legalpant for krav mot sameieren som følger av sameieforholdet iht. eierseksjonsloven § 31. Pantet er begrenset oppad til 2G, (G = folketrygdens grunnbeløp).
Det er tinglyst 6 servitutter på sameiets eiendom. Disse omhandler blant annet bestemmelse om garasje/parkering, erklæring om vann/kloakk, bestemmelse om bebyggelse, bestemmelse om kloakkledning, erklæring/avtale om trafostasjon og bestemmelse om benyttelse vedrørende heisanlegg.
Servituttene vil følge eiendommen. Kjøpers bank vil få prioritet etter ovennevnte heftelser og servitutter.
Eventuell adgang til utleie
Leiligheten kan leies ut såfremt leiligheten har forsvarlige radonverdier. Leietaker må følge sameiets vedtekter og ordensregler på lik linje som eier.
Beliggenhet og tomteforhold
Beliggenhet og tomteforhold
Beliggenhet
Eiendommen ligger i et populært og etablert boligområde i hjertet av Oslo med gangavstand til både Grünerløkka, Tøyen Torg og Grønland. Tøyen er en bydel i utvikling og "Tøyenløftet" har ført til at området er blitt attraktivt og kulturlivet blomstrer. Klassiske fasader er pusset opp og nye boligprosjekter er godt tilpasset området. På Tøyen Torg, en kort spasertur unna, finner du blant annet spisesteder og forretninger, matvarebutikker, apotek og mye mer. Det er også et godt tilbud av dagligvarebutikker som blant annet Meny, Coop Extra og Joker og Norbygata Dagligvare innen gangavstand.
Veien er heller ikke lang til Grønland der du blant annet finner Grønland basar som byr på en rekke ulike servicetilbud som man trenger i det daglige. Apotek, kolonialforretninger, frisører, vinmonopol, serveringssteder og en rekke grønnsaksforhandlere preger det nærliggende gatebildet. Det er også flere hyggelige caféer og andre møteplasser i nærheten.
Det er kort vei til Kampen og Grünerløkka med et bredt tilbud av trivelige kafeer og spisesteder. Her finnes det også gode shoppingmuligheter, barer og Ringen kino.
I tillegg til å bo i hovedstadens sentrum er det kort vei til flotte tur og rekreasjonsområder som Botanisk hage, Tøyenparken, Middelalderparken, Ola Narr, Sofienbergparken, Birkelunden og Kampenparken. Det er også kort vei til hyggelige Akerselva. Langs elva finner du grøntområder og flotte turveier, men også rester av Oslo østs spennende industrihistorie.
For den aktive kan området by på flere muligheter med blant annet Fresh Fitness Grønland, Tøyen Fitness og Crossfit Gamlebyen samt trivelige turmuligheter i offentlige parker.
Offentlige kommunikasjoner i kort gangavstand med bussforbindelse bare 5 minutters spasertur fra leiligheten hvor Linje 37 (Nydalen T - Helsfyr) tar deg rundt store deler av Oslo. Tøyen T-bane og Grønland T-bane er også en kort gåtur unna.
Adkomst
Veibeskrivelse Se Google maps - det er enkelt å finne frem i kartet. Det vil bli skiltet med Krogsveen visningsskilt ved fellesvisninger.
Barnehager, skoler og fritid
Informasjon om tilhørende skolekretser er hentet fra Prognosesenteret som dataleverandør, og tilhørigheten kan årlig endres av kommunen. Dersom skole- og barnehagetilbud er av betydning for kjøpet, ber vi om at det rettes en særskilt henvendelse til kommunen/bydelsadministrasjonen for oppdatert informasjon.
Parkering
Det er innført beboerparkering i dette området (indre by). Dette betyr at du kan parkere fritt døgnet rundt på parkeringsplassene regulert til beboerparkering i området rundt din bolig for kun kr. 3.850- pr. år for fossile biler, dieselbil, hybridbil, ladbar hybrid.
Har du el-bil så betaler du kr. 1.300,- pr år, hydrogenbil og el-varebil er gratis.
Motorsykkel og moped kr 1.925,- pr år.
El-motorsykkel og el-moped kr 650,- pr år.
Se Oslo kommune sine nettsider for mer informasjon og priser for ytre by.
Vei, vann og avløp
Eiendommen har adkomst via kommunal vei.
Eiendommen er tilknyttet kommunalt ledningsnett via private stikkledninger.
Sameiet er ansvarlig for private stikkledninger til bygningen.
Regulerings-og arealplaner
Eiendommen er regulert til byggeområde for boliger i henhold til reguleringsplan S-2255 datert 28.07.1977 med senere endringer i henhold til S-2937 datert 01.10.1987. Planen er helt eller delvis opphevet som følge av bystyrets vedtak 23.09.2015 sak 262 gjennom ny "Kommuneplan 2015 - Oslo mot 2030 - Smart, trygg og grønn."
Området blir berørt av endringer i reguleringsplan for Oslo Sentrum og indre sone i Oslo kommune som følge av dette. Denne nye planen får betydning for en rekke vedtatte reguleringsplaner i Oslo. Henviser til kommunens nettsider for ytterligere informasjon: https://www.oslo.kommune.no/politikk-og-administrasjon/politikk/kommuneplan/.
Det opplyses om følgende plan og byggesaker i nærområdet:
- Tøyengata 25 A-B - tidsbestemt bruksendring av 1. etasje fra forretningslokaler til lokaler for matproduksjon. Saksnummer 202509170
- Tøyengata 27-29 - utskifting av vinduer. Saksnummer 202600539
- Sørligata 8 D/E - mulig ulovlig bruksendring til moské. Saksnummer 202505124
Utsnitt av plan med tilhørende bestemmelser kan fås ved henvendelse til megler.
Økonomi
Økonomi
Boligens kostnader
Fellesutgiftene er kr 3.971,- pr. mnd. og inkluderer: fyring/VV (a-konto), bredbånd, kommunale avgifter, felles forsikring og øvrige felleskostnader.
Fellesutgiftene justeres normalt en til to ganger årlig i forhold til sameiets faktiske utgifter og ble sist justert 01.01.2026.
Felleskostnadene fordeles slik:
Ekstern styreleder 159,-
Fjernvarme 649,-
Bredbånd 200,-
Felleskostnader 2 963,-
Nåværende eier har et strømforbruk som tilsvarer ca. 3050 kwh per år.
Boligen er tilknyttet Lynet som leverandør av internett. Tv-tuner/dekoder medfølger ikke.
Utgiftene er basert på nåværende eiers forbruk. Kjøper må selv tegne innboforsikring.
Formuesverdi
Formuesverdi for 2023 var kr 1 185 056,- ifølge selgers skattemelding. Beløpet forutsetter at eier bor fast i boligen (primærbolig).
Ved eventuell øvrig bruk av eiendommen (f.eks. fritidsbolig, pendlerbolig, utleieobjekt) var formuesverdien for 2023 kr 4 740 224
Formuesverdien justeres normalt årlig.
Fra 2026 har Stortinget vedtatt en oppdatert modell for beregning av formuesverdi for primærbolig, så avvik kan forekomme.
For mer informasjon se skatteetaten.no
Opplysninger om fellesgjeld
Det er ikke felles lån i sameiet.
Omkostninger
4 850 000,00 Prisantydning
Omkostninger
121 250,00 Dokumentavgift til staten (2,5% av kjøpesum)
9 950,00 Gjensidige Boligkjøperpakke (valgfri)
545,00 Tinglysing panterettsdokument
545,00 Tinglysing skjøte
--------------------------------------------------------
132 290,00 Omkostninger totalt
--------------------------------------------------------
4 982 290,00 Totalpris inkl. omkostninger
--------------------------------------------------------
Dersom sameiet har fellesgjeld, vil leilighetens andel av fellesgjelden komme i tillegg til kjøpesummen. Denne gjelden skal ikke innbetales i oppgjøret, men følger leiligheten.
Totalpris inkl. omkostninger forutsetter kjøp til prisantydning.
Det tas forbehold om endringer i avgifter og gebyrer.
Betalingsbetingelser
Kjøpesum inkludert omkostninger, samt pantedokument tilknyttet eventuelt lån, skal være disponibelt hos megler 2 virkedager før overtagelsen.
Annen viktig informasjon
Annen viktig informasjon
Eier
Brede Finne
Informasjon om sameiet
Eiendommen er seksjonert, og leiligheten er tilknyttet Sameiet Sørligata 8, med sameiebrøk 57/4560.
Sameiet består av 77 seksjoner.
Forretningsfører er OBOS Eiendomsforvaltning AS. Sameiets revisor er EY.
Dugnad må påregnes.
Dyrehold er tillatt så lenge det ikke er til sjenanse for øvrige beboere.
Styrets hjemmeside: https://vibbo.no/sorligata-8
Foretatt påkostninger de senere år:
- Byttet varmeveksler til varmtvann
- 2021 Utskifting av vinduer i 5. etasje
- 2020 oppgradering og vedlikehold
Planlagte påkostninger:
- Utbedring av vannlekkasje på tak
- Sameiet har ikke hatt behov for mye vedlikehold siden det var nytt i 2012. Styret er i gang med å få utarbeidet en vedlikeholdsplan som vil sette føringer for hva som vil prioriteres i framtiden.
Vi gjør videre oppmerksom på at det iht. eierseksjonsloven ikke er anledning å erverve mer enn 2 seksjoner i sameiet, her teller også eierskap via. firma, nærstående og familie. Kjøper har risikoen for at overskjøting på denne bakgrunn kan nektes av Statens Kartverk. I så fall vil kjøper uansett være forpliktet til å gjennomføre handelen, og oppgjør til selger vil finne sted tross manglende overskjøting. Konferer med megler for mer informasjon.
Dokumenter for sameiet og kopi av seksjonsbegjæringen kan fås ved henvendelse til megler.
Overtakelse
Etter nærmere avtale.
Boligselgerforsikring
Selger har i forbindelse med salget tegnet boligselgerforsikring levert av Gjensidige.
Boligselgerforsikringen dekker selgers ansvar etter avhendingsloven begrenset oppad til kr 14 millioner. Dersom kjøper oppdager forhold ved eiendommen som hen mener utgjør en mangel ved eiendommen, vil Gjensidige behandle reklamasjonen på vegne av selger. Forsikringsvilkår kan fås ved henvendelse til megler.
Vedlagt salgsoppgaven følger selgers egenerklæringsskjema og tilstandsrapport. Interessenter må sette seg inn i dokumentene før bud inngis.
Boligkjøperforsikring
Innen kontraktsmøtet må kjøper ta stilling til om det ønskes å bestille Boligkjøperpakken gjennom Gjensidige. I denne gunstige pakken er boligen ferdig forsikret og inkluderer rettshjelpsforsikring, også kalt Boligkjøperforsikring. Rettshjelpsforsikring gir trygghet og tilgang på profesjonell juridisk hjelp dersom det oppdages uventede feil eller mangler det første året etter overtagelse. Forsikringsselskapet behandler i så fall ethvert mangelskrav kjøper måtte ha overfor selger.
Boligkjøperpakken inkluderer bygningsforsikring for hus og hytte, innboforsikring, flytteforsikring og dobbel rentedekning - i situasjoner hvor kjøper ikke får solgt nåværende primærbolig.
Kjøper mottar ingen særskilt faktura for Boligkjøperpakken da kostnaden det første året legges til kjøpesummen for boligen. Det gjøres oppmerksom på Krogsveen mottar et honorar for denne formidlingen.
Produktark for Boligkjøperpakken ligger vedlagt i salgsoppgaven.
Dersom ikke boligkjøperpakke ønskes kan kun rettshjelpsforsikring, også kalt boligkjøperforsikring, tegnes særskilt via megler. Rettshjelpsforsikringen varer i 5 år fra overtagelse og leveres gjennom Gjensidige. Ta kontakt med megler for ytterligere informasjon.
Selskap og privatpersoner som driver med kjøp/salg/utvikling som ledd i egen næringsvirksomhet kan ikke tegne boligkjøperpakke eller rettshjelpsforsikring.
Budgivning
Forbrukerinformasjon om budgivning er vedlagt denne salgsoppgaven og er også på vår hjemmeside Krogsveen.no. Alle bud og budforhøyelser må inngis skriftlig. I tillegg må legitimasjon være fremlagt sammen med signatur fra budgiver.
Vi oppfordrer til å gi bud elektronisk via GI BUD-knappen på eiendommens hjemmeside på Krogsveen.no. Da vil samtlige vilkår bli oppfylt.
Eventuelle forhøyelser eller endringer av budet kan bekreftes pr SMS eller på e-post. Vi oppfordrer alltid til å kontakte megler pr. telefon i tillegg da forsinkelser i SMS og e-post kan forekomme.
For at budene skal kunne bli behandlet og videreformidlet skriftlig til alle involverte parter, må alle bud ha en tilstrekkelig lang akseptfrist, jf. eiendomsmeglingsforskriften § 6-3.
Selger må også skriftlig akseptere budet før aksept kan formidles til budgiver. Akseptfrist bør derfor være på minimum 30 minutter, og budforhøyelser må derfor skje i god tid før fristens utløp.
Bud i forbrukerforhold kan uansett ikke settes med kortere frist enn kl. 12.00 første virkedag etter siste annonserte visning. I tillegg kan ikke budet ha forbehold om at det skal holdes hemmelig ovenfor øvrige interessenter. Megler har iht lov om eiendomsmegling ikke anledning til å videreformidle disse budene, og de vil dermed heller ikke bli journalført.
Etter at eiendommen er solgt vil kjøper og selger få tilsendt budjournal. Øvrige budgivere kan få utlevert kopi av budjournalen i anonymisert form.
Hvitvaskingsreglene
I henhold til lov om hvitvasking og terrorfinansiering har megler plikt til å gjennomføre kontrolltiltak overfor kunder, herunder fullmektiger. Dette innebærer bl.a. å bekrefte kunders og reelle rettighetshaveres identitet på bakgrunn av fremvist gyldig legitimasjon eller på annen godkjent måte, samt å innhente opplysninger om kundeforholdets formål og tilsiktede art.
Dersom slike kundetiltak ikke kan gjennomføres, kan megler ikke etablere kundeforholdet eller utføre transaksjonen.
Hvis kjøper ikke bidrar til gjennomføring av kundekontrollen og dette fører til at transaksjonen blir forsinket eller ikke kan gjennomføres, vil dette ansees som mislighold av avtalen og gi selger rettigheter etter avhendingslova kapittel 5. I tilfeller der selger ikke bidrar til gjennomføring av løpende kundekontroll underveis i oppdraget, er det selger som misligholder sine forpliktelser etter avtalen og gi kjøper rettigheter etter avhendingslovens kapittel 4. Partene er selv ansvarlige for eventuelle kostnader og ansvar dette kan medføre. Eiendomsmegleren eller eiendomsmeglingsforetaket kan ikke holdes ansvarlig for de konsekvenser dette vil kunne få for partene eller andre som har interesser i eiendomshandelen.
Kjøper oppfordres til å innbetale kjøpesummen som ikke kommer fra låneinstitusjon i én samlet innbetaling fra egen konto i norsk bank. Megler har plikt til å melde fra til Økokrim om eiendomshandler som fremstår som mistenkelige. Melding sendes Økokrim uten at partene varsles.
Personopplysningsloven
I henhold til personopplysningsloven gjør vi oppmerksom på at interessenter kan bli registrert for videre oppfølging.
Lovanvendelse
Generelle bestemmelser
Salgsoppgaven er basert på de opplysningene selger har gitt til megler, den bygningssakyndiges tilstandsrapport, samt opplysninger innhentet fra kommunen, Kartverket og andre tilgjengelige kilder. Det er viktig at kjøper setter seg grundig inn i alle salgsdokumentene, herunder salgsoppgave, tilstandsrapport og selgers egenerklæring. Kjøper anses kjent med forhold som er tydelig beskrevet i salgsdokumentene, og slike forhold kan ikke påberopes som mangler. Dette gjelder uavhengig av om kjøper har lest dokumentene. Alle interessenter oppfordres til å undersøke eiendommen nøye, gjerne sammen med fagkyndig før bud inngis. Kjøper som velger å kjøpe usett kan ikke gjøre gjeldende som mangel noe han burde blitt kjent med ved undersøkelsen.
Dersom det er behov for avklaringer, anbefaler vi at interessenter rådfører seg med eiendomsmegler eller egne rådgivere før det legges inn bud.
En bolig som har blitt brukt i en viss tid, har vanligvis blitt utsatt for slitasje og skader kan ha oppstått. Slik bruksslitasje må kjøper regne med, og det kan avdekkes enkelte forhold etter overtakelse som nødvendiggjør utbedringer. Normal slitasje og skader som nødvendiggjør utbedring, er innenfor hva kjøper må forvente og vil ikke utgjøre en mangel.
Kjøper og selgers rettigheter og plikter reguleres av avtalen mellom partene, samt informasjonen som har vært tilgjengelig for kjøperen i forbindelse med handelen. Avtalen utfylles av avhendingsloven, og det gjelder ulike avtalevilkår avhengig av om kjøper er forbrukerkjøper eller ikke. Dette er nærmere beskrevet nedenfor.
På grunn av ulike avtalevilkår kan selger vurdere bud fra en som ikke er forbruker, ulikt fra en forbrukers bud. Dersom kjøper ikke er forbruker, er selger sitt mulige mangelsansvar begrenset fordi eiendommen selges "som den er". Selger kan ikke ta «som den er»- forbehold overfor en forbrukerkjøper. Selv et lavere bud fra en som ikke er forbruker kan foretrekkes fordi begrensningen i mulig mangelsansvar kan ha egenverdi for selger. Selger står fritt til å forkaste eller akseptere ethvert bud, og er for eksempel ikke forpliktet til å akseptere høyeste bud.
Budgiver skal i budskjema avgi egenerklæring om budgiver er forbruker eller næringsdrivende/ person som hovedsakelig handler som ledd i næringsvirksomhet. Budgivere får informasjon dersom andre bud er inngitt av en som ikke er forbruker.
Forbrukerkjøp - definisjon
Med forbrukerkjøp menes kjøp av eiendom når kjøperen er en fysisk person som ikke hovedsakelig handler som ledd i næringsvirksomhet.
Forbruker – avtalevilkår
Eiendommen har en mangel dersom den ikke er i samsvar med kravene som følger av avtalen, eller det foreligger brudd på bestemmelsene i avhendingsloven §§ 3-2 til 3-8. Hvis eiendommen ikke er i samsvar med det kjøperen må kunne forvente ut ifra alder, type og synlig tilstand, kan det være grunnlag for mangelskrav. Det samme gjelder hvis det er holdt tilbake eller gitt uriktige opplysninger om eiendommen. Dette gjelder likevel bare dersom man kan gå ut ifra at det virket inn på avtalen at opplysningen ikke ble gitt eller at mangelskravet ikke blir rettet i tide på en tydelig måte.
Boligen kan ha en mangel etter avhendingsloven § 3-3 andre ledd, dersom det er avvik mellom opplyst og faktisk innvendig areal, forutsatt at avviket er på 2% eller mer og minimum 1 kvm.
Ved beregning av et eventuelt prisavslag eller erstatning må kjøper selv dekke tap/kostnader opptil et beløp på kr 10 000 (egenandel).
Ikke-forbruker (næringsdrivende) – definisjon
Hvis kjøper er en juridisk person, eller en fysisk person som hovedsakelig handler som ledd i næringsvirksomhet, vil kjøpet ikke anses som et forbrukerkjøp.
Ikke-forbruker – avtalevilkår
Eiendommen har en mangel dersom den ikke er i samsvar med kravene som følger av avtalen.
Eiendommen selges «som den er», og selgers ansvar utover det konkret avtalte er da begrenset etter avhendingsloven § 3-9, første ledd andre setning.
Avhendingsloven § 3-3 andre ledd fravikes, og hvorvidt boligens arealsvikt utgjør en mangel vurderes etter avhendingsloven § 3-8.
Informasjon om kjøpers undersøkelsesplikt, herunder oppfordringen om å undersøke eiendommen nøye, gjelder også for kjøpere som ikke anses som forbrukere.
Det forutsettes at hjemmel overføres til kjøper. Hvis kjøper ikke ønsker hjemmelsoverføring av eiendommen, må det tas forbehold om dette i budet.
Meglers vederlag
Vi er opptatt av verdiskapning, og har knyttet til oss samarbeidspartnere som skal sikre våre kunder de beste produkter og tjenester;
• I forbindelse med forberedelse av salget, innhenter vi informasjon om eiendommen hovedsakelig fra vår samarbeidspartner Amibita.
• Gjensidige leverer boligselgerforsikring og tilbyr bygningsforsikring
• Boligkjøperforsikring leveres av Hiscox og med Sedgwick som skadebehandler, og er formidlet gjennom Gjensidige.
• BN bank tilbyr finansieringsløsninger
• Vår avdeling Krogsveen Pluss tilbyr flyttetjenester som utvask, visningsvask, lager, tømming og transport av flyttelass, i tillegg til å formidle kontakt med Flip for overflateoppussing.
• I forbindelse med overtagelse av eiendommen tilbyr Overo avtale om strøm, alarm og bredbånd.
• Krogsveen er, sammen med øvrige bransjeaktører, medeier i den digitale annonseringsplattformen Hjem som eies av Bomega AS.
Meglers vederlag betales av selger og er avtalt til:
Vederlag: 1,00 % av salgssummen inkl. eventuell fellesgjeld. Minimumsprovisjon er kr 0,00
Vederlag:
Kontroll av hjemmel og heftelser kr 2 900,00
Markedsføringspakke utvidet kr 30.900,-
Oppgjør kr 7 500,00
Tilrettelegging kr 17 000,00
Visninger / Overtagelse pr stk kr 2.900,-
Utlegg:
Eierskiftegebyr forretningsfører - OBOS kr 6 570,00
Innhenting av informasjon forretningsfører kr 4 758,00
Tinglysing sikring kr 545,00
Innhente byggetegninger kr 690,-
Andre utgifter:
Foto med profesjonell fotograf kr 4.500,-
Opplysninger om oppdraget
Oppdragsnummer 40-0212/25
Eiendomsmegler Krogsveen AS, avd. Majorstuen og Oslo Vest
Hegdehaugsveien 31, 0352, OSLO
950 007 613
Oppdragets KR-kode KR40.25212
Dato
Sist oppdatert: 31. januar 2026 kl. 11:24
Dokumenter
Dokumenter
PDF – 946 KB
PDF – 360 KB
PDF – 440 KB
PDF – 312 KB
PDF – 29 KB
PDF – 127 KB
PDF – 392 KB
Område
Legg til steder som er viktige for deg
Visning
For å delta på visning, ber vi om at du melder deg på. Da sikrer vi at du får nødvendig informasjon og at det er satt av tilstrekkelig med tid. Kontakt megler dersom annet tidspunkt ønskes. Husk å lese salgsoppgaven før visningen, så du stiller forberedt.
Ønsker du kun å bli holdt orientert, kan du fra eiendommens hjemmeside få varsel om solgtpris, eller kontakte megler.
Lurer du på noe?
Unngå doble boligrenter
Vi tilbyr gunstig forsikring.
Vurderer du utleie?
Få et tilbud fra Utleie KrogsveenHva koster lånet?
Sjekk estimert lånekostnadVil du varsles om lignende boliger?
Ved å lagre ditt boligsøk hos oss får du beskjed når vi har en bolig som ligner denne, før den legges ut på markedet!




