Åsengata 8B
5 300 000 kr
52 m²
2 soverom
Solgt

Torshov/Sandaker
Lys og attraktiv 3-roms leilighet i 5.etg. med heis - Garasje - Solrik balkong m/utsikt-V.vann, internett og tv inkl.
Prisantydning
5 300 000 krAndel fellesgjeld
418 997 krOmkostninger
19 252 krTotalpris
5 738 249 kr
Pris
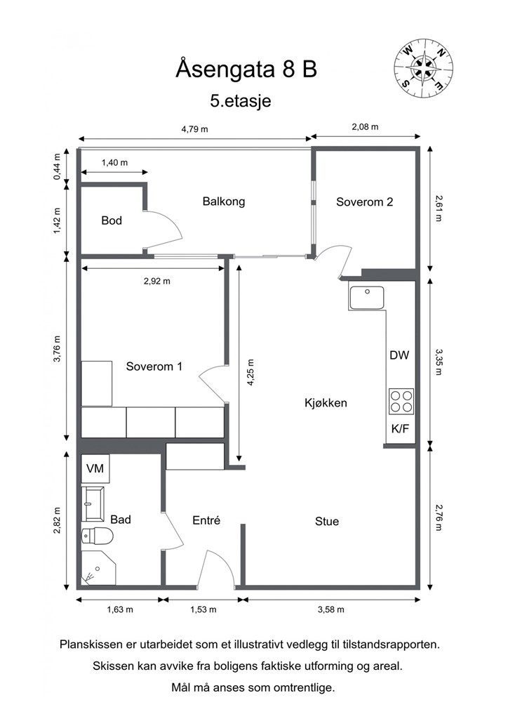
Bruksareal
56 m²BRA-I (internt bruksareal)
52 m²BRA-E (eksternt bruksareal)
4 m²TBA (terrasse-balkongareal)
7 m²
Areal
Etasje
5Byggeår
1975Soverom
2 soveromBad
1 badType
AndelsleilighetEierform
AndelFasiliteter
Garasje/P-plass, Heis og Balkong/TerrasseFellesutgifter
5 213 krEnergimerke
Rød F
Nøkkelinfo
Unngå doble boligrenter
Vi tilbyr gunstig forsikring.
Vurderer du utleie?
Få et tilbud fra Utleie KrogsveenHva koster lånet?
Sjekk estimert lånekostnadBeskrivelse
Kort om eiendommen
Velkommen til Åsengata 8!
En lys og moderne 3-roms leilighet med romslig balkong og garasjeplass. Her bor du høyt og fritt med herlige lys og solforhold, helt tilbaketrukket i usjenerte omgivelser, men med gode kollektivforbindelser til alle retninger av byen like utenfor døren. Leiligheten ligger meget sentralt på Sandaker/Øvre Torshov.
- Beliggende i byggets 5. etasje, stor og luftig balkong med fjordutsikt
- Varmtvann, tv og internett inkl. i fellesutgiftene
- Bod både på loft og på balkongen
- Medfølgende garasjeplass med el-bil lading
- Smart 3-roms planløsning med romslig stue
- Godt kollektivutvalg like utenfor døren
- Veldrevet og hyggelig borettslag
- Heis
- Mange parker og grøntområder i nærheten.
- Overflateoppusset i 2019-2020
Velkommen til visning!
Område
Legg til steder som er viktige for deg
På flyttefot? Tenk kjøp og salg samtidig.
Få din egen rådgiver gjennom hele kjøps- og salgsprosessen. Det starter med en verdivurdering.
Unngå doble boligrenter
Vi tilbyr gunstig forsikring.
Vurderer du utleie?
Få et tilbud fra Utleie KrogsveenHva koster lånet?
Sjekk estimert lånekostnadVil du varsles om lignende boliger?
Ved å lagre ditt boligsøk hos oss får du beskjed når vi har en bolig som ligner denne, før den legges ut på markedet!

