Munkerudåsen 21A
14 600 000 kr
181 m²
3 soverom
Komplett salgsoppgave

Nordstrand
Nyere “funkis” enebolig | Høy standard | Egen inngang kjeller | Takterrasse | Solrik hage | Garasje
Prisantydning
14 600 000 krOmkostninger
385 990 krTotalpris
14 985 990 kr
Pris
Bruksareal
214 m²BRA-I (internt bruksareal)
181 m²BRA-E (eksternt bruksareal)
33 m²TBA (terrasse-balkongareal)
71 m²
Areal
Byggeår
2017Soverom
3 soveromBad
2 badTomteareal
1 646 m² (eiet)Type
Enebolig - FrittliggendeEierform
EietFasiliteter
Garasje/P-plassEnergimerke
Rød C
Nøkkelinfo
Unngå doble boligrenter
Vi tilbyr gunstig forsikring.
Vurderer du utleie?
Få et tilbud fra Utleie KrogsveenHva koster lånet?
Sjekk estimert lånekostnadBeskrivelse
Kort om eiendommen
Nyere funkis enebolig (BRA 214) som fremstår velholdt og moderne. Alle farge- og materialvalg er nøye utvalgt - så her er ingen ting overlatt tilfeldighetene.
Lyst og lekkert allrom (kjøkken/spisestue) i hjemmets første etasje med direkte adkomst stor markterrasse i Kebony og flott opparbeidet hage. Stor stue i 2. etasje med trapp opp til fantastisk takterrasse i Kebony med lekkert utekjøkken og fjordutsikt. Kjeller med egen inngang og opplegg for hybelkjøkken.
Grønn og frodig hage med stor sydvendt markterrasse. Dobbelgarasje.
Eneboligen har en familievennlig beliggenhet med nærhet til Munkerud skole, noe som vil oppleves svært praktisk i hverdagen. I tillegg er det få minutters gange til kollektivtransport og servicetilbud på Sæter.
Barnevennlig plassering i populære Munkerudåsen.
Innhold og byggemåte
Innhold og byggemåte
Eiendommen
Munkerudåsen 21A, 1165 OSLO
Kommunenummer 301, gårdsnummer 181, bruksnummer 127, seksjonsnummer 1, ideell andel 1/1
Innhold
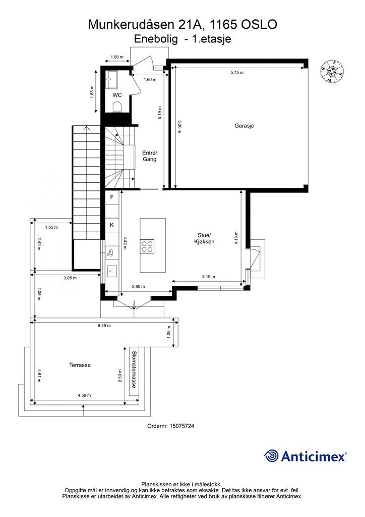
Totalt bruksareal BRA: 214 kvm
BRA-i:
Kjeller 68 kvm: Gang, bad, vaskerom, rom benyttet som soverom, trimrom og bod.
1. etasje 40 kvm: Entré/gang, stue/kjøkken og toalettrom.
2. etasje 73 kvm: Bad, stue, to soverom og to garderoberom.
BRA-e:
1. etasje 33 kvm: Garasje.
Åpent areal:
1. etasje 36 kvm: Terrasse.
2. etasje 35 kvm: Takterrasse.
Vedlagte plantegninger er ikke målbare. De oppgitte arealer er hentet fra rapport med befaringsdato 17.09.2025 utført av Anticimex AS. Arealene er beregnet og rom er definert etter dagens faktiske bruk, uavhengig av hva som er godkjent av bygningsmyndighetene.
Byggemåte
Selger har fått utarbeidet en tilstandsrapport, dvs. en teknisk gjennomgang av boligen hvor eventuelle avvik, risiko for kjøper og prisoverslag for hva som bør gjøres av oppgradering, er skissert. Se særskilt TGIU (tilstandsgrad ikke undersøkt), samt TG2 og TG3 som viser hva som er boligens normale slitasje, alder og type, eller som bør/må utbedres. Rapporten og selgers egenerklæring er en del av salgsoppgaven og må leses nøye før bud inngis. Kjøper overtar ansvaret for de opplysninger som fremkommer av salgsdokumentasjonen, og kan ikke gjøre gjeldende som mangel noe som burde vært kjent eller som ikke kan anses å ha betydning for avtalen.
Bygningen er iht. tilstandsrapport en enebolig over to etasjer samt kjeller, oppført i 2017. Den har støpt såle mot grunn og grunnmur av termomur, med bærende konstruksjoner og etasjeskillere av tre. Ytterveggene er av trekonstruksjoner, utvendig kledd med liggende kledning som ble overflatebehandlet i 2018. Taket er en tilnærmet flat konstruksjon tekket med papp/membran. Boligen har vinduer med karmer og rammer av tre med to- og tre-lags glass fra byggeåret. Dørene består av en slett entrédør, en slett entrédør med glassfelt, og profilerte innvendige dører. Balkongdørene har karmer og rammer av tre med to- og tre-lags glass fra byggeåret, i tillegg til en dobbel balkongdør med tre-lags glass fra 2023. Les forøvrig mer om byggemåte og den tekniske tilstanden i rapporten.
Følgende bygningsdeler har fått TG2 i tilstandsrapporten:
Våtrom - Baderom 2.etasje. :
- Overflater vegger: Elastisk fug i vinduskarm har stedvis manglende vedheft samt misfarget elastisk fug mellom flisgulv og flisvegg i dusjsone. Fug bør fornyes.
- Membran, tettesjikt og overgang til sluk.: Grunnet plassering av badekar er det ikke mulig å foreta undersøkelse av sluket under badekaret. Dette kan ha betydning for rommets lekkasjesikkerhet.
- Slukets tilkomstmulighet for rengjøring: Tilkomst til sluket under badekar er utilfredsstillende.
- Sanitærutstyr / innredning: Det er registrert noe fukt/svellemerker på fronter til servantinnredning. Utskifting kan vurderes.
Våtrom - Vaskerom :
- Overflater vegger: Henviser til pkt membran. Det er registrert uegnet materiale på vegger i dusjsone.
- Overflater gulv: Det er registrert elastisk fug med manglende vedheft i dusjsone. Utskifting/fornying bør vurderes.
- Fallforhold (gulv): Nivåforskjell fra døråpning på topp overflate gulv og til sluk er på tilfeldig sted målt til ca. 14 mm. Dette er vurdert til å ikke være tilfredsstillende mht lekkasjesikkerhet.
- Membran, tettesjikt og overgang til sluk.: Det hefter usikkerhet vedrørende utførelsen av tettesjikt på vegger i våtsoner grunnet uegnet materialvalg i dusjsone samt manglende dokumentasjon. Lekkasjesikkerheten kan derfor ikke verifiseres.
Øvrige rom - 1.etasje:
- Overflater gulv: TG2 gjelder riper/hakk i kjøkkendel. Tiltak kan iverksettes ved behov.
Dører og vinduer:
- Annet: TG2 gjelder fukt/svellemerker på foring/karmlist til vindu over kjøkkenbenk. Utskifting av foring/karmlist bør vurderes.
Drenering:
- Bortledning av takvann: Vann fra yttertaket er ikke ledet vekk fra bygningen/grunnmuren i tilstrekkelig grad. Forholdet kan føre til økt fuktbelastning på grunnmuren. Tiltak bør gjennomføres.
Yttervegger inkl. fasader og konstruksjon:
- Fasader ink. kledning: Det er registrert stedvis behov for overflatebehandling på sydvendt fasade.
For øvrige tilstandsgrader og tilstandsgrader grunnet høy alder og evt. slitasje, så henvises det til rapporten. Kjøper overtar ansvar og risiko for dette.
Standard
Munkerudåsen 21 A har en meget god beliggenhet på riktig side av Munkerudåsen-høyt, fritt og solrikt. Et meget barnevennlig villaområde med nærhet til Munkerud skole, fritidstilbud, kollektivtransport og servicetilbud.
Huset er oppført i samsvar med TEK10 og dens krav til byggeteknikk, isolasjon, innemiljø osv.
Boligen er tegnet av arkitekt Søren Yran og fasadens arkitektoniske utrykk fremstår som moderne og tidløs.
En innholdsrik bolig med en god og gjennomtenkt planløsning som åpner for flere bruksmuligheter og appellerer til familier med behov for fleksible løsninger der ulike generasjoner kan få spillerom.
Boligen er oppført i 2017 og holder høy standard. En lys og meget pen bolig i delikate farger og med et nøye planlagt interiørkonsept og løsninger.
1. etasje:
Entré:
Velkommen inn i et stort, lekkert og innholdsrikt familiehjem med god fleksibilitet. Ytterdøren er overbygd, og har glassfelt, kodelås og ringeklokke. Vel inne gir entreen et godt førsteinntrykk med downlights, praktisk gjestetoalett og lekre fliser på gulvet. Langs den ene veggen er det praktiske skap til oppbevaring av sko og på motsatt side er det plass til yttertøy. I likhet med etasjen for øvrig, er entreen utstyrt med varme i gulv. Varmen er koblet opp mot Danfoss Link som enten kan styres gjennom display plassert i entreen eller gjennom telefonen.
WC:
Praktisk gjestetoalett med vegghengt toalett. På gulvet ligger de samme lekre flisene som i gangen. Heldekkende servant med ett-greps blandebatteri på innredning med skuffer.
Kjøkken/spisestue:
Kjøkkenet er stilrent, velutstyrt og toppmoderne med store høyskap, benk- og benkeskap med overskap langs den ene veggen. Innredningen har hvite, glatte fronter og benkeplate med oppvaskkum av kompositt. En smart barløsning med bred induksjonstopp og vifte integrert i himlingen markerer overgangen til spisestuen, perfekt til måltider og gode samtaler, men også for lekselesing mens middagen tilberedes. Barløsningen har stor arbeidsbenk og praktiske benkeskap på begge sider.
Møbleringsfriheten er god, og her kan venner og familie samles for hyggelige måltider rundt et langbord.
Alle hvitevarene er integrert, bestående av stekeovn, induksjonstopp, kjøleskap, fryseskap, oppvaskmaskin og mikrobølgeovn. Ovnene er praktisk plassert i hvert sitt høyskap.
Gulvet har 1-stavs parkett i lys utførelse med varme i gulv, som står godt til veggflater malt i en dus og delikat blåtone.
Fra kjøkkenet og spisestuen er det dobbel dør ut til markterrassen og hagen. Terrasse og plantekasser i Kebony. Området er svært solrikt med sin vestvendte orientering og herfra er det også fjordutsikt.
2. etasje:
Den lekre trappen med håndløper, vanger og trinn i heltre eik i kombinasjon med glass tar deg opp til boligens andre etasje.
Her ligger boligens stue, med nydelig atmosfære og fine lysforhold via store vinduer i tre retninger. Stuen har god størrelse og gode møbleringsmuligheter. Lekker rentbrennende peisovn - perfekt for kalde høst- og vinterkvelder. (Boligens tredje soverom er opprinnelig en del av stuen, selger bekoster oppføring av lettvegg m/dør jfr. plantegning merket med alternativ planløsning hvis kjøper ønsker dette).
Gulvet har 1-stavs parkett i lys utførelse med varme i gulv, som står godt til veggflater malt i en dus og delikat grønntone.
Her er det også terrassedør og trapp opp til den den solrike takterrassen, og sommerstid er det deilig å trekke ut for både avslapning og middager i varmen. Takterrassen har god størrelse og det er plassbygde lounge med levegg som skaper en lun atmosfære - alt i Kebony. I motsatt ende finnes det store spise- møblementet herfra er det flott utsikt over nærområdet og fjorden. I tillegg er det plassbygd utekjøkken med vedfyrt pizzaovn og stor grill.
Takterrassen og lun på vindfulle dager fordi huset er konstruert med høy parapet og glassfelter som skjermer for vind.
Soverom og garderobe:
To soverom ligger sammen i andre etasje, opprinnelig er boligen tegnet og godkjent med 3 soverom i denne etasjen. Selger valgte å fjerne lettveggen til det ene soverommet slik at stuen skulle bli større. Det kan enkelt tilbakestilles hvis det er behov for et ekstra soverom på dette planet.
Soverommene på dette planet har god størrelse. På gulvene er det 1-stavs parkett i lys utførelse med varme i gulv, som står godt til veggflater malt i en dus og delikat rosatone. Begge soverommene har "walk in" garderobe med plassbygde hyller, skuffer og skap.
Bad/wc/vaskerom:
Planløsningen er praktisk, med to bad, et eget vaskerom i kjelleren og et gjeste wc i 1. etasje. Badene er plassert i kjelleren og utenfor soverommene i andre etasje.
Badet oppe har et stilrent uttrykk med store vegg- og gulvfliser i grånyanser. Downlights er installert i taket, og badet har varmekabler og vegghengt toalett. En dusjnisje er utstyrt med rullestein, regnfallsdusj og innfellbare dører. I tillegg finnes det ett frittstående moderne badekar. Heldekkende servant med ett-greps armatur. Innredning med brede skuffer. Stort speilskap.
Det praktiske vaskerommet ligger også i kjelleren. Her det lagt fliser på gulv med varmekabler. Lekker innredning bestående av benkeplate med nedfeldt kum og ett-greps armatur. Underskap med nisjer for vaskemaskin og tørketrommel. Overskap med integrert led- belysning.
Kjelleren rommer for øvrig bodrom og trimrom (disse rommene er opprinnelig godkjent som en stor bod). Trimrommet har rømningsvindu.
Del av kjeller med egen inngang:
Rom benyttet som soverom (opprinnelig byggemeldt som trimrom, ikke godkjent for varig opphold).
Dagens eier benytter dette rommet som et stort lekkert hovedsoverom. Dette rommet har egen separat inngang utenfra, rømningsvindu og i veggen mot badet er det opplegg for hybelkjøkken.
Gulvet har 1-stavs parkett i lys utførelse med varme i gulv, som står godt til veggflater malt i en dus og varm gråtone. På den ene veggen er det lagt eikespiler. Skyvedørsgarderobe.
Badet i kjelleren ligger i tilknytning til det som benyttes som hovedsoverom (opprinnelig byggemeldt som trimrom, ikke godkjent for varig opphold). Her er det lagt microsement på gulv og vegger. Downlights er installert i taket, og badet har varmekabler og vegghengt toalett. Stor dusjnisje med glasddører med hengsler, dusjarmatur og blandebatterier i messing. Stor heldekkende dobbelservant med to ett- greps armaturer. Innredning med brede skuffeseksjoner. Stort rundt speil med integrert belysning.
Kort fortalt:
- Attraktiv funkisbolig over tre plan.
- Stort og innholdsrikt familiehjem.
- God fleksibilitet; egen inngang nede.
- Parkering i dobbelgarasje med elbil lader.
- Flott takterrasse med fantastisk utsikt.
- Romslig markterrasse mot vest.
- Gode solforhold på eiendommen.
- Varme i gulv i alle oppholdsrom.
- Danfoss Link styrer varmen fra display eller fra telefonen.
- Moderne og velutstyrt kjøkken.
- Godt med skap- og benkeplass.
- Barløsning i overgang til spisestuen.
- Alle hvitevarene er integrerte.
- Flott stue med store vindusflater og trapp opp til takterrassen.
- To flislagte bad/wc, ett med badekar.
- Gjestetoalett og eget vaskerom.
- Ekstra lagring i stor kjellerbod.
- Kabony på takterrasse og markterrasse.
For ytterligere informasjon, les vedlagte selgers egenerklæring og tilstandsrapport.
Løsøre og tilbehør
Vi viser til liste fra Norges Eiendomsmeglerforbund som gjelder fra 01.01.2020 angående løsøre og tilbehør.
Hvitevarer på kjøkken medfølger.
Grill på markterrasse og takterrasse medfølger ikke, ei heller pizzaovn på takterrassen.
Oppvarming
Boligen er bygget iht. TEK 10 med fokus på energieffektivitet med bl.a. balansert varmegjenvinnende ventilasjonsanlegg med ca. 80% gjenvinningseffekt av varmeforbruket som hjelper med å holde strømkostnadene lave.
Elektrisk oppvarming med gulvvarme i samtlige oppholdsrom. Varmen styres gjennom Danfoss Link som enten kan styres gjennom display plassert i gang eller via telefonen.
I tillegg er det rentbrennene og moderne peisovn i stuen.
Dersom beboelsesrom ikke har vegg- eller fastmonterte varmekilder ved visning følger dette heller ikke med.
Ferdigattest/brukstillatelse
Det foreligger ferdigattest på eiendommen, datert 27.06.2019. Denne kan fås ved henvendelse til megler.
Følgende avvik mellom godkjente byggetegninger og dagens løsning er registrert. Deler av stuen i 2. etasje er opprinnelig godkjent som soverom (kan enkelt tilbakestilles dersom dette er ønskelig). Opprinnelig bod i kjeller er delt inn i bod samt trimrom.
Rom i kjelleren som benyttes som soverom er opprinnelig byggemeldt som trimrom jfr. byggetegninger og er ikke godkjent til varig opphold. Innredning av rommene til bruk for varig opphold er ikke bruksendret/omsøkt og er heller ikke godkjent av kommunen. Konsekvensen ved søknad kan være at rommet ikke godkjennes som varig opphold og at rommet da må brukes som bod/midlertidig oppbevaring.
Kjøper overtar alt ansvar, kostnad og risiko for dette videre.
Tinglyste heftelser og rettigheter
Eiendommen overdras fri for pengeheftelser.
Sameiet har legalpant for krav mot sameieren som følger av sameieforholdet iht. eierseksjonsloven § 31. Pantet er begrenset oppad til 2G, (G = folketrygdens grunnbeløp).
Det er tinglyst følgende servitutter på sameiets eiendom.
Dagboknr. 118, tinglyst 10.02.1922:
Best. om deleforbud, benyttelse m.m. Dokumentet er håndskrevet og vanskelig å tyde, men hefter i sameiets eiendom. Kjøper overtar ansvaret for servitutten. Kopi av dokumentet kan fås ved henvendelse til megler.
Dagboknr. 3053, tinglyst 24.03.1948:
Tomten må ikke utstykkes og bygninger som oppføres må ikke benyttes til sykehus, fabrikk, smie e.l., likesom der ikke må drives noen virksomhet som ved røk, larm eller lukt kan sjenere naboene.
Dagboknr. 4869, tinglyst 27.04.1950:
Munkerudåsen godkjennes inntil videre i sin nåværende bredde 4 meter bred kjørebane. Ved evt. utvidelse av vei til regulert bredde, må eiendommen vederlagsfritt avstå nødvendig regulert veigrunn, samt kunne bli pålagt å opparbeide vei (med fortau og kloakk) langs tomtens grense.
Dagboknr. 4915, tinglyst 28.04.1950:
Ingen rom i kjeller er godkjent for varig opphold. Gjelder gammel bebyggelse på eiendommen.
Dagboknr. 5356, tinglyst 08.05.1950:
Best. om vann-/kloakkledning.
Dagboknr. 470, tinglyst 12.01.1952:
Eiendommen (bnr. 127) plikter å ikke bebygge nærmere enn i vedtektsmessig avstand fra det våningshus på bnr. 129 (Munkerudåsen 25) hvis beliggenhet er godkjent av reguleringsvesenet 28.12.1951 i 3 m avstand fra grensen.
Dagboknr. 10946, tinglyst 19.04.1979:
Eiendommen (bnr. 127) samtykker at naboeiendommen bnr. 128 (Munkerudåsen 23) bebygges inntil 3,34 m fra bnr. 127 sin grense. Bnr 127 forplikter seg da til ikke å bebygge eiendommen nærmere enn bygningslovgivningens bestemmelser om avstand mellom bygninger tilsier.
Dagboknr. 95270, tinglyst 02.02.2012:
Grensegangssak mellom bnr. 127, 128 og 129.
Dagboknr. 1009098, tinglyst 30.10.2015.
Munkerudåsen godkjennes inntil videre i sin nåværende bredde. Ved evt. utvidelse av vei til regulert bredde, må eiendommen vederlagsfritt avstå nødvendig regulert veigrunn, samt kunne bli pålagt å opparbeide vei (med fortau og kloakk) langs tomtens grense.
Servituttene vil følge eiendommen. Kjøpers bank vil få pant etter ovennevnte heftelser og servitutter.
Eventuell adgang til utleie
Den del av boligens kjeller (trimrom som benyttes som soverom m/opplegg for hybelkjøkken) er klargjort for hybel er ikke godkjent til varig opphold eller som separat boenhet av kommunen. Konsekvensen ved søknad kan være at rommet ikke godkjennes som varig opphold og at rommet da må brukes som trimrom og dermed heller ikke kan leies ut. Kjøper overtar alt ansvar og risiko for dette videre.
Det gjøres oppmerksom på at det er krav til forsvarlige radonnivåer ved utleie. Boligen er oppført i iht. TEK 10 med radonduk. Det er ikke gjennomført radonmåling på denne boligen.
Beliggenhet og tomteforhold
Beliggenhet og tomteforhold
Beliggenhet
Munkerudåsen 21A har en meget attraktiv beliggenhet i et veletablert og populært villaområde på Nordstrand. Stille og meget barnevennlig bomiljø med gangavstand til alt området har å by på bl.a.: Munkerud skole, nærbutikk, offentlig kommunikasjon og diverse service tilbud på Sæter Torg. På Sæter finner du et variert servicetilbud som inkl. flere cafeer og spisesteder slik som Samson, Norlaks, Poppel vinbar, Egon, og Joe & The Juice. Flere dagligvareforretninger som Rema 1000, Meny, og Gutta på Haugen. Apotek, bokhandel, Mester Grønn, samt flere nisje- og klesforretninger. Fortsetter du forbi Sæter Torg kommer du straks til Holtet med flere butikker, deriblant den populære delikatessebutikken Jacobs, Åpent Bakeri, Kaffebrenneriet, samt andre nisjebutikker. Noen minutter unna på sykkel eller i bil finner du bydelens nærsenter, Lambertseter Senter, med sitt rikelige utvalg av over 80 butikker og flere spisesteder, samt Vinmonopol, Deichmanns bibliotek og Symra Kino. På Ljan finner du søndagsåpen Joker butikk. Istanbul Grønnsakshandel på Hauketo, med et ypperlig utvalg av frukt og grønt, som også er søndagsåpent.
Gangavstand til Sæter og Ljabru trikkestasjon, samt bussholdeplasser. Det er også kun en kort rusletur til Hauketo som er et knutepunkt for offentlig kommunikasjon. Her finner man tog, lokale busser, ekspressbusser, samt flybuss til Gardermoen. Drive & park ved Hauketo togstasjon er ypperlig tilbud for de som ønsker å både tenke miljøbevisst og som samtidig skal rekke henting av barn, handling og andre ting i en travel hverdag. (Se gjerne www.ruter.no for detaljer om ruter og tidstabeller).
Området byr ellers på et trivelig miljø og er et attraktivt bosted for de som ønsker nærhet til et rikt frilufts- og fritidstilbud. Det finnes flotte badeplasser langs Bunnefjorden med bl.a. Katten, Sæterstrand, Ulvøya, Nordstrand bad, Fiskevollbukta og Hvervenbukta, som kun er en liten sykkeltur unna på deilige sommerdager. Kort gangavstand til flotte tur- og rekreasjonsområder langs Ljanselven og rundt Hvervenbukta, så her kan man starte søndagsturen fra sin egen bolig. Kort vei også til friområdet på Skredderjordet, med skøytebane om vinteren og fotball/sandvolleyball om sommeren. Alpinbakke på Sloreåsen.
Østmarka med flotte turmuligheter sommer som vinter er heller ikke langt unna, med badevann som Nøklevann og Rundvann, samt Oslo klatresenter som er Norges største klatresenter og Hauktjern utendørs klatrefelt. Mot sentrum finner man området rundt Ekebergsletta som kan tilby lysløype, idrettsanlegg, minigolfbane, ridesenter, husdyrpark, store friområder, den nye skulpturparken, Karlsborg Spiseforretning med «high tea» på lørdager og Ekebergrestauranten m.m.
Det er virkelig et rikt mangfold av tilbud i lokale idrettslag og foreninger, som f.eks.:
Nordstrand IF holder til på 'Niffen' med håndballhall og fotballbaner med kunstgress. NIF er viden kjent for sitt store miljø for håndball og fotball for barn i alle aldre, men har også egen triatlongruppe og et allsport-tilbud til funksjonshemmede. I Nordstrand Arena finner man treningssenter, kurs-/konferanselokaler og man kan i tillegg kjøpe både lunsj og middag til en billig penge i «Storstua».
Nordstrand Turnforening holder til i Leirskallen Turnhall, og har turn- og gymnastikktilbud for alle aldersklasser og nivåer.
Nordstrand tennisklubb (NTK) med uteanlegg i Seterveien og tennishall ved Nordseter skole i Ekebergveien.
Oslo Klatresenter ligger på Skullerud og er kun en sykkeltur unna leiligheten eller en liten biltur om vinteren. Lambertseter Svømmeklubb (LSVK) er en av landets fremste svømmeklubber og holder til i svømmehallen på Lambertseter Bad.
Bekkelaget sportsklubb (BSK) - håndball, fotball, m.m. Anlegg på Sportsplassen samt Ekeberghallen.
Lambertseter idrettsforening (LIF) med flott friidrettsanlegg og fotballbaner på Lambertseter har grupper for fotball, friidrett, håndball, innebandy, badminton og mer.
Kort avstand til områdets lokale alpinbakke - Sloreåsen (Ljan IF/Ljan Alpint).
Ormsund Roklubb på Malmøya og Oppegård båtforening ved Hvervenbukta.
Treningsstudio: Sats på Karlsrud og Lambertseter, BestHelse på Holtet, Evo på Sæter og treningssenter i Nordstrand Arena.
Ishockey i kanskje landets beste junioravdeling hos Manglerud Star i Manglerudhallen.
På Nordstrand og ellers i bydelen er det videre et rikt tilbud av foreninger og lag for dans, kor, musikk og diverse kultur, det lokale speiderlaget, samt mange andre typer idretter.
Adkomst
Munkerudåsen er en lite trafikkert villavei som strekker seg fra Breiens vei til Ole Moes vei. Det vil bli skiltet med Krogsveen visningsskilt ved fellesvisninger.
Barnehager, skoler og fritid
Flere private og offentlige barnehager i området.
Iflg. utdanningsetaten sogner Munkerudåsen 21A til Munkerud barneskole. Gangavstand til skoler på alle trinn. Steinerskole i krysset Nordstrandveien og Solveien.
Dersom ovennevnte skole- og barnehagetilbud er av vesentlig betydning for kjøper må interessenter selv sjekke med bydelsadministrasjonen. Bydelens barnehagetilbud kan studeres nærmere på Oslo kommunes hjemmesider: www.bydel-nordstrand.oslo.kommune.no
Beskrivelse av tomt
Eiertomt på 1 646 kvm som tilhører sameiet. Tomten er fellesareal, men hver seksjon har vedtektsfestet bruksrett til uteareal i naturlig tilknytning til boligen. Tomten er lett skrånende mot vest og det er fint plenareal som er innrammet av frodig hekk bestående av bøk og barlind. Markterrassen er stor og går over flere nivåer i terrenget og har god plass for møblement og med sin vestvendte orientering er området svært solrikt. På markterrassen er det laget lekre plantekasser som skaper et frodig og grønt miljø. Markterrasse og plantekasser i Kebony. Det er lagt bruddskifer på gangveien inn til boligen, arrondert med kantstein i granitt. Boligen er for øvrig godt belyst med moderne utelamper utelamper.
Parkering
Parkering i dobbelgarasje integrert i boligens 1. etasje med utvendig adkomst. Det er montert elbillader som følger salget.
Vei, vann og avløp
Eiendommen har adkomst via kommunal vei. Gårdsplass med felles vedlikeholdsansvar for sameiet. Det må påregnes snømåking vinterstid.
Eiendommen er tilknyttet kommunalt ledningsnett via private stikkledninger. Sameiet er ansvarlig for felles overvannspumpe og ledninger og eier er ansvarlig for private stikkledninger til bygningen.
Regulerings-og arealplaner
Eiendommen er regulert til boligformål i henhold til reguleringsplan S-4220, datert 15.03.2006, med tilhørende bestemmelser. Oslo bystyre vedtok en ny småhusplan 27.09.2023, men planen ble ikke godkjent av Kommunal- og distriktsdepartementet etter innsigelser fra Norges vassdrags- og energidirektorat (NVE). Eiendommer som omfattes av småhusplanen er derfor underlagt et midlertidig forbud mot tiltak (MFT), med enkelte unntak. Søknader som faller inn under unntakene i MFT behandles fortsatt - enten frem til sommeren 2026 eller til en ny plan er vedtatt. Dersom en ny plan ikke er godkjent innen den tid, vil den tidligere småhusplanen igjen kunne tre i kraft. For mer informasjon, ta kontakt med megler.
Follobanen er regulert i grunnen under området.
Utsnitt av plan med tilhørende bestemmelser kan fås ved henvendelse til megler.
Økonomi
Økonomi
Kommunale utgifter
Kommunale avgifter er kr 23 385,- for 2025. I dette inngår gebyr for vann, avløp, renovasjon og feiing/tilsyn.
Eiendomsskatten er kr. 13 683,- for 2025.
Nåværende eier har et strømforbruk som tilsvarer ca. 27 000 kwh. pr. år.
Boligen har en årlig forsikringspremie på kr 8.496,-.
Hver seksjon betaler kr. 250,- pr. mnd. for fremtidige felles utgifter.
Boligen er tilknyttet Viken Fiber som leverandør av fibernett og har avgift på kr 1 339,- pr. mnd. Tv-tuner/dekoder medfølger ikke.
Boligen er tilknyttet Sector alarmselskap som koster kr 2 400,-pr. år.
Utgiftene er basert på nåværende eiers forbruk og avtaler.
Formuesverdi
Formuesverdi for 2024 var kr 6 252 955,- ifølge skatteetaten. Beløpet forutsetter at eier bor fast i boligen (primærbolig).
Ved eventuell øvrig bruk av eiendommen (f.eks. fritidsbolig, pendlerbolig, utleieobjekt) var formuesverdien for 2023 kr 15 361 364,-
Formuesverdien justeres normalt årlig. Se skatteetaten.no for mer informasjon om fastsettelse av formuesverdien.
Omkostninger
14 600 000,00 Prisantydning
Omkostninger
365 000,00 Dokumentavgift til staten (2,5% av kjøpesum)
19 900,00 Gjensidige Boligkjøperpakke (valgfri)
545,00 Tinglysing panterettsdokument
545,00 Tinglysing skjøte
--------------------------------------------------------
385 990,00 Omkostninger totalt
--------------------------------------------------------
14 985 990,00 Totalpris inkl. omkostninger
--------------------------------------------------------
Tilbud om lånefinansiering
Megler formidler gjerne kontakt med rådgiver hos vår samarbeidspartner BN Bank. De har konkurransedyktige betingelser samt rask og løsningsorientert behandling av din lånesøknad. Krogsveen mottar et honorar dersom lån opprettes.
Betalingsbetingelser
Kjøpesum inkludert omkostninger, samt pantedokument tilknyttet eventuelt lån, skal være disponibelt hos megler 2 virkedager før overtagelsen.
Annen viktig informasjon
Annen viktig informasjon
Eier
Trude Christiane Rønnild Berglund og Patrik Olstad Berglund
Overtakelse
Etter nærmere avtale.
Boligselgerforsikring
Selger har i forbindelse med salget tegnet boligselgerforsikring levert av Gjensidige.
Boligselgerforsikringen dekker selgers ansvar etter avhendingsloven begrenset oppad til kr 14 millioner. Dersom kjøper oppdager forhold ved eiendommen som hen mener utgjør en mangel ved eiendommen, vil Gjensidige behandle reklamasjonen på vegne av selger. Forsikringsvilkår kan fås ved henvendelse til megler.
Vedlagt salgsoppgaven følger selgers egenerklæringsskjema og tilstandsrapport. Interessenter må sette seg inn i dokumentene før bud inngis.
Boligkjøperforsikring
Innen kontraktsmøtet må kjøper ta stilling til om det ønskes å bestille Boligkjøperpakken gjennom Gjensidige. I denne gunstige pakken er boligen ferdig forsikret og inkluderer rettshjelpsforsikring, også kalt Boligkjøperforsikring. Rettshjelpsforsikring gir trygghet og tilgang på profesjonell juridisk hjelp dersom det oppdages uventede feil eller mangler det første året etter overtagelse. Forsikringsselskapet behandler i så fall ethvert mangelskrav kjøper måtte ha overfor selger.
Boligkjøperpakken inkluderer bygningsforsikring for hus og hytte, innboforsikring, flytteforsikring og dobbel rentedekning - i situasjoner hvor kjøper ikke får solgt nåværende primærbolig.
Kjøper mottar ingen særskilt faktura for Boligkjøperpakken da kostnaden det første året legges til kjøpesummen for boligen. Det gjøres oppmerksom på Krogsveen mottar et honorar for denne formidlingen.
Produktark for Boligkjøperpakken ligger vedlagt i salgsoppgaven.
Dersom ikke boligkjøperpakke ønskes kan kun rettshjelpsforsikring, også kalt boligkjøperforsikring, tegnes særskilt via megler. Rettshjelpsforsikringen varer i 5 år fra overtagelse og leveres gjennom Gjensidige. Ta kontakt med megler for ytterligere informasjon.
Selskap og privatpersoner som driver med kjøp/salg/utvikling som ledd i egen næringsvirksomhet kan ikke tegne boligkjøperpakke eller rettshjelpsforsikring.
Budgivning
Forbrukerinformasjon om budgivning er vedlagt denne salgsoppgaven og er også på vår hjemmeside Krogsveen.no. Alle bud og budforhøyelser må inngis skriftlig. I tillegg må legitimasjon være fremlagt sammen med signatur fra budgiver.
Vi oppfordrer til å gi bud elektronisk via GI BUD-knappen på eiendommens hjemmeside på Krogsveen.no. Da vil samtlige vilkår bli oppfylt.
Eventuelle forhøyelser eller endringer av budet kan bekreftes pr SMS eller på e-post. Vi oppfordrer alltid til å kontakte megler pr. telefon i tillegg da forsinkelser i SMS og e-post kan forekomme.
For at budene skal kunne bli behandlet og videreformidlet skriftlig til alle involverte parter, må alle bud ha en tilstrekkelig lang akseptfrist, jf. eiendomsmeglingsforskriften § 6-3.
Selger må også skriftlig akseptere budet før aksept kan formidles til budgiver. Akseptfrist bør derfor være på minimum 30 minutter, og budforhøyelser må derfor skje i god tid før fristens utløp.
Bud i forbrukerforhold kan uansett ikke settes med kortere frist enn kl. 12.00 første virkedag etter siste annonserte visning. I tillegg kan ikke budet ha forbehold om at det skal holdes hemmelig ovenfor øvrige interessenter. Megler har iht lov om eiendomsmegling ikke anledning til å videreformidle disse budene, og de vil dermed heller ikke bli journalført.
Etter at eiendommen er solgt vil kjøper og selger få tilsendt budjournal. Øvrige budgivere kan få utlevert kopi av budjournalen i anonymisert form.
Hvitvaskingsreglene
I henhold til lov om hvitvasking og terrorfinansiering har megler plikt til å gjennomføre kontrolltiltak overfor kunder, herunder fullmektiger. Dette innebærer bl.a. å bekrefte kunders og reelle rettighetshaveres identitet på bakgrunn av fremvist gyldig legitimasjon eller på annen godkjent måte, samt å innhente opplysninger om kundeforholdets formål og tilsiktede art.
Dersom slike kundetiltak ikke kan gjennomføres, kan megler ikke etablere kundeforholdet eller utføre transaksjonen.
Hvis kjøper ikke bidrar til gjennomføring av kundekontrollen og dette fører til at transaksjonen blir forsinket eller ikke kan gjennomføres, vil dette ansees som mislighold av avtalen og gi selger rettigheter etter avhendingslova kapittel 5. I tilfeller der selger ikke bidrar til gjennomføring av løpende kundekontroll underveis i oppdraget, er det selger som misligholder sine forpliktelser etter avtalen og gi kjøper rettigheter etter avhendingslovens kapittel 4. Partene er selv ansvarlige for eventuelle kostnader og ansvar dette kan medføre. Eiendomsmegleren eller eiendomsmeglingsforetaket kan ikke holdes ansvarlig for de konsekvenser dette vil kunne få for partene eller andre som har interesser i eiendomshandelen.
Kjøper oppfordres til å innbetale kjøpesummen som ikke kommer fra låneinstitusjon i én samlet innbetaling fra egen konto i norsk bank. Megler har plikt til å melde fra til Økokrim om eiendomshandler som fremstår som mistenkelige. Melding sendes Økokrim uten at partene varsles.
Personopplysningsloven
I henhold til personopplysningsloven gjør vi oppmerksom på at interessenter kan bli registrert for videre oppfølging.
Lovanvendelse
Generelle bestemmelser
Salgsoppgaven er basert på de opplysningene selger har gitt til megler, den bygningssakyndiges tilstandsrapport, samt opplysninger innhentet fra kommunen, Kartverket og andre tilgjengelige kilder. Det er viktig at kjøper setter seg grundig inn i alle salgsdokumentene, herunder salgsoppgave, tilstandsrapport og selgers egenerklæring. Kjøper anses kjent med forhold som er tydelig beskrevet i salgsdokumentene, og slike forhold kan ikke påberopes som mangler. Dette gjelder uavhengig av om kjøper har lest dokumentene. Alle interessenter oppfordres til å undersøke eiendommen nøye, gjerne sammen med fagkyndig før bud inngis. Kjøper som velger å kjøpe usett kan ikke gjøre gjeldende som mangel noe han burde blitt kjent med ved undersøkelsen.
Dersom det er behov for avklaringer, anbefaler vi at interessenter rådfører seg med eiendomsmegler eller egne rådgivere før det legges inn bud.
En bolig som har blitt brukt i en viss tid, har vanligvis blitt utsatt for slitasje og skader kan ha oppstått. Slik bruksslitasje må kjøper regne med, og det kan avdekkes enkelte forhold etter overtakelse som nødvendiggjør utbedringer. Normal slitasje og skader som nødvendiggjør utbedring, er innenfor hva kjøper må forvente og vil ikke utgjøre en mangel.
Kjøper og selgers rettigheter og plikter reguleres av avtalen mellom partene, samt informasjonen som har vært tilgjengelig for kjøperen i forbindelse med handelen. Avtalen utfylles av avhendingsloven, og det gjelder ulike avtalevilkår avhengig av om kjøper er forbrukerkjøper eller ikke. Dette er nærmere beskrevet nedenfor.
På grunn av ulike avtalevilkår kan selger vurdere bud fra en som ikke er forbruker, ulikt fra en forbrukers bud. Dersom kjøper ikke er forbruker, er selger sitt mulige mangelsansvar begrenset fordi eiendommen selges "som den er". Selger kan ikke ta «som den er»- forbehold overfor en forbrukerkjøper. Selv et lavere bud fra en som ikke er forbruker kan foretrekkes fordi begrensningen i mulig mangelsansvar kan ha egenverdi for selger. Selger står fritt til å forkaste eller akseptere ethvert bud, og er for eksempel ikke forpliktet til å akseptere høyeste bud.
Budgiver skal i budskjema avgi egenerklæring om budgiver er forbruker eller næringsdrivende/ person som hovedsakelig handler som ledd i næringsvirksomhet. Budgivere får informasjon dersom andre bud er inngitt av en som ikke er forbruker.
Forbrukerkjøp - definisjon
Med forbrukerkjøp menes kjøp av eiendom når kjøperen er en fysisk person som ikke hovedsakelig handler som ledd i næringsvirksomhet.
Forbruker – avtalevilkår
Eiendommen har en mangel dersom den ikke er i samsvar med kravene som følger av avtalen, eller det foreligger brudd på bestemmelsene i avhendingsloven §§ 3-2 til 3-8. Hvis eiendommen ikke er i samsvar med det kjøperen må kunne forvente ut ifra alder, type og synlig tilstand, kan det være grunnlag for mangelskrav. Det samme gjelder hvis det er holdt tilbake eller gitt uriktige opplysninger om eiendommen. Dette gjelder likevel bare dersom man kan gå ut ifra at det virket inn på avtalen at opplysningen ikke ble gitt eller at mangelskravet ikke blir rettet i tide på en tydelig måte.
Boligen kan ha en mangel etter avhendingsloven § 3-3 andre ledd, dersom det er avvik mellom opplyst og faktisk innvendig areal, forutsatt at avviket er på 2% eller mer og minimum 1 kvm.
Ved beregning av et eventuelt prisavslag eller erstatning må kjøper selv dekke tap/kostnader opptil et beløp på kr 10 000 (egenandel).
Ikke-forbruker (næringsdrivende) – definisjon
Hvis kjøper er en juridisk person, eller en fysisk person som hovedsakelig handler som ledd i næringsvirksomhet, vil kjøpet ikke anses som et forbrukerkjøp.
Ikke-forbruker – avtalevilkår
Eiendommen har en mangel dersom den ikke er i samsvar med kravene som følger av avtalen.
Eiendommen selges «som den er», og selgers ansvar utover det konkret avtalte er da begrenset etter avhendingsloven § 3-9, første ledd andre setning.
Avhendingsloven § 3-3 andre ledd fravikes, og hvorvidt boligens arealsvikt utgjør en mangel vurderes etter avhendingsloven § 3-8.
Informasjon om kjøpers undersøkelsesplikt, herunder oppfordringen om å undersøke eiendommen nøye, gjelder også for kjøpere som ikke anses som forbrukere.
Det forutsettes at hjemmel overføres til kjøper. Hvis kjøper ikke ønsker hjemmelsoverføring av eiendommen, må det tas forbehold om dette i budet.
Meglers vederlag
Meglers vederlag betales av selger og er avtalt til:
Vederlag: 0,70 % av salgssummen inkl. eventuell fellesgjeld. Minimumsprovisjon er kr 60 000,00
Vederlag:
Kontroll av hjemmel og heftelser kr 2 900,00
Markedsføringspakke kr 29 900,00
Oppgjør kr 7 500,00
Tilrettelegging kr 17 000,00
Visninger pr stk / Overtagelse kr 4 000,00
Utlegg:
Innhenting av offentlig opplysninger Oslo kommunale avgifter kr 265,00
Innhenting av offentlig opplysninger Oslo vann og avløp kr 163,00
Innhenting av offentlig opplysninger, reg.best Oslo-eneb/rekkeh kr 913,00
Tinglysing sikring kr 545,00
Andre utgifter:
AX tilstandsrapport enebolig kr 20 625,00
Boligselgerforsikring Gjensidige Eiet - regnes av prisantydning kr 40 000,00
Boligstyling/rådgivning kr 2 000,00
Foto - Dag og kveld kr 9 000,00
Opplysninger om oppdraget
Oppdragsnummer 44-0219/25
Eiendomsmegler Krogsveen AS, avd. Nordstrand
Ekebergveien 228 B, 1162, OSLO
950 007 613
Oppdragets KR-kode KR44.25219
Dato
Sist oppdatert: 19. mars 2026 kl. 16:46
Dokumenter
Dokumenter
PDF – 508 KB
PDF – 744 KB
PDF – 19 MB
PDF – 1008 KB
PDF – 455 KB
PDF – 4 MB
PDF – 312 KB
PDF – 29 KB
PDF – 127 KB
PDF – 392 KB
Område
Legg til steder som er viktige for deg
Visning
For å delta på visning, ber vi om at du melder deg på. Da sikrer vi at du får nødvendig informasjon og at det er satt av tilstrekkelig med tid. Kontakt megler dersom annet tidspunkt ønskes. Husk å lese salgsoppgaven før visningen, så du stiller forberedt.
Ønsker du kun å bli holdt orientert, kan du fra eiendommens hjemmeside få varsel om solgtpris, eller kontakte megler.
Lurer du på noe?
Unngå doble boligrenter
Vi tilbyr gunstig forsikring.
Vurderer du utleie?
Få et tilbud fra Utleie KrogsveenHva koster lånet?
Sjekk estimert lånekostnadVil du varsles om lignende boliger?
Ved å lagre ditt boligsøk hos oss får du beskjed når vi har en bolig som ligner denne, før den legges ut på markedet!

