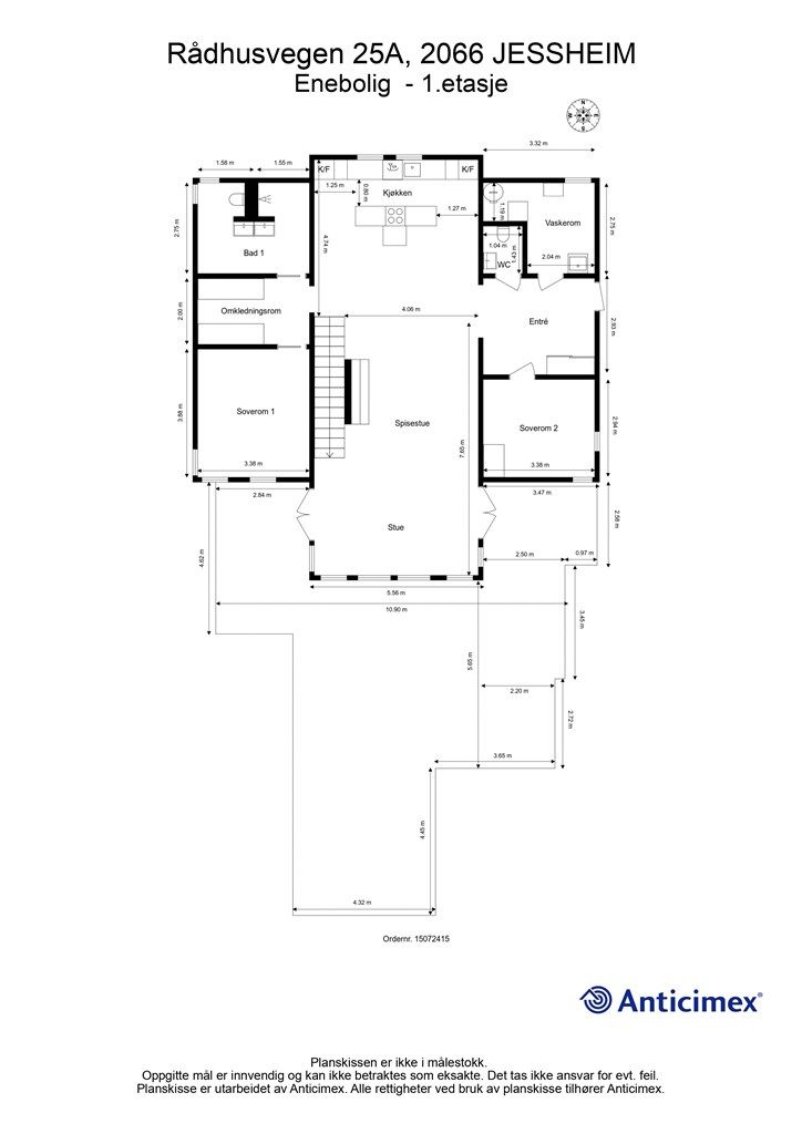
Rådhusvegen 25A
12 700 000 kr
261 m²
6 soverom
Solgt

Eksklusiv funkisbolig (2012) med høy standard midt i Jessheim | Parkmessig, skjermet hage med hagestue | Dobbeltgarasje
Prisantydning
12 700 000 krOmkostninger
338 490 krTotalpris
13 038 490 kr
Pris
Bruksareal
329 m²BRA-I (internt bruksareal)
261 m²BRA-E (eksternt bruksareal)
68 m²TBA (terrasse-balkongareal)
125 m²
Areal
Etasje
2Byggeår
2012Soverom
6 soveromBad
2 badTomteareal
769 m² (eiet)Type
Enebolig - FrittliggendeEierform
EietFasiliteter
Garasje/P-plass og Balkong/TerrasseEnergimerke
Rød C
Nøkkelinfo
Unngå doble boligrenter
Vi tilbyr gunstig forsikring.
Vurderer du utleie?
Få et tilbud fra Utleie KrogsveenHva koster lånet?
Sjekk estimert lånekostnadBeskrivelse
Kort om eiendommen
Rådhusvegen 25A er en eksklusiv enebolig fra 2012 med gjennomgående kvalitetsmaterialer. Huset har to etasjer med heltre gulv, naturskifer, granitt og eik, seks soverom, to stuer, to bad, garderoberom, separat wc, vaskerom og god lagringsplass. Store vindusflater gir rikelig med naturlig lys. Balansert ventilasjon og vannbåren gulvvarme i alle rom.
Fra stue er det utgang til hage hvor alt er tilrettelagt for hyggelige stunder, lek og moro. Her er det en stor, overbygget terrasseplatting og adkomst til plenareal med boltreplass for barna. Den flotte hagestuen har brede skyvedører med store vindusflater av helårsglass som åpner opp mot hagen.
Boligen ligger i et attraktiv og meget sentralt område med kort vei til servicetilbud, offentlig kommunikasjon og flotte rekreasjonsområder.
Område
Legg til steder som er viktige for deg
På flyttefot? Tenk kjøp og salg samtidig.
Få din egen rådgiver gjennom hele kjøps- og salgsprosessen. Det starter med en verdivurdering.
Unngå doble boligrenter
Vi tilbyr gunstig forsikring.
Vurderer du utleie?
Få et tilbud fra Utleie KrogsveenHva koster lånet?
Sjekk estimert lånekostnadVil du varsles om lignende boliger?
Ved å lagre ditt boligsøk hos oss får du beskjed når vi har en bolig som ligner denne, før den legges ut på markedet!

