Cort Adelers gate 20
5 650 000 kr
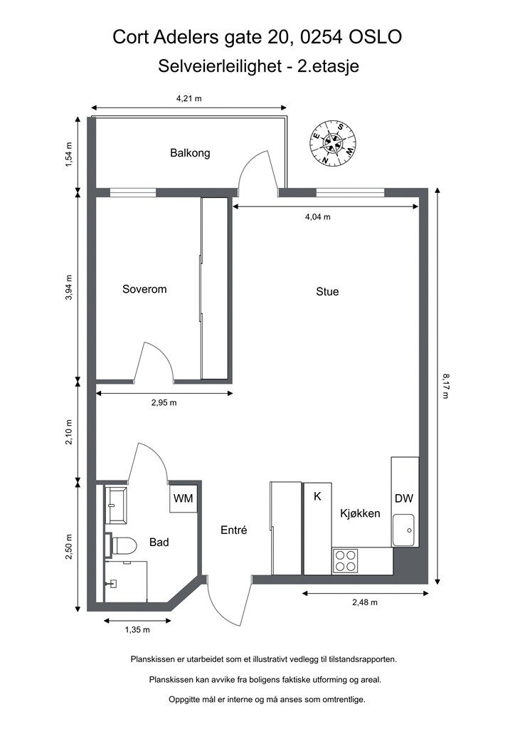
58 m²
1 soverom
Solgt

Vika/Frogner
Lys & delikat 2-roms m/god planløsning. Varmtvann inkl. i fk. Attraktiv beliggenhet nær Solli plass. Heis. Balkong!
Prisantydning
5 650 000 krAndel fellesgjeld
44 456 krOmkostninger
153 390 krTotalpris
5 847 846 kr
Pris
Bruksareal
60 m²BRA-I (internt bruksareal)
58 m²BRA-E (eksternt bruksareal)
2 m²TBA (terrasse-balkongareal)
6 m²
Areal
Etasje
2Byggeår
1989Soverom
1 soveromBad
1 badType
EierleilighetEierform
EierseksjonFasiliteter
Heis og Balkong/TerrasseFellesutgifter
4 086 krEnergimerke
Gul D
Nøkkelinfo
Unngå doble boligrenter
Vi tilbyr gunstig forsikring.
Vurderer du utleie?
Få et tilbud fra Utleie KrogsveenHva koster lånet?
Sjekk estimert lånekostnadBeskrivelse
Kort om eiendommen
Velkommen til Cort Adelers gate 20!
En lys og praktisk leilighet med gjennomtenkt planløsning og attraktiv beliggenhet midt mellom Solli plass og Tjuvholmen.
Bygget har inngang fra Huitfeldts gate og leiligheten ligger fint til i 2. etasje. Leiligheten byr på en åpen planløsning mellom stue og kjøkken som git et stort og sosialt oppholdsrom. Fra stuen har du utgang til en hyggelig, overbygd balkong på 6 kvm. Soverommet er romslig og ligger praktisk til ved stuen. Her bor du sentralt og rolig, med restauranter, butikker, treningssentre, parker og kollektivtransport rett utenfor døren.
Høydepunkter:
- Varmtvann inkludert i felleskostnadene
- Heis og balkong
- Bod i kjeller
- Nærhet til alt du trenger i hverdagen
- God planløsning
- Populær og sentral beliggenhet
Velkommen til visning!
Område
Legg til steder som er viktige for deg
På flyttefot? Tenk kjøp og salg samtidig.
Få din egen rådgiver gjennom hele kjøps- og salgsprosessen. Det starter med en verdivurdering.
Unngå doble boligrenter
Vi tilbyr gunstig forsikring.
Vurderer du utleie?
Få et tilbud fra Utleie KrogsveenHva koster lånet?
Sjekk estimert lånekostnadVil du varsles om lignende boliger?
Ved å lagre ditt boligsøk hos oss får du beskjed når vi har en bolig som ligner denne, før den legges ut på markedet!

























