Fjellvegen 2
3 290 000 kr
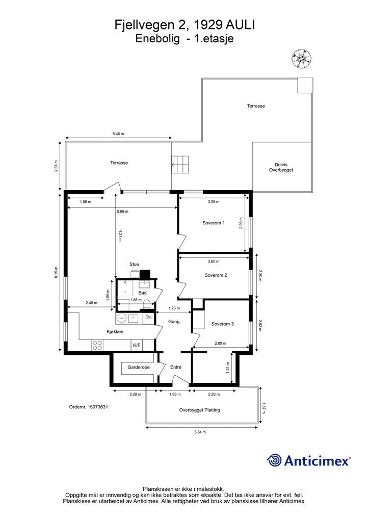
87 m²
3 soverom
Solgt
Sjarmerende enebolig på Auli med nyoppusset bad, stor tomt og nydelig utsikt!
Prisantydning
3 290 000 krOmkostninger
103 240 krTotalpris
3 393 240 kr
Pris
Bruksareal
104 m²BRA-I (internt bruksareal)
87 m²BRA-E (eksternt bruksareal)
17 m²TBA (terrasse-balkongareal)
25 m²
Areal
Etasje
1Byggeår
1967Soverom
3 soveromBad
1 badTomteareal
1 029 m² (eiet)Type
Enebolig - FrittliggendeEierform
EietFasiliteter
Garasje/P-plass og Balkong/TerrasseÅrlig velavgift
300 krEnergimerke
Gul F
Nøkkelinfo
Unngå doble boligrenter
Vi tilbyr gunstig forsikring.
Vurderer du utleie?
Få et tilbud fra Utleie KrogsveenHva koster lånet?
Sjekk estimert lånekostnadBeskrivelse
Kort om eiendommen
Velkommen til Fjellvegen 2 - En koselig enebolig med alt på ett plan beliggende i et stille og rolig område på Aulifeltet med nydelig utsikt! Boligen ligger i et veletablert og barnevennlig boligområde med kort vei til skoler, barnehager og offentlig kommunikasjon.
Tomten er skjermet med hekk, og er opparbeidet med gressplen, drivhus, busker og beplantninger. Boligen har i tillegg en svært romslig terrasse med flott utsyn og perfekt til solnedgang. På tomten er det en enkel garasje, samt at det er flere biloppstillingsplasser på gårdsplassen.
HØYDEPUNKTER
- Tomt på 1 029 kvm
- Stue med vedovn og varmepumpe
- Baderom nytt fra 2017
- Flott utsikt mot Glomma
- Barnevennlig beliggenhet på boligfelt
- Ny romslig terrasse
- 3 soverom
- Enkelgarasje
Velkommen!
Område
Legg til steder som er viktige for deg
På flyttefot? Tenk kjøp og salg samtidig.
Få din egen rådgiver gjennom hele kjøps- og salgsprosessen. Det starter med en verdivurdering.
Unngå doble boligrenter
Vi tilbyr gunstig forsikring.
Vurderer du utleie?
Få et tilbud fra Utleie KrogsveenHva koster lånet?
Sjekk estimert lånekostnadVil du varsles om lignende boliger?
Ved å lagre ditt boligsøk hos oss får du beskjed når vi har en bolig som ligner denne, før den legges ut på markedet!




