Lerstadvegen 145B
4 900 000 kr
118 m²
3 soverom
Solgt

Lerstadbakken
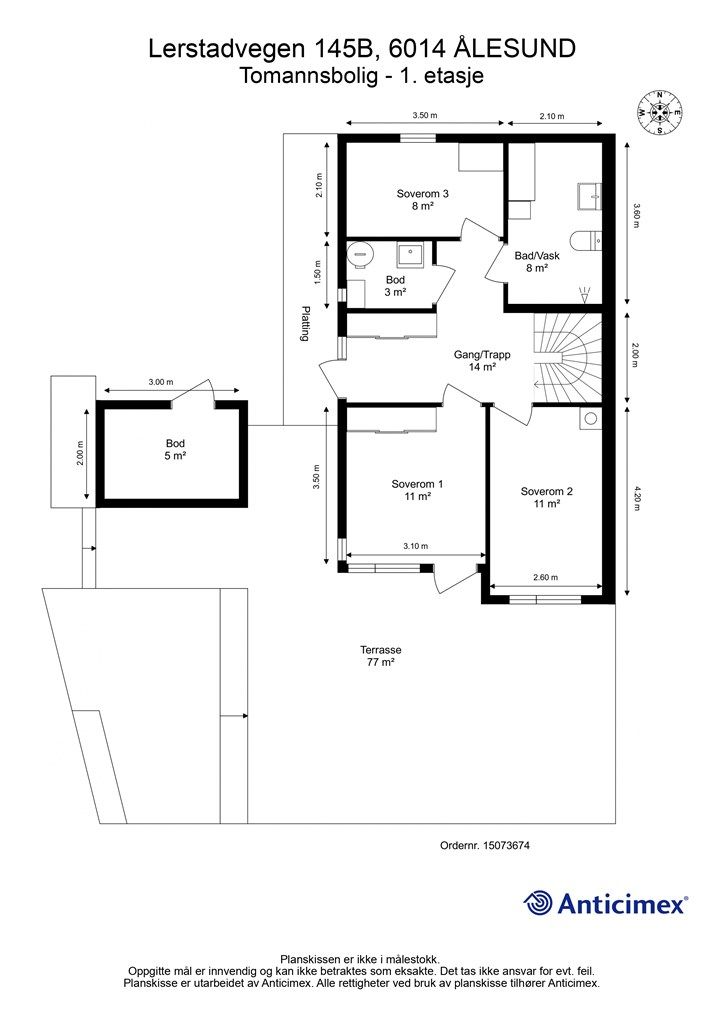
Moderne halvpart av vertikaldelt tomannsbolig | 3 soverom | Terrasse 77 kvm + balkong 6 kvm | Carport | Utsikt
Prisantydning
4 900 000 krOmkostninger
143 490 krTotalpris
5 043 490 kr
Pris
Bruksareal
123 m²BRA-I (internt bruksareal)
118 m²BRA-E (eksternt bruksareal)
5 m²TBA (terrasse-balkongareal)
83 m²
Areal
Etasje
2Byggeår
2016Soverom
3 soveromBad
1 badType
Halvpart vertikaldelt boligEierform
EierseksjonFasiliteter
Garasje/P-plass og Balkong/TerrasseFellesutgifter
800 kr
Nøkkelinfo
Unngå doble boligrenter
Vi tilbyr gunstig forsikring.
Vurderer du utleie?
Få et tilbud fra Utleie KrogsveenHva koster lånet?
Sjekk estimert lånekostnadBeskrivelse
Kort om eiendommen
Moderne halvpart av vertikaldelt tomannsbolig oppført over 2 plan
* 3 soverom.
* Stor terrasse på 77 kvm med markise på deler av terrassen
* Balkong 6 kvm i 2. etasje med markise.
* Carport med bod i bakkant
* God og arealeffektiv planløsning.
* Gangavstand til skole og barnehage.
* Sentral beliggenhet med nærhet til butikker, NTNU, NMK, Moa og sentrum.
* Flott turterreng på Høgenakken og Hatlaåsen.
Velkommen til visning! Husk å meld deg på!
Område
Legg til steder som er viktige for deg
På flyttefot? Tenk kjøp og salg samtidig.
Få din egen rådgiver gjennom hele kjøps- og salgsprosessen. Det starter med en verdivurdering.
Unngå doble boligrenter
Vi tilbyr gunstig forsikring.
Vurderer du utleie?
Få et tilbud fra Utleie KrogsveenHva koster lånet?
Sjekk estimert lånekostnadVil du varsles om lignende boliger?
Ved å lagre ditt boligsøk hos oss får du beskjed når vi har en bolig som ligner denne, før den legges ut på markedet!

