Trygve Strømbergs vei 6C
4 300 000 kr
106 m²
3 soverom
Solgt
PRINSDAL
Flott beliggende 4-roms selveier - 2 balkonger med gode solforhold - pent utsyn mot vest - 3 soverom - 2 bad - garasje
Prisantydning
4 300 000 krAndel fellesgjeld
73 577 krOmkostninger
120 360 krTotalpris
4 493 937 kr
Pris
Bruksareal
110 m²BRA-I (internt bruksareal)
106 m²BRA-E (eksternt bruksareal)
4 m²TBA (terrasse-balkongareal)
20 m²
Areal
Etasje
2Byggeår
1979Soverom
3 soveromBad
2 badType
EierleilighetEierform
EierseksjonFasiliteter
Garasje/P-plass og Balkong/TerrasseFellesutgifter
4 767 krEnergimerke
Rød E
Nøkkelinfo
Unngå doble boligrenter
Vi tilbyr gunstig forsikring.
Vurderer du utleie?
Få et tilbud fra Utleie KrogsveenHva koster lånet?
Sjekk estimert lånekostnadBeskrivelse
Kort om eiendommen
Gjennomgående og pen 4-roms med naturskjønn beliggenhet.
Området har fine, frodige grøntområder og trivelig boområde. Dette er et veletablert, attraktivt og barnevennlig boområde i idylliske, grønne omgivelser.
Enkel adkomst til leiligheten - kun én etasje opp fra blokkens inngangsparti
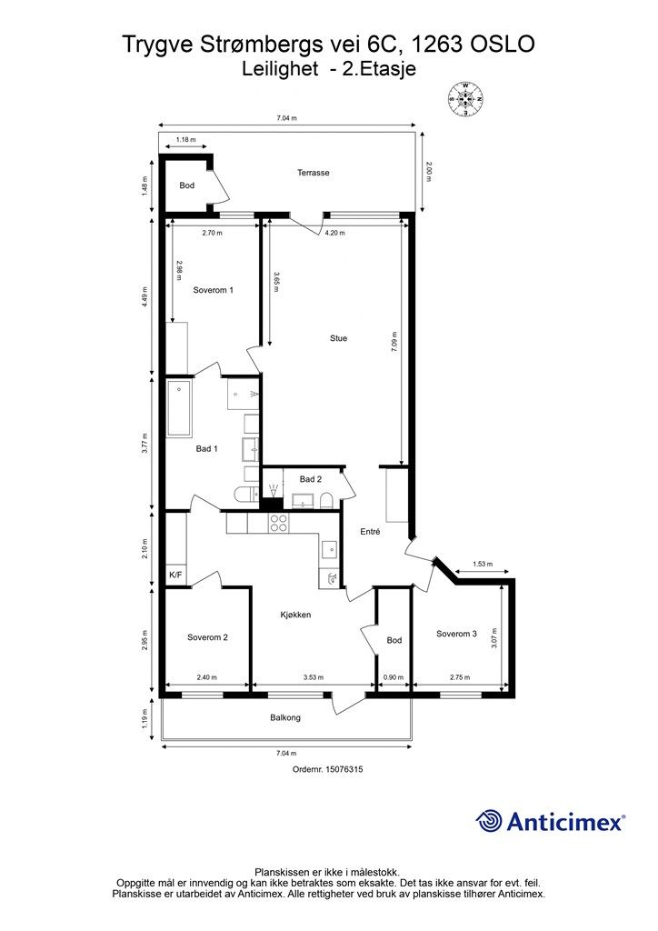
Romslig leilighet med god planløsning. Leiligheten inneholder; entré, stor stue, kjøkken, 3 soverom, 2 bad og bodrom
To balkonger orientert mot hhv øst (med sol på morgen og formiddag) og vest (med ettermiddag- og kveldssol). Balkong orientert mot vest med pent utsyn og uten innsyn
Garasjeplass, samt bod i blokkens underetasje og felles sykkelbod
Område
Legg til steder som er viktige for deg
På flyttefot? Tenk kjøp og salg samtidig.
Få din egen rådgiver gjennom hele kjøps- og salgsprosessen. Det starter med en verdivurdering.
Unngå doble boligrenter
Vi tilbyr gunstig forsikring.
Vurderer du utleie?
Få et tilbud fra Utleie KrogsveenHva koster lånet?
Sjekk estimert lånekostnadVil du varsles om lignende boliger?
Ved å lagre ditt boligsøk hos oss får du beskjed når vi har en bolig som ligner denne, før den legges ut på markedet!
På flyttefot? Slik gjør vi det enklere for deg
Skreddersydd flyttepakke
Vi fikser håndverkere, vask, pakking, lagring og transport, og legger ut for utgiftene underveis.
Hjelp med både kjøp og salg
Hos oss har du din egen rådgiver gjennom hele kjøps- og salgsprosessen.
Hjelp til finansiering
Vårt samarbeid med BN Bank sikrer deg rask og løsningsorientert hjelp, til konkurransedyktige betingelser.




