Barkaleitet 3
4 590 000 kr
80 m²
2 soverom
Komplett salgsoppgave

Åsane/ Barkaleitet
Moderne 3-roms toppleilighet fra 2010 | Garasjeplass m/elbil lader | Heis fra garasjen | Solrik balkong og fin utsikt
Prisantydning
4 590 000 krAndel fellesgjeld
426 885 krOmkostninger
19 446 krTotalpris
5 036 331 kr
Pris
Bruksareal
84 m²BRA-I (internt bruksareal)
80 m²BRA-E (eksternt bruksareal)
4 m²TBA (terrasse-balkongareal)
11 m²
Areal
Etasje
5Byggeår
2010Soverom
2 soveromBad
1 badType
AndelsleilighetEierform
AndelFasiliteter
Garasje/P-plass, Heis og Balkong/TerrasseFellesutgifter
7 687 kr
Nøkkelinfo
Unngå doble boligrenter
Vi tilbyr gunstig forsikring.
Vurderer du utleie?
Få et tilbud fra Utleie KrogsveenHva koster lånet?
Sjekk estimert lånekostnadBeskrivelse
Kort om eiendommen
En super toppleilighet med meget attraktiv beliggenhet nær Åsane Storsenter og bussterminalen. Leiligheten ligger i byggets 5. etasje med adkomst via heis eller trapp. Nabolaget og leiligheten passer ypperlig for de som er i etableringsfasen eller eldre som ønsker et trygt og rolig bomiljø rundt seg. Her bor man i rolige omgivelser samtidig som man har alt man trenger til det daglige like i nærområdet.
Kort fortalt:
- Nyoppført leilighet i 2010
- God takhøyde i stue
- Solrik balkong på ca 11 kvm og flott utsikt
- Fast garasjeplass med el-bil lader
- Innvendig bod og bod i garasje
- Felles sykkelbod
- Vaktmester i borettslaget
- Rolland Legesenter like ved
- Kiwi butikk like ved
- Nærhet til barnehager og skoler
- Varmtvann inkl. i fellesutgifter
- Lave kjøpsomk. - ingen dok. avgift!
Innhold og byggemåte
Innhold og byggemåte
Eiendommen
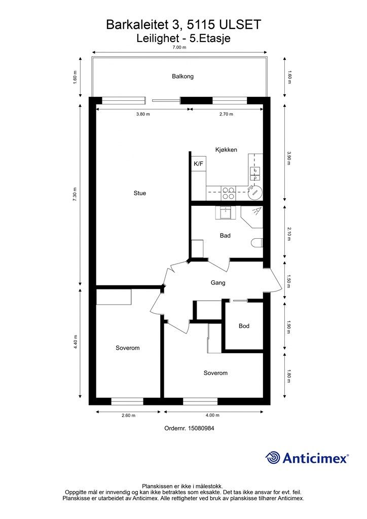
Barkaleitet 3, 5115 ULSET
Kommunenummer 4601, gårdsnummer 208, bruksnummer 222, ideell andel 1/1
Andelsnummer 185, Barkaleitet Borettslag, organisasjonsnummer 953882906
Innhold
Totalt bruksareal BRA: 84 kvm
BRA-i:
Leilighet:
5. etasje 80 kvm: Entré/gang, stue, kjøkken, 2 soverom, bad/wc og bod.
BRA-e:
Leilighet:
Underetasje 4 kvm: Bod
Åpent areal:
Leilighet:
5. etasje 11 kvm: Balkong
Boligen disponerer 1 bod i felles bodavdeling i garasjeanlegget. I tillegg disponeres 1 mindre bod i gang i 5. etasje ved leilighetens inngangsparti. Denne disponeres sammen med nabo. Felles sykkelbod i underetasje.
Det gjøres oppmerksom på at boligens eksterne boder tilhører borettslagets fellesareal, og at bodene således ikke eies av den enkelte andelseier. Dette medfører at borettslaget i fellesskap beslutter bruken, og at man ikke selv har eierrett og rettsvern for bodene. Borettslaget kan ved vedtak beslutte annet bruk av fellesarealet og disponering av bodareal kan dermed opphøre.
Vedlagte plantegninger er ikke målbare. De oppgitte arealer er hentet fra rapport med befaringsdato 07.04.2026 utført av Anticimex Bergen.
Byggemåte
Selger har innhentet en tilstandsrapport av boligen/eiendommen. Av rapporten fremgår det at flere bygningsdeler har fått tilstandsgrad ikke undersøkt/ikke tilgjengelig for undersøkelse (TG IU), 2 (TG2) og/eller 3 (TG3). Rapporten beskriver også avvik på undersøkte bygningsdeler uten tilstandsgrad. Kjøper overtar ansvaret for de opplysninger som fremkommer av salgsdokumentasjonen, og kan ikke gjøre gjeldende som mangel noe som burde vært kjent eller som ikke kan anses å ha betydning for avtalen.
Barkaleitet borettslag ble stiftet i 1975 og de fem blokkene stod ferdig i 1978. I perioden 2004 til 2010 gjennomgikk borettslaget en stor rehabilitering. Blokkene fikk ny fasade og en ekstra etasje samt at det ble tilrettelagt med heis i alle oppganger. Leiligheten som nå selges var ferdigstilt og tatt i bruk i 2010. Les for øvrig mer om byggemåte og den tekniske tilstanden i rapporten.
Følgende bygningsdeler har fått TG2 (vesentlig avvik) i tilstandsrapporten:
Våtrom - Bad:
Vanntett sjikt / membran i gulv og vegger: Vanntett sjikt har en alder som tilsier at fremtidig funksjon er usikker. Konsekvensen er at bygningsdelen erfaringsmessig har risiko for nedsatt funksjon, utettheter eller andre aldersrelaterte problemer. Bygningsdelen er skjult, så den faktiske tilstanden og dagens tettefunksjon er ukjent. Foreslått tiltak er videre overvåking, slik at komplett utskiftning kan iverksettes når dette viser seg å være nødvendig.
Tettesjiktets tilslutning til sluk: Grunnet plassering av dusjkabinett er det ikke mulig å foreta en fullgod undersøkelse av sluket. Konsekvensen er at eksakt utførelse av tettedetaljer og lekkasjesikkerhet derfor er ukjent. Foreslått tiltak er videre undersøkelser for å kartlegge dagens tilstand, utførelse og avdekke om det er behov for utbedringer eller andre nødvendige tiltak.
Andre rom:
Overflate gulv: Synlige deler av gulvets overflatemateriale bærer preg av slitasje med enkelte riper og hakk. Forholdet vurderes i hovedsak til å være av estetisk betydning, men riper og hakk av en viss dybde kan gjøre at fuktighet som for eksempel fra rengjøring forårsaker misfarging eller lignende konsekvenser. Fornying av overflater, lokale utbedringer eller utskiftning kan iverksettes ved behov. Det er registrert knirk i deler av gulvet. Eksakt årsak er ukjent, men dette kan tyde på underliggende forhold som ikke lar seg fastslå ved visuell inspeksjon alene. Konsekvens/foreslått tiltak er videre overvåking, slik at utbedringer eller utskiftning kan iverksettes dersom dette blir nødvendig.
Følgende bygningsdeler har fått TG3 (store eller alvorlige avvik) i tilstandsrapporten: Ingen
Følgende rom har fått TG IU (konstruksjoner som ikke er undersøkt):
Bad - Våtrom:
Fallforhold rundt sluk Det er ikke mulig å vurdere fallforholdene i sluksonen på en tilfredsstillende måte på grunn av plasseringen av dusjkabinettet. Konsekvens er at det derfor er uklart om gulvet har tilstrekkelig fall mot sluket. Foreslått tiltak er nærmere undersøkelser og kartlegging av forholdet.
På grunn av våtrommets utforming og bruk er det ikke praktisk mulig å gjennomføre hulltaking og fuktmåling i et område som regelmessig utsettes for bruksvann, og som vurderes å være det området hvor skader erfaringsmessig forekommer. Det ble utført et overflatesøk med fuktindikator på utvalgte steder, uten funn som indikerer fuktskader, også i områdene hvor hulltaking ville vært mulig. Alle disse forholdene utgjør grunnlaget for vurderingen om at hulltaking var unødvendig, og undersøkelse av lukkede konstruksjoner er derfor ikke utført.
Teknisk anlegg:
Det manglet tilkomst til ventilasjonsanlegget på befaringsdagen. Anlegget er derfor ikke undersøkt. Videre undersøkelser av tilstanden må påregnes når det gis tilgang til anlegget.
Se supplerende tekst i tilstandsrapporten. Kjøper overtar ansvar og risiko for dette.
Tilstandsrapporten er inntatt i salgsoppgaven. Rapporten inneholder informasjon om avvikene og konsekvensen av disse. Ettersom kjøper regnes å være kjent med forhold som tydelig fremgår av tilstandsrapporten, oppfordres du til å sette deg grundig inn i rapporten i sin helhet.
Standard
Moderne terrasseleilighet fra 2010 med god planløsning og enkel tilkomst via heis eller trapp. Boligen har gode kvaliteter med blant annet en lys entré med praktisk skyvedørsgarderobe som gir god plass for oppbevaring av ytterklær, og bak garderoben finner man leilighetens innebod. Flott kjøkken med spiseplass og fin kjøkkeninnredning med integrerte hvitevarer (foruten kjøleskap), og rikelig skap- og benkeplass. Videre er det en romslig stue med utgang til stor vestvendt balkong på ca. 11 kvm. hvor solen kan nytes til sent på kveld sommerstid. Badet er flislagt og har varmekabler i gulv, lys baderomsinnredning, samt plass til vaskemaskin og tørketrommel. Begge soverommene har god størrelse og utstyrt med skyvedørsgarderobe. Alt i alt er dette en lys og stilren leilighet som kan passe for alle aldersgrupper.
- Utgang fra stue til vestvendt balkong på ca. 11 kvm
- Terrassemarkise med elektrisk styring
- Hvit kjøkkeninnredning med profilerte fronter
- Integrert stekeovn, platetopp og oppvaskmaskin
- Fuktsensor til automatisk vannstopper synlig under oppvaskkum på kjøkken
- Fliselagt baderom med gulvvarme
- Opplegg for vaskemaskin på bad
- Gulvflater belagt med eikeparkett
- Vannrør med rør-i-rør system
- Fordelerskap for rør-i-rør system er plassert på bad
- Leiligheten er tilknyttet felles varmtvann
- Ventilasjon med varmegjenvinning
- Sikringsskap med automatsikringer plassert i gang utenfor leilighet
- Innvendig bod og ekstern bod i garasjeanlegg
Løsøre og tilbehør
Det er kun de hvitevarene som er listet opp som følger med. Disse hvitevarene følger med: Oppvaskmaskin, komfyr og kjøleskap.
Vi viser til liste fra Norges Eiendomsmeglerforbund som gjelder fra 01.01.2020 angående løsøre og tilbehør.
Oppvarming
Elektrisk. Balansert ventilasjon med varmegjenvinning. Varme i gulv på badet.
Dersom beboelsesrom ikke har vegg- eller fastmonterte varmekilder ved visning, følger dette heller ikke med.
Ferdigattest/brukstillatelse
Det foreligger ikke ferdigattest på påbygget 5 etasje, men midlertidig brukstillatelse ble gitt 17.03.10.
Tillatelsen er gitt på følgende vilkår:
Gjenstående arbeider skal være dokumentert ferdig utført ved innsendelse av anmodning om ferdigattest. Sluttdokumentasjonen skal være uten merknader fra kontrollerende foretak.
Det er ansvarlig søkers plikt å påse at anmodning om ferdigattest blir innsendt uten ugrunnet opphold etter at gjenstående arbeider er dokumentert ferdig utført av ansvarlige
kontrollerende foretak, jf forskrift om saksbehandling og kontroll i byggesaker § 34 nr 1.
Det er uklart om dette er utført. Borettslaget har ansvaret for dette.
Det foreligger midlertidig brukstillatelse på opprinnelig nybygg datert 15.12.77. Tillatelsen er gitt på følgende vilkår:
Utvendig
- Litt finplanering
Innvendig
- Alle utsparinger for rørgjennomganger mellom garasje og andre rom tettes igjen.
- Montering av 3 stk pulverapparater i garasje samt montering av anvisningsskilter
Det foreligger ferdigattest på installering heis/løfteinnretning datert 29.10.01.
Det gjøres oppmerksom på at det ikke lenger utstedes ferdigattest på tiltak det er søkt om før 1998 jf. plan- og bygningsloven § 21-10. Kommunen vil ikke kreve ferdigattest for disse tiltakene og vil avvise eventuelle søknader. Bestemmelsen innebærer ikke at tiltak med manglende søknad blir lovlige, men at man ikke trenger å avslutte gamle byggesaker. Normalt sett kreves ferdigattest for alle søknadspliktige tiltak som gjøres etter plan- og bygningsloven.
Tinglyste heftelser og rettigheter
Utover andel fellesgjeld overdras leiligheten fri for pengeheftelser.
Borettslaget har legalpant for forfalte felleskostnader og andre krav som følger av borettslagsforholdet iht. burettslagsloven § 5-20. Pantet er begrenset oppad til 2G (G = folketrygdens grunnbeløp).
Det er tinglyst følgende servitutter på borettslagets eiendom:
1977/7335-2/106 30.03.1977 BESTEMMELSE OM GJERDE
Rettigheter og plikter iflg. kommunalt skjøte
GJELDER DENNE REGISTERENHETEN MED FLERE
Forklaring: Vedlikeholdsplikt for borettslag for diverse fellesledninger. Rettigheter for offentlige etater for å legge ledninger for vann, kloakk med mer samt rett til vedlikehold av disse. Borettslaget har gjerdeplikt.
1980/23232-1/106 19.09.1980 BEST. OM VANN/KLOAKKLEDN.
Rett for kommunen til å anlegge og vedlikeholde ledninger m.m.
Forklaring: Rett for kommunen til å anlegge og vedlikeholde vann- og kloakkledninger
Servituttene vil følge borettslaget eiendom. Kjøpers bank vil få pant etter ovennevnte heftelser og servitutter.
Eventuell adgang til utleie
Andelseier kan ikke uten samtykke fra styret i borettslaget overlate bruken av boligen til andre. Med samtykke kan andelseier overlate boligen til andre i inntil tre år hvis andelseier har bodd i boligen i minst ett av de to siste år. Utleie i andre tilfeller kan godtas ved særlige grunner, jf. burettslagslova § 5-6. Utleie forutsetter at leiligheten har forsvarlige radonverdier. Se også borettslagets vedtekter og konferer megler ved spørsmål.
Diverse
Boligens selges ved fullmektig. Fullmektigen har ikke selv bebodd eiendommen og har derfor ikke kunnskap om eiendommens tilstand utover det som fremkommer i salgsoppgave og tilstandsrapport.
Beliggenhet og tomteforhold
Beliggenhet og tomteforhold
Beliggenhet
Barkaleitet 3 har en tilbaketrukket men likevel sentral plassering i Åsane. Her bor man i et meget barnevennlig nabolag i gate uten gjennomgangstrafikk. Kun få minutters gange på bilfri vei til Rolland Skole og idrettsanlegg/fotballbane, samt Rolland Legesenter. Rolland skole skal rives og erstattes av ny og utvidet skole og skal stå ferdig til innflytting i 2029. Fra boligen er det kun noen hundre meter til flott parkanlegg for aktiviteter både sommer og vinter. Her kan man trygt slippe ut selv de minste på egen hånd. I tillegg byr området på flotte turstier samt skogsområder i umiddelbar nærhet! Fra dørstokken kan man ta fatt på jubileumsstien som tar deg hele veien opp til Rundemanen med rikelig utvalg av turer videre i byfjellene.
Det er gangavstand til et rikt utvalg butikker og servicetilbud på Thon senter Åsane og Horisont kjøpesenter. Gode bussforbindelser i alle retninger. For daglige innkjøp er Kiwi Rolland kun noen hundre meter fra boligen.
Ca. 12-15 min kjøretur til Bergen sentrum.
Adkomst
Veibeskrivelse Se Google maps - det er enkelt å finne frem i kartet.
Det vil bli skiltet med Krogsveen visningsskilt ved fellesvisninger.
Barnehager, skoler og fritid
Rolland-Ulsetåsen barnehage (0-5 år)
Rollandslia barnehage (0-5 år)
Selegrend barnehage (0-5 år)
Rolland skole pt. stengt og under rehabilitering (1-7 kl.)
Kollåsen skole (1-3 kl.) 8
Storåsen skole (1-3 kl.)
Blokkhaugen skole (8-10 kl.)
Åsane videregående skole
Tertnes videregående skole
Informasjon om tilhørende skolekretser er hentet fra Prognosesenteret som dataleverandør, og tilhørigheten kan årlig endres av kommunen. Dersom skole- og barnehagetilbud er av betydning for kjøpet, ber vi om at det rettes en særskilt henvendelse til kommunen/bydelsadministrasjonen for oppdatert informasjon.
Beskrivelse av tomt
Eiertomt på 27 781 kvm som tilhører borettslaget. Tomten er opparbeidet med asfaltert veier, diverse beplantninger, plenarealer og lekeplass. Felles trappeoppgang med callinganlegg og heis.
Parkering
Fast plass i felles garasjeanlegg med el-bil lader. Kjøper må selv kontakte Aneo for tegning av abonnement for lading og blir fakturert direkte for forbruk. Det er heis fra garasjen til alle etasjer i bygget.
For dem som ikke har garasje eller har flere biler, er det lagt opp til flere ladeplasser ute. Konferer styret om eventuelle ledige plasser og leievilkår. Det er også opparbeidet stor gjesteparkering for borettslaget.
Vei, vann og avløp
Eiendommen har adkomst via privat vei med felles vedlikeholdsansvar for borettslaget.
Eiendommen er tilknyttet kommunalt ledningsnett via private stikkledninger. Borettslaget er ansvarlig for private stikkledninger til bygningen.
Regulerings-og arealplaner
Eiendommen er regulert til boligformål i henhold til reguleringsplan Åsane - gnr. 208, bnr. 222, Barkaleitet boligområde datert 25.06.07 med tilhørende reguleringsbestemmelser. Andre reguleringsformål på eiendommen er felles grøntareal, felles parkeringsplass, vei- og gangareal med mer.
Eiendommen berøres av følgende hensynssoner:
- Faresone - aktsomhetsområder for steinsprang, jord- og flomskred og snøskred (dekningsgrad 66,2%)
- Kulturmiljø - historisk veifar (dekningsgrad 3,9%)
- Friluftsliv - Byfjellgrense sentrale byfjell (dekningsgrad 0,1%)
Hensynssoner vil kunne få betydning for behandlingen av plan- og byggesaker som omfatter den aktuelle eiendommen, blant annet medføre utredningsplikt for tiltakshaver/forslagstiller og eventuelt krav om avbøtende tiltak.
Utsnitt av plan med tilhørende bestemmelser kan fås ved henvendelse til megler.
Økonomi
Økonomi
Boligens kostnader
Felleskostnadene er kr 7 687,- pr. mnd. og inkluderer: Felles bygningsforsikring, garasjeleie, bossug finansiering, betjening av renter og avdrag på andel fellesgjeld, kommunale avgifter, eiendomsskatt, tv/internett, varmt vann, dugnad, vask av fellesareal, brannvarslingssystem, ladeanlegg for elbil og drift av borettslaget.
Felleskostnadene justeres normalt en til to ganger årlig i forhold til borettslagets faktiske utgifter.
Felleskostnadene fordeles slik:
-Renteutgifter kr 886,-
-Avdrag kr 2 214,-
-Driftsutgifter kr 3 227,-
-Bossug finansiering kr 190,-
-Garasje kr 240,-
-Ladeanlegg for elbil kr 36,-
-Dugnad kr 70,-
-Fellesvask kr 142,-
-Brannvarslingssystem kr 225,-
-Tv/internett kr 457,-
Nåværende eier har et strømforbruk som tilsvarer ca. 7 000 kwh pr. år.
Boligen er tilknyttet Telia/Get som leverandør av kabel-tv og avgiften er inkludert i felleskostnader. Tv-tuner/dekoder medfølger.
Selger har avtalt Norgespris på strøm på eiendommen for perioden 07.01.26-31.12.26, og denne er pt på 50 øre inkl mva. Nettleie, avgifter og påslag fra kraftleverandøren kommer i tillegg. Er det fjernvarme vil det også komme kostnader i tillegg.
Denne avtalen vil følge eiendommen i den avtalte perioden.
Les mer om Norgespris her: https://www.regjeringen.no/no/aktuelt/legg-fram-lov-om-norgespris-pa-straum-og-fjernvarme/id3102642/
Utgiftene er basert på nåværende eiers forbruk. Kjøper må selv tegne innboforsikring.
Formuesverdi
Formuesverdi for 2024 var kr 962 767,- ifølge Skatteetaten. Beløpet forutsetter at eier bor fast i boligen (primærbolig).
Ved eventuell øvrig bruk av eiendommen (f.eks. fritidsbolig, pendlerbolig, utleieobjekt) var formuesverdien for 2024 kr 3 851 069,-.
Fra 2026 har Stortinget vedtatt en oppdatert modell for beregning av formuesverdi for primærbolig, så avvik kan forekomme.
For mer informasjon se skatteetaten.no
Opplysninger om fellesgjeld
Andel formue er kr 0,- pr. 31.12.25
Andel fellesgjeld er kr 426 885,- pr. 26.03.26
Total fellesgjeld for boligselskapet er kr 132 991 136,- pr. 31.12.25 og lånevilkårene er:
Lånenummer: 13552505, Husbanken
Annuitetslån, 4 terminer per år.
Rentesats per 26.03.2026: 2.96% pa.
Antall terminer til innfrielse: 54
Saldo per 26.03.2026: 15 578 599
Andel av saldo: 397 022
Første termin: 30.06.2009Første avdrag: 30.06.2011 ( siste termin 30.06.2039 )
Fastrente 20 år til 1.8.2035
Lånenummer: 135525053, Husbanken
Annuitetslån, 4 terminer per år.
Rentesats per 26.03.2026: 2.96% pa.
Antall terminer til innfrielse: 54
Saldo per 26.03.2026: 25 285 644
Andel av saldo: 0
Første termin: 30.06.2009Første avdrag: 30.06.2011 ( siste termin 30.06.2039 )
Fastrente 20 år til 1.8.2035
Lånenummer: 13552505320, Husbanken
Annuitetslån, 4 terminer per år.
Rentesats per 26.03.2026: 1.48% pa.
Antall terminer til innfrielse: 59
Saldo per 26.03.2026: 43 280 464
Andel av saldo: 0
Første termin: 30.09.2010Første avdrag: 30.09.2015 ( siste termin 30.09.2040 )
Fastrente i 10 år til 1.3.2031
Lånenummer: 1355250570, Husbanken
Annuitetslån, 4 terminer per år.
Rentesats per 26.03.2026: 2.67% pa.
Antall terminer til innfrielse: 44
Saldo per 26.03.2026: 3 689 833
Andel av saldo: 0
Første termin: 31.12.2011Første avdrag: 31.12.2016 ( siste termin 31.12.2036 )
1.delutb.2011/2012 - Fastrente til 1.7.2032
Lånenummer: 13552505301, Husbanken
Annuitetslån, 4 terminer per år.
Rentesats per 26.03.2026: 2.67% pa.
Antall terminer til innfrielse: 65
Saldo per 26.03.2026: 32 883 043
Andel av saldo: 0
Første termin: 30.06.2012Første avdrag: 30.06.2017 ( siste termin 31.03.2042 )
2.delutb.2011/2012 - Fastrente til 1.7.2032
Lånenummer: 13552505303, Husbanken
Annuitetslån, 4 terminer per år.
Rentesats per 26.03.2026: 2.67% pa.
Antall terminer til innfrielse: 65
Saldo per 26.03.2026: 6 420 581
Andel av saldo: 29 863
Første termin: 30.06.2012Første avdrag: 30.09.2012 ( siste termin 31.03.2042 )
Bossug lik brøk 215 and. - Fastrente til 1.7.2032
Lånenummer: 13552505-50, Husbanken
Annuitetslån, 4 terminer per år.
Rentesats per 26.03.2026: 3.45% pa.
Antall terminer til innfrielse: 70
Saldo per 26.03.2026: 5 494 437
Andel av saldo: 0
Første termin/første avdrag: 30.09.2013 ( siste termin 30.06.2043 )
Delutb.2013 - Fastrente til 1.10.2033
Laget er innvilget rammekreditt (fungerer som kassakreditt) hos Heder Bank på kr. 2.000.000 til 31.12.2026.
Omkostninger
4 590 000,00 Prisantydning
426 885,00 Andel av fellesgjeld
--------------------------------------------------------
5 016 885,00 Pris inkl. fellesgjeld
Omkostninger
8 406,00 Gebyr forhåndsavklaring forkjøpsrett
9 950,00 Gjensidige Boligkjøperpakke (valgfri)* (valgfritt)
545,00 Tinglysing hjemmel
545,00 Tinglysing panterettsdokument
--------------------------------------------------------
9 496,00 (Omkostninger totalt (uten Gjensidige Boligkjøperpakke (valgfri)))
19 446,00 Omkostninger totalt (med Gjensidige Boligkjøperpakke (valgfri)))
--------------------------------------------------------
5 026 381,00 Totalpris inkl. omkostninger
5 036 331,00 Totalpris inkl. omkostninger (med Gjensidige Boligkjøperpakke (valgfri))
--------------------------------------------------------
Dersom kjøper ikke er medlem av boligbyggelaget, må det påregnes en innmeldingsavgift og årlig medlemsgebyr pr. ny andelseier. Dette faktureres direkte fra boligbyggelaget.
Dersom borettslaget har fellesgjeld, vil leilighetens andel av fellesgjelden komme i tillegg til kjøpesummen. Denne gjelden skal ikke innbetales i oppgjøret, men følger leiligheten.
Det tas forbehold om endringer i avgifter og gebyrer.
Tilbud om lånefinansiering
Megler formidler gjerne kontakt med rådgiver hos vår samarbeidspartner BN Bank. De har konkurransedyktige betingelser samt rask og løsningsorientert behandling av din lånesøknad. Krogsveen mottar et honorar dersom lån opprettes.
Betalingsbetingelser
Kjøpesum inkludert omkostninger, samt pantedokument tilknyttet eventuelt lån, skal være disponibelt hos megler 2 virkedager før overtagelsen.
Annen viktig informasjon
Annen viktig informasjon
Eier
Tove Rasmussen
Informasjon om borettslaget
Leiligheten er tilknyttet Barkaleitet Borettslag og borettslaget er tilknyttet Vestbo boligbyggelag.
Forretningsfører er Vestbo.
Dyrehold: Søknad om dyrehold behandles av styret.
Ingen dugnadsplikt, men borettslaget arrangerer dugnad i sommerhalvåret - normalt hver onsdag fra ca. 1 mai og frem til ferien - samt utover høsten etter behov.
Vaktmester i borettslaget.
Nettside: www.barkaleitet.no
Barkaleitet Borettslag består av 5 terrasseblokker med til sammen 15 oppganger. Antall boenheter: 215. Leilighetstyper: 2-, 3-, 4- og 5-roms leiligheter. Barkaleitet Borettslag har sentral beliggenhet i Åsane med gangavstand til Åsane terminal og Åsane Storsenter. I 2010 ferdigstilte Barkaleitet Borettslag et omfattende rehabiliteringsarbeid hvor den opprinnelige bygningsmassen ble oppgradert og utvidet. Alle terrasseblokkene ble påbygd en etasje og dette ga 35 nye leiligheter. Arkitekt/landskapsarkitekt var Wiberg AS Arkitektur & plan.
- Borettslaget har en avtale med Sfty angående brannalarm og vannlekkasjevarsler.
- Balansert ventilasjon i alle leiligheter.
- Det er felles varmtvannstanker i borettslaget.
- Felles ordning via Aneo for el-bil lading i borettslaget.
I henhold til borettslagets vedtekter må kjøper godkjennes av styret som ny andelseier. Det er kjøpers ansvar at styregodkjenning blir gitt, men styret kan ikke nekte godkjenning uten saklig grunn.
Iht. burettslagslova kan man bare eie én andel i borettslaget. Kun fysiske personer kan være andelseiere.
Borettslag har anledning til å være tilknyttet et sikringsfond som dekker eventuelt manglende innbetaling av felleskostnader. Boliglaget har avtale om sikring- og forskuttering av felleskostnader hos Vestbo Finans AS. Avtalen kan sies opp av hver av partene med en frist på 6 mnd.
Dokumenter for borettslaget kan fås ved henvendelse til megler.
Informasjon om forkjøpsrett
Øvrige andelseiere i borettslaget og eventuelt medlemmer av boligbyggelaget har forkjøpsrett. I henhold til burettslagslova tar dette inntil 20 dager å avklare fra melding om salget er gitt borettslaget. Dersom boligen tas på forkjøpsrett løses kjøper fra avtalen.
Overtakelse
Etter nærmere avtale. Overtakelse kan tidligst skje etter at forkjøpsretten for øvrige andelseiere i borettslaget og eventuelt medlemmer av boligbyggelaget er avklart, samt at styrets godkjennelse er avklart.
Boligselgerforsikring
Selger har i forbindelse med salget tegnet boligselgerforsikring levert av Gjensidige.
Boligselgerforsikringen dekker selgers ansvar etter avhendingsloven begrenset oppad til kr 14 millioner. Dersom kjøper oppdager forhold ved eiendommen som hen mener utgjør en mangel ved eiendommen, vil Gjensidige behandle reklamasjonen på vegne av selger. Forsikringsvilkår kan fås ved henvendelse til megler.
Vedlagt salgsoppgaven følger selgers egenerklæringsskjema og tilstandsrapport. Interessenter må sette seg inn i dokumentene før bud inngis.
Boligkjøperforsikring
Innen kontraktsmøtet må kjøper ta stilling til om det ønskes å bestille Boligkjøperpakken gjennom Gjensidige. I denne gunstige pakken er boligen ferdig forsikret og inkluderer rettshjelpsforsikring, også kalt Boligkjøperforsikring. Rettshjelpsforsikring gir trygghet og tilgang på profesjonell juridisk hjelp dersom det oppdages uventede feil eller mangler det første året etter overtagelse. Forsikringsselskapet behandler i så fall ethvert mangelskrav kjøper måtte ha overfor selger.
Boligkjøperpakken inkluderer bygningsforsikring for hus og hytte, innboforsikring, flytteforsikring og dobbel rentedekning - i situasjoner hvor kjøper ikke får solgt nåværende primærbolig.
Kjøper mottar ingen særskilt faktura for Boligkjøperpakken da kostnaden det første året legges til kjøpesummen for boligen. Det gjøres oppmerksom på Krogsveen mottar et honorar for denne formidlingen.
Produktark for Boligkjøperpakken ligger vedlagt i salgsoppgaven.
Dersom ikke boligkjøperpakke ønskes kan kun rettshjelpsforsikring, også kalt boligkjøperforsikring, tegnes særskilt via megler. Rettshjelpsforsikringen varer i 5 år fra overtagelse og leveres gjennom Gjensidige. Ta kontakt med megler for ytterligere informasjon.
Selskap og privatpersoner som driver med kjøp/salg/utvikling som ledd i egen næringsvirksomhet kan ikke tegne boligkjøperpakke eller rettshjelpsforsikring.
Budgivning
Forbrukerinformasjon om budgivning er vedlagt denne salgsoppgaven og er også på vår hjemmeside Krogsveen.no. Alle bud og budforhøyelser må inngis skriftlig. I tillegg må legitimasjon være fremlagt sammen med signatur fra budgiver.
Vi oppfordrer til å gi bud elektronisk via GI BUD-knappen på eiendommens hjemmeside på Krogsveen.no. Da vil samtlige vilkår bli oppfylt.
Eventuelle forhøyelser eller endringer av budet kan bekreftes pr SMS eller på e-post. Vi oppfordrer alltid til å kontakte megler pr. telefon i tillegg da forsinkelser i SMS og e-post kan forekomme.
For at budene skal kunne bli behandlet og videreformidlet skriftlig til alle involverte parter, må alle bud ha en tilstrekkelig lang akseptfrist, jf. eiendomsmeglingsforskriften § 6-3.
Selger må også skriftlig akseptere budet før aksept kan formidles til budgiver. Akseptfrist bør derfor være på minimum 30 minutter, og budforhøyelser må derfor skje i god tid før fristens utløp.
Bud i forbrukerforhold kan uansett ikke settes med kortere frist enn kl. 12.00 første virkedag etter siste annonserte visning. I tillegg kan ikke budet ha forbehold om at det skal holdes hemmelig ovenfor øvrige interessenter. Megler har iht lov om eiendomsmegling ikke anledning til å videreformidle disse budene, og de vil dermed heller ikke bli journalført.
Etter at eiendommen er solgt vil kjøper og selger få tilsendt budjournal. Øvrige budgivere kan få utlevert kopi av budjournalen i anonymisert form.
Hvitvaskingsreglene
I henhold til lov om hvitvasking og terrorfinansiering har megler plikt til å gjennomføre kontrolltiltak overfor kunder, herunder fullmektiger. Dette innebærer bl.a. å bekrefte kunders og reelle rettighetshaveres identitet på bakgrunn av fremvist gyldig legitimasjon eller på annen godkjent måte, samt å innhente opplysninger om kundeforholdets formål og tilsiktede art.
Dersom slike kundetiltak ikke kan gjennomføres, kan megler ikke etablere kundeforholdet eller utføre transaksjonen.
Hvis kjøper ikke bidrar til gjennomføring av kundekontrollen og dette fører til at transaksjonen blir forsinket eller ikke kan gjennomføres, vil dette ansees som mislighold av avtalen og gi selger rettigheter etter avhendingslova kapittel 5. I tilfeller der selger ikke bidrar til gjennomføring av løpende kundekontroll underveis i oppdraget, er det selger som misligholder sine forpliktelser etter avtalen og gi kjøper rettigheter etter avhendingslovens kapittel 4. Partene er selv ansvarlige for eventuelle kostnader og ansvar dette kan medføre. Eiendomsmegleren eller eiendomsmeglingsforetaket kan ikke holdes ansvarlig for de konsekvenser dette vil kunne få for partene eller andre som har interesser i eiendomshandelen.
Kjøper oppfordres til å innbetale kjøpesummen som ikke kommer fra låneinstitusjon i én samlet innbetaling fra egen konto i norsk bank. Megler har plikt til å melde fra til Økokrim om eiendomshandler som fremstår som mistenkelige. Melding sendes Økokrim uten at partene varsles.
Personopplysningsloven
I henhold til personopplysningsloven gjør vi oppmerksom på at interessenter kan bli registrert for videre oppfølging.
Lovanvendelse
Generelle bestemmelser
Salgsoppgaven er basert på de opplysningene selger har gitt til megler, den bygningssakyndiges tilstandsrapport, samt opplysninger innhentet fra kommunen, Kartverket og andre tilgjengelige kilder. Det er viktig at kjøper setter seg grundig inn i alle salgsdokumentene, herunder salgsoppgave, tilstandsrapport og selgers egenerklæring. Kjøper anses kjent med forhold som er tydelig beskrevet i salgsdokumentene, og slike forhold kan ikke påberopes som mangler. Dette gjelder uavhengig av om kjøper har lest dokumentene. Alle interessenter oppfordres til å undersøke eiendommen nøye, gjerne sammen med fagkyndig før bud inngis. Kjøper som velger å kjøpe usett kan ikke gjøre gjeldende som mangel noe han burde blitt kjent med ved undersøkelsen.
Dersom det er behov for avklaringer, anbefaler vi at interessenter rådfører seg med eiendomsmegler eller egne rådgivere før det legges inn bud.
En bolig som har blitt brukt i en viss tid, har vanligvis blitt utsatt for slitasje og skader kan ha oppstått. Slik bruksslitasje må kjøper regne med, og det kan avdekkes enkelte forhold etter overtakelse som nødvendiggjør utbedringer. Normal slitasje og skader som nødvendiggjør utbedring, er innenfor hva kjøper må forvente og vil ikke utgjøre en mangel.
Kjøper og selgers rettigheter og plikter reguleres av avtalen mellom partene, samt informasjonen som har vært tilgjengelig for kjøperen i forbindelse med handelen. Avtalen utfylles av avhendingsloven, og det gjelder ulike avtalevilkår avhengig av om kjøper er forbrukerkjøper eller ikke. Dette er nærmere beskrevet nedenfor.
På grunn av ulike avtalevilkår kan selger vurdere bud fra en som ikke er forbruker, ulikt fra en forbrukers bud. Dersom kjøper ikke er forbruker, er selger sitt mulige mangelsansvar begrenset fordi eiendommen selges "som den er". Selger kan ikke ta «som den er»- forbehold overfor en forbrukerkjøper. Selv et lavere bud fra en som ikke er forbruker kan foretrekkes fordi begrensningen i mulig mangelsansvar kan ha egenverdi for selger. Selger står fritt til å forkaste eller akseptere ethvert bud, og er for eksempel ikke forpliktet til å akseptere høyeste bud.
Budgiver skal i budskjema avgi egenerklæring om budgiver er forbruker eller næringsdrivende/ person som hovedsakelig handler som ledd i næringsvirksomhet. Budgivere får informasjon dersom andre bud er inngitt av en som ikke er forbruker.
Forbrukerkjøp - definisjon
Med forbrukerkjøp menes kjøp av eiendom når kjøperen er en fysisk person som ikke hovedsakelig handler som ledd i næringsvirksomhet.
Forbruker – avtalevilkår
Eiendommen har en mangel dersom den ikke er i samsvar med kravene som følger av avtalen, eller det foreligger brudd på bestemmelsene i avhendingsloven §§ 3-2 til 3-8. Hvis eiendommen ikke er i samsvar med det kjøperen må kunne forvente ut ifra alder, type og synlig tilstand, kan det være grunnlag for mangelskrav. Det samme gjelder hvis det er holdt tilbake eller gitt uriktige opplysninger om eiendommen. Dette gjelder likevel bare dersom man kan gå ut ifra at det virket inn på avtalen at opplysningen ikke ble gitt eller at mangelskravet ikke blir rettet i tide på en tydelig måte.
Boligen kan ha en mangel etter avhendingsloven § 3-3 andre ledd, dersom det er avvik mellom opplyst og faktisk innvendig areal, forutsatt at avviket er på 2% eller mer og minimum 1 kvm.
Ved beregning av et eventuelt prisavslag eller erstatning må kjøper selv dekke tap/kostnader opptil et beløp på kr 10 000 (egenandel).
Ikke-forbruker (næringsdrivende) – definisjon
Hvis kjøper er en juridisk person, eller en fysisk person som hovedsakelig handler som ledd i næringsvirksomhet, vil kjøpet ikke anses som et forbrukerkjøp.
Ikke-forbruker – avtalevilkår
Eiendommen har en mangel dersom den ikke er i samsvar med kravene som følger av avtalen.
Eiendommen selges «som den er», og selgers ansvar utover det konkret avtalte er da begrenset etter avhendingsloven § 3-9, første ledd andre setning.
Avhendingsloven § 3-3 andre ledd fravikes, og hvorvidt boligens arealsvikt utgjør en mangel vurderes etter avhendingsloven § 3-8.
Informasjon om kjøpers undersøkelsesplikt, herunder oppfordringen om å undersøke eiendommen nøye, gjelder også for kjøpere som ikke anses som forbrukere.
Det forutsettes at hjemmel overføres til kjøper. Hvis kjøper ikke ønsker hjemmelsoverføring av eiendommen, må det tas forbehold om dette i budet.
Meglers vederlag
Meglers vederlag betales av selger og er avtalt til:
Vederlag: 1,25 % av salgssummen inkl. eventuell fellesgjeld. Minimumsprovisjon er kr 45 000,00
Vederlag:
Fotopakke inkl drone kr 5 500,00
Kontroll av hjemmel og heftelser kr 3 900,00
Markedsføringspakke kampanje kr 19 900,00
Halvside Hus og Hjem kr 2 500,00
Oppgjør kr 8 900,00
Tilrettelegging kr 19 900,00
Visninger (alle visninger inkludert) kr 2 900,00
Utlegg:
Eierskiftegebyr kr 6 725,00
Innhenting av informasjon forretningsfører kr 4 729,00
Innhenting av offentlig opplysninger Bergen kr 3 400,00
Tinglysing sikring kr 545,00
Andre utgifter:
AX tilstandsrapport leilighet over 50 kvm kr 9 950,00
Boligselgerforsikring Gjensidige Andel/Aksje regnes av prisant. kr 12 374,00
Markedsføring, halvside i Hus og Hjem kr 2 500,00
Vi er opptatt av verdiskapning, og har knyttet til oss samarbeidspartnere som skal sikre våre kunder de beste produkter og tjenester;
• I forbindelse med forberedelse av salget, innhenter vi informasjon om eiendommen hovedsakelig fra vår samarbeidspartner Ambita.
• Gjensidige leverer boligselgerforsikring og tilbyr bygningsforsikring
• Boligkjøperforsikring leveres av Hiscox og med Sedgwick som skadebehandler, og er formidlet gjennom Gjensidige.
• BN bank tilbyr finansieringsløsninger
• Vår avdeling Krogsveen Pluss tilbyr flyttetjenester som utvask, visningsvask, lager, tømming og transport av flyttelass, i tillegg til å formidle kontakt med Flip for overflateoppussing.
• I forbindelse med overtagelse av eiendommen tilbyr Overo avtale om strøm, alarm og bredbånd.
• Krogsveen er, sammen med øvrige bransjeaktører, medeier i Bomega AS som tilbyr den digitale annonseringsplattformen Hjem.
Opplysninger om oppdraget
Oppdragsnummer 74-0025/26
Eiendomsmegler Krogsveen AS, avd. Åsane
Åsane Senter 42, 5116, ULSET
950 007 613
Oppdragets KR-kode KR74.2625
Dato
Sist oppdatert: 13. april 2026 kl. 11:07
Dokumenter
Dokumenter
PDF – 915 KB
PDF – 162 KB
PDF – 2 MB
PDF – 62 KB
PDF – 1 MB
PDF – 2 MB
PDF – 312 KB
PDF – 29 KB
PDF – 127 KB
PDF – 392 KB
Visning
For å delta på visning, ber vi om at du melder deg på. Da sikrer vi at du får nødvendig informasjon og at det er satt av tilstrekkelig med tid. Kontakt megler dersom annet tidspunkt ønskes. Husk å lese salgsoppgaven før visningen, så du stiller forberedt.
Ønsker du kun å bli holdt orientert, kan du fra eiendommens hjemmeside få varsel om solgtpris, eller kontakte megler.
Lurer du på noe?
Unngå doble boligrenter
Vi tilbyr gunstig forsikring.
Vurderer du utleie?
Få et tilbud fra Utleie KrogsveenHva koster lånet?
Sjekk estimert lånekostnadVil du varsles om lignende boliger?
Ved å lagre ditt boligsøk hos oss får du beskjed når vi har en bolig som ligner denne, før den legges ut på markedet!




























