Refstadsvingen 7
4 350 000 kr
53 m²
2 soverom
Solgt

Presenteres av
Bjørn Erik Dørum-PersenBJERKE
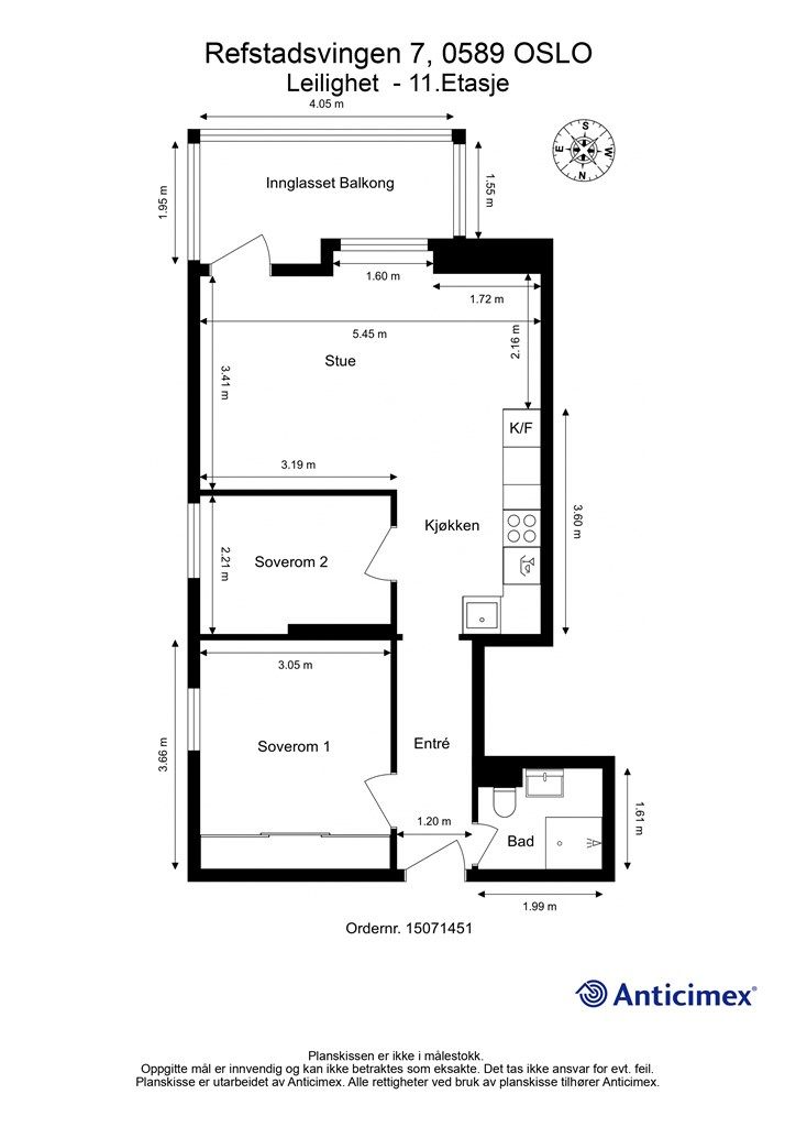
Gjennomført og lekker 3-roms utsiktsleilighet med solrik, innglasset balkong på 9 kvm. internett, fyring og vv inkl.
Prisantydning
4 350 000 krAndel fellesgjeld
305 000 krOmkostninger
19 252 krTotalpris
4 674 252 kr
Pris
Bruksareal
66 m²BRA-I (internt bruksareal)
53 m²BRA-E (eksternt bruksareal)
4 m²
Areal
Etasje
11Byggeår
1961Soverom
2 soveromBad
1 badType
AndelsleilighetEierform
AndelFasiliteter
Heis og Balkong/TerrasseFellesutgifter
5 169 krEnergimerke
Lysegrønn E
Nøkkelinfo
Unngå doble boligrenter
Vi tilbyr gunstig forsikring.
Vurderer du utleie?
Få et tilbud fra Utleie KrogsveenHva koster lånet?
Sjekk estimert lånekostnadBeskrivelse
Kort om eiendommen
En lekker utsiktsleilighet beliggende høyt og fritt i 11. etasje med solrik, sydvendt balkong på 9 kvm! Arealeffektiv planløsning med entré, 2 gode soverom, pent bad og åpen stue-/kjøkkenløsning med utgang til innglasset balkong. Leiligheten holder god standard med ny kjøkkeninnredning i 2020, bad rehabilitert av borettslaget i 2015/2016, og øvrig modernisering av bl.a. overflater i 2020/2022.
Leiligheten ligger i et attraktivt boligområde på Bjerke med gangavstand til alt du måtte trenge i hverdagen! En kort gåtur fra boligen ligger Bjerkedalen Park med store grøntområder, badedam og kafé.
Arealeffetkiv 3-roms
Innglasset balkong med herlig utsikt
2 gode soverom
2 boder
Mulighet for parkeringsplass etter venteliste
Nærhet til kollektivtransport, butikker m.m
Område
Legg til steder som er viktige for deg
På flyttefot? Tenk kjøp og salg samtidig.
Få din egen rådgiver gjennom hele kjøps- og salgsprosessen. Det starter med en verdivurdering.
Unngå doble boligrenter
Vi tilbyr gunstig forsikring.
Vurderer du utleie?
Få et tilbud fra Utleie KrogsveenHva koster lånet?
Sjekk estimert lånekostnadVil du varsles om lignende boliger?
Ved å lagre ditt boligsøk hos oss får du beskjed når vi har en bolig som ligner denne, før den legges ut på markedet!
På flyttefot? Slik gjør vi det enklere for deg
Skreddersydd flyttepakke
Vi fikser håndverkere, vask, pakking, lagring og transport, og legger ut for utgiftene underveis.
Hjelp med både kjøp og salg
Hos oss har du din egen rådgiver gjennom hele kjøps- og salgsprosessen.
Hjelp til finansiering
Vårt samarbeid med BN Bank sikrer deg rask og løsningsorientert hjelp, til konkurransedyktige betingelser.

