Åsebuktveien 7
2 900 000 kr
64 m²
4 soverom
Komplett salgsoppgave
Brevik
Sjarmerende fritidsbolig i naturskjønne og idylliske omgivelser – nær sjøen og med anneks (13 kvm) -store uteplasser
Prisantydning
2 900 000 krOmkostninger
93 490 krTotalpris
2 993 490 kr
Pris
Bruksareal
81 m²BRA-I (internt bruksareal)
64 m²BRA-E (eksternt bruksareal)
17 m²TBA (terrasse-balkongareal)
51 m²
Areal
Etasje
1Byggeår
1949Soverom
4 soveromBad
1 badTomteareal
827 m² (eiet)Type
Fritidseiendom ved sjøenEierform
EietFasiliteter
Balkong/TerrasseEnergimerke
Rød G
Nøkkelinfo
Vurderer du utleie?
Få et tilbud fra Utleie KrogsveenHva koster lånet?
Sjekk estimert lånekostnadDette liker selger best ved boligen
Usjenert, eiendommen grenser til friområde.
Beskrivelse
Kort om eiendommen
Drømmer du om et nydelig sted ved sjøen?
Sjarmerende fritidseiendom i attraktive omgivelser på Brevik. Eiendommen ligger usjenert til i et attraktivt hytteområde, kort vei fra sjøen med tilgang til strand. Her kan du starte dagen med morgenbad og nyte roen, utsikten og gode solforhold på flere terrasser. Hytta er lys og luftig med store vindusflater, og inneholder entré, stue, kjøkken, bad og to soverom. I tillegg medfølger anneks med ekstra sengeplasser. Tomten er pent opparbeidet og grenser til friområde, med flotte turmuligheter rett utenfor døren. Området innbyr til båt- og badeliv, fiske og rekreasjon, samtidig som du har kort vei til både Drøbak, Vinterbro, Nesodden og Oslo.
Velkommen!
Innhold og byggemåte
Innhold og byggemåte
Eiendommen
Åsebuktveien 7, 1455 NORDRE FROGN
Kommunenummer 3214, gårdsnummer 51, bruksnummer 278, ideell andel 1/1
Innhold
BRA-i:
Fritidsbolig :
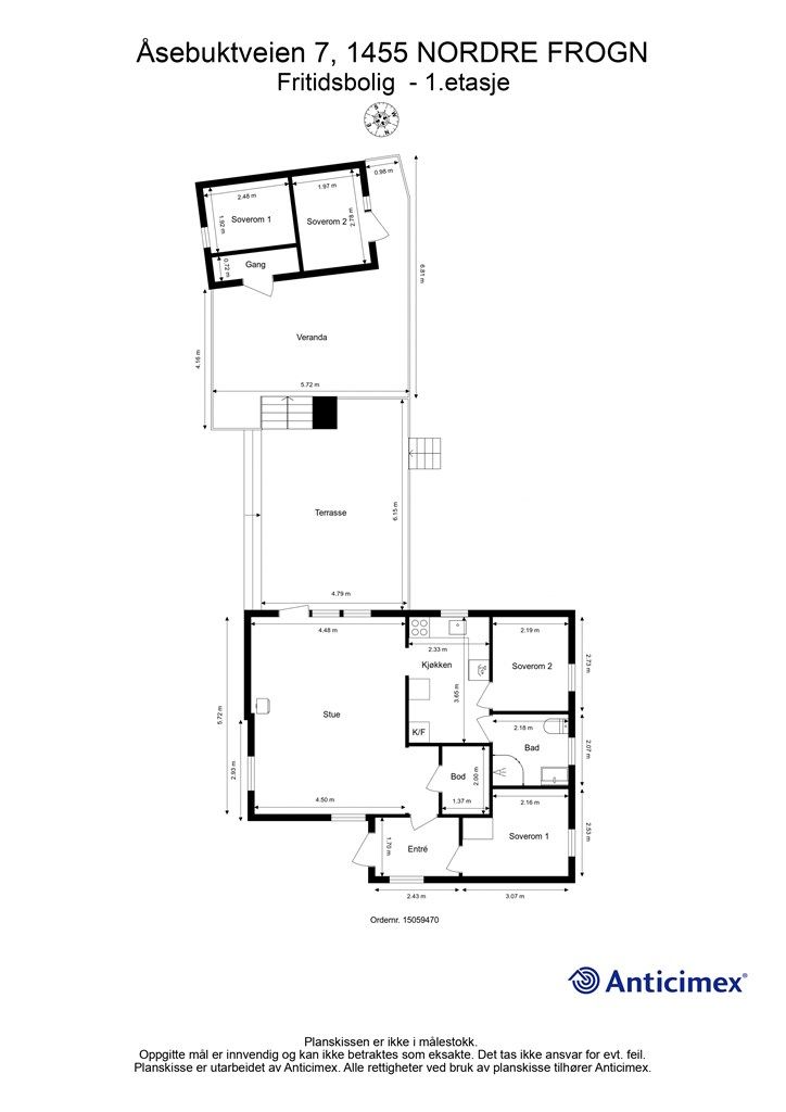
1. etasje 64 kvm: Entré, bod, to soverom, bad og stue med åpen kjøkkenløsning
BRA-e:
Anneks :
1. etasje 13 kvm: Gang og to soverom
Bod :
1. etasje 4 kvm: Bod
Åpent areal:
Anneks :
1. etasje 24 kvm: Veranda
Fritidsbolig :
1. etasje 27 kvm: Sydvendt terrasse
Vedlagte plantegninger er ikke målbare. De oppgitte arealer er hentet fra rapport med befaringsdato 05.09.2024 utført av Anticimex v/ Kenneth Lesteberg. Arealene er beregnet og rom er definert etter dagens faktiske bruk, uavhengig av hva som er godkjent av bygningsmyndighetene.
Byggemåte
Selger har fått utarbeidet en tilstandsrapport, dvs. en teknisk gjennomgang av boligen hvor eventuelle avvik, risiko for kjøper og prisoverslag for hva som bør gjøres av oppgradering, er skissert. Se særskilt TGIU (tilstandsgrad ikke undersøkt), samt TG2 og TG3 som viser hva som er boligens normale slitasje, alder og type, hva som er avvik fra dette og hva som bør/må utbedres. Rapporten og selgers egenerklæring er en del av salgsoppgaven og må leses nøye før bud inngis. Kjøper overtar ansvaret for de opplysninger som fremkommer av salgsdokumentasjonen, og kan ikke gjøre gjeldende som mangel noe som burde vært kjent eller som ikke kan anses å ha betydning for avtalen.
Eiendom bestående av fritidsbolig, anneks og frittstående bod.
Fritidsboligen er iht. tilstandsrapporten påbygget i tre omganger, oppført i tre og er fundamentert med grunnmur av betong, sparesteinsmur og lettklinkerblokker. Yttervegger og etasjeskillere av trekonstruksjoner. Fasader utført i liggende kledning. Takkonstruksjon utført i saltaksform utvendig tekket med papp fra ca. 1990. Profilert/glatt entrédør av tre. Terrassedør og vinduer med karmer av tre og to-/tre-lags glass fra ukjent årstall, 1973, 1983 og 2001.
Frittstående anneks. Bygning i trekonstruksjoner. Fasaden er kledd med liggende trekledning. Saltak i trekonstruksjoner. Yttertak er utvendig tekket med takpapp. I følge huseier har konstruksjonen isolerte vegger og tak.
Frittstående utebod. Bygning i trekonstruksjoner. Fasaden er kledd med liggende trekledning. Pulttak i trekonstruksjoner. Yttertak er utvendig tekket med asfaltpapp.
Les forøvrig mer om byggemåte og den tekniske tilstanden i rapporten.
Det gjøres spesielt oppmerksom på:
TG3 er gitt:
- Utkragede eller understøttede konstruksjoner (balkonger, verandaer): Det er ikke etablert rekkverk, fall fare fra terrasse. Tiltak anbefales.
(Sjablongmessig prisanslag: kr 0 - 10 000)
- Forstøtningsmurer: Det mangler rekkverk. Tiltak må påregnes
(Sjablongmessig prisanslag: kr 0 - 10 000)
TG2 er gitt:
Bad:
- Ventilasjon: Ingen luftespalte over/under dør, som fører til redusert ventilasjon når dørene lukkes. Naturlig ventilasjon og ikke mekanisk avtrekk. Redusert luftutskiftning.
- Overflater vegger: Underkant veggplater er ikke montert iht. monteringsanvisning og levetiden vil derfor være redusert. Det kan ikke verifiseres om plater er tilstrekkelig limt i hjørner. Risiko/konsekvens: Eventuelt mulighet for fukt å kunne trekke inn i konstruksjonen.
- Overflater himling: Riss/sprekk mellom plater i himling og taklist. Det er ikke observert synlige tegn på skade, men skjulte/bakenforliggende skader kan ikke utelukkes.
Kjøkken:
- Vannrør: Kobberrør er vurdert til å ha en alder som tilsier begrenset/usikker restlevetid.
- Innredning: Stedvis hakk/merker i benkeplatens overflate.
Øvrige rom:
- Ventilasjon: TG2 gjelder soverom 2: Ventilasjonen vurderes til å stedvis ikke være tilfredsstillende. Det er ikke registrert ventil. Konsekvens kan være redusert luftutskiftning.
- Overflater himling: Riss/sprekker i skjøter himling soverom 2.
- Overflater gulv: Det registreres stedvis riper/hakk/merker i gulvets overflatemateriale. Det er stedvis knirk i gulvflater.
- Innerdører: Enkelte innerdører har skader/slitasje.
- Annet: Vaskemaskin er plassert i rom uten sluk eller annen fuktsikring.
Krypekjeller:
- Inspeksjon utvendig: Utvendig terreng inntil krypekjeller heller feil vei. Det betyr uønsket vanntilsig og ytterligere merbelastning av fukttilførsel og skaderisiko.
- Inspeksjon innvendig: Krypkjelleren har symptomer som tyder på forhøyet fuktighet. Krypekjeller har tilsig av fukt i grunn. Det er økt risiko for skader, oppfølging med jevnlig ettersyn anbefales.
Etasjeskillere:
- Det er merkbare skjevheter stue. Forskjellen mellom høyeste og laveste punkt i rommet er målt til 35 mm. Setninger kan ikke utelukkes. Det er vanskelig å si om situasjonen er stabilisert eller fortsatt under utvikling.
Radon:
- Det er ikke foretatt radonmåling i boligen og verdiene er derfor ukjent.
Elektrisk anlegg:
- Som følger av manglende samssvarerklæring på deler av det elektriske anlegget som er montert etter år 1999 er TG2 satt i henhold til NS3600. (Det har vært ettersyn på det elektriske anlegget i Juni 2022)
Fasader:
- Utvendige flater har stedvis behov på vedlikehold. Stedvis ingen luftespalte bak trekledning.
- Stedvis ingen luftespalte bak trekledning. Forholdet kan redusere levetiden til kledningen og veggkonstruksjonen.
- Registrert råteskader på hjørnekasse mot nordøst. Råteskader bør utbedres. Skjulte/bakenforliggende skader kan ikke utelukkes.
- Registrert råteskader i kledning mot vest ved lufting fra forbrenningstoalett. Råteskader bør utbedres. Skjulte/bakenforliggende skader kan ikke utelukkes.
- Kledning går ned under terreng ved inngangsparti. Selv om det ikke er observert skader av større betydning kan dette være med å påvirke levetiden negativt.
- Konstruksjon: Grunnet observasjon av råteskader på ytterkledning kan skade i bakenforliggende konstruksjoner ikke utelukkes.
Yttertak:
- Tekking: Det er registrert symptomer på elde og slitasje, selv om det ikke ble observert tegn på lekkasjer eller skader.
- Takgjennomføringer: Løsning ned mot tekking vedrørende gjennomføring ved skorstein er ikke ideell. Selv om det ikke er observert tegn på skader/lekkasje kan ikke skjult/bakenforliggende skader utelukkes.
- Konstruksjon: Konstruksjonen er lukket, og det er ikke kjent hvordan oppbyggingen er utført. Erfaringsmessig betraktes slike konstruksjoner som risikokonstruksjoner blant annet med tanke på fukt-/kondensproblematikk. Det er ikke observert skader eller symptomer på skader, men skader kan ikke utelukkes.
- Gesimsløsninger: Det kan ikke verifiseres at det er etablert lufting i/ved gesims. Følgeskader er ikke registrert, men kan ikke utelukkes.
- Beslag, renner: Det er stedvis dårlig fall på renner, registrert vannansamling. Tilstrekkelig fall på renner anbefales etablert.
Dører og vinduer:
- Beslagsløsninger under vindu er løse. Fare for fukt i konstruksjonen.
- TG2 gjelder entrédør: Overgang i bunn av dør er ikke avsluttet med blekk. Det er ikke mulig å verifisere om løsningen er fullgod.
- TG2 gjelder dør til krypekjeller: Dør bærer preg av slitasje/alder, det kan ikke utelukkes behov for utbedringer/utskiftning.
Balkong, terrasser, veranda:
- Rekkverkshøyden er under 1,0 meter. Avvik fra dagens byggeteknisk forskrift.
Utvendige trapper:
- Utvendige trapper tilfredsstiller ikke krav til rekkverk/håndløper.
Grunnmur:
- Det er observert riss/sprekk i grunnmur mot sydøst i krypekjeller. Det er vanskelig å si om situasjonen er stabilisert eller fortsatt under utvikling. Stedvis observert riss/sprekker samt skjevheter i deler av lettklinkerblokker som utgjør en kosmetisk funksjon mellom søylepunkter.
Drenering:
- Utvendig terreng inkl. fuktsikring av grunnmur: Terrenget rundt bygget har stedvis fall mot grunnmur. Innebærer økt fuktbelastning på grunnmuren og risiko for fuktinnsig/-skader.
- Alder: Dreneringen har nådd en alder der funksjonssvikt ikke kan utelukkes.
Vann- og avløpsledninger:
- TG2 gjelder brønnvann: Fremlagt dokumentasjon på vannkvalitet, datert 24.08.2023. Prøve viser at vannets ikke bør drikkes. Skal vannet benyttes som drikkekilde må det påberegnes utbedrende tiltak.
Anneks:
- Det er foretatt en forenkel og overordnet vurdering av tilstanden og i forhold til byggeår vurderes moderat vedlikehold å være tilstrekkelig. Se takst for avvik registrert.
Bod:
- Det er foretatt en forenkel og overordnet vurdering av tilstanden og i forhold til byggeår vurderes moderat vedlikehold å være tilstrekkelig. Dør bærer preg av alder/slitasje.
TGIU er ikke gitt.
Se supplerende tekst i tilstandsrapporten. Kjøper overtar ansvar og risiko for dette.
Standard
"Sjøgløtt" er en koselig fritidsbolig over én etasje. Boligen består av entré, to soverom, bad, kjøkken og en romslig stue. Fra stuen er det utgang til en sydvendt terrasse på 27 kvm, som videre leder til en veranda på 24 kvm. Det er tilliggende anneks med to soverom og en frittstående bod.
Entré
Lys og hyggelig entré med rikelig av plass til oppbevaring av klær og sko.
Stue
Hyggelig stue med god plass til sofagruppe og spiseplass. Pen vedovn som gir god varme og skaper en hyggelig atmosfære på kjølige kvelder. Utgang fra stue til sydvendt terrasse på 27 kvm med videre adkomst til veranda på 24 kvm.
Kjøkken
Romslig kjøkken med kjøkkeninnredning fra IKEA fra ca. 2000 med glatte fronter og heltre benkeplate med nedfelt oppvaskkum i rustfritt stål. Det er flislagt mellom benkeplate og overskap samt stikkontakter og belysning over benkeplate. Det er oppvaskmaskin, frittstående komfyr med steketopp, frittstående kjøleskap m/fryser og integrert ventilator tilkoblet avtrekkskanal. Gulvflate belagt med laminat og vegger og himlingsflate med malt panel.
Følgende hvitevarer medfølger: Oppvaskmaskin, komfyr og kjøleskap m/fryser
Det gjøres oppmerksom på at hvitevarene er kjøpt for noen år tilbake, og kjøper må forvente slitasje som følge alder og normal bruk.
Soverom
Fritidsboligen har to hyggelige soverom i hytta og to lyse soverom i annekset. På det ene soverommet i fritidsboligen er det et garderobeskap, og på de andre rommene er det gode muligheter for oppbevaringsløsninger.
Bad
Pent bad fra ca. 2013. Gulvflate belagt med gulvbelegg og vegger med våtromsplater. Himlingsflate utført i glatt malt flate. Vegghengt innredning med heldekkende servant og ett-greps armatur. Overskap med speildører på vegg med overlys og stikkontakt over servant. Dusjkabinett med buede glassdører med ett-greps armatur. Gulvmontert forbrennings toalett. Avtrekksventil plassert i vegg.
Teknisk/VVS
- Vannrør av kobber og plast
- Synlige avløpsrør av plast
- Stoppekran for vann er plassert i krypekjeller samt i kasse for trykktank i anneks
- Varmtvannsbereder på ca 198 liter fra 2013 plassert i krypekjeller
- Opplegg for vaskemaskin i gang i anneks
- Boligen har røykvarsler og brannslukningsutstyr
Vegger: Malt tapet og malt strietapet
Gulv: Heltre gulv, laminat og gulvbelegg
Himling: Malt panel
Løsøre og tilbehør
Vi viser til liste fra Norges Eiendomsmeglerforbund som gjelder fra 01.01.2020 angående løsøre og tilbehør.
Oppvarming
Boligen er elektrisk oppvarmet kombinert med vedfyring.
Dersom beboelsesrom ikke har vegg- eller fastmonterte varmekilder ved visning, følger dette heller ikke med.
Skringsskap
Sikringsskap fra 2023 med automatsikringer er plassert i entré.
Ferdigattest/brukstillatelse
Eiendommen har vært brukt til fritidsbolig siden byggeår.
Kommunen opplyser at det ikke foreligger ferdigattest eller midlertidig brukstillatelse for eiendommen. Det finnes av den grunn ikke dokumentasjon over eiendommens lovlighet.
Det gjøres oppmerksom på at det ikke lenger utstedes ferdigattest på tiltak det er søkt om før 1998 jf. plan- og bygningsloven § 21-10. Kommunen vil ikke kreve ferdigattest for disse tiltakene og vil avvise eventuelle søknader. Bestemmelsen innebærer ikke at tiltak med manglende søknad blir lovlige, men at man ikke trenger å avslutte gamle byggesaker. Normalt sett kreves ferdigattest for alle søknadspliktige tiltak som gjøres etter plan- og bygningsloven. Kjøper overtar eiendommen slik den fremstår på visning med risiko og ansvaret for eventuelle pålegg fra kommunen og kostnader forbundet med dette.
Det foreligger ikke bygning tegninger for eiendommen i kommunes arkiv. Takstmannen har, på bakgrunn av en vurdering opp mot gjeldende tekniske forskriftskrav, ansett rommene som egnet for varig opphold. Det gjøres likevel oppmerksom på at dette ikke er å anse som en formell godkjenning, og at det fortsatt knytter seg usikkerhet til hvorvidt rommenes bruk er i samsvar med offentlig godkjenning.
Kjøper overtar eiendommen slik den fremstår på visning med risiko og ansvaret for eventuelle pålegg fra kommunen og kostnader forbundet med dette.
Tinglyste heftelser og rettigheter
Eiendommen overdras fri for pengeheftelser.
Det er tinglyst følgende servitutt på eiendommen.
2010/127955-1/200 18.02.2010 Jordskifte
Jordskiftesak 0200-2008-0018 Kjøyakollveien-2
Gjelder denne registerenheten med flere
Forklaring: På denne eiendommen gnr. 51, bnr. 278 er det tinglyst en heftelse i form av et jordskiftevedtak fra Akershus og Oslo jordskifterett, tinglyst 18.02.2010.
Vedtaket omfatter eiendommens rettigheter og plikter knyttet til Kjøyakollveien og Åsebuktveien, og regulerer både bruk og vedlikehold av felles vei samt pliktig deltakelse i veilaget.
Hovedpunkter i heftelsen:
Vegrett: Eiendommen har lovfestet vegrett til Kjøyakollveien/Åsebuktveien.
Vedlikeholdsplikt: Det følger en andel i felles vedlikehold og drift av veien. Eiendommen (gnr. 51, bnr. 278) er oppført med vedlikeholdsandel på 0,35, tilsvarende 350 meter vegbruk.
Investeringstiltak: Eiendommen inngår i flere definerte investeringsområder (bl.a. Tiltak I og II), og er pliktig deltaker ved framtidige utbedringer og oppgraderinger.
Veilag: Eiendommen er medlem i veilaget og omfattes av egne vedtekter fastsatt ved jordskifteretten. Det er ikke adgang til utmelding så lenge veien benyttes som adkomst.
Felleskostnader: Kostnader til drift og investeringer fordeles i henhold til andel, og kreves inn forskuddsvis.
Vedtektene dekker i tillegg regler om årsmøter, stemmerett, rett til varsling, erstatningsansvar ved skade, bruk og parkering, samt bestemmelser om endringer og eierskifter.
Servituttene vil følge eiendommen. Kjøpers bank vil få pant etter ovennevnte heftelser og servitutter.
Eventuell adgang til utleie
Fritidseiendommen har ikke separat utleiedel. Det vil normalt være anledning til utleie av hele eiendommen eller enkeltrom, såfremt utleiearealet er bygningsmessig godkjent for varig opphold.
Diverse
Eiendommen selges fullt møblert som den fremstår på visning.
Tilbud av produkter og tjenester fra våre samarbeidspartnere
VI er opptatt av verdiskapning, og har knyttet til oss samarbeidspartnere som skal sikre våre kunder de beste produkter og tjenester;
• Gjensidige leverer boligselgerforsikring og tilbyr bygningsforsikring
• Boligkjøperforsikring levers av Hiscox og med Sedgwick som skadebehandler, og er formidlet gjennom Gjensidige.
• BN bank tilbyr finansieringsløsninger
• Vår avdeling Krogsveen Pluss tilbyr flyttetjenester som utvask, visningsvask, lager, tømming og transport av flyttelass, i tillegg til å formidle kontakt med Flip for overflateoppussing.
• I forbindelse med overtagelse av eiendommen tilbyr Overo avtale om strøm, alarm og bredbånd.
• Krogsveen er, sammen med øvrige bransjeaktører, medeier i den digitale annonseringsplattformen Hjem.
Beliggenhet og tomteforhold
Beliggenhet og tomteforhold
Beliggenhet
Fritidsboligen ligger idyllisk og landlig til på Brevik i Nordre Frogn. Det er flott turterreng i området både sommer og vinter. Gangavstand til populær badestrand og brygge på Brevik. Nærhet til Dal idrettsbane og klubbhus. Ca. 15 min. med bil til Drøbak sentrum med forretninger, kafeer, restauranter, båthavn og strender. Ca 35 minutters kjøring til Oslo og ca 10 min. med bil til tettstedet Fagerstrand og til Vinterbro kjøpesenter og E6. Bussholdeplass ved Dal skole med avganger til blant annet Nesoddtangen Brygge (ca. 20 min.) med videre båtforbindelse til Aker Brygge/Lysaker.
Brevik Vel arrangerer St. Hans feiring og andre hyggelige sammenkomster nede ved stranden. Se Brevik Vel på Facebook for å se bilder.
Aktiv idrettsforening "Skaubygda IL" med tilbud og aktiviteter for alle.
Adkomst
Ta av ved Nesset og følg fv 156 mot Nesoddtangen. Ta til høyre inn Brevikveien rett etter Dal skole og følg denne mot Brevik brygge. Ta deretter inn Kjøyakollveien på venstre hånd og følg denne innover. Ta til høyre inn Åsebuktveien og deretter første stikkvei på høyre hånd. Eiendommen ligger i enden av denne. Det vil bli skiltet med Krogsveen visningsskilt ved fellesvisninger. Se også Google maps - det er enkelt å finne frem i kartet.
Beskrivelse av tomt
Eiertomt på 827 kvm som er pent opparbeidet med grønne plener, beplantninger og trær. Tomten består også av vakker naturtomt.
Parkering
Tre biloppstillingsplasser på egen tomt
Vei, vann og avløp
Vei: Eiendommen har adkomst via smal, privat vei med felles vedlikeholdsansvar.
Vann: Boligen har privat stikkledningen tilknyttet borrehull fra ca. 1980. Her er det kun sommervann. Tappeventil for vann er plassert under trapp til terrasse. Trykktank fra 2022 plassert i kasse i anneks.
Avløp: Privat gråvannstank i glassfiber fra ca 2015 plassert i krypekjeller.
Regulerings-og arealplaner
Eiendommen ligger i et uregulert område, men er i kommuneplan fra 2018 avsatt til fritidsbebyggelse.
Utsnitt av plan med tilhørende bestemmelser kan fås ved henvendelse til megler.
Økonomi
Økonomi
Kommunale utgifter
Kommunale avgifter er kr 2 539,- for 2023. I dette inngår gebyr for renovasjon og slam.
Nåværende eier har et strømforbruk som tilsvarer ca. 6761 kwh/år.
Boligen har en årlig forsikringspremie på kr 5042,-pr.år.
Veiavgift kr 1700,-/år. Inkluderer brøyting og vedlikehold.
Boligen er tilknyttet Alente som leverandør av kabel-TV og har avgift på ca. kr. 500 pr. mnd. Tv-tuner medfølger ikke.
Utgiftene er basert på nåværende eiers forbruk og avtaler.
Formuesverdi
Formuesverdi for 2023 var kr 249 484,- ifølge skatteetaten.
Eiendomsskatt
Eiendomsskatten utgjør ca. kr. 3800,- pr år.
Omkostninger
2 900 000,00 Prisantydning
Omkostninger
72 500,00 Dokumentavgift til staten (2,5% av kjøpesum)
19 900,00 Gjensidige Boligkjøperpakke (valgfri)* (valgfritt)
545,00 Tinglysing panterettsdokument
545,00 Tinglysing skjøte
--------------------------------------------------------
73 590,00 Omkostninger totalt (uten Gjensidige Boligkjøperpakke (valgfri))
93 490,00 Omkostninger totalt (med Gjensidige Boligkjøperpakke (valgfri))
--------------------------------------------------------
2 973 590,00 Totalpris inkl. omkostninger
2 993 490,00 Totalpris inkl. omkostninger (med Gjensidige Boligkjøperpakke (valgfri))
--------------------------------------------------------
Totalpris inkl. omkostninger forutsetter kjøp til prisantydning.
Det tas forbehold om endringer i avgifter og gebyrer.
Tilbud om lånefinansiering
Megler formidler gjerne kontakt med rådgiver hos vår samarbeidspartner BN Bank. De har konkurransedyktige betingelser samt rask og løsningsorientert behandling av din lånesøknad. Krogsveen mottar et honorar for denne formidlingen.
Betalingsbetingelser
Kjøpesum inkludert omkostninger, samt pantedokument tilknyttet eventuelt lån, skal være disponibelt hos megler 2 virkedager før overtagelsen.
Annen viktig informasjon
Annen viktig informasjon
Eier
Solveig Sypriansen
Overtakelse
Etter nærmere avtale.
Boligselgerforsikring
Selger har i forbindelse med salget tegnet boligselgerforsikring levert av Gjensidige.
Boligselgerforsikringen dekker selgers ansvar etter avhendingsloven begrenset oppad til kr 14 millioner. Dersom kjøper oppdager forhold ved eiendommen som hen mener utgjør en mangel ved eiendommen, vil Gjensidige behandle reklamasjonen på vegne av selger. Forsikringsvilkår kan fås ved henvendelse til megler.
Vedlagt salgsoppgaven følger selgers egenerklæringsskjema og tilstandsrapport. Interessenter må sette seg inn i dokumentene før bud inngis.
Boligkjøperforsikring
Innen kontraktsmøtet må kjøper ta stilling til om det ønskes å bestille Boligkjøperpakken gjennom Gjensidige. I denne gunstige pakken er boligen ferdig forsikret og inkluderer rettshjelpsforsikring, også kalt Boligkjøperforsikring. Rettshjelpsforsikring gir trygghet og tilgang på profesjonell juridisk hjelp dersom det oppdages uventede feil eller mangler det første året etter overtagelse. Forsikringsselskapet behandler i så fall ethvert mangelskrav kjøper måtte ha overfor selger.
Boligkjøperpakken inkluderer bygningsforsikring for hus og hytte, innboforsikring, flytteforsikring og dobbel rentedekning - i situasjoner hvor kjøper ikke får solgt nåværende primærbolig.
Kjøper mottar ingen særskilt faktura for Boligkjøperpakken da kostnaden det første året legges til kjøpesummen for boligen. Det gjøres oppmerksom på Krogsveen mottar et honorar for denne formidlingen.
Produktark for Boligkjøperpakken ligger vedlagt i salgsoppgaven.
Dersom ikke boligkjøperpakke ønskes kan kun rettshjelpsforsikring, også kalt boligkjøperforsikring, tegnes særskilt via megler. Rettshjelpsforsikringen varer i 5 år fra overtagelse og leveres gjennom Gjensidige. Ta kontakt med megler for ytterligere informasjon.
Selskap og privatpersoner som driver med kjøp/salg/utvikling som ledd i egen næringsvirksomhet kan ikke tegne boligkjøperpakke eller rettshjelpsforsikring.
Budgivning
Forbrukerinformasjon om budgivning er vedlagt denne salgsoppgaven og er også på vår hjemmeside Krogsveen.no. Alle bud og budforhøyelser må inngis skriftlig. I tillegg må legitimasjon være fremlagt sammen med signatur fra budgiver.
Vi oppfordrer til å gi bud elektronisk via GI BUD-knappen på eiendommens hjemmeside på Krogsveen.no. Da vil samtlige vilkår bli oppfylt.
Eventuelle forhøyelser eller endringer av budet kan bekreftes pr SMS eller på e-post. Vi oppfordrer alltid til å kontakte megler pr. telefon i tillegg da forsinkelser i SMS og e-post kan forekomme.
For at budene skal kunne bli behandlet og videreformidlet skriftlig til alle involverte parter, må alle bud ha en tilstrekkelig lang akseptfrist, jf. eiendomsmeglingsforskriften § 6-3.
Selger må også skriftlig akseptere budet før aksept kan formidles til budgiver. Akseptfrist bør derfor være på minimum 30 minutter, og budforhøyelser må derfor skje i god tid før fristens utløp.
Bud i forbrukerforhold kan uansett ikke settes med kortere frist enn kl. 12.00 første virkedag etter siste annonserte visning. I tillegg kan ikke budet ha forbehold om at det skal holdes hemmelig ovenfor øvrige interessenter. Megler har iht lov om eiendomsmegling ikke anledning til å videreformidle disse budene, og de vil dermed heller ikke bli journalført.
Etter at eiendommen er solgt vil kjøper og selger få tilsendt budjournal. Øvrige budgivere kan få utlevert kopi av budjournalen i anonymisert form.
Hvitvaskingsreglene
I henhold til lov om hvitvasking og terrorfinansiering har megler plikt til å gjennomføre kontrolltiltak overfor kunder, herunder fullmektiger. Dette innebærer bl.a. å bekrefte kunders og reelle rettighetshaveres identitet på bakgrunn av fremvist gyldig legitimasjon eller på annen godkjent måte, samt å innhente opplysninger om kundeforholdets formål og tilsiktede art.
Dersom slike kundetiltak ikke kan gjennomføres, kan megler ikke etablere kundeforholdet eller utføre transaksjonen.
Hvis kjøper ikke bidrar til gjennomføring av kundekontrollen og dette fører til at transaksjonen blir forsinket eller ikke kan gjennomføres, vil dette ansees som mislighold av avtalen og gi selger rettigheter etter avhendingslova kapittel 5. I tilfeller der selger ikke bidrar til gjennomføring av løpende kundekontroll underveis i oppdraget, er det selger som misligholder sine forpliktelser etter avtalen og gi kjøper rettigheter etter avhendingslovens kapittel 4. Partene er selv ansvarlige for eventuelle kostnader og ansvar dette kan medføre. Eiendomsmegleren eller eiendomsmeglingsforetaket kan ikke holdes ansvarlig for de konsekvenser dette vil kunne få for partene eller andre som har interesser i eiendomshandelen.
Kjøper oppfordres til å innbetale kjøpesummen som ikke kommer fra låneinstitusjon i én samlet innbetaling fra egen konto i norsk bank. Megler har plikt til å melde fra til Økokrim om eiendomshandler som fremstår som mistenkelige. Melding sendes Økokrim uten at partene varsles.
Personopplysningsloven
I henhold til personopplysningsloven gjør vi oppmerksom på at interessenter kan bli registrert for videre oppfølging.
Lovanvendelse
Generelle bestemmelser
Salgsoppgaven er basert på de opplysningene selger har gitt til megler, den bygningssakyndiges tilstandsrapport, samt opplysninger innhentet fra kommunen, Kartverket og andre tilgjengelige kilder. Det er viktig at kjøper setter seg grundig inn i alle salgsdokumentene, herunder salgsoppgave, tilstandsrapport og selgers egenerklæring. Kjøper anses kjent med forhold som er tydelig beskrevet i salgsdokumentene, og slike forhold kan ikke påberopes som mangler. Dette gjelder uavhengig av om kjøper har lest dokumentene. Alle interessenter oppfordres til å undersøke eiendommen nøye, gjerne sammen med fagkyndig før bud inngis. Kjøper som velger å kjøpe usett kan ikke gjøre gjeldende som mangel noe han burde blitt kjent med ved undersøkelsen.
Dersom det er behov for avklaringer, anbefaler vi at interessenter rådfører seg med eiendomsmegler eller egne rådgivere før det legges inn bud.
En bolig som har blitt brukt i en viss tid, har vanligvis blitt utsatt for slitasje og skader kan ha oppstått. Slik bruksslitasje må kjøper regne med, og det kan avdekkes enkelte forhold etter overtakelse som nødvendiggjør utbedringer. Normal slitasje og skader som nødvendiggjør utbedring, er innenfor hva kjøper må forvente og vil ikke utgjøre en mangel.
Kjøper og selgers rettigheter og plikter reguleres av avtalen mellom partene, samt informasjonen som har vært tilgjengelig for kjøperen i forbindelse med handelen. Avtalen utfylles av avhendingsloven, og det gjelder ulike avtalevilkår avhengig av om kjøper er forbrukerkjøper eller ikke. Dette er nærmere beskrevet nedenfor.
På grunn av ulike avtalevilkår kan selger vurdere bud fra en som ikke er forbruker, ulikt fra en forbrukers bud. Dersom kjøper ikke er forbruker, er selger sitt mulige mangelsansvar begrenset fordi eiendommen selges "som den er". Selger kan ikke ta «som den er»- forbehold overfor en forbrukerkjøper. Selv et lavere bud fra en som ikke er forbruker kan foretrekkes fordi begrensningen i mulig mangelsansvar kan ha egenverdi for selger. Selger står fritt til å forkaste eller akseptere ethvert bud, og er for eksempel ikke forpliktet til å akseptere høyeste bud.
Budgiver skal i budskjema avgi egenerklæring om budgiver er forbruker eller næringsdrivende/ person som hovedsakelig handler som ledd i næringsvirksomhet. Budgivere får informasjon dersom andre bud er inngitt av en som ikke er forbruker.
Forbrukerkjøp - definisjon
Med forbrukerkjøp menes kjøp av eiendom når kjøperen er en fysisk person som ikke hovedsakelig handler som ledd i næringsvirksomhet.
Forbruker – avtalevilkår
Eiendommen har en mangel dersom den ikke er i samsvar med kravene som følger av avtalen, eller det foreligger brudd på bestemmelsene i avhendingsloven §§ 3-2 til 3-8. Hvis eiendommen ikke er i samsvar med det kjøperen må kunne forvente ut ifra alder, type og synlig tilstand, kan det være grunnlag for mangelskrav. Det samme gjelder hvis det er holdt tilbake eller gitt uriktige opplysninger om eiendommen. Dette gjelder likevel bare dersom man kan gå ut ifra at det virket inn på avtalen at opplysningen ikke ble gitt eller at mangelskravet ikke blir rettet i tide på en tydelig måte.
Boligen kan ha en mangel etter avhendingsloven § 3-3 andre ledd, dersom det er avvik mellom opplyst og faktisk innvendig areal, forutsatt at avviket er på 2% eller mer og minimum 1 kvm.
Ved beregning av et eventuelt prisavslag eller erstatning må kjøper selv dekke tap/kostnader opptil et beløp på kr 10 000 (egenandel).
Ikke-forbruker (næringsdrivende) – definisjon
Hvis kjøper er en juridisk person, eller en fysisk person som hovedsakelig handler som ledd i næringsvirksomhet, vil kjøpet ikke anses som et forbrukerkjøp.
Ikke-forbruker – avtalevilkår
Eiendommen har en mangel dersom den ikke er i samsvar med kravene som følger av avtalen.
Eiendommen selges «som den er», og selgers ansvar utover det konkret avtalte er da begrenset etter avhendingsloven § 3-9, første ledd andre setning.
Avhendingsloven § 3-3 andre ledd fravikes, og hvorvidt boligens arealsvikt utgjør en mangel vurderes etter avhendingsloven § 3-8.
Informasjon om kjøpers undersøkelsesplikt, herunder oppfordringen om å undersøke eiendommen nøye, gjelder også for kjøpere som ikke anses som forbrukere.
Det forutsettes at hjemmel overføres til kjøper. Hvis kjøper ikke ønsker hjemmelsoverføring av eiendommen, må det tas forbehold om dette i budet.
Meglers vederlag
Meglers vederlag betales av selger og er avtalt til:
Vederlag: 1,67% av salgssummen
Minimumsvederlag: kr 50.000,-
Tilrettelegging: fra kr 17.000,-
Oppgjør: kr 7.500,-
Markedspakke: kr 25.500,-
Visninger: kr 3.500,- pr. visning
Oppslag eiendomsregister: kr 2.900,-
Megler har i tillegg krav på dekning av utlegg:
Innhenting av dokumenter/servitutter fra grunnboken: kr 240,-/stk
Innhenting av offentlig opplysninger Frogn kommune: kr 3 714,-
Tinglysing sikring: kr 500,-
Boligselgerforsikring inkl. tilstandsrapport Anticimex: 31 867,-
Foto: kr 5 000,-
Opplysninger om oppdraget
Oppdragsnummer 51-0049/24
Eiendomsmegler Krogsveen AS, avd. Nesodden
Vestveien 51, Tangen Center, 1452, NESODDTANGEN
950 007 613
Oppdragets KR-kode KR51.2449
Dato
Sist oppdatert: 11. mai 2026 kl. 10:12
Dokumenter
Dokumenter
PDF – 656 KB
PDF – 497 KB
PDF – 914 KB
PDF – 312 KB
PDF – 29 KB
PDF – 127 KB
PDF – 392 KB
Område
Legg til steder som er viktige for deg
Visning
Ta kontakt med megler for avtale om privatvisning.
Ønsker du kun å bli holdt orientert, kan du fra eiendommens hjemmeside få varsel om solgtpris, eller kontakte megler.
Lurer du på noe?
Vurderer du utleie?
Få et tilbud fra Utleie KrogsveenHva koster lånet?
Sjekk estimert lånekostnadVil du varsles om lignende boliger?
Ved å lagre ditt boligsøk hos oss får du beskjed når vi har en bolig som ligner denne, før den legges ut på markedet!




