Bekkeveien 1
2 990 000 kr
122 m²
3 soverom
Solgt

Løken
Familievennlig enebolig med landlig beliggenhet i blindvei. Garasje - Stor, solrik terrasse. Kort vei til bhg & skole!
Prisantydning
2 990 000 krOmkostninger
95 740 krTotalpris
3 085 740 kr
Pris
Bruksareal
131 m²BRA-I (internt bruksareal)
122 m²BRA-E (eksternt bruksareal)
9 m²TBA (terrasse-balkongareal)
49 m²
Areal
Etasje
2Byggeår
1965Soverom
3 soveromBad
2 badTomteareal
1 827 m² (eiet)Type
Enebolig - FrittliggendeEierform
EietFasiliteter
Garasje/P-plass og Balkong/TerrasseEnergimerke
Oransje G
Nøkkelinfo
Unngå doble boligrenter
Vi tilbyr gunstig forsikring.
Vurderer du utleie?
Få et tilbud fra Utleie KrogsveenHva koster lånet?
Sjekk estimert lånekostnadBeskrivelse
Kort om eiendommen
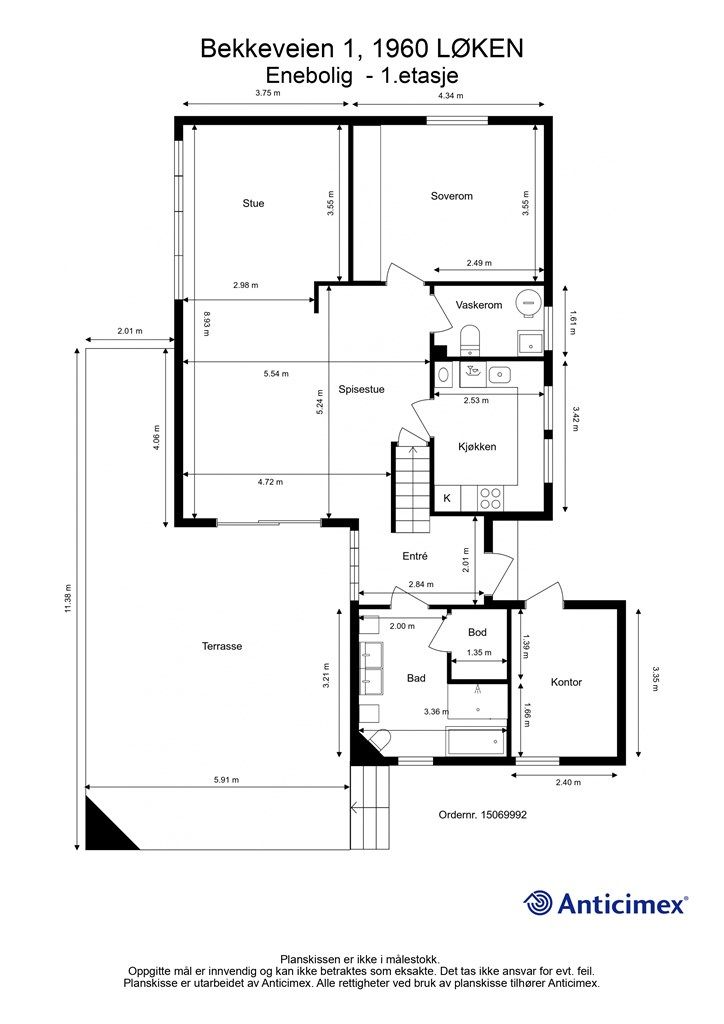
Velkommen til Bekkeveien 1, en hyggelig enebolig over to plan med svært barnevennlig beliggenhet og landlig sjarm på Løken. Eiendommen har en pent opparbeidet hage, hvorav mesteparten av hagen befinner seg på baksiden av boligen. Her er det god plass til utemøbler og lekeområder for liten og stor. Innvendig består boligen av en svært funksjonell planløsning med tre soverom, separat kjøkken, bad, vaskerom og romslig stue/spisestue løsning. Godt med lagringsplass i utvendig bod/lekestue, garasje, bod tilknyttet bad og kott i 2.etg. Umiddelbar nærhet til barnehage, skole, kollektiv og naturskjønne friluftsområder i skog og mark, som byr på gode turmuligheter hele året.
- Alt det nødvendige på en flate.
- Parkering i garasje og på steinlagt gårdsplass.
- Utsikt over jorder og friarealer.
Område
Legg til steder som er viktige for deg
På flyttefot? Tenk kjøp og salg samtidig.
Få din egen rådgiver gjennom hele kjøps- og salgsprosessen. Det starter med en verdivurdering.
Unngå doble boligrenter
Vi tilbyr gunstig forsikring.
Vurderer du utleie?
Få et tilbud fra Utleie KrogsveenHva koster lånet?
Sjekk estimert lånekostnadVil du varsles om lignende boliger?
Ved å lagre ditt boligsøk hos oss får du beskjed når vi har en bolig som ligner denne, før den legges ut på markedet!

