Dallonaveien 59
4 900 000 kr
146 m²
4 soverom
Komplett salgsoppgave

Vågsbygd
Innholdsrik familiebolig over 3 plan. 4 soverom, garasje og en fantastisk, usjenert hage med hagestue.
Prisantydning
4 900 000 krOmkostninger
143 490 krTotalpris
5 043 490 kr
Pris
Bruksareal
196 m²BRA-I (internt bruksareal)
146 m²BRA-E (eksternt bruksareal)
50 m²TBA (terrasse-balkongareal)
31 m²
Areal
Etasje
3Byggeår
1947Soverom
4 soveromBad
1 badTomteareal
795 m² (eiet)Type
Enebolig - FrittliggendeEierform
EietFasiliteter
Garasje/P-plass og Balkong/Terrasse
Nøkkelinfo
Unngå doble boligrenter
Vi tilbyr gunstig forsikring.
Vurderer du utleie?
Få et tilbud fra Utleie KrogsveenHva koster lånet?
Sjekk estimert lånekostnadBeskrivelse
Kort om eiendommen
Velkommen til en sjarmerende enebolig som kombinerer plass, privatliv og en trygg beliggenhet.
Her ligger alt til rette for en behagelig hverdag for små og store, i et område preget av lekende barn og et godt nabolag.
Sentralt beliggende i et etablert og rolig område med gangavstand til de fleste av Vågsbygds fasiliteter.
Populære Vågsbygdskaugen, skoler i alle trinn, flere barnehager og AMFI Vågsbygd ligger alle innen gangavstand.
Boligen er velholdt og pent innredet. Her får man 4 soverom, kjellerstue og rikelig med oppbevaringsplass.
Stort bad og toalettrom i hver etasje, samt eget vaskerom.
En stor solrik hage med flere ulike sittesoner og godt med sol. Hagestue og garasje.
Det er rikelig med parkeringsplasser på fremsiden av tomta.
Innhold og byggemåte
Innhold og byggemåte
Eiendommen
Dallonaveien 59, 4621 KRISTIANSAND S
Kommunenummer 4204, gårdsnummer 14, bruksnummer 145, ideell andel 1/1
Innhold
Totalt bruksareal BRA: 196 kvm
BRA-i:
Kjeller: 50 kvm: Gang, stue, vaskerom, bad og soverom.
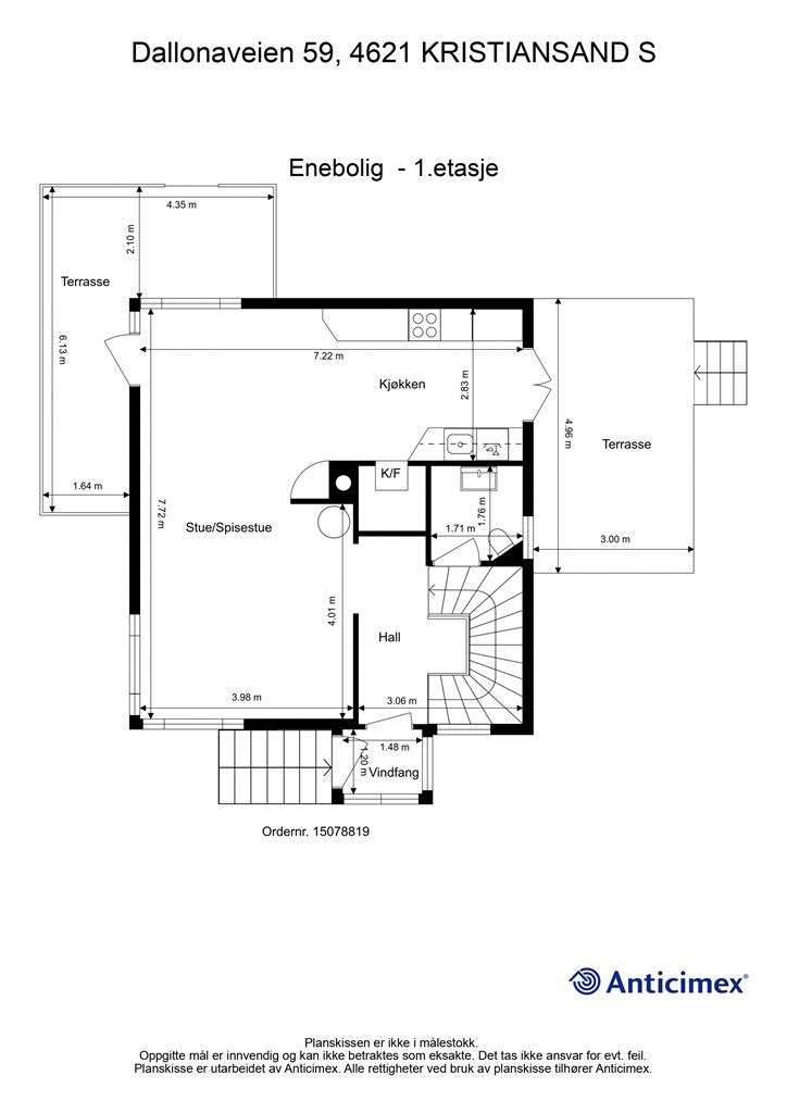
1. etasje 58 kvm: Vindfang, hall, toalettrom, stue/spisestue og kjøkken.
2. etasje 38 kvm: Gang, toalettrom og tre soverom.
BRA-e:
Garasje med bod:
1. etasje 25 kvm: Garasje og bod
Hagestue:
1. etasje 25 kvm: Hagestue
Åpent areal:
1. etasje 31 kvm: To terrasser (15m2 og 16m2).
Byggemåte
Selger har innhentet en tilstandsrapport av boligen/eiendommen. Av rapporten fremgår det at flere bygningsdeler har fått tilstandsgrad ikke undersøkt/ikke tilgjengelig for undersøkelse (TG IU), 2 (TG2) og/eller 3 (TG3). Rapporten beskriver også avvik på undersøkte bygningsdeler uten tilstandsgrad. Kjøper overtar ansvaret for de opplysninger som fremkommer av salgsdokumentasjonen, og kan ikke gjøre gjeldende som mangel noe som burde vært kjent eller som ikke kan anses å ha betydning for avtalen.
Bygningen er iht. tilstandsrapporten oppført med grunnmur av betong. Bygget er oppført med støpt gulv mot grunn. Yttervegger av trekonstruksjoner. Utvendige fasader er kledd med liggende trekledning. Etasjeskillere av trekonstruksjoner. Saltak i trekonstruksjoner. Yttertak er belagt med takstein. Vinduer med karmer av tre. Terrassedør
med karmer av tre. Boligen ventileres hovedsakelig med naturlig ventilasjon gjennom vinduer og ventiler.
Les for øvrig mer om byggemåte og den tekniske tilstanden i rapporten.
Sammendrag av tilstandsrapporten:
TG1: 26 Stykk
TG2: 14 Stykk
TG3: 4 Stykk
HMS: 3 Stykk
Det gjøres spesielt oppmerksom på:
- ldsteder
Til informasjon er vurderingen av pipen er begrenset til en visuell kontroll av synlige flater, og omfatter ikke
funksjonstesting, aldersvurderinger eller inspeksjon av pipens innside (innvendig pipeløp).
TG 3 Ildsteder Ildsted vendt mot kjøkken har ingen underliggende ubrennbar plate. Konsekvensen er at glør og gnister
kan treffe brennbart materiale/gulvet når ildstedet brukes, noe som medfører risiko for brannsikkerheten.
Foreslått strakstiltak og underliggende sjablongmessige prisanslag gjelder for etablering av ubrennbar
plate på gulv.
Sjablongmessig prisanslag: kr 0 - 10 000
Ytterdør kjeller:
- Ytterdører og omramming
Ytterdør underetasje (TG3):
Døren har betydelig slitasje, og det er registrert skader/funksjonssvikt. Konsekvens er at dørens levetid
vurderes som passert. Foreslått tiltak er komplett utskiftning. Følgende sjablongmessig prisanslag gjelder
for utskiftning av dør.
Sjablongmessig prisanslag: kr 0 - 10 000
Garasje:
- Veggkonstruksjon og fasadematerialer
Fasadematerialer viser tydelige tegn til elde, og det er registrert råteskader. Konsekvens er at materialet et
utsatt for en pågående nedbrytning, og følgeskader i veggkonstruksjonen kan ikke utelukkes. Foreslått
strakstiltak er utbedring av råteskader samt overflatebehandling av berørte områder, samt ytterligere
undersøkelser for å avdekke eventuelle bakenforliggende skader.
Sjablongmessig prisanslag gjelder for utbedring av råteskader, overflatebehandling og ytterligere
undersøkelser.
Sjablongmessig prisanslag: kr 10 000 - 50 000
- Vinduer, dører og porter Vinduenes, ytterdør og garasjeport har en alder og tilstand tyder på at levetiden er passert. Det er
registrert betydelig slitasje, skader og andre tegn på funksjonssvikt. Konsekvensen er at tilstanden
vurderes til å være på et nivå hvor tiltak som utskifting er eneste løsning. Ved utskifting må det vurderes
fortløpende om det finnes følgeskader som må tas hensyn til. Foreslått tiltak er utskifting, eller eventuelt
utbedring om det lar seg gjøre. Følgende sjablongmessig prisanslag gjelder for total oppgradering/fornying
av vinduer, ytterdør og port.
Sjablongmessig prisanslag: kr 10 000 - 50 000
Oppsummering fra selgers egenerklæring.
2 Er det utført arbeid på bad, vaskerom eller toalettrom?
- Ja
- Navn på arbeid: Nytt arbeid
- Årstall: 2001
- Hvordan ble arbeidet utført: Faglært
- Fortell kort hva som ble gjort av faglærte: Nye rør til bad
- Hvilket firma utførte jobben: Aske
- Har du dokumentasjon på arbeidet: Nei
4 Er det utført arbeid på tak, yttervegg, vindu eller annen fasade?
- Ja
- Navn på arbeid: Nytt arbeid
- Årstall: 2001
- Hvordan ble arbeidet utført: Faglært
- Fortell kort hva som ble gjort av faglærte: Utvendig og innvendig restaurering utført av byggmester Vidar reger i 2001.
- Hvilket firma utførte jobben: Vidar Reger
- Har du dokumentasjon på arbeidet: Ja
- Navn på arbeid: Nytt arbeid
- Årstall: 2001
- Hvordan ble arbeidet utført: Faglært
- Fortell kort hva som ble gjort av faglærte: Utvendig og innvendig
- Hvilket firma utførte jobben: Vidar Reger
- Har du dokumentasjon på arbeidet: Ja
13 Er det utført arbeid på utvendige eller innvendige avløpsrør eller vannrør?
- Ja
- Navn på arbeid: Nytt arbeid
- Årstall: 2001
- Hvordan ble arbeidet utført: Faglært
- Fortell kort hva som ble gjort av faglærte: Usikker hva som ble gjort.
- Hvilket firma utførte jobben: Aske
- Har du dokumentasjon på arbeidet: Nei
24 Har du bygd på eller gjort om kjeller, loft eller annet til boligrom?
- Ja
- Nytt arbeid
- Årstall: 2001
- Hvordan ble arbeidet utført: Faglært
- Fortell kort hva som ble gjort av faglærte: Laget bad på bestående vasker0m
- Hvilket firma utførte jobben: Aske
- Har du dokumentasjon på arbeidet: Nei
- Har du fått innvilget tillatelse fra kommunen for ombyggingen: Nei, ikke søknadspliktig
32 Har du andre opplysninger om boligen eller eiendommen utover det du har svart?
- Ja
- Alle i nabolaget ble tilkoblet offentlig kloakk .
Moderniseringer og påkostninger
Boligen er modernisert/påkostet i årenes løp og fremstår som godt vedlikeholdt.
Huset ble sist malt i 2024
2002:
- Ny kledning og etterisolert
- Nytt tak
- Stort sett alle vinduer byttet
- Nytt beslag på pipa
- Hagestue 2009
Løsøre og tilbehør
Vi viser til liste fra Norges Eiendomsmeglerforbund som gjelder fra 01.01.2020 angående løsøre og tilbehør.
Oppvarming
Oppvarming av boligen skjer i hovedsak ved bruk av ildsteder plassert i stue/spisestue 1.etasje, gulvvarme/varmekabler i enkelte rom, og to varmepumper
som er plassert i stue/spisestue 1.etasje og trapp/stue underetasje.
Selger har avtalt Norgespris på strøm på eiendommen for perioden til 31.12.2026, og denne er pt på 50 øre inkl mva. Nettleie, avgifter og påslag fra kraftleverandøren kommer i tillegg. Er det fjernvarme vil det også komme kostnader i tillegg.
Denne avtalen vil følge eiendommen i den avtalte perioden.
Les mer om Norgespris her: https://www.regjeringen.no/no/aktuelt/legg-fram-lov-om-norgespris-pa-straum-og-fjernvarme/id3102642/
Ferdigattest/brukstillatelse
Kommunen opplyser at det ikke foreligger ferdigattest eller midlertidig brukstillatelse for eiendommen.
Det foreligger byggeanmeldelse datert 12.12.1946
Eiendommen har vært brukt til boligformål siden 1946.
Godkjent papirer på garasjen datert 20.06.1977
Godkjent vindfang 22.10.1979
Godkjent overbygg kjeller nedgang 01.11.1991
Godkjent hagestue 08.10.2009
Det foreligger ikke tegninger på boligen og det hefter derfor usikkerhet om hva rommene er godkjent som opprinnelig.
Selger opplyser at kjeller er ombygd i 2001 av Byggmester Vidar Reger.
Basert på arbeidet (2001) er det sannsynlig for at tiltaket er søknadspliktig i form av blant bruksendring.
Selger opplyser om at hun ikke har mer kjennskap til noe ut over dette.
Kjøper overtar eiendommen slik den fremstår på visning med risiko og ansvaret for eventuelle pålegg fra kommunen og kostnader forbundet med dette.
Det gjøres oppmerksom på at det ikke lenger utstedes ferdigattest på tiltak det er søkt om før 1998 jf. plan- og bygningsloven § 21-10. Kommunen vil ikke kreve ferdigattest for disse tiltakene og vil avvise eventuelle søknader. Bestemmelsen innebærer ikke at tiltak med manglende søknad blir lovlige, men at man ikke trenger å avslutte gamle byggesaker. Normalt sett kreves ferdigattest for alle søknadspliktige tiltak som gjøres etter plan- og bygningsloven.
Tinglyste heftelser og rettigheter
Eiendommen overdras fri for pengeheftelser.
Det er ingen tinglyste servitutter på eiendommen.
Eventuell adgang til utleie
Eiendommen har ikke separat utleieenhet. Det vil normalt være anledning til utleie av hele eiendommen eller enkeltrom, såfremt utleiearealet er bygningsmessig godkjent for varig opphold og har forsvarlige radonnivåer.
Beliggenhet og tomteforhold
Beliggenhet og tomteforhold
Beliggenhet
Eiendommen ligger i et etablert og rolig boligområde med en familievennlig atmosfære. Her bor man skjermet og fredelig, samtidig som man har kort vei til det meste man trenger i hverdagen. Nærområdet består hovedsakelig av småhusbebyggelse og oppleves som trygt og oversiktlig.
Fra boligen er det kort avstand til dagligvarebutikk, barnehage og skole, noe som gjør området attraktivt for både barnefamilier og førstegangskjøpere. Det er også gode kollektivforbindelser i nærheten, med enkel adkomst til Kristiansand sentrum hvor man finner et bredt utvalg av butikker, serveringssteder og servicetilbud.
For den turglade byr nærområdet på flere fine turområder og rekreasjonsmuligheter. Her er det gode forhold for både gåturer, jogging og sykkelturer, samtidig som man har kort vei til sjø og flotte badeplasser i sommerhalvåret.
Beliggenheten kombinerer rolige og grønne omgivelser med nærhet til byens fasiliteter, noe som gir en praktisk og attraktiv hverdag.
Adkomst
Det vil bli skiltet med Krogsveen visningsskilt ved fellesvisninger.
Barnehager, skoler og fritid
Skoler
Karuss skole (1-10 kl.) 5 min 402 elever, 32 klasser 0.4 km
Slettheia skole (1-7 kl.) 14 min 326 elever, 27 klasser 1.2 km
Vågsbygd skole (1-7 kl.) 15 min 450 elever, 40 klasser 1.3 km
Vågsbygd skole. avd. Åsane (1-3 kl.) 17 min
Fiskå skole (8-10 kl.) 8 min 259 elever, 17 klasser 0.6 km
Vågsbygd videregående skole 9 min 510 elever 0.7 km
Akademiet vgs Kristiansand 9 min 180 elever 5.3 km
Barnehager
Karuss barnehage (1-5 år) 4 min 59 barn 0.3 km
Eplehagen barnehage (0-5 år) 13 min 93 barn 1.2 km
Auglandstjønn barnehage (1-5 år) 14 min 70 barn 1.2 km
Offentlig transport
Busstopp Karuss 3 min gange.
Dagligvare
Coop Mega Vågsbygd 7 min gange
Kiwi Vågsbygd Senter 8 min gange
Informasjon om tilhørende skolekretser er hentet fra Prognosesenteret som dataleverandør, og tilhørigheten kan årlig endres av kommunen. Dersom skole- og barnehagetilbud er av betydning for kjøpet, ber vi om at det rettes en særskilt henvendelse til kommunen/bydelsadministrasjonen for oppdatert informasjon.
Beskrivelse av tomt
Eiertomt på 795 kvm
Tomt er opparbeidet med blant annet gruslagt innkjørsel, plenareal og diverse beplantning.
To terrasser med adkomst fra 1.etasje og fra bakkeplan.
Frittstående garasje med bod samt hagestue med platting.
Parkering
Garasje
Vei, vann og avløp
Offentlig
Regulerings-og arealplaner
Plantype: Eldre reguleringsplan (PBL 1985)
Planbestemmelser: Uten bestemmelser
Lovreferanse: Plan- og bygningsloven av 1985 eller før
Vertikalnivå: På grunnen/vannoverflaten
Ikrafttredelsesdato: 04.11.1987
Plantype: Kommuneplanens arealdel
Planbestemmelser: Med bestemmelser som egen tekst
Lovreferanse:Plan- og bygningsloven av 2008
Saksnummer: 2020/21815
Ikrafttredelsesdato: 28.02.202
Økonomi
Økonomi
Kommunale utgifter
Kommunale avgifter er kr 10306,- for inneværende år. I dette inngår gebyr for vann, avløp, renovasjon.
Feie og tilsynsgebyr: 356,-
Nåværende eier har tegnet Norgespris.
Utgiftene er basert på nåværende eiers forbruk og avtaler.
Formuesverdi
Formuesverdi for 2024 var kr 1 287 957,- ifølge selgers skattemelding/Skatteetaten. Beløpet forutsetter at eier bor fast i boligen (primærbolig).
Ved eventuell øvrig bruk av eiendommen (f.eks. fritidsbolig, pendlerbolig, utleieobjekt) var formuesverdien for 2024 kr 5 151 826,-/5 151 828,-.
Fra 2026 har Stortinget vedtatt en oppdatert modell for beregning av formuesverdi for primærbolig, så avvik kan forekomme.
For mer informasjon se skatteetaten.no
Eiendomsskatt
Eiendomsskatten utgjør kr. 3922 pr år.
Omkostninger
4 900 000,00 Prisantydning
Omkostninger
122 500,00 Dokumentavgift til staten (2,5% av kjøpesum)
19 900,00 Gjensidige Boligkjøperpakke (valgfri)
545,00 Tinglysing panterettsdokument
545,00 Tinglysing skjøte
--------------------------------------------------------
143 490,00 Omkostninger totalt
--------------------------------------------------------
5 043 490,00 Totalpris inkl. omkostninger
--------------------------------------------------------
Totalpris inkl. omkostninger forutsetter kjøp til prisantydning.
Det tas forbehold om endringer i avgifter og gebyrer.
Tilbud om lånefinansiering
Megler formidler gjerne kontakt med rådgiver hos vår samarbeidspartner BN Bank. De har konkurransedyktige betingelser samt rask og løsningsorientert behandling av din lånesøknad. Krogsveen mottar et honorar dersom lån opprettes.
Betalingsbetingelser
Kjøpesum inkludert omkostninger, samt pantedokument tilknyttet eventuelt lån, skal være disponibelt hos megler 2 virkedager før overtagelsen.
Annen viktig informasjon
Annen viktig informasjon
Eier
Vence Diane Madsen
Overtakelse
Etter nærmere avtale.
Boligselgerforsikring
Selger har i forbindelse med salget tegnet boligselgerforsikring levert av Gjensidige.
Boligselgerforsikringen dekker selgers ansvar etter avhendingsloven begrenset oppad til kr 14 millioner. Dersom kjøper oppdager forhold ved eiendommen som hen mener utgjør en mangel ved eiendommen, vil Gjensidige behandle reklamasjonen på vegne av selger. Forsikringsvilkår kan fås ved henvendelse til megler.
Vedlagt salgsoppgaven følger selgers egenerklæringsskjema og tilstandsrapport. Interessenter må sette seg inn i dokumentene før bud inngis.
Budgivning
Forbrukerinformasjon om budgivning er vedlagt denne salgsoppgaven og er også på vår hjemmeside Krogsveen.no. Alle bud og budforhøyelser må inngis skriftlig. I tillegg må legitimasjon være fremlagt sammen med signatur fra budgiver.
Vi oppfordrer til å gi bud elektronisk via GI BUD-knappen på eiendommens hjemmeside på Krogsveen.no. Da vil samtlige vilkår bli oppfylt.
Eventuelle forhøyelser eller endringer av budet kan bekreftes pr SMS eller på e-post. Vi oppfordrer alltid til å kontakte megler pr. telefon i tillegg da forsinkelser i SMS og e-post kan forekomme.
For at budene skal kunne bli behandlet og videreformidlet skriftlig til alle involverte parter, må alle bud ha en tilstrekkelig lang akseptfrist, jf. eiendomsmeglingsforskriften § 6-3.
Selger må også skriftlig akseptere budet før aksept kan formidles til budgiver. Akseptfrist bør derfor være på minimum 30 minutter, og budforhøyelser må derfor skje i god tid før fristens utløp.
Bud i forbrukerforhold kan uansett ikke settes med kortere frist enn kl. 12.00 første virkedag etter siste annonserte visning. I tillegg kan ikke budet ha forbehold om at det skal holdes hemmelig ovenfor øvrige interessenter. Megler har iht lov om eiendomsmegling ikke anledning til å videreformidle disse budene, og de vil dermed heller ikke bli journalført.
Etter at eiendommen er solgt vil kjøper og selger få tilsendt budjournal. Øvrige budgivere kan få utlevert kopi av budjournalen i anonymisert form.
Hvitvaskingsreglene
I henhold til lov om hvitvasking og terrorfinansiering har megler plikt til å gjennomføre kontrolltiltak overfor kunder, herunder fullmektiger. Dette innebærer bl.a. å bekrefte kunders og reelle rettighetshaveres identitet på bakgrunn av fremvist gyldig legitimasjon eller på annen godkjent måte, samt å innhente opplysninger om kundeforholdets formål og tilsiktede art.
Dersom slike kundetiltak ikke kan gjennomføres, kan megler ikke etablere kundeforholdet eller utføre transaksjonen.
Hvis kjøper ikke bidrar til gjennomføring av kundekontrollen og dette fører til at transaksjonen blir forsinket eller ikke kan gjennomføres, vil dette ansees som mislighold av avtalen og gi selger rettigheter etter avhendingslova kapittel 5. I tilfeller der selger ikke bidrar til gjennomføring av løpende kundekontroll underveis i oppdraget, er det selger som misligholder sine forpliktelser etter avtalen og gi kjøper rettigheter etter avhendingslovens kapittel 4. Partene er selv ansvarlige for eventuelle kostnader og ansvar dette kan medføre. Eiendomsmegleren eller eiendomsmeglingsforetaket kan ikke holdes ansvarlig for de konsekvenser dette vil kunne få for partene eller andre som har interesser i eiendomshandelen.
Kjøper oppfordres til å innbetale kjøpesummen som ikke kommer fra låneinstitusjon i én samlet innbetaling fra egen konto i norsk bank. Megler har plikt til å melde fra til Økokrim om eiendomshandler som fremstår som mistenkelige. Melding sendes Økokrim uten at partene varsles.
Personopplysningsloven
I henhold til personopplysningsloven gjør vi oppmerksom på at interessenter kan bli registrert for videre oppfølging.
Lovanvendelse
Generelle bestemmelser
Salgsoppgaven er basert på de opplysningene selger har gitt til megler, den bygningssakyndiges tilstandsrapport, samt opplysninger innhentet fra kommunen, Kartverket og andre tilgjengelige kilder. Det er viktig at kjøper setter seg grundig inn i alle salgsdokumentene, herunder salgsoppgave, tilstandsrapport og selgers egenerklæring. Kjøper anses kjent med forhold som er tydelig beskrevet i salgsdokumentene, og slike forhold kan ikke påberopes som mangler. Dette gjelder uavhengig av om kjøper har lest dokumentene. Alle interessenter oppfordres til å undersøke eiendommen nøye, gjerne sammen med fagkyndig før bud inngis. Kjøper som velger å kjøpe usett kan ikke gjøre gjeldende som mangel noe han burde blitt kjent med ved undersøkelsen.
Dersom det er behov for avklaringer, anbefaler vi at interessenter rådfører seg med eiendomsmegler eller egne rådgivere før det legges inn bud.
En bolig som har blitt brukt i en viss tid, har vanligvis blitt utsatt for slitasje og skader kan ha oppstått. Slik bruksslitasje må kjøper regne med, og det kan avdekkes enkelte forhold etter overtakelse som nødvendiggjør utbedringer. Normal slitasje og skader som nødvendiggjør utbedring, er innenfor hva kjøper må forvente og vil ikke utgjøre en mangel.
Kjøper og selgers rettigheter og plikter reguleres av avtalen mellom partene, samt informasjonen som har vært tilgjengelig for kjøperen i forbindelse med handelen. Avtalen utfylles av avhendingsloven, og det gjelder ulike avtalevilkår avhengig av om kjøper er forbrukerkjøper eller ikke. Dette er nærmere beskrevet nedenfor.
På grunn av ulike avtalevilkår kan selger vurdere bud fra en som ikke er forbruker, ulikt fra en forbrukers bud. Dersom kjøper ikke er forbruker, er selger sitt mulige mangelsansvar begrenset fordi eiendommen selges "som den er". Selger kan ikke ta «som den er»- forbehold overfor en forbrukerkjøper. Selv et lavere bud fra en som ikke er forbruker kan foretrekkes fordi begrensningen i mulig mangelsansvar kan ha egenverdi for selger. Selger står fritt til å forkaste eller akseptere ethvert bud, og er for eksempel ikke forpliktet til å akseptere høyeste bud.
Budgiver skal i budskjema avgi egenerklæring om budgiver er forbruker eller næringsdrivende/ person som hovedsakelig handler som ledd i næringsvirksomhet. Budgivere får informasjon dersom andre bud er inngitt av en som ikke er forbruker.
Forbrukerkjøp - definisjon
Med forbrukerkjøp menes kjøp av eiendom når kjøperen er en fysisk person som ikke hovedsakelig handler som ledd i næringsvirksomhet.
Forbruker – avtalevilkår
Eiendommen har en mangel dersom den ikke er i samsvar med kravene som følger av avtalen, eller det foreligger brudd på bestemmelsene i avhendingsloven §§ 3-2 til 3-8. Hvis eiendommen ikke er i samsvar med det kjøperen må kunne forvente ut ifra alder, type og synlig tilstand, kan det være grunnlag for mangelskrav. Det samme gjelder hvis det er holdt tilbake eller gitt uriktige opplysninger om eiendommen. Dette gjelder likevel bare dersom man kan gå ut ifra at det virket inn på avtalen at opplysningen ikke ble gitt eller at mangelskravet ikke blir rettet i tide på en tydelig måte.
Boligen kan ha en mangel etter avhendingsloven § 3-3 andre ledd, dersom det er avvik mellom opplyst og faktisk innvendig areal, forutsatt at avviket er på 2% eller mer og minimum 1 kvm.
Ved beregning av et eventuelt prisavslag eller erstatning må kjøper selv dekke tap/kostnader opptil et beløp på kr 10 000 (egenandel).
Ikke-forbruker (næringsdrivende) – definisjon
Hvis kjøper er en juridisk person, eller en fysisk person som hovedsakelig handler som ledd i næringsvirksomhet, vil kjøpet ikke anses som et forbrukerkjøp.
Ikke-forbruker – avtalevilkår
Eiendommen har en mangel dersom den ikke er i samsvar med kravene som følger av avtalen.
Eiendommen selges «som den er», og selgers ansvar utover det konkret avtalte er da begrenset etter avhendingsloven § 3-9, første ledd andre setning.
Avhendingsloven § 3-3 andre ledd fravikes, og hvorvidt boligens arealsvikt utgjør en mangel vurderes etter avhendingsloven § 3-8.
Informasjon om kjøpers undersøkelsesplikt, herunder oppfordringen om å undersøke eiendommen nøye, gjelder også for kjøpere som ikke anses som forbrukere.
Det forutsettes at hjemmel overføres til kjøper. Hvis kjøper ikke ønsker hjemmelsoverføring av eiendommen, må det tas forbehold om dette i budet.
Meglers vederlag
Meglers vederlag betales av selger og er avtalt til:
Vederlag: 1,35 % av salgssummen
Vederlag:
Kontroll av hjemmel og heftelser kr 3 900,00
Kunderabatt SELGER; gjelder for avtalt: markedspakke kr -8 350,00
Markedsføringspakke kr 28 900,00
Oppgjør kr 8 900,00
Tilrettelegging kr 14 900,00
Utlegg:
Innhenting av offentlig opplysninger kr 3 339,00
Tinglysing sikring kr 545,00
Andre utgifter:
Boligselgerforsikring Gjensidige Eiet - regnes av prisantydning 5.71 promille av salgssum kr 27.979,-
Foto kr 3 500,00
Vi er opptatt av verdiskapning, og har knyttet til oss samarbeidspartnere som skal sikre våre kunder de beste produkter og tjenester;
• I forbindelse med forberedelse av salget, innhenter vi informasjon om eiendommen hovedsakelig fra vår samarbeidspartner Amibita.
• Gjensidige leverer boligselgerforsikring og tilbyr bygningsforsikring
• Boligkjøperforsikring leveres av Hiscox og med Sedgwick som skadebehandler, og er formidlet gjennom Gjensidige.
• BN bank tilbyr finansieringsløsninger
• Vår avdeling Krogsveen Pluss tilbyr flyttetjenester som utvask, visningsvask, lager, tømming og transport av flyttelass, i tillegg til å formidle kontakt med Flip for overflateoppussing.
• I forbindelse med overtagelse av eiendommen tilbyr Overo avtale om strøm, alarm og bredbånd.
• Krogsveen er, sammen med øvrige bransjeaktører, medeier i Bomega AS som tilbyr den digitale annonseringsplattformen Hjem.
Opplysninger om oppdraget
Oppdragsnummer 31-0013/26
Eiendomsmegler Krogsveen AS, avd. Kristiansand
Østre Strandgate 12, 4610, KRISTIANSAND S
950 007 613
Oppdragets KR-kode KR31.2613
Dato
Sist oppdatert: 12. april 2026 kl. 09:18
Dokumenter
Dokumenter
PDF – 943 KB
PDF – 312 KB
PDF – 29 KB
PDF – 127 KB
PDF – 392 KB
Område
Legg til steder som er viktige for deg
Visning
Frist for påmelding er kl 12.00 visningsdagen.
For å delta på visning, ber vi om at du melder deg på. Da sikrer vi at du får nødvendig informasjon og at det er satt av tilstrekkelig med tid. Kontakt megler dersom annet tidspunkt ønskes. Husk å lese salgsoppgaven før visningen, så du stiller forberedt. NB. Visning utgår dersom det ikke er noen påmeldte. Ønsker du kun å bli holdt orientert, kan du fra eiendommens hjemmeside få varsel om solgtpris, eller kontakte megler.
Lurer du på noe?
Unngå doble boligrenter
Vi tilbyr gunstig forsikring.
Vurderer du utleie?
Få et tilbud fra Utleie KrogsveenHva koster lånet?
Sjekk estimert lånekostnadVil du varsles om lignende boliger?
Ved å lagre ditt boligsøk hos oss får du beskjed når vi har en bolig som ligner denne, før den legges ut på markedet!

