Raveien 253
3 290 000 kr
105 m²
3 soverom
Solgt

Haukerød
Moderne og romslig eierleilighet med god standard - kjøkken fra 2019 - solrik og stor uteplass - 3 soverom - garasje
Prisantydning
3 290 000 krOmkostninger
93 290 krTotalpris
3 383 290 kr
Pris
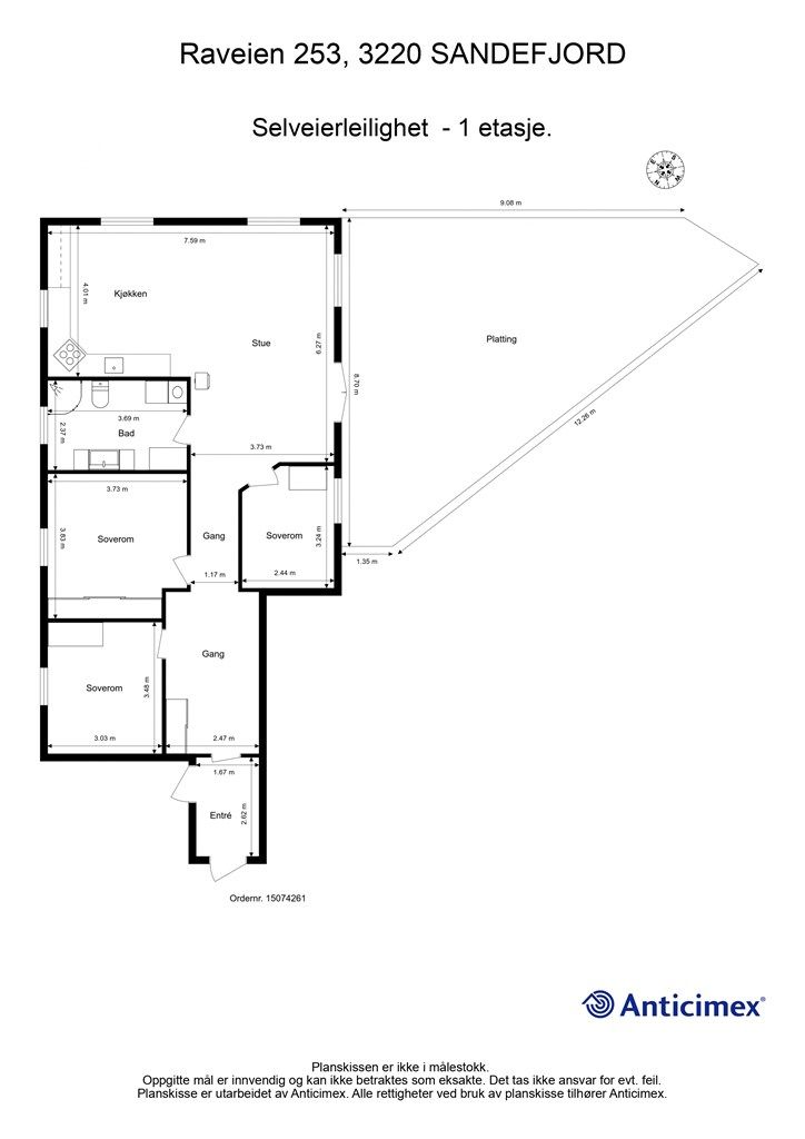
Bruksareal
143 m²BRA-I (internt bruksareal)
105 m²BRA-E (eksternt bruksareal)
38 m²TBA (terrasse-balkongareal)
48 m²
Areal
Etasje
1Byggeår
2007Soverom
3 soveromBad
1 badType
EierleilighetEierform
EierseksjonFasiliteter
Garasje/P-plassFellesutgifter
4 036 krEnergimerke
Rød E
Nøkkelinfo
Unngå doble boligrenter
Vi tilbyr gunstig forsikring.
Vurderer du utleie?
Få et tilbud fra Utleie KrogsveenHva koster lånet?
Sjekk estimert lånekostnadBeskrivelse
Kort om eiendommen
Velkommen til en lys og moderne selveierleilighet med gjennomgående god standard, oppført i 2007. Her bor du romslig og funksjonelt – med en god, innholdsrik planløsning. Leiligheten har totalt 3 gode soverom, stor stue med åpen løsning til kjøkken, samt romslig bad. I kjelleretasjen er det også rikelig med lagringsplass. Nytt kjøkken ble montert i 2019. Overflatene er malt i delikate og tidsriktige fargevalg, og gulvet har parkett og flis. Her kan du flytte rett inn. Fra stuen har du utgang til en solrik og stor uteplass mot sørvest.
Nærområdet er barnevennlig, med både barnehager, skoler og Runar i gangavstand (rett i nærheten). Et bredt spekter av aktiviteter i området. Kort vei til praktfullt turterreng med lysløype, dagligvareforretninger og Haukerødkrysset med diverse servicetilbud.
Område
Legg til steder som er viktige for deg
På flyttefot? Tenk kjøp og salg samtidig.
Få din egen rådgiver gjennom hele kjøps- og salgsprosessen. Det starter med en verdivurdering.
Unngå doble boligrenter
Vi tilbyr gunstig forsikring.
Vurderer du utleie?
Få et tilbud fra Utleie KrogsveenHva koster lånet?
Sjekk estimert lånekostnadVil du varsles om lignende boliger?
Ved å lagre ditt boligsøk hos oss får du beskjed når vi har en bolig som ligner denne, før den legges ut på markedet!

