Sjuveengåsen 5
5 500 000 kr
123 m²
2 soverom
Komplett salgsoppgave

Sjuveenga/Lahelle
Fantastisk beliggende enebolig med alt på en flate - Meget gode solforhold samt imponerende utsikt ut over nærområdet
Prisantydning
5 500 000 krOmkostninger
158 490 krTotalpris
5 658 490 kr
Pris
Bruksareal
158 m²BRA-I (internt bruksareal)
123 m²BRA-E (eksternt bruksareal)
18 m²TBA (terrasse-balkongareal)
74 m²
Areal
Byggeår
1991Soverom
2 soveromBad
1 badTomteareal
1 023 m² (eiet)Type
Enebolig - FrittliggendeEierform
EietFasiliteter
Garasje/P-plass og Balkong/TerrasseEnergimerke
Nøkkelinfo
Unngå doble boligrenter
Vi tilbyr gunstig forsikring.
Vurderer du utleie?
Få et tilbud fra Utleie KrogsveenHva koster lånet?
Sjekk estimert lånekostnadBeskrivelse
Kort om eiendommen
Velkommen til Sjuveenga!
En sjelden mulighet til å sikre seg en høyt og fritt beliggende eiendom med flotte solforhold, utsikt og gode kvaliteter. Det er særdeles sjeldent det selges boliger i dette området med slike optimale solforhold.
Dette er første gang boligen omsettes, og den har hatt samme eier siden byggeår (1991). Området er svært attraktivt, og beboerne trives godt her.
Her bor man særdeles enkelt og praktisk, da boligen er bygget på ett plan. Store deler av tomten er naturtomt, noe som gir et naturnært og harmonisk preg. Tomten byr på flere sjarmerende uteplasser med gode solforhold, hvor man kan nyte rolige omgivelser og en imponerende utsikt utover Sjuveenga.
Som det fremkommer av vedlagte tilstandsrapport har boligen behov for oppgradering og utbedring.
Innhold og byggemåte
Innhold og byggemåte
Eiendommen
Sjuveengåsen 5, 3218 SANDEFJORD
Kommunenummer 3907, gårdsnummer 83, bruksnummer 204, ideell andel 1/1
Innhold
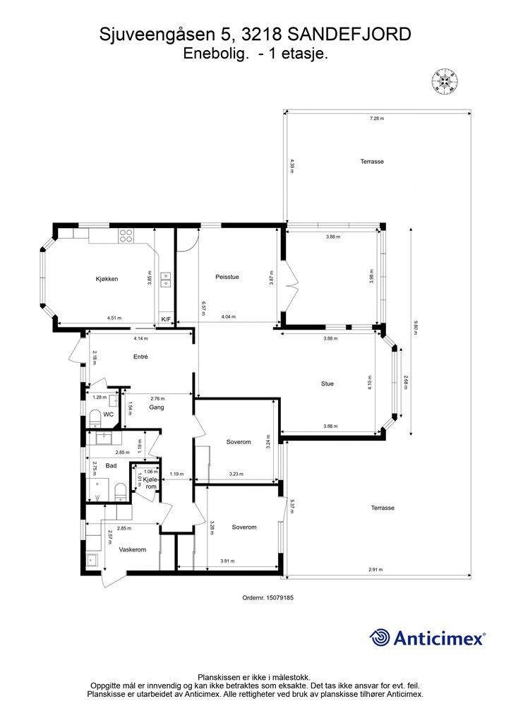
Totalt bruksareal BRA: 158 kvm
BRA-i:
Enebolig:
1. etasje 123 kvm: Entre, stue, kjøkken, peisestue, gang, bad, vaskerom, toalettrom og to soverom.
BRA-e:
Garasje:
1. etasje 18 kvm: Garsjerom.
BRA-b:
Enebolig:
1. etasje 17 kvm: Innglasset balkong.
Åpent areal:
Enebolig:
1. etasje 74 kvm: Platting.
Arealet i kjeller der det er gangbart gulv måles til 48 m2 (ALH), men grunnet lav takhøyde er ingen deler av arealet måleverdig som bruksareal. Det gjøres oppmerksom på at deler av arealene i kjeller ikke er medtatt som (ALH) på bakgrunn av at arealene mangler permanent gangbart gulv.
Vedlagte plantegninger er ikke målbare. De oppgitte arealer er hentet fra rapport med befaringsdato 16.03.2026 utført av Anticimex Sandefjord AS. Arealene er beregnet og rom er definert etter dagens faktiske bruk, uavhengig av hva som er godkjent av bygningsmyndighetene.
Byggemåte
Selger har innhentet en tilstandsrapport av boligen/eiendommen. Av rapporten fremgår det at flere bygningsdeler har fått tilstandsgrad ikke undersøkt/ikke tilgjengelig for undersøkelse (TG IU), 2 (TG2) og/eller 3 (TG3). Rapporten beskriver også avvik på undersøkte bygningsdeler uten tilstandsgrad. Kjøper overtar ansvaret for de opplysninger som fremkommer av salgsdokumentasjonen, og kan ikke gjøre gjeldende som mangel noe som burde vært kjent eller som ikke kan anses å ha betydning for avtalen.
Bygningen er iht. tilstandsrapporten oppført i 1991. Grunnmur av betong og lettklinkerblokker. Bygget er oppført med støpt gulv mot grunn samt krypkjeller under deler av boligen. Yttervegger av trekonstruksjoner. Utvendige fasader er kledd med liggende trekledning. Etasjeskillere av trekonstruksjoner. Saltak i trekonstruksjoner. Yttertak er belagt med takstein. Entrédør med glassfelter. Vinduer med karmer av tre. Balkongdør med karmer av tre. Les for øvrig mer om byggemåte og den tekniske tilstanden i rapporten.
Det gjøres spesielt oppmerksom på:
TG3
- Bad: Det er valgt å vurdere våtrommet gjennom en samlet helhetsvurdering. På bakgrunn av denne vurderingen er det fastsatt TG3. Det vises for øvrig til tilstandsrapporten for nærmere detaljer.
- Vaskerom: Det er registrert bruk av materialer i våtsonen bak utslagsvask som vurderes å ikke være fuktbestandige, og det registreres tegn på fuktskader/slitasje bak utslagsvask. Vanntett sjikt har en alder som erfaringsmessig tilsier at fremtidig funksjon er svært usikker.
- Rom under terreng: Det er valgt å vurdere rom under terreng gjennom en samlet helhetsvurdering. På bakgrunn av denne vurderingen er det fastsatt TG. Det vises for øvrig til tilstandsrapporten for nærmere detaljer.
- kaldt loft: Det er valgt å vurdere uinnredede loft gjennom en samlet helhetsvurdering. På bakgrunn av denne vurderingen er det fastsatt TG3. Det vises for øvrig til tilstandsrapporten for nærmere detaljer.
- Krypkjeller: Det er valgt å vurdere krypkjeller gjennom en samlet helhetsvurdering. På bakgrunn av denne vurderingen er det fastsatt TG3. Det vises for øvrig til tilstandsrapporten for nærmere detaljer.
- Yttertak: Det er valgt å vurdere yttertaket gjennom en samlet helhetsvurdering. På bakgrunn av denne vurderingen er det fastsatt TG3. Det vises for øvrig til tilstandsrapporten for nærmere detaljer.
- Drenering: Det er valgt å vurdere dreneringen gjennom en samlet helhetsvurdering. På bakgrunn av denne vurderingen er det fastsatt TG3. Det vises for øvrig til tilstandsrapporten for nærmere detaljer.
- Garasje: Yttertaket har en høy alder og det er registrert funksjonssvikt og løse undertaksplater samt vanninntrenging.
TG2
- Vaskerom: Gulvbelegg har synlig slitasje og er aldringspreget. Det registreres motfall på deler av gulvflater utenfor sluksonen. Vannrør av kobber samt avløpsrør har en alder som tilsier at fremtidig funksjon er usikker. Våtrommet har kun naturlig ventilasjon. Med bakgrunn i at våtrommets utforming og der våtsonen er plassert er det praktisk ikke mulig å gjennomføre fuktmåling/hulltaking i et område der det erfaringsmessig forekommer skader. Det ble derimot gjennomført et overflatesøk med fuktindikator, som sett i sammenheng med andre symptomer vurderes å ikke kunne utelukke skjulte fuktskader.
- Kjøkken: Vegg og gulv overflater bærer preg av aldersrelatert slitasje og har enkelte mindre skader. Vannrør av kobber har en alder som tilsier at fremtidig funksjon er usikker.
- Toalettrom: Veggflater bærer preg av aldersrelatert slitasje og har enkelte mindre skader. Vannrør av kobber har en alder som tilsier at fremtidig funksjon er usikker og ventilasjonen vurderes som utilstrekkelig.
- Tekniske anlegg: Boligens vannrør av kobber samt avløpsrør har en alder som tilsier at fremtidig funksjon er usikker. På bakgrunn av varmtvannsberederens alder vurderes det at fremtidig funksjon er usikker. Det er ukjent når varmepumpen plassert i gangen sist fikk service. Boligen har gasskomfyr på kjøkkenet. Eksakt alder på gassanlegget er ikke kjent. Det er ikke kjent når det sist ble gjennomført service på anlegget.
- Andre rom: Synlige deler av gulvets overflatemateriale bæ rer preg av slitasje med enkelte hakk/ujevnheter i skjøter, samt solbleket gulv enkelte steder.
- Kjølerom: Rommets vegger er en lukket konstruksjon. Slike konstruksjoner betraktes erfaringsmessig som fuktrisikokonstruksjoner. På bakgrunn av alderen til det tekniske utstyret som tilhører rommet vurderes det at fremtidig funksjon er usikker.
- Etasjeskiller: På soverom mot stue er det på tilfeldige punkter målt lokale høydeforskjeller opptil 20 mm.
- Krypkjeller: Det observeres spor etter gnagere i krypkjeller.
- Yttervegger: Det er stedvis slitasje på ytterkledningens overflatebehandling og det er stedvis liten avstand mellom kledningens underkant og terrenget. Det observeres stedvise løse plater/vindsperre under utkragingen i stue og kjøkken. Årsaken vurderes å være knyttet til fuktbelastning og alder Det er vurdert å være begrenset spalte for lufting og drenering bak ytterkledningen. Det er ikke montert tilstrekkelig gnagersikring bak ytterkledningen.
- Vinduer og ytterdører: Enkelte vinduer og ytterdøren viser begynnende tegn til slitasje. Det er et punktert vindu registrert i peisestue.
- Terrasse: Terrassebordene viser tegn til slitasje, elde og begynnende fuktskader. Fundamentene var ikke tilgjengelige, noe som gjorde at utførelsen/tilstanden ikke lot seg kontrollere. Det registreres skjeveheter i konstruksjonen til terrassen.
- Grunnmuren: Tegn til riss og enkelte sprekkdannelser observeres stedvis i overflaten på grunnmuren.
- Utvendige avløpsledninger: Utvendige avløpsrør har en alder som tilsier at fremtidig funksjon er usikker.
- Garasje: Fasadematerialer har slitt overflatebehandling. Stedvis kort avstand fra underkant av kledningen til terrenget. Det registreres vannansamlinger ved port og saltutslag på innvendig grunnmur. Vinduer og ytterdør viser begynnende tegn til slitasje på overflatebehandling.
Se supplerende tekst i tilstandsrapporten. Kjøper overtar ansvar og risiko for dette.
Tilstandsrapporten er inntatt i salgsoppgaven. Rapporten inneholder informasjon om avvikene og konsekvensen av disse. For avvik som er gitt TG3 har den bygningssakkyndige i tillegg gitt et anslag på hva det vil koste å utbedre disse avvikene. Ettersom kjøper regnes å være kjent med forhold som tydelig fremgår av tilstandsrapporten, oppfordres du til å sette deg grundig inn i rapporten i sin helhet.
Standard
Dette er første gang boligen omsettes, og den har hatt samme eier siden byggeåret i 1991.
Her bor man særdeles enkelt og praktisk, da boligen er bygget på ett plan. Sjuveengåsen 5 er bygget i 1991 og holder en ganske så original standard, og de fleste vil noe løfte standard til en nåtidens ønsket innredning.
Området er svært attraktivt, og beboerne trives godt her – mye takket være den fantastiske beliggenheten med nærhet til sjø, vakker natur og gode rekreasjonsmuligheter. Her bor man i rolige og naturskjønne omgivelser, samtidig som man har kort vei til det man trenger i hverdagen.
Store deler av tomten er naturtomt, noe som gir et naturnært og harmonisk preg. Tomten byr på flere sjarmerende uteplasser med gode solforhold, hvor man kan nyte rolige omgivelser og en imponerende utsikt utover Sjuveenga.
Det er særdeles sjeldent det selges boliger i dette området med slike sol og utsiktsforhold.
Som det fremkommer av vedlagte tilstandsrapport har boligen behov for oppgradering og utbedring.
Velkommen til en hyggelig visning i Sjuveengåsen!
Oppvarming
Det er montert ildsted på kjøkken og i stue.
I følges Sandefjord brann og feievesen ble pipe feiet 12.04.2023 og siste tilsyn ble gjennomført 12.04.2023. Det er ikke registrert avvik eller anmerkninger på eiendommen.
Ferdigattest/brukstillatelse
Det foreligger ferdigattest på enebolig datert 07.10.1993.
Det foreligger også en midlertidig brukstillatelse på enebolig datert 20.03.1991.
Det foreligger godkjenning /vedtak på bygging av garasje datert 21.06.1994, med det foreligger ingen ferdigattest på nevnte garasje. Det gjøres oppmerksom på at det ikke lenger utstedes ferdigattest på tiltak det er søkt om før 1998 jf. plan- og bygningsloven § 21-10. Kommunen vil ikke kreve ferdigattest for disse tiltakene og vil avvise eventuelle søknader. Bestemmelsen innebærer ikke at tiltak med manglende søknad blir lovlige, men at man ikke trenger å avslutte gamle byggesaker. Normalt sett kreves ferdigattest for alle søknadspliktige tiltak som gjøres etter plan- og bygningsloven.
Det foreligger ingen dokumentasjon på innredning/innglassing av vinterhage og denne er således ikke godkjent hos Sandefjord kommune.
Tinglyste heftelser og rettigheter
På eiendommen er det tinglyst følgende heftelser og rettigheter som følger eiendommens matrikkel ved overskjøting til ny hjemmelshaver:
Bestemmelse om veg tinglyst 10.09.1990 med dagbokummer 6632
Rettighetshaver: Knr:3907 Gnr:83 Bnr:150, 205. Nevnte eiendommer har rett til veiadkomst over herværende eiendom.
Eiendommens rettigheter:
Bestemmelse om veg tgl 10.09.1990 med dagboknummer 6632
Herværende eiendom har veirett over gnr. 83, bnr. 131, 150 (må delta på kostnader og vedlikehold av vei)
Eventuell adgang til utleie
Eiendommen har ikke separat utleieenhet. Det vil normalt være anledning til utleie av hele eiendommen eller enkeltrom, såfremt utleiearealet er bygningsmessig godkjent for varig opphold og har forsvarlige radonnivåer.
Diverse
Eiendommen inngår i et dødsbo hvor arvingene er selgere. Arvingene har ikke bebodd eiendommen og kjennskapen til eiendommens tilstand kan være mangelfull. Kjøper må derfor kunne påregne at det kan være flere feil og mangler som normalt oppdages ved bruk av boligen, men som selger av dødsbo ikke har mulighet å vite.
Boligen blir ikke ytterligere rengjort eller vasket og leveres slik den fremstår på visning.
Boligen er p.t. tilknyttet alarm. Abonnement medfølger ikke, ta kontakt med megler for nærmere informasjon.
Nabo(Sjuveengåsen 7) har varslet at det skal bygges en utebod langs med tomtegrense mellom Sjuveengåsen 5 og 7. Foreløpige tegninger viser at boden skal være 12 m * 2.5 m. Ta kontakt med megler for nærmere opplysninger eller illustrasjon av bod. Selger/megler kan ikke garantere for nevnte mål/beskrivelse, og bodens utførelse kan bli endret. Nåværende sjøgløtt vil bli berørt av bygging av bod, det samme gjelder dersom nabo (Nr. 7) setter opp et drivhus eller gjerde mellom Sjuveengåsen 7 og Sjuveengåsen 3 forlenges ytterligere mot vest.
Det anbefales å sette opp et gjerde i tomtegrense slik at det blir enklere å forholde seg til grensene mellom tomtene (nabo har også ytret ønske om gjerde).
Beliggenhet og tomteforhold
Beliggenhet og tomteforhold
Beliggenhet
Eiendommen har en svært attraktiv og idyllisk beliggenhet på Lahelle, med kort rusleavstand til sjø, badestrender og flotte turområder. Kun ca. 5 minutters gange fra boligen ligger Lahelle badestrand – en populær møteplass gjennom sommeren og et kjent samlingspunkt på Sankthansaften, hvor det tradisjonelt tennes stort bål og skapes hyggelig stemning for både store og små. Området byr på flere badeplasser, og bryggen er et naturlig samlingspunkt hvor barn og unge tilbringer lange sommerdager med krabbefiske og bading.
Lahelle er kjent for sin sjarmerende sørlandsidyll med koselige smågater, vakre omgivelser og nærhet til sjøen. Lahellefjorden frister med flotte holmer som fylles av båtliv og sommerstemning på varme dager, og med båt er veien kort videre ut til både Tønsbergfjorden og Tjøme.
Sjuveenga havneområde ligger ligger kun 3-5 minutter unna eiendommen.
For den aktive ligger GØIF idrettsanlegg kun få minutter unna. Anlegget tilbyr flere fotballbaner og gode aktivitetsmuligheter for både barn og voksne. Her finner man også barnehage samt Fotballfritidsordning (FFO) for de yngste.
I tillegg er det kort vei til populære Skjellvika badestrand, en vakker og familievennlig strand med kiosk, flotte turmuligheter og gode fiskeplasser.
Daglige innkjøp gjøres enkelt på Joker på Gjekstad, som også holder søndagsåpent.
Den populære Kyststien på Østerøya starter like ved utgangsdøren og strekker seg helt ut til Tønsberg Tønne sør på øya. Langs stien passerer man flere idylliske badeplasser og attraktive fiskeområder.
På Lahelle finner man også Bondens Hage – et hyggelig samlingssted med kafé, blomsterhandel og flotte selskapslokaler oppført i 2022.
Å bo på Lahelle gir en helt spesiell livskvalitet. Her kombineres nærhet til sjø, natur og rekreasjon med korte avstander til butikk, idrettsanlegg, lekeplasser og flere flotte badestrender langs vakre Lahellefjorden.
Det er heller ingen boplikt i Sandefjord.
Adkomst
Megler oppfordrer til at man viser hensyn ved kjøring inn til eiendommen, da det bor og ferdes mange barn i området. Det vil bli skiltet med Krogsveen visningsskilter til annonserte visninger. Det vil bli satt opp til-salgs-skilter på boligen. Eventuelt se vedlagt kartskisse på høyre side i annonsen
Barnehager, skoler og fritid
Boligen ligger med nærhet til både barneskole og ungdomsskole, samt flere barnehager.
Dersom skole- og barnehagetilbud er av betydning for kjøpet, ber vi om at det rettes en særskilt henvendelse til kommunen for oppdatert informasjon.
Beskrivelse av tomt
Eiendommen ligger høyt, fritt og særdeles solrikt til på en romslig eiertomt på ca. 1 023 kvm. Fra tomten har man en flott utsikt over store deler av Sjuveenga, noe som skaper en luftig og attraktiv ramme rundt eiendommen.
Beliggenheten gir meget gode solforhold gjennom dagen, med sol fra morgen til sent på kvelden. Her kan man nyte rolige uteområder og vakre solnedganger i naturskjønne omgivelser.
Tomten fremstår som særdeles lettstelt og harmonisk opparbeidet med en fin kombinasjon av naturtomt og hyggelige plenarealer. De naturlige omgivelsene gir eiendommen et eksklusivt og privat preg, samtidig som uteområdene innbyr til både avslapning og sosiale sammenkomster.
En sjelden mulighet til å sikre seg en høyt og fritt beliggende eiendom med flotte solforhold, utsikt og gode kvaliteter.
Det er særdeles sjeldent det selges tomter i dette området med slike optimale solforhold.
Se vedlagte situasjonskart for nærmere opplysninger om nøyaktige tomtegrenser.
Parkering
Mulighet for parkering i garasje, samt på tomten.
Som det fremkommer av vedlagte situasjonskart er det begrenset med parkeringsareal på tomten. Deler av areal foran garasje (kan ikke parkere foran garasje) samt deler av nåværende oppstillingsplass/grusplass ligger på naboens eiendom, det bør etableres ytterligere parkeringsmuligheter på eiendommen.
Vei, vann og avløp
Eiendommen har adkomst via privat vei med felles drift og vedlikeholdsansvar.
Eiendommen er tilknyttet kommunalt ledningsnett via private stikkledninger. Eier er selv ansvarlig for private stikkledninger til boligen.
Regulerings-og arealplaner
Eiendommen ligger i et område som er avsatt til Boligbebyggelse, Nåværende ihht. til kommuneplanens arealdel 2023 ( Ikrafttredelse 21.09.2023)
Økonomi
Økonomi
Kommunale utgifter
Kommunale avgifter er kr 14.072,- for inneværende år. I dette inngår gebyr for vann, avløp, renovasjon og feiing/tilsyn.
Megler opplyser at det bør estimeres et årlig strømforbruk på ca. 17.000 kWh.
Årlig forsikringspremie estimeres til kr. 10.000,-
Boligen er tilknyttet Sandefjord bredbånd som leverandør av tv/internett og har avgift på kr. 1.390,- pr. mnd.
Det må også påregnes kostnader til vedlikehold og drift av felles adkomstvei, samt innboforsikring.
Fullmektig/arving har ikke bebodd eiendommen og har således ikke kjennskap til øvrige løpende utgifter for eiendommen.
Formuesverdi
Formuesverdi for 2024 var kr 1 101 553,- ifølge selgers Skatteetaten. Beløpet forutsetter at eier bor fast i boligen (primærbolig).
Ved eventuell øvrig bruk av eiendommen (f.eks. fritidsbolig, pendlerbolig, utleieobjekt) var formuesverdien for 2023 kr 4 406 213,-.
Fra 2026 har Stortinget vedtatt en oppdatert modell for beregning av formuesverdi for primærbolig, så avvik kan forekomme.
For mer informasjon se skatteetaten.no
Omkostninger
5 500 000,00 Prisantydning
Omkostninger
137 500,00 Dokumentavgift til staten (2,5% av kjøpesum)
19 900,00 Gjensidige Boligkjøperpakke (valgfri)
545,00 Tinglysing panterettsdokument
545,00 Tinglysing skjøte
--------------------------------------------------------
158 490,00 Omkostninger totalt
--------------------------------------------------------
5 658 490,00 Totalpris inkl. omkostninger
--------------------------------------------------------
Betalingsbetingelser
Kjøpesum inkludert omkostninger, samt pantedokument tilknyttet eventuelt lån, skal være disponibelt hos megler 2 virkedager før overtagelsen.
Annen viktig informasjon
Annen viktig informasjon
Eier
Inger Lise Hasle Varild og Bjørn Harald Hasle
Overtakelse
Etter nærmere avtale.
Boligselgerforsikring
Selger har i forbindelse med salget tegnet Boligselgerforsikring levert av Gjensidige. Boligselgerforsikring dekker selgers ansvar etter avhendingsloven begrenset oppad til kr 14 millioner. Dersom kjøper oppdager forhold ved eiendommen som hen mener utgjør en mangel ved eiendommen, vil Gjensidige behandle reklamasjonen på vegne av selger. Forsikringsvilkår kan fås ved henvendelse til megler.
Vedlagt salgsoppgaven følger selgers egenerklæringsskjema og tilstandsrapport. Interessenter må sette seg inn i dokumentene før bud inngis. Egenerklæringen er fylt ut av arvingene iht deres kjennskap om eiendommen. Da de ikke har bebodd eiendommen kan kjennskapen være mangelfull.
Boligkjøperforsikring
Innen kontraktsmøtet må kjøper ta stilling til om det ønskes å bestille Boligkjøperpakken gjennom Gjensidige. I denne gunstige pakken er boligen ferdig forsikret og inkluderer rettshjelpsforsikring, også kalt Boligkjøperforsikring. Rettshjelpsforsikring gir trygghet og tilgang på profesjonell juridisk hjelp dersom det oppdages uventede feil eller mangler det første året etter overtagelse. Forsikringsselskapet behandler i så fall ethvert mangelskrav kjøper måtte ha overfor selger.
Boligkjøperpakken inkluderer bygningsforsikring for hus og hytte, innboforsikring, flytteforsikring og dobbel rentedekning - i situasjoner hvor kjøper ikke får solgt nåværende primærbolig.
Kjøper mottar ingen særskilt faktura for Boligkjøperpakken da kostnaden det første året legges til kjøpesummen for boligen. Det gjøres oppmerksom på Krogsveen mottar et honorar for denne formidlingen.
Produktark for Boligkjøperpakken ligger vedlagt i salgsoppgaven.
Dersom ikke boligkjøperpakke ønskes kan kun rettshjelpsforsikring, også kalt boligkjøperforsikring, tegnes særskilt via megler. Rettshjelpsforsikringen varer i 5 år fra overtagelse og leveres gjennom Gjensidige. Ta kontakt med megler for ytterligere informasjon.
Selskap og privatpersoner som driver med kjøp/salg/utvikling som ledd i egen næringsvirksomhet kan ikke tegne boligkjøperpakke eller rettshjelpsforsikring.
Budgivning
Forbrukerinformasjon om budgivning er vedlagt denne salgsoppgaven og er også på vår hjemmeside Krogsveen.no. Alle bud og budforhøyelser må inngis skriftlig. I tillegg må legitimasjon være fremlagt sammen med signatur fra budgiver.
Vi oppfordrer til å gi bud elektronisk via GI BUD-knappen på eiendommens hjemmeside på Krogsveen.no. Da vil samtlige vilkår bli oppfylt.
Eventuelle forhøyelser eller endringer av budet kan bekreftes pr SMS eller på e-post. Vi oppfordrer alltid til å kontakte megler pr. telefon i tillegg da forsinkelser i SMS og e-post kan forekomme.
For at budene skal kunne bli behandlet og videreformidlet skriftlig til alle involverte parter, må alle bud ha en tilstrekkelig lang akseptfrist, jf. eiendomsmeglingsforskriften § 6-3.
Selger må også skriftlig akseptere budet før aksept kan formidles til budgiver. Akseptfrist bør derfor være på minimum 30 minutter, og budforhøyelser må derfor skje i god tid før fristens utløp.
Bud i forbrukerforhold kan uansett ikke settes med kortere frist enn kl. 12.00 første virkedag etter siste annonserte visning. I tillegg kan ikke budet ha forbehold om at det skal holdes hemmelig ovenfor øvrige interessenter. Megler har iht lov om eiendomsmegling ikke anledning til å videreformidle disse budene, og de vil dermed heller ikke bli journalført.
Etter at eiendommen er solgt vil kjøper og selger få tilsendt budjournal. Øvrige budgivere kan få utlevert kopi av budjournalen i anonymisert form.
Hvitvaskingsreglene
I henhold til lov om hvitvasking og terrorfinansiering har megler plikt til å gjennomføre kontrolltiltak overfor kunder, herunder fullmektiger. Dette innebærer bl.a. å bekrefte kunders og reelle rettighetshaveres identitet på bakgrunn av fremvist gyldig legitimasjon eller på annen godkjent måte, samt å innhente opplysninger om kundeforholdets formål og tilsiktede art.
Dersom slike kundetiltak ikke kan gjennomføres, kan megler ikke etablere kundeforholdet eller utføre transaksjonen.
Hvis kjøper ikke bidrar til gjennomføring av kundekontrollen og dette fører til at transaksjonen blir forsinket eller ikke kan gjennomføres, vil dette ansees som mislighold av avtalen og gi selger rettigheter etter avhendingslova kapittel 5. I tilfeller der selger ikke bidrar til gjennomføring av løpende kundekontroll underveis i oppdraget, er det selger som misligholder sine forpliktelser etter avtalen og gi kjøper rettigheter etter avhendingslovens kapittel 4. Partene er selv ansvarlige for eventuelle kostnader og ansvar dette kan medføre. Eiendomsmegleren eller eiendomsmeglingsforetaket kan ikke holdes ansvarlig for de konsekvenser dette vil kunne få for partene eller andre som har interesser i eiendomshandelen.
Kjøper oppfordres til å innbetale kjøpesummen som ikke kommer fra låneinstitusjon i én samlet innbetaling fra egen konto i norsk bank. Megler har plikt til å melde fra til Økokrim om eiendomshandler som fremstår som mistenkelige. Melding sendes Økokrim uten at partene varsles.
Personopplysningsloven
I henhold til personopplysningsloven gjør vi oppmerksom på at interessenter kan bli registrert for videre oppfølging.
Lovanvendelse
Generelle bestemmelser
Salgsoppgaven er basert på de opplysningene selger har gitt til megler, den bygningssakyndiges tilstandsrapport, samt opplysninger innhentet fra kommunen, Kartverket og andre tilgjengelige kilder. Det er viktig at kjøper setter seg grundig inn i alle salgsdokumentene, herunder salgsoppgave, tilstandsrapport og selgers egenerklæring. Kjøper anses kjent med forhold som er tydelig beskrevet i salgsdokumentene, og slike forhold kan ikke påberopes som mangler. Dette gjelder uavhengig av om kjøper har lest dokumentene. Alle interessenter oppfordres til å undersøke eiendommen nøye, gjerne sammen med fagkyndig før bud inngis. Kjøper som velger å kjøpe usett kan ikke gjøre gjeldende som mangel noe han burde blitt kjent med ved undersøkelsen.
Dersom det er behov for avklaringer, anbefaler vi at interessenter rådfører seg med eiendomsmegler eller egne rådgivere før det legges inn bud.
En bolig som har blitt brukt i en viss tid, har vanligvis blitt utsatt for slitasje og skader kan ha oppstått. Slik bruksslitasje må kjøper regne med, og det kan avdekkes enkelte forhold etter overtakelse som nødvendiggjør utbedringer. Normal slitasje og skader som nødvendiggjør utbedring, er innenfor hva kjøper må forvente og vil ikke utgjøre en mangel.
Kjøper og selgers rettigheter og plikter reguleres av avtalen mellom partene, samt informasjonen som har vært tilgjengelig for kjøperen i forbindelse med handelen. Avtalen utfylles av avhendingsloven, og det gjelder ulike avtalevilkår avhengig av om kjøper er forbrukerkjøper eller ikke. Dette er nærmere beskrevet nedenfor.
På grunn av ulike avtalevilkår kan selger vurdere bud fra en som ikke er forbruker, ulikt fra en forbrukers bud. Dersom kjøper ikke er forbruker, er selger sitt mulige mangelsansvar begrenset fordi eiendommen selges "som den er". Selger kan ikke ta «som den er»- forbehold overfor en forbrukerkjøper. Selv et lavere bud fra en som ikke er forbruker kan foretrekkes fordi begrensningen i mulig mangelsansvar kan ha egenverdi for selger. Selger står fritt til å forkaste eller akseptere ethvert bud, og er for eksempel ikke forpliktet til å akseptere høyeste bud.
Budgiver skal i budskjema avgi egenerklæring om budgiver er forbruker eller næringsdrivende/ person som hovedsakelig handler som ledd i næringsvirksomhet. Budgivere får informasjon dersom andre bud er inngitt av en som ikke er forbruker.
Forbrukerkjøp - definisjon
Med forbrukerkjøp menes kjøp av eiendom når kjøperen er en fysisk person som ikke hovedsakelig handler som ledd i næringsvirksomhet.
Forbruker – avtalevilkår
Eiendommen har en mangel dersom den ikke er i samsvar med kravene som følger av avtalen, eller det foreligger brudd på bestemmelsene i avhendingsloven §§ 3-2 til 3-8. Hvis eiendommen ikke er i samsvar med det kjøperen må kunne forvente ut ifra alder, type og synlig tilstand, kan det være grunnlag for mangelskrav. Det samme gjelder hvis det er holdt tilbake eller gitt uriktige opplysninger om eiendommen. Dette gjelder likevel bare dersom man kan gå ut ifra at det virket inn på avtalen at opplysningen ikke ble gitt eller at mangelskravet ikke blir rettet i tide på en tydelig måte.
Boligen kan ha en mangel etter avhendingsloven § 3-3 andre ledd, dersom det er avvik mellom opplyst og faktisk innvendig areal, forutsatt at avviket er på 2% eller mer og minimum 1 kvm.
Ved beregning av et eventuelt prisavslag eller erstatning må kjøper selv dekke tap/kostnader opptil et beløp på kr 10 000 (egenandel).
Ikke-forbruker (næringsdrivende) – definisjon
Hvis kjøper er en juridisk person, eller en fysisk person som hovedsakelig handler som ledd i næringsvirksomhet, vil kjøpet ikke anses som et forbrukerkjøp.
Ikke-forbruker – avtalevilkår
Eiendommen har en mangel dersom den ikke er i samsvar med kravene som følger av avtalen.
Eiendommen selges «som den er», og selgers ansvar utover det konkret avtalte er da begrenset etter avhendingsloven § 3-9, første ledd andre setning.
Avhendingsloven § 3-3 andre ledd fravikes, og hvorvidt boligens arealsvikt utgjør en mangel vurderes etter avhendingsloven § 3-8.
Informasjon om kjøpers undersøkelsesplikt, herunder oppfordringen om å undersøke eiendommen nøye, gjelder også for kjøpere som ikke anses som forbrukere.
Det forutsettes at hjemmel overføres til kjøper. Hvis kjøper ikke ønsker hjemmelsoverføring av eiendommen, må det tas forbehold om dette i budet.
Meglers vederlag
Meglers vederlag betales av selger og er avtalt til:
Vederlag: 1,50 % av salgssummen.
Vederlag:
Fotopakke kr 4 800,00
Kontroll av hjemmel og heftelser kr 3 900,00
Markedsføringspakke kr 29 900,00
Oppgjør kr 8 900,00
Tilrettelegging kr 19 900,00
Visninger kr 2 750,00
Utlegg:
Innhenting av offentlig opplysninger Sandefjord - Norkart kr 3 504,00
Tinglysing sikring kr 545,00
Andre utgifter:
Vi er opptatt av verdiskapning, og har knyttet til oss samarbeidspartnere som skal sikre våre kunder de beste produkter og tjenester;
• I forbindelse med forberedelse av salget, innhenter vi informasjon om eiendommen hovedsakelig fra vår samarbeidspartner Amibita.
• Gjensidige leverer boligselgerforsikring og tilbyr bygningsforsikring
• Boligkjøperforsikring leveres av Hiscox og med Sedgwick som skadebehandler, og er formidlet gjennom Gjensidige.
• BN bank tilbyr finansieringsløsninger
• Vår avdeling Krogsveen Pluss tilbyr flyttetjenester som utvask, visningsvask, lager, tømming og transport av flyttelass, i tillegg til å formidle kontakt med Flip for overflateoppussing.
• I forbindelse med overtagelse av eiendommen tilbyr Overo avtale om strøm, alarm og bredbånd.
• Krogsveen er, sammen med øvrige bransjeaktører, medeier i Bomega AS som tilbyr den digitale annonseringsplattformen Hjem.
Opplysninger om oppdraget
Oppdragsnummer 22-0033/26
Eiendomsmegler Krogsveen AS, avd. Sandefjord
Jernbanealléen 13, 3210, SANDEFJORD
950 007 613
Oppdragets KR-kode KR22.2633
Dato
Sist oppdatert: 19. mai 2026 kl. 08:33
Dokumenter
Dokumenter
PDF – 915 KB
PDF – 6 MB
PDF – 1 MB
PDF – 168 KB
PDF – 312 KB
PDF – 29 KB
PDF – 127 KB
PDF – 392 KB
Område
Legg til steder som er viktige for deg
Visning
For å delta på visning, ber vi om at du melder deg på. Da sikrer vi at du får nødvendig informasjon og at det er satt av tilstrekkelig med tid. Kontakt megler dersom annet tidspunkt ønskes. Husk å lese salgsoppgaven før visningen, så du stiller forberedt. NB. Visning utgår dersom det ikke er noen påmeldte. Ønsker du kun å bli holdt orientert, kan du fra eiendommens hjemmeside få varsel om solgtpris, eller kontakte megler.
Lurer du på noe?
Unngå doble boligrenter
Vi tilbyr gunstig forsikring.
Vurderer du utleie?
Få et tilbud fra Utleie KrogsveenHva koster lånet?
Sjekk estimert lånekostnadVil du varsles om lignende boliger?
Ved å lagre ditt boligsøk hos oss får du beskjed når vi har en bolig som ligner denne, før den legges ut på markedet!

