Vestbykroken 2
3 990 000 kr
120 m²
3 soverom
Komplett salgsoppgave

Dal
Innholdsrik 1/2-part tomannsbolig m/3 sov, 2 stuer | Stor og solrik tomt | Garasje | Attraktivt og barnevennlig boområde
Prisantydning
3 990 000 krOmkostninger
100 750 krTotalpris
4 090 750 kr
Pris
Bruksareal
145 m²BRA-I (internt bruksareal)
120 m²BRA-E (eksternt bruksareal)
25 m²TBA (terrasse-balkongareal)
20 m²
Areal
Etasje
2Byggeår
2004Soverom
3 soveromBad
1 badTomteareal
595 m² (eiet)Type
Halvpart vertikaldelt boligEierform
EietFasiliteter
Garasje/P-plass og Balkong/TerrasseEnergimerke
Rød D
Nøkkelinfo
Unngå doble boligrenter
Vi tilbyr gunstig forsikring.
Vurderer du utleie?
Få et tilbud fra Utleie KrogsveenHva koster lånet?
Sjekk estimert lånekostnadBeskrivelse
Kort om eiendommen
Velkommen til Vestbykroken 4!
Innholdsrik halvpart av tomannsbolig over to plan med tilhørende garasje og flotte uteområder. Boligen byr på en lys og luftig stue, et pent separat kjøkken, tre gode soverom samt to stuer. Fra stuen er det direkte utgang til en solrik markterrasse på ca. 20 kvm med tilhørende hage. Terrassen er utstyrt med elektrisk markise som gir behagelig skjerming på varme sommerdager. I første etasje finner du et bad og et separat vaskerom. Boligen er opprinnelig byggemeldt med bad også i andre etasje.
Eiendommen ligger på Dal i Eidsvoll kommune, - et barnevennlig og trivelig område med lekeplass på tunet og fotballbane et steinkast unna. Fra boligen er det gangavstand til Dal barneskole, barnehager, offentlig kommunikasjon med gode forbindelser.
Vi ses til visning!
Innhold og byggemåte
Innhold og byggemåte
Eiendommen
Vestbykroken 2, 2072 DAL
Kommunenummer 3240, gårdsnummer 92, bruksnummer 627, ideell andel 1/1
Innhold
Totalt bruksareal BRA: 145 kvm
BRA-i:
Tomannsbolig :
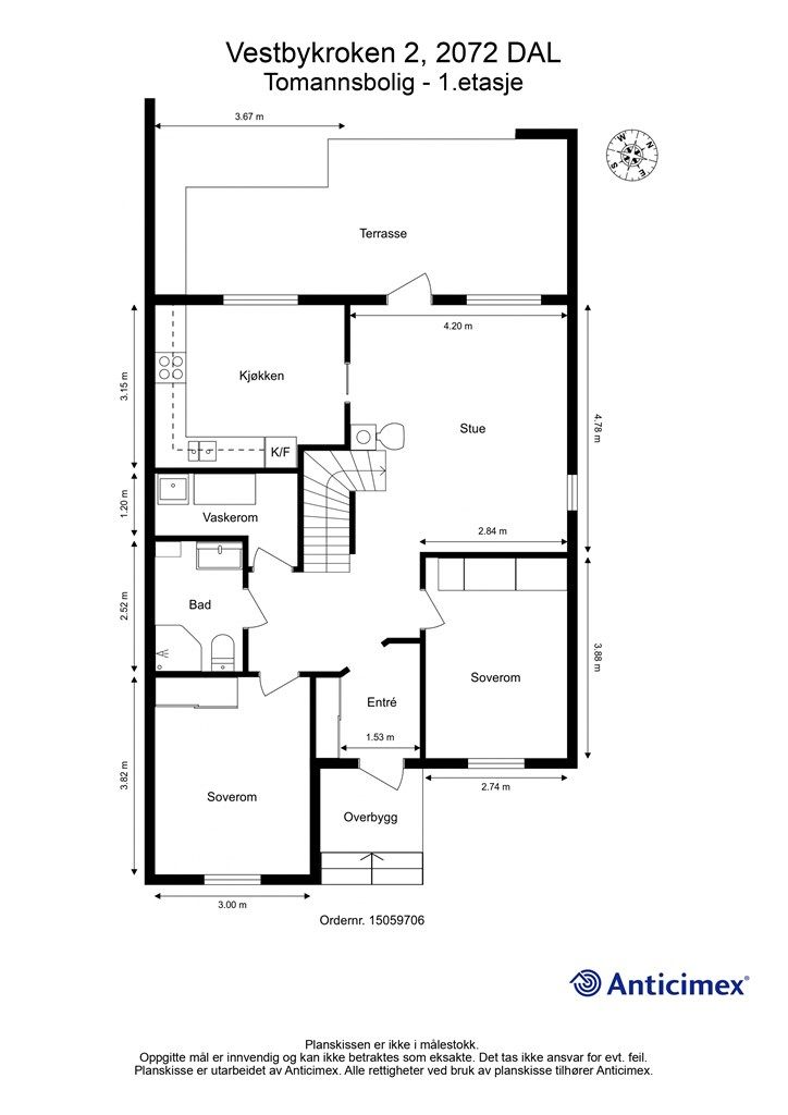
1. etasje 78 kvm: Entre, baderom, vaskerom, trapperom, kjøkken, stue og to soverom.
2. etasje 42 kvm: Trapperom/gang, loftstue/soverom og soverom samt loft/bod.
BRA-e:
Garasje :
1. etasje 25 kvm: Frittstående garasje med inntilliggende bod.
Åpent areal:
Tomannsbolig :
1. etasje 20 kvm: Terrasse.
Vedlagte plantegninger er ikke målbare. De oppgitte arealer er hentet fra rapport datert 23.08.2024 utført av Anticimex AS. Arealene er beregnet og rom er definert etter dagens faktiske bruk, uavhengig av hva som er godkjent av bygningsmyndighetene.
Det gjøres oppmerksom på at andre etasje avviker fra byggetegninger. Se pkt. ferdigattest for ytterligere informasjon.
Byggemåte
Selger har fått utarbeidet en tilstandsrapport, dvs. en teknisk gjennomgang av boligen hvor eventuelle avvik, risiko for kjøper og prisoverslag for hva som bør gjøres av oppgradering, er skissert. Se særskilt TGIU (tilstandsgrad ikke undersøkt), samt TG2 og TG3 som viser hva som er avvik fra boligens normale slitasje, alder og type, eller som bør/må utbedres. Rapporten og selgers egenerklæring er en del av salgsoppgaven og må leses nøye før bud inngis. Kjøper overtar ansvaret for de opplysninger som fremkommer av salgsdokumentasjonen, og kan ikke gjøre gjeldende som mangel noe som burde vært kjent eller som ikke kan anses å ha betydning for avtalen.
Bygningen er iht. tilstandsrapporten oppført med gulvflater i 1.etasje av betong og etasjeskillere av tre. Yttervegger og bærende konstruksjoner av støpt plate på mark og bindingsverkskonstruksjon, utvendige fasader er kledd med trepanel. Takkonstruksjon av tre i saltaks form utvendig tekket med betongtakstein. Les forøvrig mer om byggemåte og den tekniske tilstanden i rapporten.
Boligen ble oppført i 2003/04 og har 33% TG2. Det gjøres spesielt oppmerksom på:
Våtrom - Baderom:
- Gulvbelegg er benyttet som fuktsikring. Høydeforskjell fra topp slukrist til topp gulvoverflate ved dørterskel er mindre enn 25 mm.
- Alder på våtrommet tilsier aktsomhet med henhold til at tetthet ikke kan garanteres med hensyn til fuktgjennomgang i våtrommets membransjikt.
- Innredning har stedvis skader/fuktsvelling langs underkant av skapfronter.
Våtrom - Vaskerom:
- Gulvbelegg er benyttet som fuktsikring. Høydeforskjell fra topp slukrist til topp gulvoverflate ved dørterskel er mindre enn 25 mm.
- Alder på våtrommet tilsier aktsomhet med henhold til at tetthet ikke kan garanteres med hensyn til fuktgjennomgang i våtrommets membransjikt.
Kjøkken - Kjøkken :
- Fordelerstokker for rør i rør system er montert i benkeskap på kjøkken, uten bruk av tett fordelerskap (sprutsikring) eller fuktsikring.
- Alder på varmtvannsbereder har passert mer enn 50% av anbefalt brukstid og av den grunn heftes det usikkerhet til restlevetiden. Bereder er også tilkoblet med stikkontakt. Noe som kan generere fare for varmegang.
Øvrige rom: TG 2 gjelder kun stedvis lokal slitasje i enkelte gulvoverflater, spesielt i loftstue. Forøvrig ingen merknader.
Tekniske anlegg, VVS anlegg - Vannrør: TG 2 gjelder fordelerstokker for rør i rør system som er montert i benkeskap på kjøkken, uten bruk av tett fordelerskap (sprutsikring) eller fuktsikring.
Elektrisk anlegg - El-anlegg: Det er kun fremlagt samsvarserklæring på deler av utførte arbeider på det elektriske anlegget (tilstandsgrad settes i henhold til NS3600).
Yttertak - Hovedtak: Slitasjegraden på taktekkingen (inkl. undertak og lekter) er slik at det vurderes at tekkingen har passert mer enn 50 % av anbefalt brukstid. Det ble i tillegg observert stedvise mosedekkede felter på taktekking.
Drenering: Taknedløp har stedvis kun utkast og det er ikke forsvarlig bortledning av takvann fra grunnmuren/sålekant.
Frittstående byggverk: Overordnet forenklet vurdering av tilstanden er at det stedvis er relativt høy slitasjegrad som gjør at det anbefales utbedrende tiltak. Det anbefales også rengjøring av takflater. Utvendig bod og lekestue har stedvis høy slitasje.
Se supplerende tekst i tilstandsrapporten. Kjøper overtar ansvar og risiko for dette.
Selger opplyser videre:
- Byttet blande og sikkerhetsventil på bad og kjøkken, utført av Utført av Lunder & Aas AS.
- Satte inn nytt vindu i stua i 2019.
- Skifte av fire termostater, montert ny dimmer og brytere 31.10.2019. Diverse annet elektrisk arbeid, alle utført av Dal Elektriske AS.
- Noen få små sukkermaur i vindfang, rundt påsketider, i fjor og i år. Etter bruk av mauråte, var de borte etter en uke.
- Satt inn klosettkran 23.10.2018. Utført av Lunder & Aas AS.
- Det gjøres oppmerksom på at boden som ligger i bakkant av garasje og dokkestuen er falleferdig og bør rives.
Standard
Fin familiebolig over to plan med gjennomgående bra standard og fornuftig planløsning. I inngangspartiet finner man en romslig vindfang med belegg og varmekabler i gulvet. Fra entré kommer man inn i en hall som tilknytter to soverom, et bad og vaskerom.
Videre er det inngang rett frem til stue og kjøkkenet. Stor og romslig stue som har godt med vindusflater, noe som gir godt med naturlig lys. Herfra har man også utgang til et solrik markterrasse og hage. Her er det montert en elektrisk markise som gir god skjerming på de varmeste dagene.
Kjøkken: Hvit profilert kjøkkeninnredning med laminert benkeplate med nedfelt oppvaskkum. Opplegg for oppvaskmaskin og det er tilkoblet en ca. 120 liters varmtvannsbereder i benkeskap. Det er også tilkoblet en ventilator av type Flexit over kokeplass. Oppvaskmaskin og eventuelt kjøleskap medfølger. Det gjøres oppmerksom på at hvitevarene er kjøpt for noen år tilbake, og kjøper må forvente slitasje som følge alder og normal bruk.
Bad: Badet har belegg på gulv og baderomstapet på vegger. Innredningen består av et over og underskap, servant, speil og armatur med stikk og et dusjkabinett. Avtrekk er montert og varmekabler i gulv.
Vaskerom: Opplegg for vaskemaskin og tørketrommel og det er montert en utslagsvask. Avtrekk er montert.
Fra tappen opp til 2.etasje blir man møtt av et lite soverom/kontor. Videre til høyre har man en stor loftsstue/soverom.
Gulv: Belegg og laminat på alle gulv.
Vegg: Malte, tapetserte, panelerte plater på bindingsverk og murkonstruksjon.
Himling: Malte tak ess plater i de fleste rom.
Verdt å merke seg:
- Innholdsrik tomannsbolig med fire soverom, stue og mulighet for et ekstra bad.
- Rolig og barnevennlig boligområde.
- Kort vei til skole, barnehage, butikker etc.
Løsøre og tilbehør
Vi viser til liste fra Norges Eiendomsmeglerforbund som gjelder fra 01.01.2020 angående løsøre og tilbehør.
Oppvarming
Oppvarming med elektrisitet og gulvvarme i vindfang, bad, gang, stue og kjøkken, kombinert med peisovn i stue. Dersom beboelsesrom ikke har vegg- eller fastmonterte varmekilder ved visning, følger dette heller ikke med.
Ferdigattest/brukstillatelse
Det foreligger ikke ferdigattest på eiendommen, men midlertidig brukstillatelse ble gitt 25.11.2004. Tillatelsen er gitt på følgende vilkår: finplanering/tilsåing.
Selger opplyser at alle punkter er utført. Kjøper overtar ansvaret for dette.
Det gjøres oppmerksom på at plantegningen i 2.etasje avviker fra dagens løsning. Eiendommen er opprinnelig byggesøkt med loftsstue, soverom, bad og to boder. I dag er det innredet soverom der hvor loftstuen er tegnet inn, samt loftsstue der soverom er tegnet inn. Dette er ikke søknadspliktige endringer. Bad er ikke opprettet og er i dag en del av loftsstue. En bod er i dag innlemmet som en del av loftsstuen. Denne er ikke omsøkt eller bruksendret. Konsekvensen kan være at denne må tilbakeføres.
Kjøper overtar eiendommen slik den fremstår på visning.
Tinglyste heftelser og rettigheter
Eiendommen overdras fri for pengeheftelser
Det er ingen tinglyste servitutter på eiendommen.
Eventuell adgang til utleie
Eiendommen har ikke separat utleieenhet. Det vil normalt være anledning til utleie av hele eiendommen eller enkeltrom, såfremt utleiearealet er bygningsmessig godkjent for varig opphold og har forsvarlige radonnivåer.
Beliggenhet og tomteforhold
Beliggenhet og tomteforhold
Beliggenhet
Eiendommen ligger på Dal i Eidsvoll kommune. Et barnevennlig og trivelig område med gode solforhold og kort vei til alt.
Området består i hovedsak av spredt villabebyggelse, landbruk og skog. Det er fine rekreasjons- og turmuligheter i umiddelbar nærhet. Kort vei til skoler, barnehager, offentlig kommunikasjon (tog og buss), fotballstadion og nærbutikk.
Kollektiv transport
Området gir mulighet for offentlig kommunikasjon via buss og tog som forenkler et aktivt liv uten bil. Det er ca. 1,7 km til Dal togstasjon, noe som gir gode pendlermuligheter inn mot Oslo. Med bil tar det ca. 8 min til Eidsvoll Verk, 14 min til Eidsvoll, 14 min til Oslo lufthavn og 35 min til Oslo S. For mer informasjon besøk: www.ruter.no
Rekreasjonsområder
Området har kort vei til lekeplass, fotballbane, skiløyper, golfbane, idrettshall, svømmehall, ridesenter, treningssenter, kino og bibliotek m.m. Eiendommen har også nærhet til flotte tur- og friluftsområder som gir gode rekreasjonsmuligheter både sommer og vinter. I vest har Hurdalssjøen flere badeplasser, samt egen småbåthavn med båtslipp, noe som fører til et yrende båt- og badeliv om sommeren.
Shopping
Dagligvarehandelen gjøres på Kiwi som ligger i kort avstand fra boligen. Ønsker du ytterligere servicetilbud har Råholt et variert utvalg med bl.a. dagligvare, post, bank, minibank, apotekl, mote, interiør, blomster, frisør, kafé/restaurant, lege og tannlege etc. Råholt kjøpesenter åpnet dørene våren 2014 med 45 nye butikker. Det er også kort vei til Jessheim Storsenter som er et moderne kjøpesenter med over 140 ulike butikker og tilknyttede virksomheter.
Avstand med bil
Råholt ca. 5 min.
Jessheim ca. 14 min.
Oslo Lufthavn ca. 15 min.
Adkomst
Adkomst fra Oslo: Kjør E6 nordover og passer avkjøringen til Oslo Lufthavn Gardermoen. Ta av ved avkjøring mot Dal / Råholt. Ta deretter av til høyre mot Dal og følg veien til du får Vestbykorken inn til høyre (etter Kiwi). Kjør forbi KIWI så er Vestbykroken første avkjøring til høyre. Det vil bli skiltet med Krogsveen visningsskilt ved fellesvisninger.
Barnehager, skoler og fritid
Eiendommen har gangavstand til Dal barneskole, ca. 1,0 km.
For elever i ungdomstrinnene sokner boligen nye Råholt ungdomsskole, ca. 3,9 km. Det finnes flere videregående skoler i nærliggende områder, blant annet Eidsvoll og Nannestad videregående skoler. I tillegg er det et godt utvalg av både private og kommunale barnehager. Informasjon om tilhørende skolekretser er hentet fra Prognosesenteret som dataleverandør, og tilhørigheten kan årlig endres av kommunen. Dersom skole- og barnehagetilbud er av betydning for kjøpet, ber vi om at det rettes en særskilt henvendelse til kommunen for oppdatert informasjon.
Beskrivelse av tomt
Eiet tomt på 594,6 kvm opparbeidet med bl.a plenarealer, diverse beplantning, prydbusker og grusbelagte arealer bestående av innkjøring til garasje/gårdsplass samt gangbaner.
Parkering
Parkering i enkelgarasje, ellers gode parkeringsmuligheter på egen tomt.
Vei, vann og avløp
Eiendommen har adkomst via privat vei med felles vedlikeholdsansvar.
Eiendommen er tilknyttet kommunalt ledningsnett via private stikkledninger. Eier er selv ansvarlig for private stikkledninger til boligen.
Regulerings-og arealplaner
Eiendommen er regulert til konsentrert småhusbebyggelse i henhold til reguleringsplan Bjørnsrud Skog, Dal datert 27.08.2001 med tilhørende reguleringsbestemmelser datert 13.02.2006.
Utsnitt av plan med tilhørende bestemmelser kan fås ved henvendelse til megler.
Økonomi
Økonomi
Kommunale utgifter
Kommunale avgifter er kr 23.527,- for inneværende år. I dette inngår gebyr for eiendomsskatt, vann, avløp, renovasjon.
Nåværende eier har et strømforbruk som tilsvarer ca. kr 12.-15.000,- pr. år.
Boligen har en årlig forsikringspremie på kr 5.800,-.
Boligen er tilknyttet Viken Fiber som leverandør av fiber og har avgift på kr 1.289,- pr. mnd. Tv-tuner/dekoder medfølger ikke.
Utgiftene er basert på nåværende eiers forbruk og avtaler.
Formuesverdi
Formuesverdi for 2022 var kr 906 999,- ifølge skatteetaten. Beløpet forutsetter at eier bor fast i boligen (primærbolig).
Ved eventuell øvrig bruk av eiendommen (f.eks. fritidsbolig, pendlerbolig, utleieobjekt) var formuesverdien for 2022 kr 3 627 996,-.
Formuesverdien justeres normalt årlig. Se skatteetaten.no for mer informasjon om fastsettelse av formuesverdien.
Eiendomsskatt
Eiendomsskatten utgjør kr. 5.989,- pr år disse er medregnet og faktureres sammen med de kommunale avgiftene som nevnt over.
Omkostninger
I tillegg til kjøpesummen må kjøper betale:
- Dokumentavgift til staten, 2,5 % av kjøpesummen, samt
- Tinglysingsgebyr for skjøte kr 500,-.
- Tinglysingsgebyr for kjøpers eventuelle panterettsdokumenter kr 500,- pr. stk.
Total kjøpesum inkl. gebyrer/avgifter og evt. øvrige kostnader ved kjøp til prisantydning: kr 4.090.750.
I tillegg kommer valgfri Boligkjøperpakke hos Tryg Forsikring på kr 15.050,-/kr17.550,- for eneboliger mindre/større enn 230 kvm.
Tilbud om lånefinansiering
Megler formidler gjerne kontakt med rådgiver hos vår samarbeidspartner BN Bank. De har konkurransedyktige betingelser samt rask og løsningsorientert behandling av din lånesøknad. Krogsveen mottar et honorar dersom lån opprettes.
Betalingsbetingelser
Kjøpesum inkludert omkostninger, samt pantedokument tilknyttet eventuelt lån, skal være disponibelt hos megler 2 virkedager før overtagelsen.
Annen viktig informasjon
Annen viktig informasjon
Eier
Unni Tierney og Thomas Tierney
Overtakelse
Etter nærmere avtale.
Boligselgerforsikring
Selger har i forbindelse med salget tegnet boligselgerforsikring levert av Gjensidige.
Boligselgerforsikringen dekker selgers ansvar etter avhendingsloven begrenset oppad til kr 14 millioner. Dersom kjøper oppdager forhold ved eiendommen som hen mener utgjør en mangel ved eiendommen, vil Gjensidige behandle reklamasjonen på vegne av selger. Forsikringsvilkår kan fås ved henvendelse til megler.
Vedlagt salgsoppgaven følger selgers egenerklæringsskjema og tilstandsrapport. Interessenter må sette seg inn i dokumentene før bud inngis.
Boligkjøperforsikring
Innen kontraktsmøtet må kjøper ta stilling til om det ønskes å bestille Boligkjøperpakken gjennom Gjensidige. I denne gunstige pakken er boligen ferdig forsikret og inkluderer rettshjelpsforsikring, også kalt Boligkjøperforsikring. Rettshjelpsforsikring gir trygghet og tilgang på profesjonell juridisk hjelp dersom det oppdages uventede feil eller mangler det første året etter overtagelse. Forsikringsselskapet behandler i så fall ethvert mangelskrav kjøper måtte ha overfor selger.
Boligkjøperpakken inkluderer bygningsforsikring for hus og hytte, innboforsikring, flytteforsikring og dobbel rentedekning - i situasjoner hvor kjøper ikke får solgt nåværende primærbolig.
Kjøper mottar ingen særskilt faktura for Boligkjøperpakken da kostnaden det første året legges til kjøpesummen for boligen. Det gjøres oppmerksom på Krogsveen mottar et honorar for denne formidlingen.
Produktark for Boligkjøperpakken ligger vedlagt i salgsoppgaven.
Dersom ikke boligkjøperpakke ønskes kan kun rettshjelpsforsikring, også kalt boligkjøperforsikring, tegnes særskilt via megler. Rettshjelpsforsikringen varer i 5 år fra overtagelse og leveres gjennom Gjensidige. Ta kontakt med megler for ytterligere informasjon.
Selskap og privatpersoner som driver med kjøp/salg/utvikling som ledd i egen næringsvirksomhet kan ikke tegne boligkjøperpakke eller rettshjelpsforsikring.
Budgivning
Forbrukerinformasjon om budgivning er vedlagt denne salgsoppgaven og er også på vår hjemmeside Krogsveen.no. Alle bud og budforhøyelser må inngis skriftlig. I tillegg må legitimasjon være fremlagt sammen med signatur fra budgiver.
Vi oppfordrer til å gi bud elektronisk via GI BUD-knappen på eiendommens hjemmeside på Krogsveen.no. Da vil samtlige vilkår bli oppfylt.
Eventuelle forhøyelser eller endringer av budet kan bekreftes pr SMS eller på e-post. Vi oppfordrer alltid til å kontakte megler pr. telefon i tillegg da forsinkelser i SMS og e-post kan forekomme.
For at budene skal kunne bli behandlet og videreformidlet skriftlig til alle involverte parter, må alle bud ha en tilstrekkelig lang akseptfrist, jf. eiendomsmeglingsforskriften § 6-3.
Selger må også skriftlig akseptere budet før aksept kan formidles til budgiver. Akseptfrist bør derfor være på minimum 30 minutter, og budforhøyelser må derfor skje i god tid før fristens utløp.
Bud i forbrukerforhold kan uansett ikke settes med kortere frist enn kl. 12.00 første virkedag etter siste annonserte visning. I tillegg kan ikke budet ha forbehold om at det skal holdes hemmelig ovenfor øvrige interessenter. Megler har iht lov om eiendomsmegling ikke anledning til å videreformidle disse budene, og de vil dermed heller ikke bli journalført.
Etter at eiendommen er solgt vil kjøper og selger få tilsendt budjournal. Øvrige budgivere kan få utlevert kopi av budjournalen i anonymisert form.
Hvitvaskingsreglene
I henhold til lov om hvitvasking og terrorfinansiering har megler plikt til å gjennomføre kontrolltiltak overfor kunder, herunder fullmektiger. Dette innebærer bl.a. å bekrefte kunders og reelle rettighetshaveres identitet på bakgrunn av fremvist gyldig legitimasjon eller på annen godkjent måte, samt å innhente opplysninger om kundeforholdets formål og tilsiktede art.
Dersom slike kundetiltak ikke kan gjennomføres, kan megler ikke etablere kundeforholdet eller utføre transaksjonen.
Hvis kjøper ikke bidrar til gjennomføring av kundekontrollen og dette fører til at transaksjonen blir forsinket eller ikke kan gjennomføres, vil dette ansees som mislighold av avtalen og gi selger rettigheter etter avhendingslova kapittel 5. I tilfeller der selger ikke bidrar til gjennomføring av løpende kundekontroll underveis i oppdraget, er det selger som misligholder sine forpliktelser etter avtalen og gi kjøper rettigheter etter avhendingslovens kapittel 4. Partene er selv ansvarlige for eventuelle kostnader og ansvar dette kan medføre. Eiendomsmegleren eller eiendomsmeglingsforetaket kan ikke holdes ansvarlig for de konsekvenser dette vil kunne få for partene eller andre som har interesser i eiendomshandelen.
Kjøper oppfordres til å innbetale kjøpesummen som ikke kommer fra låneinstitusjon i én samlet innbetaling fra egen konto i norsk bank. Megler har plikt til å melde fra til Økokrim om eiendomshandler som fremstår som mistenkelige. Melding sendes Økokrim uten at partene varsles.
Personopplysningsloven
I henhold til personopplysningsloven gjør vi oppmerksom på at interessenter kan bli registrert for videre oppfølging.
Lovanvendelse
Generelle bestemmelser
Salgsoppgaven er basert på de opplysningene selger har gitt til megler, den bygningssakyndiges tilstandsrapport, samt opplysninger innhentet fra kommunen, Kartverket og andre tilgjengelige kilder. Det er viktig at kjøper setter seg grundig inn i alle salgsdokumentene, herunder salgsoppgave, tilstandsrapport og selgers egenerklæring. Kjøper anses kjent med forhold som er tydelig beskrevet i salgsdokumentene, og slike forhold kan ikke påberopes som mangler. Dette gjelder uavhengig av om kjøper har lest dokumentene. Alle interessenter oppfordres til å undersøke eiendommen nøye, gjerne sammen med fagkyndig før bud inngis. Kjøper som velger å kjøpe usett kan ikke gjøre gjeldende som mangel noe han burde blitt kjent med ved undersøkelsen.
Dersom det er behov for avklaringer, anbefaler vi at interessenter rådfører seg med eiendomsmegler eller egne rådgivere før det legges inn bud.
En bolig som har blitt brukt i en viss tid, har vanligvis blitt utsatt for slitasje og skader kan ha oppstått. Slik bruksslitasje må kjøper regne med, og det kan avdekkes enkelte forhold etter overtakelse som nødvendiggjør utbedringer. Normal slitasje og skader som nødvendiggjør utbedring, er innenfor hva kjøper må forvente og vil ikke utgjøre en mangel.
Kjøper og selgers rettigheter og plikter reguleres av avtalen mellom partene, samt informasjonen som har vært tilgjengelig for kjøperen i forbindelse med handelen. Avtalen utfylles av avhendingsloven, og det gjelder ulike avtalevilkår avhengig av om kjøper er forbrukerkjøper eller ikke. Dette er nærmere beskrevet nedenfor.
På grunn av ulike avtalevilkår kan selger vurdere bud fra en som ikke er forbruker, ulikt fra en forbrukers bud. Dersom kjøper ikke er forbruker, er selger sitt mulige mangelsansvar begrenset fordi eiendommen selges "som den er". Selger kan ikke ta «som den er»- forbehold overfor en forbrukerkjøper. Selv et lavere bud fra en som ikke er forbruker kan foretrekkes fordi begrensningen i mulig mangelsansvar kan ha egenverdi for selger. Selger står fritt til å forkaste eller akseptere ethvert bud, og er for eksempel ikke forpliktet til å akseptere høyeste bud.
Budgiver skal i budskjema avgi egenerklæring om budgiver er forbruker eller næringsdrivende/ person som hovedsakelig handler som ledd i næringsvirksomhet. Budgivere får informasjon dersom andre bud er inngitt av en som ikke er forbruker.
Forbrukerkjøp - definisjon
Med forbrukerkjøp menes kjøp av eiendom når kjøperen er en fysisk person som ikke hovedsakelig handler som ledd i næringsvirksomhet.
Forbruker – avtalevilkår
Eiendommen har en mangel dersom den ikke er i samsvar med kravene som følger av avtalen, eller det foreligger brudd på bestemmelsene i avhendingsloven §§ 3-2 til 3-8. Hvis eiendommen ikke er i samsvar med det kjøperen må kunne forvente ut ifra alder, type og synlig tilstand, kan det være grunnlag for mangelskrav. Det samme gjelder hvis det er holdt tilbake eller gitt uriktige opplysninger om eiendommen. Dette gjelder likevel bare dersom man kan gå ut ifra at det virket inn på avtalen at opplysningen ikke ble gitt eller at mangelskravet ikke blir rettet i tide på en tydelig måte.
Boligen kan ha en mangel etter avhendingsloven § 3-3 andre ledd, dersom det er avvik mellom opplyst og faktisk innvendig areal, forutsatt at avviket er på 2% eller mer og minimum 1 kvm.
Ved beregning av et eventuelt prisavslag eller erstatning må kjøper selv dekke tap/kostnader opptil et beløp på kr 10 000 (egenandel).
Ikke-forbruker (næringsdrivende) – definisjon
Hvis kjøper er en juridisk person, eller en fysisk person som hovedsakelig handler som ledd i næringsvirksomhet, vil kjøpet ikke anses som et forbrukerkjøp.
Ikke-forbruker – avtalevilkår
Eiendommen har en mangel dersom den ikke er i samsvar med kravene som følger av avtalen.
Eiendommen selges «som den er», og selgers ansvar utover det konkret avtalte er da begrenset etter avhendingsloven § 3-9, første ledd andre setning.
Avhendingsloven § 3-3 andre ledd fravikes, og hvorvidt boligens arealsvikt utgjør en mangel vurderes etter avhendingsloven § 3-8.
Informasjon om kjøpers undersøkelsesplikt, herunder oppfordringen om å undersøke eiendommen nøye, gjelder også for kjøpere som ikke anses som forbrukere.
Det forutsettes at hjemmel overføres til kjøper. Hvis kjøper ikke ønsker hjemmelsoverføring av eiendommen, må det tas forbehold om dette i budet.
Meglers vederlag
Meglers vederlag betales av selger og er avtalt til:
Vederlag: 35.000 av salgssummen inkl. eventuell fellesgjeld.
Tilrettelegging fra kr 17.000,-
Oppgjør: kr 7.500,-
Markedspakke: kr 27.200,-
Oppslag eiendomsregister: kr 2.900,-
Megler har i tillegg krav på dekning av utlegg.
Opplysninger om oppdraget
Oppdragsnummer 63-0131/24
Eiendomsmegler Krogsveen AS, avd. Jessheim
Skovly Promenade 10, 2066, JESSHEIM
950 007 613
Oppdragets KR-kode KR63.24131
Dato
Sist oppdatert: 18. januar 2026 kl. 20:55
Dokumenter
Dokumenter
PDF – 939 KB
PDF – 745 KB
PDF – 312 KB
PDF – 29 KB
PDF – 127 KB
PDF – 392 KB
Område
Legg til steder som er viktige for deg
Visning
For å delta på visning, ber vi om at du melder deg på. Da sikrer vi at du får nødvendig informasjon og at det er satt av tilstrekkelig med tid. Kontakt megler dersom annet tidspunkt ønskes. Husk å lese salgsoppgaven før visningen, så du stiller forberedt.
Ønsker du kun å bli holdt orientert, kan du fra eiendommens hjemmeside få varsel om solgtpris, eller kontakte megler.
Lurer du på noe?
Unngå doble boligrenter
Vi tilbyr gunstig forsikring.
Vurderer du utleie?
Få et tilbud fra Utleie KrogsveenHva koster lånet?
Sjekk estimert lånekostnadVil du varsles om lignende boliger?
Ved å lagre ditt boligsøk hos oss får du beskjed når vi har en bolig som ligner denne, før den legges ut på markedet!

