Rolf Presthus vei 49
5 350 000 kr
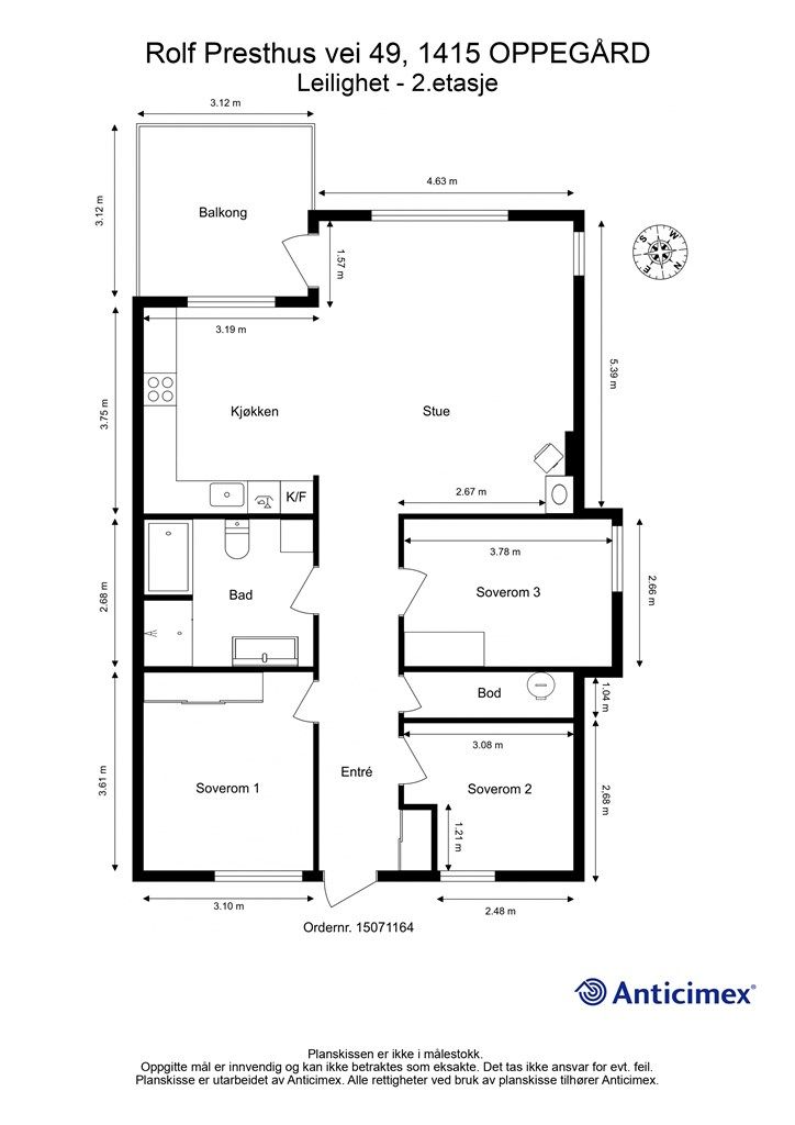
105 m²
3 soverom
Solgt

Presenteres av
Christel Yvonne BekkelundØVRESKOGEN
Lys og gjennomgående 4-roms endeleilighet med solrik balkong - garasje + p-plass - nær marka og tog
Prisantydning
5 350 000 krOmkostninger
144 790 krTotalpris
5 494 790 kr
Pris
Bruksareal
125 m²BRA-I (internt bruksareal)
105 m²BRA-E (eksternt bruksareal)
20 m²TBA (terrasse-balkongareal)
10 m²
Areal
Etasje
2Byggeår
2008Soverom
3 soveromBad
1 badType
EierleilighetEierform
EierseksjonFellesutgifter
3 300 krEnergimerke
Rød C
Nøkkelinfo
Unngå doble boligrenter
Vi tilbyr gunstig forsikring.
Vurderer du utleie?
Få et tilbud fra Utleie KrogsveenHva koster lånet?
Sjekk estimert lånekostnadBeskrivelse
Kort om eiendommen
Drømmer du om innflyttingsklart hjem med lys og luftig planløsning, 3 soverom, ekstra god lagringsplass, sydvest-vendt balkong, garasje og p-plass, må du ikke gå glipp av denne!
Flott gjennomgående 4-roms ende-toppleilighet med god intern beliggenhet, gode solforhold og fint utsyn. Effektiv og romslig planløsning med åpen stue- og kjøkkenløsning, 3 gode soverom, stort bad, entré og overbygget balkong.
Ekstra god lagring med skyvedørs-garderober, innvendig bod, 15 kvm loft og utvendig sportsbod.
Gangavstand til tog, buss, butikk, golfbane, barnehager, lekeplass og idrettsanlegg.
Kun 25 minutter fra Oslo
Område
Legg til steder som er viktige for deg
På flyttefot? Tenk kjøp og salg samtidig.
Få din egen rådgiver gjennom hele kjøps- og salgsprosessen. Det starter med en verdivurdering.
Unngå doble boligrenter
Vi tilbyr gunstig forsikring.
Vurderer du utleie?
Få et tilbud fra Utleie KrogsveenHva koster lånet?
Sjekk estimert lånekostnadVil du varsles om lignende boliger?
Ved å lagre ditt boligsøk hos oss får du beskjed når vi har en bolig som ligner denne, før den legges ut på markedet!
På flyttefot? Slik gjør vi det enklere for deg
Skreddersydd flyttepakke
Vi fikser håndverkere, vask, pakking, lagring og transport, og legger ut for utgiftene underveis.
Hjelp med både kjøp og salg
Hos oss har du din egen rådgiver gjennom hele kjøps- og salgsprosessen.
Hjelp til finansiering
Vårt samarbeid med BN Bank sikrer deg rask og løsningsorientert hjelp, til konkurransedyktige betingelser.

