Gjerpenlia 5
6 500 000 kr
136 m²
4 soverom
Komplett salgsoppgave

Gjerpenkollen
Velholdt & moderne enebolig. Stille & rolige omgivelser. Uteplasser & hage. 2 bad. Dobbelgarasje fra 2021 m/el-billader.
Prisantydning
6 500 000 krOmkostninger
183 490 krTotalpris
6 683 490 kr
Pris
Bruksareal
183 m²BRA-I (internt bruksareal)
136 m²BRA-E (eksternt bruksareal)
47 m²TBA (terrasse-balkongareal)
91 m²
Areal
Etasje
2Byggeår
2018Soverom
4 soveromBad
2 badTomteareal
610 m² (eiet)Type
Enebolig - FrittliggendeEierform
EietFasiliteter
Garasje/P-plass og Balkong/TerrasseÅrlig velavgift
3 600 krEnergimerke
Oransje B
Nøkkelinfo
Unngå doble boligrenter
Vi tilbyr gunstig forsikring.
Vurderer du utleie?
Få et tilbud fra Utleie KrogsveenHva koster lånet?
Sjekk estimert lånekostnadBeskrivelse
Kort om eiendommen
Innhold og byggemåte
Innhold og byggemåte
Eiendommen
Gjerpenlia 5, 3035 DRAMMEN
Kommunenummer 3301, gårdsnummer 29, bruksnummer 749, ideell andel 1/1
Innhold
BRA (totalt bruksareal): 183 kvm.
BRA-i (internt bruksareal)
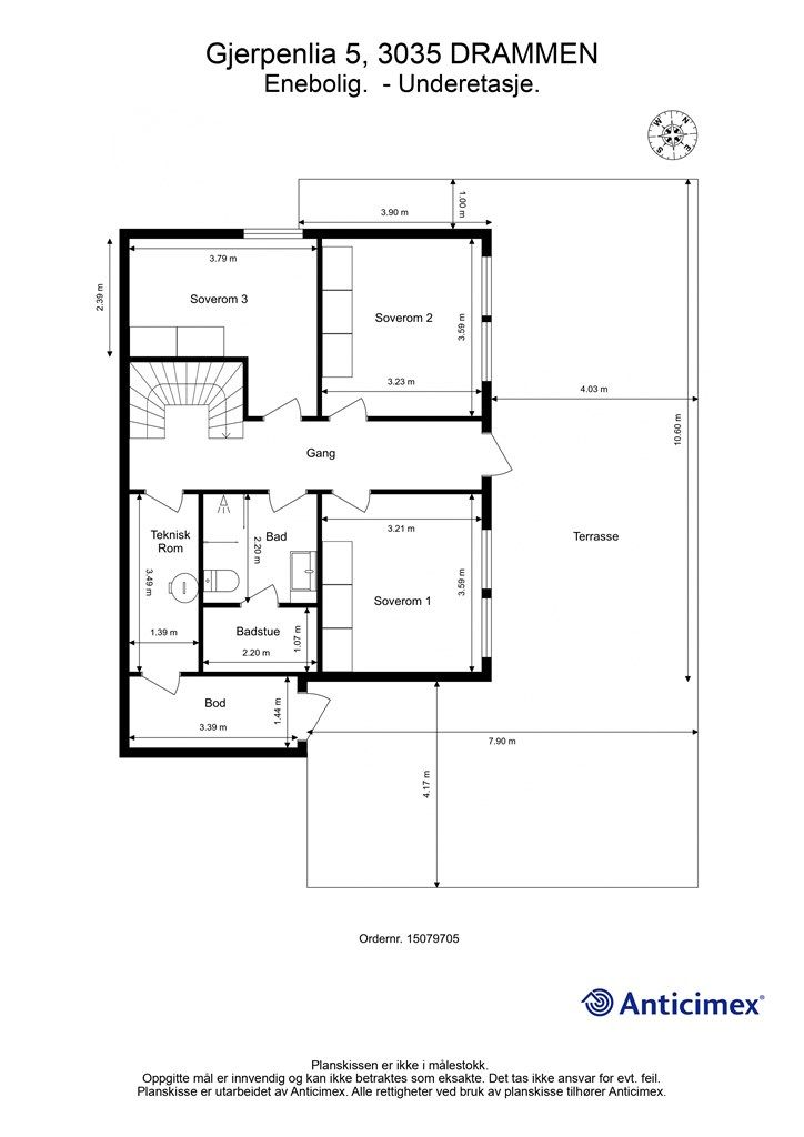
Underetasje:
70 kvm: Gang, bad, badstue, 3 soverom, teknisk rom og bod.
1. etasje:
66 kvm: Stue, kjøkken, bad, vaskerom, soverom og entré.
BRA-e (eksternt bruksareal)
Garasje - 1. etasje:
47 kvm: Dobbelgarasje.
TBA (terrasse- og balkongareal)
Underetasje:
79 kvm: Terrasse.
1. etasje:
12 kvm: Balkong og veranda.
De oppgitte arealer er hentet fra rapport med befaringsdato 04.03.2026 utført av Jon Simonsen. Arealene er beregnet og rom er definert etter dagens faktiske bruk, uavhengig av hva som er godkjent av bygningsmyndighetene.
Byggemåte
Selger har fått utarbeidet en tilstandsrapport for eiendommen, dvs. en teknisk gjennomgang av boligen hvor eventuelle avvik, risiko for kjøper og prisoverslag for hva som bør gjøres av oppgradering, er skissert. Se særskilt TGIU (tilstandsgrad ikke undersøkt), samt TG2 og TG3 som viser hva som er avvik fra boligens normale slitasje, alder og type, eller som bør/må utbedres. Rapporten og selgers egenerklæring er en del av salgsoppgaven og må leses nøye før bud inngis. Kjøper overtar ansvaret for de opplysninger som fremkommer av salgsdokumentasjonen, og kan ikke gjøre gjeldende som mangel noe som burde vært kjent eller som ikke kan anses å ha betydning for avtalen.
Bygningen er iht. tilstandsrapport, en bolig oppført i trekonstruksjon. Grunnmur av betongkonstruksjon. Yttervegger av trekonstruksjoner. Utvendige fasader er kledd med stående trekledning. Etasjeskillere av trekonstruksjoner. Saltak i trekonstruksjoner. Yttertak er belagt med takstein. Balkong/terrassedører med karm/ramme av tre og tre-lags glass med påstemplet produksjonsår 2017. Ytterdør i underetasje med karm/ramme av tre med tolags glass med påstemplet produksjonsår 2017. Ytterdør i 1. etasje med karm/ramme av tre og glassfelt i to-lags glass fra byggeår. Vinduer med karmer/ramme av tre med tre-lags glass med påstemplet produksjonsår 2017. Les forøvrig mer om byggemåte og den tekniske tilstanden i rapporten.
Garasjen er iht. tilstandsrapport, en bygning i trekonstruksjoner. Støpt gulv mot grunn og ringmur i betongblokker. Fasaden er kledd med stående trekledning. Saltak i trekonstruksjoner (besiktiget fra bakkenivå). Yttertak er utvendig tekket med takstein. Undertak med sutaksplater. Konstruksjonen er uisolert. Leddport i metallkonstruksjon med elektrisk portåpner. Sidedører i tett trekonstruksjon.
I rapporten fremkommer det som takstmannen mener kjøper må være særskilt oppmerksom på, dette gjelder blant annet (se utfyllende tekst i rapporten):
Følgende kontrollpunkter/forhold har blitt tildelt TG3:
Det er ingen punkter som har blitt tildelt TG3.
Følgende kontrollpunkter/forhold har blitt tildelt TG2:
- Bad (underetasje) og VVS-teknisk rom (underetasje): Det kan ikke verifiseres at tettesjikt har nødvendig oppkant ved dørterskel.
- Bad (1. etasje): Det kan ikke verifiseres at tettesjikt har nødvendig oppkant ved dørterskel. I tillegg har silikonfuge under terskel stedvis tegn til svakheter.
- Kjøkken (1. etasje) og andre rom (1. etasje): Det er registrert knirk i deler av gulvet.
- Tekniske anlegg: Innvendig stakeluke er ikke påvist, og det er derfor ukjent om dette er etablert.
- Spesialrom (badstue): Rommets vegger er en lukket konstruksjon. Slike konstruksjoner betraktes erfaringsmessig som fuktrisikokonstruksjoner.
- Innvendige trapper: Det er registrert stedvis knirk i trappen.
- Yttertak: Det er valgt å vurdere yttertaket med en samlet helhetsvurdering. Følgende hovedmomenter er lagt til grunn for vurderingen: Snøfangerutstyr er ikke etablert, noe som strider imot gjeldende krav for bygningsdelen. Taket er ikke fysisk inspisert grunnet is og snø (sikkerhetsmessige forhold) på befaringstidspunktet.
- Balkonger (1. etasje): Kontraksjonen er lukket og det er ikke kjent hvordan denne er oppbygget.
- Drenering: Vann fra yttertaket er ikke ledet vekk fra bygningen/grunnmuren i tilstrekkelig grad.
- Andre byggverk (dobbelgarasje): Det er ikke montert musesperre bak kledningen.
Følgende kontrollpunkter/forhold har blitt tildelt TGIU (tilstandsgrad ikke undersøkt):
- Vaskerom (1. etasje): På grunn av innredning på tilstøtende rom til våtsone er det ikke praktisk mulig å gjennomføre hulltaking og fuktmåling i et område som regelmessig utsettes for bruksvann, og som vurderes å være det området hvor skader erfaringsmessig forekommer. Det ble utført et overflatesøk med fuktindikator på utvalgte steder, uten funn som indikerer fuktskader, også i områdene hvor hulltaking ville vært mulig. Alle disse forholdene utgjør grunnlaget for vurderingen om at hulltaking var unødvendig, og undersøkelse av lukkede konstruksjoner er derfor ikke utført.
- Loft (uinnredet/kaldtloft): Det er valgt å vurdere boligens uinnredede loft (og tilhørende bygningsdeler) med en samlet helhetsvurdering. Følgende hovedmomenter er lagt til grunn for vurderingen: Loftet er ikke tilgjengelig for inspeksjon på grunn av at lukeåpning er tettet med isolasjon og dampsperre.
- Spesialrom (badstue): Badstuovn er ikke undersøkt av undertegnede da dette krever egen spisskompetanse.
- Yttervegger inkl. fasader: Det har ikke vært mulig å kontrollere om alle deler av ytterkledningen er sikret mot inntrekk av gnagere.
- Balkonger (1. etasje): Verandaen er vurdert å utgjøre tettesjikt mot underliggende areal (bod). Vanntett er skjult og av den grunn ikke tilgjengelig for inspeksjon.
- Terrasse/platting (underetasje): Det er valgt å vurdere terrassen (og tilhørende bygningsdeler) med en samlet helhetsvurdering. Følgende hovedmomenter er lagt til grunn for vurderingen: Terrassen er på befarongstidspunktet i all hovedsak snødekket, og av den grunn ikke tilgjengelig for en fullverdig inspeksjon.
- Drenering: Terrengfallet kan ikke undersøkes på tilstrekkelig måte, grunnet snøforhold.
- Andre byggverk (dobbelgarasje): Taket er ikke fysisk inspisert grunnet is og snø (sikkerhetsmessige forhold).
Det anbefales ytterligere undersøkelser av disse punktene.
Se vedlagt tilstandsrapport for supplerende informasjon vedrørende boligens tilstand.
Tilstandsrapporten og selgers egenerklæring er vedlagt salgsoppgaven. Interessenter må sette seg inn i dokumentene før bud inngis.
Standard
Løsøre og tilbehør
Integrerte hvitevarer på kjøkkenet medfølger i handelen, dette gjelder oppvaskmaskin, platetopp, kaffemaskin, stekeovn samt kjøle- og fryseskap.
Videre vises det til liste fra Norges Eiendomsmeglerforbund angående løsøre og tilbehør. Produkter og installasjoner som medfølger overdras uten noen form for garantier, utover eventuell gjenværende leverandørgaranti.
Følgende løsøre kan inkluderes, men pristillegg må i så tilfelle forhandles: Robotklipper, Stor fryser i teknisk rom, vaskemaskin, tredemølle, treningsstativ inkl. vekter og treningsgulv i garasje, hagemøbler,
auto-vanningssystem for hekk/hage/planter, veggopphengt tv (LG Oled 4K).
Oppvarming
Balansert ventilasjonsanlegg med varmegjenvinning. Peisovn i stue. Termostatstyrte varmekabler i gulv på begge bad, vaskerom, entré og alle rom i underetasjen (unntatt badstue, teknisk rom og bod). Varmefolie i alle andre rom i 1. etasje.
Det har blitt foretatt en kontroll av pipe og ildsted i 2023, utført av Drammensregionens brannvesen IKS og alt er funnet i orden.
Dersom det ikke er vegg- eller fastmonterte varmekilder i rom ved visning, følger dette heller ikke med.
Ferdigattest/brukstillatelse
Det foreligger ferdigattest på eiendommen datert 01.02.2023, som omfatter oppføring av enebolig. I tillegg er det tilhørende godkjente tegninger datert fra 2017 og 2021.
Kommunen har innvilget dispensasjon fra byggegrense mot vest for oppføring av garasje i en avstand på 1,2 m fra eiendomsgrense mot Gjerpenlia 7 datert 18.02.2021. Det anføres i tillatelsen at garasjen i seg selv er unntatt søknadsplikt. Det er ikke stilt betingelser/krav om ferdigattest ved ferdigstillelse av tiltaket. Tiltaket er ferdigstilt per dags dato. Det er usikkert om det er sendt inn melding til kommunen om utført tiltak, kjøper overtar ansvaret for innsending av melding.
Kjøper overtar eiendommen slik den framstår på visning.
Tinglyste heftelser og rettigheter
Eiendommen overdras fri for pengeheftelser.
Eiendommen har andel i et realsameie
Dagboknummer: 791259
Andel i: Gnr. 29 og bnr. 21
Ideell andel: 1/8
Tomten til realsameiet består av adkomstvei.
Andelen vil følge eiendommen.
Eiendommen har andel i et realsameie
Dagboknummer: 791259
Andel i: Gnr. 29 og bnr. 752
Ideell andel: 1/8
Tomten til realsameiet består av adkomstvei.
Andelen vil følge eiendommen.
Eiendommen har andel i et realsameie
Dagboknummer: 791259
Andel i: Gnr. 29 og bnr. 754
Ideell andel: 1/8
Tomten til realsameiet består av adkomstvei til lekeplass.
Andelen vil følge eiendommen.
Eiendommen har andel i et realsameie
Dagboknummer: 791259
Andel i: Gnr. 29 og bnr. 755
Ideell andel: 1/8
Tomten til realsameiet består av fellesareal med lekeplass.
Andelen vil følge eiendommen.
Eiendommen har andel i et realsameie
Dagboknummer: 791259
Andel i: Gnr. 29 og bnr. 753
Ideell andel: 1/6
Tomten til realsameiet består av adkomstvei.
Andelen vil følge eiendommen.
Dagboknummer: 791259
Tinglysningsdato: 18.09.2014
Servitutten/rettigheten omhandler: Flere eiendommer som eies i fellesskap. Veirett over felleseiendom. Fordeling av kostnader til vedlikehold mv. av felles vei og øvrige arealer. Rett til anleggelse av diverse ledninger til egen eiendom samt vedlikeholdsrett av disse. Plikt til plassering av avfallsdunker på egen eiendom. Rettigheten hefter i gnr. 29/bnr. 21, 752, 753, 754 og 755.
Dagboknummer: 973230
Tinglysningsdato: 07.09.2017
Rettigheten omhandler: Rett til å ha liggende vann- og avløpsledninger på eiendommen gnr. 29/bnr. 88 samt vedlikeholdsrett på disse. Rettigheten hefter i gnr. 29/bnr. 88.
Servituttene/rettighetene vil følge eiendommen. Kjøpers bank vil få pant etter ovennevnte heftelser og servitutter som ikke skal slettes ved overdragelse.
Eventuell adgang til utleie
Eiendommen har ikke separat utleieenhet. Det vil normalt være anledning til utleie av hele eiendommen eller enkeltrom, såfremt utleiearealet er bygningsmessig godkjent for varig opphold og har forsvarlige radonnivåer.
Energimerking
Komplett energiattest inkludert oppvarmingskarakter fås ved henvendelse til megler eller lastes ned fra www.krogsveen.no.
Beliggenhet og tomteforhold
Beliggenhet og tomteforhold
Beliggenhet
Eiendommen har en god beliggenhet som grenser til ubebygget grøntareal, og er beliggende i et boligområde med nyere boligbebyggelse. Boligen har en god plassering i enden av en blindvei, som medfører ingen gjennomgangstrafikk samt stille og rolige omgivelser. Eiendommen ligger rett ved Gjerpenkollen med marka som nærmeste nabo og med umiddelbar nærhet til turterreng. Flotte turveier, stier og lysløyper innover på Strømsåsen mot Konnerud, Haukås og Skoger.
De fleste fritidstilbud i Drammen. Eget næridrettsanlegg med bla. kunstgressfotballbane på Fjell, utover dette er nærmeste idrettslag Drafn ski- og ballklubb. Treningsanlegg med kunstgressbane på Marienlyst med bla. kunstisbane på vinterstid. Drammenshallen ligger også på Marienlyst med tilbud om blant annet håndball og friidrett. Fritidsklubb på Fjell Ungdomscafe og Fjell Juniorklubb. Fjell skolekorps. Kort vei til Drammen golfbane i Skoger.
Gode bussforbindelser med flere avganger til andre deler av byen, kort gangavstand til bussholdeplass langs Fjellsveien, se www.brakar.no for rutetider. Gode togforbindelser mot Kongsberg, Oslo og Tønsberg fra Drammen togstasjon på Strømsø, tidsmessig tar det ca. 30 minutter til Oslo, se www.vy.no for avganger. Flytoget bruker ca. 60 minutter fra togstasjonen i Drammen til Gardermoen flyplass, se www.flytoget.no for mer informasjon. Det gjøres oppmerksom på at regjeringen har vedtatt en nedleggelse av Flytoget fra og med 2028, hvor Vy vil overta trafikken på strekningene. Ifbm. dette vil Drammen bli et startpunkt for et timinutterssystem til både Oslo og Gardermoen (min. åtte avganger i timen).
Adkomst
Det vil bli skiltet med Krogsveen visningsskilt ved fellesvisninger. Se kart i nettannonse eller Google Maps for nærmere veibeskrivelse. Velkommen til visning!
Barnehager, skoler og fritid
Godt sammensatt tilbud av private og offentlige barnehager.
Barnehager: Fjell barnehage (1,4 km), Senterbarnehagen FUS (1,5 km), Fjellhagen barnehage (1,6 km).
Skoler: Skoger barneskole (4,6 km) og Galterud ungdomsskole (1,6 km). Opplyste skolekretser gjelder for denne eiendommen, vedlagt Nabolagsprofil har ikke opplyst om korrekt skolekrets.
Drammen kommune har tre private barne- og ungdomsskoler, Drammen Realfagsskole Heltberg, Norlights Montessoriskole Drammen og Rosendal skole (Mjøndalen).
Det ligger flere videregående skoler i Drammen og Lier, samt Universitetet i Sørøst-Norge som har campus på Papirbredden i Drammen, for mer informasjon se www.usn.no.
Dersom skole- og barnehagetilbud er av betydning for kjøpet, ber vi om at det rettes en særskilt henvendelse til kommunen for oppdatert informasjon.
Beskrivelse av tomt
Eiertomt på 609,7 kvm. Delvis skrånende tomt som er opparbeidet med gressplen, hekk (felles med Gjerpenlia 3) og diverse beplantninger. Gruset gårdsplass.
Tidligere eier har opplyst om at det er ca. 2 kvm av naboeiendommen som brukes av denne eiendommen, dette er på toppen av svingen ved innkjørselen. På samme måte går grensen noe innover eiendommen i midten med Gjerpenlia 3, hvor det er felles tujahekk.
Tidligere eier har opplyst om en tidligere tvist ifbm. nabogrense med Gjerpenlia 7, saken er løst i favør til denne eiendommen. Fyllingsfot fra naboeiendommen er liggende langs og noe over tomtegrensen.
Det er fellesarealer som består av adkomstveier og felles lekeplass. Nåværende eier har eierskap i fellesarealene som driftes av Gjerpenlia velforening, ideell andel av eiendommene vil bli overført til ny eier.
Parkering
Parkering i frittstående dobbelgarasje fra 2021 på ca. 47 kvm med innlagt strøm og belysning. Montert Easee lader for el-bil i garasjen. Tidligere eier har opplyst om en sprekk i overflater på garasjegulvet, en overflatesprekk påvirker ikke funksjonalitet eller bruk iht. firma som bygde garasjen.
Forøvrig er det parkering på egen gruset gårdsplass.
Tidligere eier har opplyst om at innkjørselen er støttet med trevirke.
Vei, vann og avløp
Eiendommen har adkomst via privat vei med felles vedlikeholdsansvar.
Eiendommen er tilknyttet kommunalt ledningsnett via private stikkledninger. Eier er selv ansvarlig for private stikkledninger til boligen.
Regulerings-og arealplaner
Eiendommen er regulert til frittliggende småhusbebyggelse, i henhold til reguleringsplan for Fjellsveien 40 - 29/21 vedtatt 30.08.2005. Videre er eiendommen avsatt til boligbebyggelse ved kommuneplanens arealdel for Drammen kommune 2025-2037 datert 18.06.2025. Utsnitt av planer med tilhørende bestemmelser kan fås ved henvendelse til megler.
I henhold til kommuneplanen er deler av eiendommen innenfor et område med ras- og skredfare (278,57 kvm - deler av boligen og hageområde) samt flomfare (15,65 kvm - i ytterkant av tomten mot sør). Dette kan legge begrensninger for evt. utbygging, påbygg/tilbygg og andre terrenginngrep som på et generelt grunnlag er tillatt ifølge kommuneplanen. Konferer med megler dersom dette er aktuelt.
Det foreligger en igangsatt planlegging av ny kommuneplan for Drammen kommune 2027-2039, se kommunens hjemmeside for mer info.
Økonomi
Økonomi
Kommunale utgifter
Kommunale avgifter (vann og avløp): kr 18.419,- pr. år (3 terminer), fakturert på eiendommen i 2025. Avgiftene vil variere etter forbruket i boligen.
Renovasjonskostnader: kr 5.201,- pr. år (2 terminer). Type renovasjonsordning: Standard, 2026.
Det opplyses om at Drammen kommune har varslet om en vesentlig fremtidig økning av kommunale avgifter.
I tillegg påløper det en kostnad på kr 608,- pr. år for boliger med minst ett aktivt røykrør (kostnad pr. 2026). Det påløper også kostnader for feiing av ildsted, kontroll av fyringsanlegg m.m. Frekvens på feiing samt tilsyn er avhengig av behov og vurderes av feieren.
Det må påregnes kostnader til strøm og nettleie, dette vil variere avhengig av strøm-/nettselskap. Nåværende eier har et strømforbruk på ca. 19.689 kWh pr. år.
For denne boligen er det inngått avtale om Norgespris i stedet for strømstøtte, avtalen på kr 50 øre inkl. mva følger eiendommen og har en bindingstid frem til 31.12.2026. Nettleie, avgifter og påslag fra kraftleverandøren kommer i tillegg. Les mer om Norgespris her: https://www.regjeringen.no/no/aktuelt/legg-fram-lov-om-norgespris-pa-straum-og-fjernvarme/id3102642/
Boligen har en årlig forsikringspremie via JBF på kr 10.000,- pr. år.
Boligen er tilknyttet Viken Fiber Altibox som leverandør av internett og har kostet ca. kr 1.119,- pr. mnd avhengig av hastighet på nettet.
Det må påregnes kostnader til innboforsikring.
Ovenstående er basert på nåværende eier/husstands senere års forbruk/utgifter. Dette vil variere avhengig av antall beboere, ønsket innetemperatur, egne fordelsavtaler, kanalvalg, hastighet på bredbånd m.m.
Formuesverdi
Formuesverdi for 2024 var kr 1 547 315,- ifølge Skatteetaten. Beløpet forutsetter at eier bor fast i boligen (primærbolig).
Ved eventuell øvrig bruk av eiendommen (f.eks. fritidsbolig, pendlerbolig, utleieobjekt) var formuesverdien for 2024 kr 6 189 258,-.
Fra 2026 har Stortinget vedtatt en oppdatert modell for beregning av formuesverdi for primærbolig, så avvik kan forekomme.
For mer informasjon se skatteetaten.no.
Omkostninger
6 500 000,00 Prisantydning
Omkostninger
162 500,00 Dokumentavgift til staten (2,5% av kjøpesum)
19 900,00 Gjensidige Boligkjøperpakke (valgfri)
545,00 Tinglysing panterettsdokument
545,00 Tinglysing skjøte
--------------------------------------------------------
183 490,00 Omkostninger totalt
--------------------------------------------------------
6 683 490,00 Totalpris inkl. omkostninger
--------------------------------------------------------
Totalpris inkl. omkostninger forutsetter kjøp til prisantydning.
Det tas forbehold om endringer i avgifter og gebyrer.
Tilbud om lånefinansiering
Megler formidler gjerne kontakt med rådgiver hos vår samarbeidspartner BN Bank. De har konkurransedyktige betingelser samt rask og løsningsorientert behandling av din lånesøknad. Krogsveen mottar et honorar dersom lån opprettes.
Betalingsbetingelser
Kjøpesum inkludert omkostninger, samt pantedokument tilknyttet eventuelt lån, skal være disponibelt hos megler 2 virkedager før overtagelsen.
Annen viktig informasjon
Annen viktig informasjon
Eier
Henrik Klasson og Marie Klasson
Konsesjon
Realsameiets eiendommer er ubebygd tomter. For at eiendommene skal kunne overskjøtes, må kjøper signere på egenerklæring om konsesjonsfrihet.
Erklæringen må godkjennes av kommunen før eiendommene kan overskjøtes til kjøper.
Overtakelse
Etter nærmere avtale.
Velforening
Boligen er tilknyttet Gjerpenlia velforening (orgnr. 922769125).
Det betales kr 3.600 pr. år, dette er kostnader for snøbrøyting og strøing av felles veier.
Det må påregnes dugnader i tilknytning til velforeningen.
Boligselgerforsikring
Selger har i forbindelse med salget tegnet boligselgerforsikring levert av Gjensidige.
Boligselgerforsikringen dekker selgers ansvar etter avhendingsloven begrenset oppad til kr 14 millioner. Dersom kjøper oppdager forhold ved eiendommen som hen mener utgjør en mangel ved eiendommen, vil Gjensidige behandle reklamasjonen på vegne av selger. Forsikringsvilkår kan fås ved henvendelse til megler.
Vedlagt salgsoppgaven følger selgers egenerklæringsskjema og tilstandsrapport. Interessenter må sette seg inn i dokumentene før bud inngis.
Boligkjøperforsikring
Innen kontraktsmøtet må kjøper ta stilling til om det ønskes å bestille Boligkjøperpakken gjennom Gjensidige. I denne gunstige pakken er boligen ferdig forsikret og inkluderer rettshjelpsforsikring, også kalt Boligkjøperforsikring. Rettshjelpsforsikring gir trygghet og tilgang på profesjonell juridisk hjelp dersom det oppdages uventede feil eller mangler det første året etter overtagelse. Forsikringsselskapet behandler i så fall ethvert mangelskrav kjøper måtte ha overfor selger.
Boligkjøperpakken inkluderer bygningsforsikring for hus og hytte, innboforsikring, flytteforsikring og dobbel rentedekning - i situasjoner hvor kjøper ikke får solgt nåværende primærbolig.
Kjøper mottar ingen særskilt faktura for Boligkjøperpakken da kostnaden det første året legges til kjøpesummen for boligen. Det gjøres oppmerksom på Krogsveen mottar et honorar for denne formidlingen.
Produktark for Boligkjøperpakken ligger vedlagt i salgsoppgaven.
Dersom ikke boligkjøperpakke ønskes kan kun rettshjelpsforsikring, også kalt boligkjøperforsikring, tegnes særskilt via megler. Rettshjelpsforsikringen varer i 5 år fra overtagelse og leveres gjennom Gjensidige. Ta kontakt med megler for ytterligere informasjon.
Selskap og privatpersoner som driver med kjøp/salg/utvikling som ledd i egen næringsvirksomhet kan ikke tegne boligkjøperpakke eller rettshjelpsforsikring.
Budgivning
Forbrukerinformasjon om budgivning er vedlagt denne salgsoppgaven og er også på vår hjemmeside Krogsveen.no. Alle bud og budforhøyelser må inngis skriftlig. I tillegg må legitimasjon være fremlagt sammen med signatur fra budgiver.
Vi oppfordrer til å gi bud elektronisk via GI BUD-knappen på eiendommens hjemmeside på Krogsveen.no. Da vil samtlige vilkår bli oppfylt.
Eventuelle forhøyelser eller endringer av budet kan bekreftes pr SMS eller på e-post. Vi oppfordrer alltid til å kontakte megler pr. telefon i tillegg da forsinkelser i SMS og e-post kan forekomme.
For at budene skal kunne bli behandlet og videreformidlet skriftlig til alle involverte parter, må alle bud ha en tilstrekkelig lang akseptfrist, jf. eiendomsmeglingsforskriften § 6-3.
Selger må også skriftlig akseptere budet før aksept kan formidles til budgiver. Akseptfrist bør derfor være på minimum 30 minutter, og budforhøyelser må derfor skje i god tid før fristens utløp.
Bud i forbrukerforhold kan uansett ikke settes med kortere frist enn kl. 12.00 første virkedag etter siste annonserte visning. I tillegg kan ikke budet ha forbehold om at det skal holdes hemmelig ovenfor øvrige interessenter. Megler har iht lov om eiendomsmegling ikke anledning til å videreformidle disse budene, og de vil dermed heller ikke bli journalført.
Etter at eiendommen er solgt vil kjøper og selger få tilsendt budjournal. Øvrige budgivere kan få utlevert kopi av budjournalen i anonymisert form.
Hvitvaskingsreglene
I henhold til lov om hvitvasking og terrorfinansiering har megler plikt til å gjennomføre kontrolltiltak overfor kunder, herunder fullmektiger. Dette innebærer bl.a. å bekrefte kunders og reelle rettighetshaveres identitet på bakgrunn av fremvist gyldig legitimasjon eller på annen godkjent måte, samt å innhente opplysninger om kundeforholdets formål og tilsiktede art.
Dersom slike kundetiltak ikke kan gjennomføres, kan megler ikke etablere kundeforholdet eller utføre transaksjonen.
Hvis kjøper ikke bidrar til gjennomføring av kundekontrollen og dette fører til at transaksjonen blir forsinket eller ikke kan gjennomføres, vil dette ansees som mislighold av avtalen og gi selger rettigheter etter avhendingslova kapittel 5. I tilfeller der selger ikke bidrar til gjennomføring av løpende kundekontroll underveis i oppdraget, er det selger som misligholder sine forpliktelser etter avtalen og gi kjøper rettigheter etter avhendingslovens kapittel 4. Partene er selv ansvarlige for eventuelle kostnader og ansvar dette kan medføre. Eiendomsmegleren eller eiendomsmeglingsforetaket kan ikke holdes ansvarlig for de konsekvenser dette vil kunne få for partene eller andre som har interesser i eiendomshandelen.
Kjøper oppfordres til å innbetale kjøpesummen som ikke kommer fra låneinstitusjon i én samlet innbetaling fra egen konto i norsk bank. Megler har plikt til å melde fra til Økokrim om eiendomshandler som fremstår som mistenkelige. Melding sendes Økokrim uten at partene varsles.
Personopplysningsloven
I henhold til personopplysningsloven gjør vi oppmerksom på at interessenter kan bli registrert for videre oppfølging.
Lovanvendelse
Generelle bestemmelser
Salgsoppgaven er basert på de opplysningene selger har gitt til megler, den bygningssakyndiges tilstandsrapport, samt opplysninger innhentet fra kommunen, Kartverket og andre tilgjengelige kilder. Det er viktig at kjøper setter seg grundig inn i alle salgsdokumentene, herunder salgsoppgave, tilstandsrapport og selgers egenerklæring. Kjøper anses kjent med forhold som er tydelig beskrevet i salgsdokumentene, og slike forhold kan ikke påberopes som mangler. Dette gjelder uavhengig av om kjøper har lest dokumentene. Alle interessenter oppfordres til å undersøke eiendommen nøye, gjerne sammen med fagkyndig før bud inngis. Kjøper som velger å kjøpe usett kan ikke gjøre gjeldende som mangel noe han burde blitt kjent med ved undersøkelsen.
Dersom det er behov for avklaringer, anbefaler vi at interessenter rådfører seg med eiendomsmegler eller egne rådgivere før det legges inn bud.
En bolig som har blitt brukt i en viss tid, har vanligvis blitt utsatt for slitasje og skader kan ha oppstått. Slik bruksslitasje må kjøper regne med, og det kan avdekkes enkelte forhold etter overtakelse som nødvendiggjør utbedringer. Normal slitasje og skader som nødvendiggjør utbedring, er innenfor hva kjøper må forvente og vil ikke utgjøre en mangel.
Kjøper og selgers rettigheter og plikter reguleres av avtalen mellom partene, samt informasjonen som har vært tilgjengelig for kjøperen i forbindelse med handelen. Avtalen utfylles av avhendingsloven, og det gjelder ulike avtalevilkår avhengig av om kjøper er forbrukerkjøper eller ikke. Dette er nærmere beskrevet nedenfor.
På grunn av ulike avtalevilkår kan selger vurdere bud fra en som ikke er forbruker, ulikt fra en forbrukers bud. Dersom kjøper ikke er forbruker, er selger sitt mulige mangelsansvar begrenset fordi eiendommen selges "som den er". Selger kan ikke ta «som den er»- forbehold overfor en forbrukerkjøper. Selv et lavere bud fra en som ikke er forbruker kan foretrekkes fordi begrensningen i mulig mangelsansvar kan ha egenverdi for selger. Selger står fritt til å forkaste eller akseptere ethvert bud, og er for eksempel ikke forpliktet til å akseptere høyeste bud.
Budgiver skal i budskjema avgi egenerklæring om budgiver er forbruker eller næringsdrivende/ person som hovedsakelig handler som ledd i næringsvirksomhet. Budgivere får informasjon dersom andre bud er inngitt av en som ikke er forbruker.
Forbrukerkjøp - definisjon
Med forbrukerkjøp menes kjøp av eiendom når kjøperen er en fysisk person som ikke hovedsakelig handler som ledd i næringsvirksomhet.
Forbruker – avtalevilkår
Eiendommen har en mangel dersom den ikke er i samsvar med kravene som følger av avtalen, eller det foreligger brudd på bestemmelsene i avhendingsloven §§ 3-2 til 3-8. Hvis eiendommen ikke er i samsvar med det kjøperen må kunne forvente ut ifra alder, type og synlig tilstand, kan det være grunnlag for mangelskrav. Det samme gjelder hvis det er holdt tilbake eller gitt uriktige opplysninger om eiendommen. Dette gjelder likevel bare dersom man kan gå ut ifra at det virket inn på avtalen at opplysningen ikke ble gitt eller at mangelskravet ikke blir rettet i tide på en tydelig måte.
Boligen kan ha en mangel etter avhendingsloven § 3-3 andre ledd, dersom det er avvik mellom opplyst og faktisk innvendig areal, forutsatt at avviket er på 2% eller mer og minimum 1 kvm.
Ved beregning av et eventuelt prisavslag eller erstatning må kjøper selv dekke tap/kostnader opptil et beløp på kr 10 000 (egenandel).
Ikke-forbruker (næringsdrivende) – definisjon
Hvis kjøper er en juridisk person, eller en fysisk person som hovedsakelig handler som ledd i næringsvirksomhet, vil kjøpet ikke anses som et forbrukerkjøp.
Ikke-forbruker – avtalevilkår
Eiendommen har en mangel dersom den ikke er i samsvar med kravene som følger av avtalen.
Eiendommen selges «som den er», og selgers ansvar utover det konkret avtalte er da begrenset etter avhendingsloven § 3-9, første ledd andre setning.
Avhendingsloven § 3-3 andre ledd fravikes, og hvorvidt boligens arealsvikt utgjør en mangel vurderes etter avhendingsloven § 3-8.
Informasjon om kjøpers undersøkelsesplikt, herunder oppfordringen om å undersøke eiendommen nøye, gjelder også for kjøpere som ikke anses som forbrukere.
Det forutsettes at hjemmel overføres til kjøper. Hvis kjøper ikke ønsker hjemmelsoverføring av eiendommen, må det tas forbehold om dette i budet.
Meglers vederlag
Meglers vederlag betales av selger og er avtalt til:
Vederlag: 0,80 % av salgssummen
Minimumsprovisjon er kr 50 000,00
Vederlag:
Kontroll av hjemmel og heftelser kr 4 500,00
Markedsføringspakke kr 29 900,00
Oppgjør kr 8 900,00
Tilrettelegging kr 19 900,00
Visninger 4000,- pr. stk. 2 gratis kr 0,00
Utlegg:
Innhenting av off. oppl. Drammen kommune inkl. tegninger og RFD kr 3 222,00
Tinglysing sikring kr 545,00
Andre utgifter:
AX tilstandsrapport enebolig kr 20 625,00
Boligfotografering, gjenbruk fra 2023 fakturert fra Reder kr 2 080,00
Boligselgerforsikring Gjensidige, 5,71‰ kr 37 115,00
Vi er opptatt av verdiskapning, og har knyttet til oss samarbeidspartnere som skal sikre våre kunder de beste produkter og tjenester;
• I forbindelse med forberedelse av salget, innhenter vi informasjon om eiendommen hovedsakelig fra vår samarbeidspartner Amibita.
• Gjensidige leverer boligselgerforsikring og tilbyr bygningsforsikring
• Boligkjøperforsikring leveres av Hiscox og med Sedgwick som skadebehandler, og er formidlet gjennom Gjensidige.
• BN bank tilbyr finansieringsløsninger
• Vår avdeling Krogsveen Pluss tilbyr flyttetjenester som utvask, visningsvask, lager, tømming og transport av flyttelass, i tillegg til å formidle kontakt med Flip for overflateoppussing.
• I forbindelse med overtagelse av eiendommen tilbyr Overo avtale om strøm, alarm og bredbånd.
• Krogsveen er, sammen med øvrige bransjeaktører, medeier i Bomega AS som tilbyr den digitale annonseringsplattformen Hjem.
Opplysninger om oppdraget
Oppdragsnummer 20-0058/26
Eiendomsmegler Krogsveen AS, avd. Drammen
Nedre Storgate 16, 3015, DRAMMEN
950 007 613
Oppdragets KR-kode KR20.2658
Dato
Sist oppdatert: 16. april 2026 kl. 12:30
Dokumenter
Dokumenter
PDF – 680 KB
PDF – 349 KB
PDF – 322 KB
PDF – 5 MB
PDF – 963 KB
PDF – 312 KB
PDF – 29 KB
PDF – 127 KB
PDF – 392 KB
Område
Legg til steder som er viktige for deg
Visning
For å delta på visning, ber vi om at du melder deg på. Da sikrer vi at du får nødvendig informasjon og at det er satt av tilstrekkelig med tid. Kontakt megler dersom annet tidspunkt ønskes. Husk å lese salgsoppgaven før visningen, så du stiller forberedt. NB. Visning utgår dersom det ikke er noen påmeldte. Ønsker du kun å bli holdt orientert, kan du fra eiendommens hjemmeside få varsel om solgtpris, eller kontakte megler.
Lurer du på noe?
Unngå doble boligrenter
Vi tilbyr gunstig forsikring.
Vurderer du utleie?
Få et tilbud fra Utleie KrogsveenHva koster lånet?
Sjekk estimert lånekostnadVil du varsles om lignende boliger?
Ved å lagre ditt boligsøk hos oss får du beskjed når vi har en bolig som ligner denne, før den legges ut på markedet!































