Markveien 56
7 200 000 kr
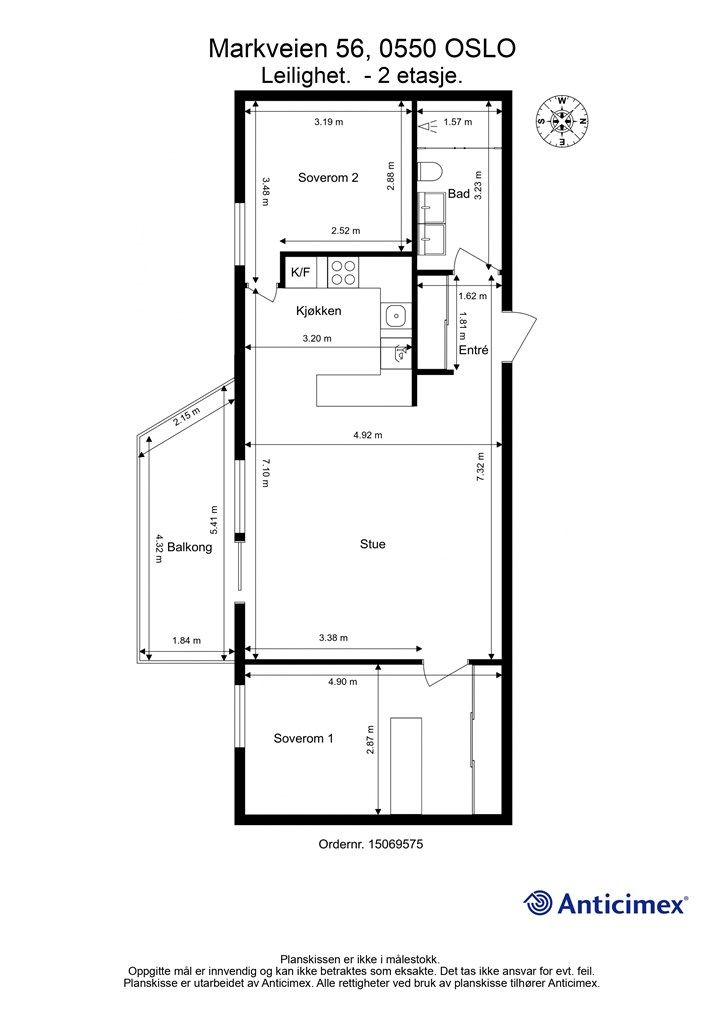
67 m²
2 soverom
Solgt

Grünerløkka
Lys og innbydende 3-roms med sydvendt balkong - Beliggenhet inn mot bakgård - Heis - A-konto strøm, vv og fiber inkl.
Prisantydning
7 200 000 krAndel fellesgjeld
108 020 krOmkostninger
193 740 krTotalpris
7 501 760 kr
Pris
Bruksareal
74 m²BRA-I (internt bruksareal)
67 m²BRA-E (eksternt bruksareal)
7 m²TBA (terrasse-balkongareal)
9 m²
Areal
Etasje
2Byggeår
1981Soverom
2 soveromBad
1 badType
EierleilighetEierform
EierseksjonFasiliteter
Heis og Balkong/TerrasseFellesutgifter
5 859 krEnergimerke
Rød E
Nøkkelinfo
Unngå doble boligrenter
Vi tilbyr gunstig forsikring.
Vurderer du utleie?
Få et tilbud fra Utleie KrogsveenHva koster lånet?
Sjekk estimert lånekostnadBeskrivelse
Kort om eiendommen
Velkommen til Markveien 56, en lys og klassisk 3- roms med romslig balkong vendt inn mot bakgård presentert av Marius Dyngeland Iversen. Leiligheten tilbyr to soverom, romslig balkong og en åpen stue- kjøkkenløsning i et svært populært område på Grünerløkka. Boligen er perfekt for deg som ønsker å bo sentralt og urbant med nærhet til alt, men likevel tilbaketrukket i skjermede og frodige omgivelser.
Kort fortalt:
- Overflateoppusset i 2024
- Sosial planløsning med romslig stue og kjøkkenrom
- To soverom, praktisk plassert i hver ende av boligen
- Walk in garderobe på hovedsoverom
- Stukkatur i himling
- Delikat og stort baderom
- Leiligheten vender i sin helhet mot frodig og stille bakgård
- Sentral beliggenhet i rolig område
- Gode solforhold
Område
Legg til steder som er viktige for deg
På flyttefot? Tenk kjøp og salg samtidig.
Få din egen rådgiver gjennom hele kjøps- og salgsprosessen. Det starter med en verdivurdering.
Unngå doble boligrenter
Vi tilbyr gunstig forsikring.
Vurderer du utleie?
Få et tilbud fra Utleie KrogsveenHva koster lånet?
Sjekk estimert lånekostnadVil du varsles om lignende boliger?
Ved å lagre ditt boligsøk hos oss får du beskjed når vi har en bolig som ligner denne, før den legges ut på markedet!

