Kirkekleiva 4B
2 690 000 kr
203 m²
3 soverom
Komplett salgsoppgave

Sentrum
Sentrumsleilighet pusset opp i 2020 - 3 soverom - Solrik uteplass - To innganger - Ingen boplikt!
Prisantydning
2 690 000 krOmkostninger
78 290 krTotalpris
2 768 290 kr
Pris
Bruksareal
203 m²BRA-I (internt bruksareal)
203 m²TBA (terrasse-balkongareal)
27 m²
Areal
Etasje
2Byggeår
1843Soverom
3 soveromBad
1 badType
EierleilighetEierform
EierseksjonFasiliteter
Balkong/TerrasseFellesutgifter
500 krEnergimerke
Rød G
Nøkkelinfo
Unngå doble boligrenter
Vi tilbyr gunstig forsikring.
Vurderer du utleie?
Få et tilbud fra Utleie KrogsveenHva koster lånet?
Sjekk estimert lånekostnadBeskrivelse
Kort om eiendommen
Lekker og praktisk leilighet i sentrumsgata med få meter til butikker og shopping i sentrum. Det er også kort vei til havna hvor det er spisesteder og mulighet for leie av båtplass. Leiligheten er leid ut frem til 1. juni 2026. Leiligheten er romslig med tre soverom, bad, stue, kjøkken, garderoberom, entré, trapperom og et stort loft med muligheter. Det er to inngangspartier, man har tilgang fra sentrumsgata og fra Kirkekleiva ovenfor. Det tilhører en fin og solrik uteplass på ca. 49m² hvor det i dag er terrasse. Det er et fint område å bo, samt hyggelige medeiere i sameiet. Leiligheten har varmekabler i gulv i entré og bad, samt varmepumpe og stålpipe til vedfyring av nyere dato. Leiligheten ble renovert (innvendig) i 2020 av et firma og fremstår i dag som flott og innbydende.
Innhold og byggemåte
Innhold og byggemåte
Eiendommen
Kirkekleiva 4B, 4900 TVEDESTRAND
Kommunenummer 4213, gårdsnummer 74, bruksnummer 98, seksjonsnummer 4, ideell andel 1/1
Innhold
Totalt bruksareal BRA: 203 kvm
BRA-i:
Leilighet:
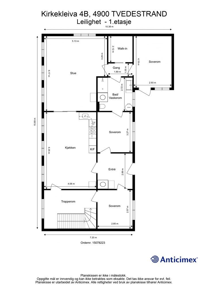
1. etasje 6 kvm: Trapperom.
2. etasje 126 kvm: Entré, tre soverom, gang, trapperom, garderoberom, bad/vaskerom og stue, kjøkken i åpen løsning.
3. etasje 71 kvm: Trapperom og uinnredet kaldtloft/lagringsplass.
Åpent areal:
Leilighet:
2. etasje 27 kvm: Terrasse.
Leiligheten har to inngangspartier, en fra Hovedgata (sentrumsgata) i 1. etasje med trapp opp, og en fra Kirkekleiva med utvendig trapp ned til terrassen til inngangsdør.
Deler av arealene på kaldtloftet og den innredede delen (trapperom) oppfyller vilkår for måleverdig areal og er derfor medregnet som en del av boligens bruksarealer. Loftet har et totalt gulvareal (GUA) på 130m², men grunnet skråtak/lav takhøyde er kun 71m² av arealet måleverdig som bruksareal. De delene av arealene som har lav himlingshøyde (ALH) utgjør 59m². Det gjøres oppmerksom på at arealet er vanskelig å måle helt nøyaktig på grunn av blant annet skjevheter, og mindre avvik kan derfor forekomme.
Terrassens areal er beregnet fra leilighetens yttervegg ved største soverom og frem til antatt skille mot naboveggen, da terrassen ikke har fysisk avgrensning. Det er seksjonert tilhørende 49,7m² uteareal til denne seksjonen som er avgrenset i kart.
Vedlagte plantegninger er ikke målbare. De oppgitte arealer er hentet fra rapport med befaringsdato 08.01.2026 utført av Anticimex v/Halvard Grina. Arealene er beregnet og rom er definert etter dagens faktiske bruk, uavhengig av hva som er godkjent av bygningsmyndighetene.
Byggemåte
Selger har fått utarbeidet en tilstandsrapport, dvs. en teknisk gjennomgang av boligen hvor eventuelle avvik, risiko for kjøper og prisoverslag for hva som bør gjøres av oppgradering, er skissert. Se særskilt TGIU (tilstandsgrad ikke undersøkt), samt TG2 og TG3 som viser hva som er boligens normale slitasje, alder og type, hva som er avvik fra dette og hva som bør/må utbedres. Rapporten og selgers egenerklæring er en del av salgsoppgaven og må leses nøye før bud inngis. Kjøper overtar ansvaret for de opplysninger som fremkommer av salgsdokumentasjonen, og kan ikke gjøre gjeldende som mangel noe som burde vært kjent eller som ikke kan anses å ha betydning for avtalen.
Bygningen er iht. tilstandsrapporten oppført i tre. Les for øvrig mer om byggemåte og den tekniske tilstanden i rapporten.
Følgende fordeling er gitt i tilstandsrapporten:
40% TG1, i orden.
35% TG2, alder, slitasje, skader mv.
1% TG3, strakstiltak nødvendig.8.
Det er et punkt med tilstandsgrad 3 i rapporten, herunder stedvis råte i ytterkledning, hovedsakelig på to yttervegger mot størte soverom, mot vei og mot nabo. Kledning mangler musesikring, og det er ikke etablert tilstrekkelig lufting bak kledningen. Råteskader bør utbedres, se også mer info på s. 12. Sjablongmessig
Bad: Det er ikke målt fukt på befaringstidspunktet. Elastiske fuger i overgang mellom gulv og vegger har stedvis svertesopp og manglende vedheft til underlaget. Bomlyd under enkelte fliser. Lokalfall i dusjsone er mindre enn ideell anbefaling (sen avregnning). Tilluftsspalte er ikke etablert. Se mer på s. 8.
Kjøkken: Ventilasjon er vurdert til å ikke være tilstrekkelig (tilluft). Tiltak kan iverksettes ved behov. Se s. 9.
Øvrige rom: Bomlyd under enkelte gulvfliser på øvrige rom. Ventilasjon er vurdert til å ikke være tilfredsstillende, det er ikke registrert ventiler. Se s. 9.
Krypekjeller: Krypkjeller var ikke tilgjengelig for inspeksjon og undersøkelser på befaringstidspunktet, da inspeksjonsluke var kledd igjen med plate. Det anbefales tilfredsstillende tilkomst. Krypkjellere kan erfaringsmessig anses som risikokonstruksjon med hensyn til fuktpåvirkning, råteskader eller lignende. Krypkjeller bør inspiseres. Se s. 9.
Loft, innredet: Takkonstruksjonen er lukket, og det er ikke kjent hvordan oppbyggingen er utført. Dette anses som regel som risikokonstruksjon, se s. 10.
Loft, uinnredet: Det er stedvis registrert fuktmerker, mindre råteskader og spor etter treskadeinsekter. Det er utført fuktmåling, men ikke vist forhøyede verdier. Skadene kan komme fra tidligere, TG2 er satt for å belyse risiko og at loftet bør inspiseres jevnlig. Taket har synlige nedbøyninger. Bør holdes under oppsyn. Det ble registrert fuktmerke på gulv ved lufteledning til avløp, hvor det ble observert synlig drypp fra øvre del. Antatt fra kondensering, det anbefales ytterligere undersøkelser og nødvendige tiltak utført av fagkyndige.
Ildsted: Det er registrert sprekker i teglsteinspipe, observert bl.a. i entre og på kjøkken, samt sprekker i ildsted i stue. Kan relateres til byggets alder, bevegelse eller normal slitasje, sprekkene bør utbedres. Eier opplyser at dette vil bli undersøkt av fagkyndig før salg og vedlikehold vil bli foretatt. Se s. 11.
Etasjeskiller: Det er noe merkbare skjevheter i boligen. Bygningen er eldre. Det er stedvis knirk i etasjen. Se s. 11.
Yttervegger: Grunnet observasjon av råteskade (se info i samme punkt) på ytterkledning kan skade i bakenforliggende konstruksjoner ikke utelukkes. Se s. 12.
Vinduer: Vinduer er fra 2020, med unntak av vinduene på loftet, samt et lite vindu på stuens kortvegg som er av eldre dato og flere har behov for oppgraderinger. Det er registrert kondensproblematikk på innsiden av flere vinduer. Se s. 13.
Yttertak: Taket er nytt fra 2020, herunder takplater, snøfangere og takrenner. Taket ikke fysisk inspisert grunnet is og snø. TG2 er satt fordi taket kan være utsatt for slitasje, skader eller feil utførelse som ikke registreres grunnet begrenset tilkomst. Det er ikke etablert lufteduk eller annen sikring i takutstikk/gesims. Taket konstruksjon har synlige nedbøyninger. Over lysåpning til innredet loft er det, sett fra innsiden en profilert platplate. Løsningen vurderes å ikke være tilstrekkelig med hensyn til fuktsikkerhet. Nedre del av vindkien mot størte soverom er sprukket opp. Se s. 13.
Grunnmur: Skjult fra utsiden og er kun tilgjengelig fra innsiden via krypkjeller. Krypkjelleren var ikke tilgjengelig for inspeksjon på befaringstidspunktet. Det bør etableres tilkomst/mulighet for inspisering. Se s. 14.
Drenering: Drenering er skjult. Basert på byggets alder så vurderes dette til TG2 for å belyse at dreneringen kan ha funksjonssvikt og vann fra yttertak er ikke tilstrekkelig ledet bort. Det kan heller ikke bekreftes at det er utvendig fuktsperre. Se s. 14.
Selger opplyser at elastiske flisfuger på badet vil bli utbedret, og at det vil bli utført tiltak på det uinnredete loftet for å fjerne fuktmerker på gulv ved lufteledning til avløpssystemet. Videre vil tilluftsspalter i dører bli etablert i baderom og i kjøkken, og det vil bli satt inn lufteventil i yttervegg på kjøkken.
Selger har fylt ut egenerklæringsskjema som er vedlagt salgsoppgaven i sin helhet. Selgers kommentarer oppsummeres i korte trekk her:
- I 2024 ble en vinduskarm på badet rettet opp av fagmann.
- Lekkasje ved pipe over naboleiligheten, som også er en del av Sameiet Hovedgata 33. Sameiet består av i alt 4 enheter og kostnaden ble dekket av de fire i fellesskap. Dette skjedde i 2024, lekkasjen ble da utbedret og taket ferdigstilt uten ytterligere skader. Selger nevner også at det i 2021 ble satt opp nytt stålpipeløp fra ildsted i stuen og ut over taket, samt byttet foring og plater rundt pipa. Det ble i 2021 også satt inn nytt brennkammer i den gamle peisen i stua, og ny ovn på kjøkkenet.
Selger har tegnet boligselgerforsikring.
Løsøre og tilbehør
Følgende hvitevarer medfølger i handelen: Komfyr, koketopp, kjøl/frys (kombiskap) og oppvaskmaskin, samt en eldre fryseboks på uinnredet loft.
Vi viser til liste fra Norges Eiendomsmeglerforbund som gjelder fra 01.01.2020 angående løsøre og tilbehør.
Oppvarming
Vedfyring og elektrisk. Det er tre peiser/ovner i boligens 2. etasje. Det er varmekabler i gulv i entré ved Kirkekleiva og på bad.
Ferdigattest/brukstillatelse
Eiendommen har vært brukt til boligformål.
Kommunen opplyser at det ikke var krav til ferdigattest eller midlertidig brukstillatelse på den tiden eiendommen ble oppført. Kommunen har lagt ved et skriv som viser til bl.a. følgende for eldre eiendommer:
"Det forekommer at det mangler vedtak, tegninger og andre relevante opplysninger som kan konstatere at tiltaket er omsøkt og godkjent av kommunen. I hovedsak gjelder dette eldre bebyggelse som er oppført før den landsdekkende bygningsloven av 1965 trådte i kraft. Før 1965 var det for Tvedestrand ikke vedtatt alminnelig søknadsplikt for byggetiltak. I de fleste saker påregnes tiltak oppført før ikrafttredelsen av -65-loven som lovlig oppført.".
Utover skrivet er det mottatt følgende informasjon fra byggesaksarkivet for eiendommen:
Tegning stemplet av kommunen januar 1964. I denne er det ikke navngitte rom i bygget.
Tegning av "ombygging Glassmagasinet", stemplet av kommunen januar 1964. I denne tegningen er rommene merket, men litt annerledes løsning enn dagens.
Vedtak: Ombygning og tilbygg datert januar 1964 med diverse vedlegg fra andre instanser (Statens vegvesen, Tvedestrand Brannvern mv.).
Begjæring av seksjonering datert 26.08.2020.
Seksjonering datert 31.07.2020.
Ettersom det i matrikkel og seksjonering fremgår at det er to leiligheter i bygget, og tegninger er mottatt av kommunen så antas det dermed at disse er godkjent med dagens løsning. Det stilles likevel et spørsmål om soverom (ved siden av garderoberommet) som opprinnelig var godkjent som bod i tegninger fra 1964, da det ikke foreligger vedtak om bruksendring på dette. Det er generell søknadspliktig å endre fra bod til soverom. Kjøper overtar risiko, ansvar og eventuelle kostnader i forbindelse med bruksendring/bruken av rommet. Megler har vært i kontakt med kommunen som ikke kunne gi klarhet i dette.
Det gjøres oppmerksom på at det ikke lenger utstedes ferdigattest på tiltak det er søkt om før 1998 jf. plan- og bygningsloven § 21-10. Kommunen vil ikke kreve ferdigattest for disse tiltakene og vil avvise eventuelle søknader. Bestemmelsen innebærer ikke at tiltak med manglende søknad blir lovlige, men at man ikke trenger å avslutte gamle byggesaker. Normalt sett kreves ferdigattest for alle søknadspliktige tiltak som gjøres etter plan- og bygningsloven.
Tinglyste heftelser og rettigheter
På eiendommen er det tinglyst følgende heftelser og rettigheter som følger eiendommens matrikkel ved overskjøting til ny hjemmelshaver:
4213/74/98/4:
13.06.1843 - Dokumentnr: 900005 - Festekontrakt - vilkår
Gjelder feste
Kommentar: Denne er ikke funnet/innhentet, men det er avklart viktige vilkår med bortfester i salgsoppgaven.
31.08.2020 - Dokumentnr: 2944651 - Seksjonering
Opprettet seksjoner:
Snr: 4
Formål: Bolig
Tilleggsdel: Grunn
Sameiebrøk: 110/360
Sameiet har legalpant for krav mot sameieren som følger av sameieforholdet iht. eierseksjonsloven § 31. Pantet er begrenset oppad til 2G, (G = folketrygdens grunnbeløp).
Alle servituttene vil følge eiendommen. Kjøpers bank vil få prioritet etter ovennevnte heftelser og servitutter.
Eventuell adgang til utleie
Leiligheten kan leies ut såfremt leiligheten har forsvarlige radonverdier. Leietaker må følge sameiets vedtekter og ordensregler på lik linje som eier. Leiligheten leies i dag ut og er utleid til 01. juni 2026. Dersom ny eier ønsker å overta før dette kan det skje så lenge leieboers rettigheter respekteres. Ved overtagelse før leieboers oppsigelsestid er ute (3 måneder) så må ny eier ordne ny leieavtale før overtagelse. Dersom ny eier ønsker å overta uten leieboer kan dette skje etter 01. juni 2026. Det er ikke depositum i dag, men en NAV garanti på kr. 33.000,-. Dagens leieinntekt er kr. 11.310,- pr. måned og inkluderer kommunale avgifter/renovasjon og fellesutgifter i sameiet, samt ekskluderer strøm og TV/internett.
Diverse
Selger har ikke bebodd eiendommen i nyere tid og har derfor ikke kunnskap om eiendommens tilstand. Kjøper må derfor kunne påregne at det kan være flere feil og mangler som normalt oppdages ved bruk av boligen, men som selger ikke har mulighet å vite. Leiligheten er leid ut frem til 1. juni 2026.
Det tas et lite forbehold om oppgitt byggeår da det er en eldre bygård og vanskelig å definere eksakt uten dokumentasjon som bekrefter dette.
Det er tre etasjer i bygget.
Eiendommen er seksjonert, og Leiligheten er tilknyttet Hovedgata 33 sameie, med sameiebrøk 110/360.
Sameiet består av to leiligheter og to næringsseksjoner. Sameiet har ikke forretningsfører eller styre, og det føres ikke regnskap eller budsjett. Dersom det mottas felles regninger til sameiet vil kostnader bli fordelt etter nærmere regler angitt av sameiet. Det er avtalt fordeling på 30,5% for andel av utgifter til hver av leilighetene. Faste utgifter gjelder bygningsforsikring og festeavgift. Ved behov for reperasjoner, eller vedlikehold på fellesarealer eller bygningsmasse som inngår i vedtekter for sameiet, betales dette fordelt til angitt prosentfordeling. Det betyr at kjøper må være kjent med at det kan komme kostnader ved behov for utbedring underveis i eiertiden. Styreleder informerer at det ikke er planlagte påkostninger pr. i dag (18.01.2026).
Trappevask må påregnes til eget inngangsparti.
Dyrehold er tillatt.
Foretatt påkostninger de senere år: Det har blitt malt og tettet tak over Kirkekleiva 4A. Nylig er det også inngått ny forsikringsavtale med IF. Det er også opprettet seriekoblede brannvarslere.
Planlagte påkostninger: Ingen.
Vi gjør videre oppmerksom på at det iht. eierseksjonsloven ikke er anledning å erverve mer enn 2 seksjoner i sameiet, her teller også eierskap via. firma, nærstående og familie. Kjøper har risikoen for at overskjøting på denne bakgrunn kan nektes av Statens Kartverk. I så fall vil kjøper uansett være forpliktet til å gjennomføre handelen, og oppgjør til selger vil finne sted tross manglende overskjøting.
Konferer med megler for mer informasjon.
Dokumenter for sameiet og kopi av seksjonsbegjæringen kan fås ved henvendelse til megler.
Energimerking
Megler har fylt ut en enkel energiattest, det tas forbehold om avvik i denne. I energiattesten er det ikke hensyntatt oppgraderinger av bygningsmasse/renovering da megler ikke har tilgjengelige spesifikasjoner som gjør dette mulig.
Beliggenhet og tomteforhold
Beliggenhet og tomteforhold
Beliggenhet
Nydelig sentrumsleilighet i hjertet av Tvedestrand. Leiligheten har adkomst fra Hovedgata og fra Kirkekleiva. Nærmeste nabo- "Strykjejernet", er Norges smaleste hus, og eldste i sentrum (kilde: visitNorway.no). Byens historie ser man også preg av i gatene på brosteinene som fortsatt har spor av hestehover. Byen har koselige handlegater, gode spisesteder, nisjebutikker og hvite trehus langs gatene. Det er bl.a. vinmonopol, apotek, frisører, bakerier og dagligvare i sentrum. Tvedestrand er for mange et av Norges fineste sommersteder, og det er liv i sentrum og ved havna, særlig i sommersesong.
Fra eiendommen er det kort og trygg gangvei til barnehage og skole. Både barneskolen og VGs er bygd i nyere tid og byr på gode og moderne fasiliteter, samt badebrygge ved Mjåvann (VGS). Det er busstopp 100 m fra eiendommen med gode forbindelser. I nærheten av sentrum er det fine turmuligheter i skog og natur. Det er badeplasser ved sjøen i tillegg til strand og badepark ved Tjenna som rigges til med badepark i sommersesong. Ved Grisen storsenter og Grenstøl handel (ca. 4 min i bil) er det godt utvalg av dagligvare og shopping. Det er for øvrig Golf bane ved Nes verk ca. 10 minutter med bil fra eiendommen, samt ca. 25 minutter til Arendal og Risør hver vei.
Adkomst
Se kart eller kontakt megler for veibeskrivelse.
Barnehager, skoler og fritid
Barnehage:
Lyngbakken barnehage (1-5 år): 1 km
Bronsbu barnehage (1-5 år): 1.1 km
Blåbærskogen naturbarnehage (0-5 år): 1.6 km
Skole:
Tvedestrand barneskole (1-7 kl.): 1.8 km
Lyngmyr skole (8-10 kl.): 1 km
Tvedestrand videregående skole: 1.2 km
Informasjon om tilhørende skolekretser er hentet fra Prognosesenteret som dataleverandør, og tilhørigheten kan årlig endres av kommunen. Dersom skole- og barnehagetilbud er av betydning for kjøpet, ber vi om at det rettes en særskilt henvendelse til kommunen/bydelsadministrasjonen for oppdatert informasjon.
Beskrivelse av tomt
Tinglyst (seksjonert) utvendig areal som tilhører leiligheten er på 49,7m². Felleseid areal er totalt 229,9m². Felleseid areal går i hovedsak langs bygningsmassen, og gjelder i tillegg felles steintrapp ned til terrassen fra Kirkekleiva.
Regulering av feste
Festeavgiften er kr 1.350,- pr. år. Festeavtalen er evigvarende og festeavgiften gjelder for sameiet.
Samtykke til overdragelse fra grunneier kreves ikke.
Festeavgiften reguleres hvert 10. år i henhold til konsumprisindeksen.
Siste regulering av festeavgift: 2020. Neste regulering: 2030.
Kopi av lov om tomtefeste kan fåes ved henvendelse til megler.
Festekontrakten er ikke funnet av megler, men megler har sjekket og fått skriftlig informasjon direkte fra bortfester.
Parkering
Det følger ikke med parkeringsplass. Det er flere leiemuligheter i nærheten, bl.a. av kommunen eller privatpersoner til priser fra ca. kr. 200,- pr. måned til ca. kr. 600 pr. måned.
Vei, vann og avløp
Eiendommen har adkomst via kommunal vei.
Eiendommen er tilknyttet kommunalt ledningsnett via private stikkledninger.
Sameiet er ansvarlig for private stikkledninger til bygningen.
Regulerings-og arealplaner
Kommuneplan med planid 143, 2017-2029 viser til sentrumsformål, nåværende og bevaring kulturmiljø.
Reguleringsplan: Verneplan Tvedestrand vedtatt 1992. Reguleringsbestemmelser har som formål å øke Tvedestrands verdi som handelssted, kultursted og bomiljø for fastboende og besøkende bl.a.
Økonomi
Økonomi
Boligens kostnader
Det er ingen fast felleskostnad i dag. Det er kun stipulert et tall for å vise til årlige utgifter. Det som uansett må forventes av ny eier:
Årlig festeavgift, brannsikring og felles bygningsforsikring fordelt på fordelingsprosent, samt løpende, felles utgifter når det skal påkostes/vedlikeholdes deler av fellesarealer/utvendig bygningsmasse.
På neste møte skal det avgjøres om det skal være en fast felleskostnad eller fordeling etter utgifter som det er i dag.
Det er ingen fellesgjeld i sameiet.
Kommunale utgifter
I årlige kommunale avgifter inngår følgende for 2026 stipulert av kommunen:
Vann (abonnement og helårsforbruk) kr. 5.826,-
Avløp (abonnement og helårsforbruk) kr. 7.994,-
Feiing kr. 618,-
Renovasjon (RTA) kr. 5.044,-
Eiendomsskatt kr. 4.152,-
Totalt inkl. ovennenvte kostnader kan kr. 23.634,- påregnes.
Nåværende eier leier ut leiligheten, strømforbruk er derfor ukjent. Det er ikke tegnet Norgespris.
Bygningsforsikring betales gjennom sameiet.
Boligen er tilknyttet fiber fra Telia.
Utgiftene er basert på nåværende eiers forbruk og avtaler.
Det er ikke montert vannmåler (valgfritt i Tvedestrand kommune).
I disse dager gjøres det endringer i formuesverdien, det tas derfor forbehold om justert eiendomsskatt.
Formuesverdi
Formuesverdi for 2023 var kr 618 443,- ifølge skatteetaten. Beløpet forutsetter at eier bor fast i boligen (primærbolig).
Ved eventuell øvrig bruk av eiendommen (f.eks. fritidsbolig, pendlerbolig, utleieobjekt) var formuesverdien for 2023 kr 2 473 770,-.
Formuesverdien justeres normalt årlig. Se skatteetaten.no for mer informasjon om fastsettelse av formuesverdien.
Omkostninger
2 690 000,00 Prisantydning
Omkostninger
67 250,00 Dokumentavgift til staten (2,5% av kjøpesum)
9 950,00 Gjensidige Boligkjøperpakke (valgfri)
545,00 Tinglysing panterettsdokument
545,00 Tinglysing skjøte
--------------------------------------------------------
78 290,00 Omkostninger totalt
--------------------------------------------------------
2 768 290,00 Totalpris inkl. omkostninger
--------------------------------------------------------
Dersom sameiet har fellesgjeld, vil leilighetens andel av fellesgjelden komme i tillegg til kjøpesummen. Denne gjelden skal ikke innbetales i oppgjøret, men følger leiligheten.
Totalpris inkl. omkostninger forutsetter kjøp til prisantydning.
Det tas forbehold om endringer i avgifter og gebyrer.
Betalingsbetingelser
Kjøpesum inkludert omkostninger, samt pantedokument tilknyttet eventuelt lån, skal være disponibelt hos megler 2 virkedager før overtagelsen.
Annen viktig informasjon
Annen viktig informasjon
Eier
Tore Holmqvist og Noemi Elizabeth Zalasar De Holmqvist
Informasjon om sameiet
Sameiet Hovedgata 33 består av to boligseksjoner i 2. etasje og to næringsseksjoner i 1. etasje, samt fellesarealer på gnr. 74, bnr. 98 i Tvedestrand kommune.
Overtakelse
Etter nærmere avtale.
Boligkjøperforsikring
Innen kontraktsmøtet må kjøper ta stilling til om det ønskes å bestille Boligkjøperpakken gjennom Gjensidige. I denne gunstige pakken er boligen ferdig forsikret og inkluderer rettshjelpsforsikring, også kalt Boligkjøperforsikring. Rettshjelpsforsikring gir trygghet og tilgang på profesjonell juridisk hjelp dersom det oppdages uventede feil eller mangler det første året etter overtagelse. Forsikringsselskapet behandler i så fall ethvert mangelskrav kjøper måtte ha overfor selger.
Boligkjøperpakken inkluderer bygningsforsikring for hus og hytte, innboforsikring, flytteforsikring og dobbel rentedekning - i situasjoner hvor kjøper ikke får solgt nåværende primærbolig.
Kjøper mottar ingen særskilt faktura for Boligkjøperpakken da kostnaden det første året legges til kjøpesummen for boligen. Det gjøres oppmerksom på Krogsveen mottar et honorar for denne formidlingen.
Produktark for Boligkjøperpakken ligger vedlagt i salgsoppgaven.
Dersom ikke boligkjøperpakke ønskes kan kun rettshjelpsforsikring, også kalt boligkjøperforsikring, tegnes særskilt via megler. Rettshjelpsforsikringen varer i 5 år fra overtagelse og leveres gjennom Gjensidige. Ta kontakt med megler for ytterligere informasjon.
Selskap og privatpersoner som driver med kjøp/salg/utvikling som ledd i egen næringsvirksomhet kan ikke tegne boligkjøperpakke eller rettshjelpsforsikring.
Budgivning
Forbrukerinformasjon om budgivning er vedlagt denne salgsoppgaven og er også på vår hjemmeside Krogsveen.no. Alle bud og budforhøyelser må inngis skriftlig. I tillegg må legitimasjon være fremlagt sammen med signatur fra budgiver.
Vi oppfordrer til å gi bud elektronisk via GI BUD-knappen på eiendommens hjemmeside på Krogsveen.no. Da vil samtlige vilkår bli oppfylt.
Eventuelle forhøyelser eller endringer av budet kan bekreftes pr SMS eller på e-post. Vi oppfordrer alltid til å kontakte megler pr. telefon i tillegg da forsinkelser i SMS og e-post kan forekomme.
For at budene skal kunne bli behandlet og videreformidlet skriftlig til alle involverte parter, må alle bud ha en tilstrekkelig lang akseptfrist, jf. eiendomsmeglingsforskriften § 6-3.
Selger må også skriftlig akseptere budet før aksept kan formidles til budgiver. Akseptfrist bør derfor være på minimum 30 minutter, og budforhøyelser må derfor skje i god tid før fristens utløp.
Bud i forbrukerforhold kan uansett ikke settes med kortere frist enn kl. 12.00 første virkedag etter siste annonserte visning. I tillegg kan ikke budet ha forbehold om at det skal holdes hemmelig ovenfor øvrige interessenter. Megler har iht lov om eiendomsmegling ikke anledning til å videreformidle disse budene, og de vil dermed heller ikke bli journalført.
Etter at eiendommen er solgt vil kjøper og selger få tilsendt budjournal. Øvrige budgivere kan få utlevert kopi av budjournalen i anonymisert form.
Hvitvaskingsreglene
I henhold til lov om hvitvasking og terrorfinansiering har megler plikt til å gjennomføre kontrolltiltak overfor kunder, herunder fullmektiger. Dette innebærer bl.a. å bekrefte kunders og reelle rettighetshaveres identitet på bakgrunn av fremvist gyldig legitimasjon eller på annen godkjent måte, samt å innhente opplysninger om kundeforholdets formål og tilsiktede art.
Dersom slike kundetiltak ikke kan gjennomføres, kan megler ikke etablere kundeforholdet eller utføre transaksjonen.
Hvis kjøper ikke bidrar til gjennomføring av kundekontrollen og dette fører til at transaksjonen blir forsinket eller ikke kan gjennomføres, vil dette ansees som mislighold av avtalen og gi selger rettigheter etter avhendingslova kapittel 5. I tilfeller der selger ikke bidrar til gjennomføring av løpende kundekontroll underveis i oppdraget, er det selger som misligholder sine forpliktelser etter avtalen og gi kjøper rettigheter etter avhendingslovens kapittel 4. Partene er selv ansvarlige for eventuelle kostnader og ansvar dette kan medføre. Eiendomsmegleren eller eiendomsmeglingsforetaket kan ikke holdes ansvarlig for de konsekvenser dette vil kunne få for partene eller andre som har interesser i eiendomshandelen.
Kjøper oppfordres til å innbetale kjøpesummen som ikke kommer fra låneinstitusjon i én samlet innbetaling fra egen konto i norsk bank. Megler har plikt til å melde fra til Økokrim om eiendomshandler som fremstår som mistenkelige. Melding sendes Økokrim uten at partene varsles.
Personopplysningsloven
I henhold til personopplysningsloven gjør vi oppmerksom på at interessenter kan bli registrert for videre oppfølging.
Lovanvendelse
Generelle bestemmelser
Salgsoppgaven er basert på de opplysningene selger har gitt til megler, den bygningssakyndiges tilstandsrapport, samt opplysninger innhentet fra kommunen, Kartverket og andre tilgjengelige kilder. Det er viktig at kjøper setter seg grundig inn i alle salgsdokumentene, herunder salgsoppgave, tilstandsrapport og selgers egenerklæring. Kjøper anses kjent med forhold som er tydelig beskrevet i salgsdokumentene, og slike forhold kan ikke påberopes som mangler. Dette gjelder uavhengig av om kjøper har lest dokumentene. Alle interessenter oppfordres til å undersøke eiendommen nøye, gjerne sammen med fagkyndig før bud inngis. Kjøper som velger å kjøpe usett kan ikke gjøre gjeldende som mangel noe han burde blitt kjent med ved undersøkelsen.
Dersom det er behov for avklaringer, anbefaler vi at interessenter rådfører seg med eiendomsmegler eller egne rådgivere før det legges inn bud.
En bolig som har blitt brukt i en viss tid, har vanligvis blitt utsatt for slitasje og skader kan ha oppstått. Slik bruksslitasje må kjøper regne med, og det kan avdekkes enkelte forhold etter overtakelse som nødvendiggjør utbedringer. Normal slitasje og skader som nødvendiggjør utbedring, er innenfor hva kjøper må forvente og vil ikke utgjøre en mangel.
Kjøper og selgers rettigheter og plikter reguleres av avtalen mellom partene, samt informasjonen som har vært tilgjengelig for kjøperen i forbindelse med handelen. Avtalen utfylles av avhendingsloven, og det gjelder ulike avtalevilkår avhengig av om kjøper er forbrukerkjøper eller ikke. Dette er nærmere beskrevet nedenfor.
På grunn av ulike avtalevilkår kan selger vurdere bud fra en som ikke er forbruker, ulikt fra en forbrukers bud. Dersom kjøper ikke er forbruker, er selger sitt mulige mangelsansvar begrenset fordi eiendommen selges "som den er". Selger kan ikke ta «som den er»- forbehold overfor en forbrukerkjøper. Selv et lavere bud fra en som ikke er forbruker kan foretrekkes fordi begrensningen i mulig mangelsansvar kan ha egenverdi for selger. Selger står fritt til å forkaste eller akseptere ethvert bud, og er for eksempel ikke forpliktet til å akseptere høyeste bud.
Budgiver skal i budskjema avgi egenerklæring om budgiver er forbruker eller næringsdrivende/ person som hovedsakelig handler som ledd i næringsvirksomhet. Budgivere får informasjon dersom andre bud er inngitt av en som ikke er forbruker.
Forbrukerkjøp - definisjon
Med forbrukerkjøp menes kjøp av eiendom når kjøperen er en fysisk person som ikke hovedsakelig handler som ledd i næringsvirksomhet.
Forbruker – avtalevilkår
Eiendommen har en mangel dersom den ikke er i samsvar med kravene som følger av avtalen, eller det foreligger brudd på bestemmelsene i avhendingsloven §§ 3-2 til 3-8. Hvis eiendommen ikke er i samsvar med det kjøperen må kunne forvente ut ifra alder, type og synlig tilstand, kan det være grunnlag for mangelskrav. Det samme gjelder hvis det er holdt tilbake eller gitt uriktige opplysninger om eiendommen. Dette gjelder likevel bare dersom man kan gå ut ifra at det virket inn på avtalen at opplysningen ikke ble gitt eller at mangelskravet ikke blir rettet i tide på en tydelig måte.
Boligen kan ha en mangel etter avhendingsloven § 3-3 andre ledd, dersom det er avvik mellom opplyst og faktisk innvendig areal, forutsatt at avviket er på 2% eller mer og minimum 1 kvm.
Ved beregning av et eventuelt prisavslag eller erstatning må kjøper selv dekke tap/kostnader opptil et beløp på kr 10 000 (egenandel).
Ikke-forbruker (næringsdrivende) – definisjon
Hvis kjøper er en juridisk person, eller en fysisk person som hovedsakelig handler som ledd i næringsvirksomhet, vil kjøpet ikke anses som et forbrukerkjøp.
Ikke-forbruker – avtalevilkår
Eiendommen har en mangel dersom den ikke er i samsvar med kravene som følger av avtalen.
Eiendommen selges «som den er», og selgers ansvar utover det konkret avtalte er da begrenset etter avhendingsloven § 3-9, første ledd andre setning.
Avhendingsloven § 3-3 andre ledd fravikes, og hvorvidt boligens arealsvikt utgjør en mangel vurderes etter avhendingsloven § 3-8.
Informasjon om kjøpers undersøkelsesplikt, herunder oppfordringen om å undersøke eiendommen nøye, gjelder også for kjøpere som ikke anses som forbrukere.
Det forutsettes at hjemmel overføres til kjøper. Hvis kjøper ikke ønsker hjemmelsoverføring av eiendommen, må det tas forbehold om dette i budet.
Meglers vederlag
Meglers vederlag betales av selger og er avtalt til:
Vederlag: 2,00 % av salgssummen inkl. eventuell fellesgjeld. Minimumsprovisjon er kr 50 000,-
Vederlag:
Kontroll av hjemmel og heftelser kr 2 900,-
Markedsføringspakke kr 26 900,-
Oppgjør kr 7 500,-
Tilrettelegging kr 9 900,-
Visninger / Overtagelse pr stk kr 1 500,-
Utlegg:
Innhenting av offentlig opplysninger Tvedestrand kommune kr 4 750,-
Tinglysing sikring kr 545,-
Andre utgifter:
Foto kr 3 750,-
Vi er opptatt av verdiskapning, og har knyttet til oss samarbeidspartnere som skal sikre våre kunder de beste produkter og tjenester;
• I forbindelse med forberedelse av salget, innhenter vi informasjon om eiendommen hovedsakelig fra vår samarbeidspartner Amibita.
• Gjensidige leverer boligselgerforsikring og tilbyr bygningsforsikring
• Boligkjøperforsikring leveres av Hiscox og med Sedgwick som skadebehandler, og er formidlet gjennom Gjensidige.
• BN bank tilbyr finansieringsløsninger
• Vår avdeling Krogsveen Pluss tilbyr flyttetjenester som utvask, visningsvask, lager, tømming og transport av flyttelass, i tillegg til å formidle kontakt med Flip for overflateoppussing.
• I forbindelse med overtagelse av eiendommen tilbyr Overo avtale om strøm, alarm og bredbånd.
• Krogsveen er, sammen med øvrige bransjeaktører, medeier i den digitale annonseringsplattformen Hjem som eies av Bomega AS
Opplysninger om oppdraget
Oppdragsnummer 47-0132/25
Eiendomsmegler Krogsveen AS, avd. Arendal
Kystveien 14, 4841, ARENDAL
950 007 613
Oppdragets KR-kode KR47.25132
Dato
Sist oppdatert: 06. mai 2026 kl. 10:32
Dokumenter
Dokumenter
PDF – 143 KB
PDF – 529 KB
PDF – 923 KB
PDF – 312 KB
PDF – 29 KB
PDF – 127 KB
PDF – 392 KB
Område
Legg til steder som er viktige for deg
Visning
For å delta på visning, ber vi om at du melder deg på. Da sikrer vi at du får nødvendig informasjon og at det er satt av tilstrekkelig med tid. Kontakt megler dersom annet tidspunkt ønskes. Husk å lese salgsoppgaven før visningen, så du stiller forberedt. NB. Visning utgår dersom det ikke er noen påmeldte.
Ønsker du kun å bli holdt orientert, kan du fra eiendommens hjemmeside få varsel om solgtpris, eller kontakte megler.
Lurer du på noe?
Unngå doble boligrenter
Vi tilbyr gunstig forsikring.
Vurderer du utleie?
Få et tilbud fra Utleie KrogsveenHva koster lånet?
Sjekk estimert lånekostnadVil du varsles om lignende boliger?
Ved å lagre ditt boligsøk hos oss får du beskjed når vi har en bolig som ligner denne, før den legges ut på markedet!































