Jessnesvegen 357
7 900 000 kr
190 m²
4 soverom
Komplett salgsoppgave
Jessnes
Landlig perle med svært gjennomført og pent opparbeidet tun - Innholdsrik enebolig med flott mjøsutsikt
Prisantydning
7 900 000 krOmkostninger
218 490 krTotalpris
8 118 490 kr
Pris
Bruksareal
260 m²BRA-I (internt bruksareal)
190 m²BRA-E (eksternt bruksareal)
70 m²TBA (terrasse-balkongareal)
27 m²
Areal
Etasje
2Soverom
4 soveromBad
2 badTomteareal
2 358 m² (eiet)Type
Enebolig - FrittliggendeEierform
EietFasiliteter
Garasje/P-plass og Balkong/Terrasse
Nøkkelinfo
Unngå doble boligrenter
Vi tilbyr gunstig forsikring.
Vurderer du utleie?
Få et tilbud fra Utleie KrogsveenHva koster lånet?
Sjekk estimert lånekostnadBeskrivelse
Kort om eiendommen
Velkommen til Jessnesvegen 357!
Særpreget tun på Jessnes med hovedhus, uthus, carport og hønsehus, omgitt av en frodig og gjennomarbeidet hage med dyrkingsmuligheter, frukttrær og veksthus.
Hovedhuset har en innholdsrik planløsning over to plan med flere oppholdsrom, to bad og fleksible bruksmuligheter.
Uthuset fra nyere tid har to hobbyrom, eget lite te-kjøkken, dusjrom og badstue.
Eiendommen er utviklet etter økologiske prinsipper med naturlige materialer, vannbåren varme tilknyttet luft-til-vann varmepumpe.
Landlig og rolig beliggenhet med utsyn mot Mjøsa, men samtidig kort vei til Hamar.
Velkommen til en hyggelig visning!
Innhold og byggemåte
Innhold og byggemåte
Eiendommen
Jessnesvegen 357, 2320 FURNES
Kommunenummer 3411, gårdsnummer 756, bruksnummer 5, ideell andel 1/1
Innhold
Totalt bruksareal BRA: 260 kvm
BRA-i:
Enebolig:
1. etasje 137 kvm: Entré, gang, to bad, vaskerom/teknisk rom, to kjøkken (ett uten innlagt vann), spisestue, to stuer og to soverom og vindfang.
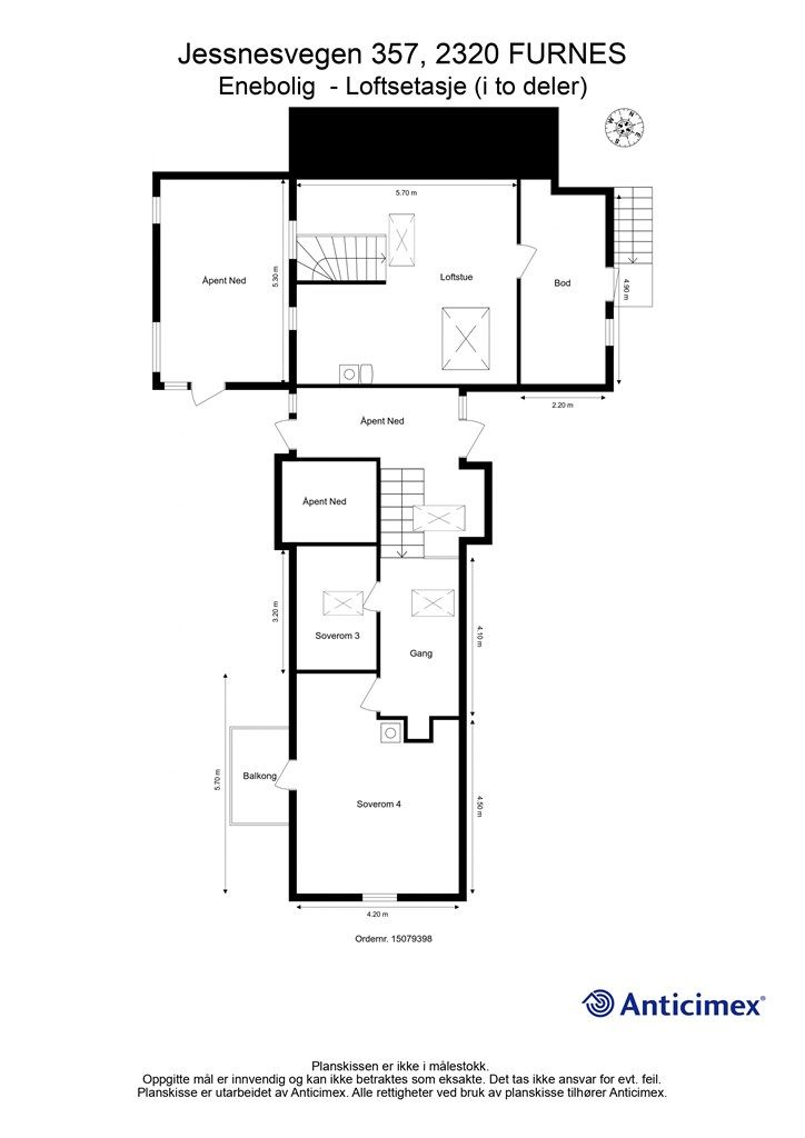
2. etasje 53 kvm: Loftstue, bod, gang og to soverom.
BRA-e:
Uthus:
1. etasje 47 kvm: Hobbyrom, kjøkken/stue, bad, badstue og drivhus.
Dobbel carport med bod:
1. etasje 16 kvm: Bod.
Hønsehus:
1. etasje 7 kvm: Hønsehus.
Åpent areal:
Enebolig:
1. etasje 23 kvm: Inngangsparti/terrasse og platting.
2. etasje 4 kvm: Balkong.
Loftsetasjene i boligen har et totalt gulvareal (GUA) på 79 kvm, men grunnet skråtak/lav takhøyde er kun 53 kvm av arealet måleverdig som bruksareal. De delene av arealene som har lav himlingshøyde (ALH) utgjør 26 kvm.
Vedlagte plantegninger er ikke målbare. De oppgitte arealer er hentet fra rapport med befaringsdato 08.04.2026 utført av Anticimex AS. Arealene er beregnet og rom er definert etter dagens faktiske bruk, uavhengig av hva som er godkjent av bygningsmyndighetene.
Det opplyses om at rommene i uthuset ikke er godkjent til varig opphold. Se punkt om "ferdigattest/brukstillatelse" for mer info om dette.
Byggemåte
Selger har innhentet en tilstandsrapport av boligen/eiendommen. Av rapporten fremgår det at flere bygningsdeler har fått tilstandsgrad ikke undersøkt/ikke tilgjengelig for undersøkelse (TG IU), 2 (TG2) og/eller 3 (TG3). Rapporten beskriver også avvik på undersøkte bygningsdeler uten tilstandsgrad. Kjøper overtar ansvaret for de opplysninger som fremkommer av salgsdokumentasjonen, og kan ikke gjøre gjeldende som mangel noe som burde vært kjent eller som ikke kan anses å ha betydning for avtalen.
Info om bygningen iht. tilstandsrapporten:
Boligbyggets opprinnelige oppføringstidspunkt er ukjent, men hovedhusets eldste del er en husmannsplass fra slutten av 1800-tallet. Hoveddelen av hovedhuset er et tilbygg fra 2000. Grunnmuren består delvis av oppmurt naturstein og delvis av betong og lettklinkerblokker. Fundamentert på ukjent byggegrunn. Bygget er oppført med støpt gulv mot grunn, samt krypekjeller under deler av boligen. Yttervegger av trekonstruksjoner. Fasaden er kledd med stående trekledning. Etasjeskillere av trekonstruksjoner. Saltak i trekonstruksjoner. Yttertaket er utvendig tekket med takstein. Boligen har profilert entrédør. Vinduer og andre ytterdører med karmer/ramme av tre i forskjellig utførelse, fra forskjellige årstall. Les for øvrig mer om byggemåte og den tekniske tilstanden i rapporten.
Det gjøres spesielt oppmerksom på følgende bygningsdeler som har fått TG3 (store eller alvorlige avvik) i tilstandsrapporten:
Rom under terreng - Grovkjeller / jordkjeller - gamlestua:
- Helhetsvurdering: Det er valgt å vurdere boligens grovkjeller (og tilhørende bygningsdeler) med en samlet helhetsvurdering. Følgende hovedmomenter er lagt til grunn for vurderingen:
Basert på bygningsdelenes samlede tilstandsbilde og hovedmomentene som nevnes over bør det gjennomføres ytterligere undersøkelser for å kartlegge eksakt tilstand, omfang, årsakssammenhenger og hvilke tiltak som er nødvendige. Følgende sjablongmessig prisanslag gjelder for videre undersøkelser utført av fagkyndige.
Drenering:
- Helhetsvurdering: Det er valgt å vurdere dreneringen med en samlet helhetsvurdering. Følgende hovedmomenter er lagt til grunn for vurderingen:
Basert på hovedmomentene som nevnes over er foreslått tiltak at det gjennomføres ytterligere undersøkelser av fagkyndige for å kartlegge omfang, eventuelle følgeskader og eksakt hvilke tiltak som bør gjennomføres. TG3 er gitt på bakgrunn av påviste tegn til funksjonssvikt ved deler av dreneringen, observert fra innsiden av grovkjelleren / jordkjeller under gamlestua.
Det gjøres også oppmerksom på følgende bygningsdeler som har fått TG2 (vesentlig avvik) i tilstandsrapporten:
Våtrom - Bad 1 - Boligen:
- Vanntett sjikt / membran i gulv og vegger: Vanntett sjikt har en alder som tilsier at fremtidig funksjon er usikker.
- Tettesjiktets tilslutning til sluk: Det kan ikke verifiseres at tettesjiktet er ført under slukets klemring (noe uoversiktlig), og det kan derimot se ut som tettesjiktet er ført på oversiden.
- Ventilasjon: Våtrommet har kun naturlig ventilasjon.
Våtrom - Bad 2 - Boligen:
- Helhetsvurdering: Det er valgt å vurdere våtrommet (og tilhørende bygningsdeler) med en samlet helhetsvurdering. Følgende hovedmomenter er lagt til grunn for vurderingen:
Basert på våtrommets samlede tilstandsbilde og hovedmomentene nevnt ovenfor, bør det påregnes fornyelse i nær fremtid. Fornyelse kan utsettes noe dersom det iverksettes kompenserende tiltak, og hvis videre bruk viser at våtrommet fortsetter å fungere lenger enn forventet, men dette vil medføre økt risiko for skjulte skader.
Våtrom - Vaskerom/teknisk rom:
- Lekkasjesikkerhet: Det bærer tvil om det vanntette sjiktet i gulvet er utført med tilstrekkelig oppkant mot alle våtrommets vegger for å kompensere for lite fall mot sluket.
- Vanntett sjikt / membran i gulv og vegger: Vanntett sjikt har en alder som tilsier at fremtidig funksjon er usikker.
- Tettesjiktets tilslutning til sluk: Tettesjiktet er ikke klemt under klemringen, men er ført på oversiden.
- Ventilasjon: Våtrommet har kun naturlig ventilasjon.
Kjøkken - Boligens eldre del :
- Ventilator: Det er ikke installert kjøkkenventilator, og avtrekket vurderes derfor som ikke tilfredsstillende.
Tekniske anlegg - Boligen og annekset:
- Varmtvannsbereder: På bakgrunn av berederens alder vurderes det at fremtidig funksjon er usikker.
Krypkjeller (innvendig inspeksjon) - Gamlestua:
- Helhetsvurdering: Det er valgt å vurdere krypkjelleren (og tilhørende/omliggende bygningsdeler) med en samlet helhetsvurdering. Følgende hovedmomenter er lagt til grunn for vurderingen: Krypkjelleren har ingen tilkomst-/inspeksjonsmulighet. Trebjelkelag mot krypkjellere er en konstruksjonstype som erfaringsmessig har forhøyet risiko for fuktskader. Den manglende inspeksjonsmuligheten medfører usikkerhet knyttet til konstruksjonens oppbygning og tekniske tilstand, og innebærer risiko for eventuelle skjulte skader, noe som underbygges av opplysninger som er gitt i punkt "Drenering".
Balkonger:
- Membraner og vanntett sjikt: Balkongen utgjør tettesjiktet mot underliggende areal. Tettesjiktet (asfaltpapp) har en alder som tilsier at fremtidig funksjon er usikker.
Yttervegger inkl. fasader:
- Ytterkledning (fasademateriale, vannbord, utvendig listverk, o.l.): Det er stedvis lav/ingen klaring mellom ytterkledningen og vannbord under vinduer, samt mellom ytterkledningen og vannbordene over grunnmuren på den eldre delen av bygningen.
- Lufting av ytterkledning: Det er ikke etablert spalte for lufting og drenering bak ytterkledningen.
Vinduer og ytterdører:
- Vinduer og omramming: Enkelte vinduer som er av eldre årgang bærer preg av slitasje/elde. Det er ikke observert skader av større betydning, men basert på tilstanden bør jevnlig ettersyn og vedlikehold påregnes.
Yttertak:
- Tekking (med tilhørende beslag): Taket er kun inspisert fra bakkenivå og stigetrinn som ligger på taket, med den begrensning dette innebærer. Taksteinen viser tegn til slitasje/elde og har mindre overflateskader. Det registreres i tillegg enkelte knekte takstein, noe som medfører økt fuktbelastning på underliggende bygningsdeler (undertaket). Taksteinen har nådd en alder og tilstand der fremtidig funksjon vurderes som usikker.
- Undertak (inkluderer sløyfer, lekter og innfestninger): Tilbyggets undertak (inkluderer sløyfer, lekter, innfestninger og lignende) med tilhørende komponenter har en alder som tilsier at fremtidig funksjon er usikker.
- Takrenner og utvendige nedløp: To av taknedløpene fra yttertaket på sørsiden av bygningen er avsluttet like under takfoten.
Terrasse / platting - Inngangsparti/terrasse :
- Konstruksjon og fundamenter: Det er observert tegn til skjevheter i inngangspartiet/terrassens konstruksjon, noe som kan indikere setninger eller svakheter i fundamenteringen.
Terrasse / platting - Platting :
- Konstruksjon og fundamenter: Nedre del av plattingens trekonstruksjon ligger i direkte kontakt med terrenget.
Grunnmur, fundament:
- Grunnmur og fundament: Det har tidligere oppstått en sprekk i betongen ved trappen i overgangen mellom boligens eldre del og tilbygget, noe som kan indikere setninger. Se punkt 17 i egenerklæringen. Ifølge eier er det ikke observert noen utvikling de siste 20 årene. Sprekken er nylig lokalt utbedret. Foreslått tiltak er videre overvåking for å kunne fastslå om forholdet har stabilisert seg, eller om det kan noen utvikling.
Andre byggverk - Anneks - (andre forhold utover det som er nevnt tidligere i rapporten) :
- Veggkonstruksjon og fasadematerialer: Det er registrert råteskade på drivhusets forkantbord (trekledning). Foreslått tiltak er lokal utskifting av skadet treverk.
- Yttertak og takkonstruksjon: Taksteinen viser tegn til slitasje/elde og har mindre overflateskader. Det registreres i tillegg enkelte knekte takstein, noe som medfører økt fuktbelastning på underliggende bygningsdeler (undertaket). Taksteinen har nådd en alder og tilstand der fremtidig funksjon vurderes som usikker.
Andre byggverk - Carport med bod:
- Yttertak og takkonstruksjon: Taksteinen viser tegn til slitasje/elde og har mindre overflateskader. Taksteinen har nådd en alder og tilstand hvor fremtidig funksjon vurderes som usikker. Undertaket har tilsvarende oppnådd en alder hvor fremtidig funksjon er usikker (undertaket er skjult).
Våtrom - Bad, Annekset :
- Ventilasjon: Våtrommet har kun naturlig ventilasjon.
Kjøkken - Annekset:
- Vannrør: Det er ikke montert automatisk vannstopper, noe som vurderes å være et krav i dette tilfellet.
- Ventilator: Det er ikke installert kjøkkenventilator, og avtrekket vurderes derfor som ikke tilfredsstillende.
Se supplerende tekst i tilstandsrapporten om bygningsdelene. Kjøper overtar ansvar og risiko for dette.
Tilstandsrapporten er inntatt i salgsoppgaven. Rapporten inneholder informasjon om avvikene og konsekvensen av disse. For avvik som er gitt TG3 har den bygningssakkyndige i tillegg gitt et anslag på hva det vil koste å utbedre disse avvikene. Ettersom kjøper regnes å være kjent med forhold som tydelig fremgår av tilstandsrapporten, oppfordres du til å sette deg grundig inn i rapporten i sin helhet.
Standard
Velkommen til Engelund, en særpreget og gjennomført eiendom utviklet som et helhetlig tun med flere bygninger, frodig hage og en tydelig forankring i økologisk byggeskikk. Eiendommen fremstår som et resultat av langsiktig arbeid og bevisste valg, hvor både bolig, uteområder og materialbruk er tilpasset naturen og omgivelsene.
Tunet består av hovedhus, uthus, dobbel carport med bod og eget hønsehus, og gir en variert og fleksibel eiendom med mange bruksområder. Her er det lagt til rette for både familieliv, hobby og dyrking med en fantastisk beliggenhet.
Hovedhuset kombinerer en mindre del eldre bygningsmasse med et stort tilbygg fra rundt år 2000, og har en gjennomtenkt planløsning over to etasjer. I 1. etasje finner du entré, gang, to bad, vaskerom og teknisk rom, to kjøkken, spisestue, to stuer og to soverom. I 2. etasje er det loftstue, gang, bod og to soverom. Boligen har flere oppholdsrom og funksjoner som gir gode muligheter for fleksibel bruk, enten man ønsker separate soner, plass til flere generasjoner eller rom for hjemmekontor og gjester.
Materialvalg og utførelse bærer preg av solid håndverk og bruk av naturlige materialer som tre, stein og tegl. Overflater består blant annet av heltre gulv, synlig tømmer og panel, noe som gir en lun og varm atmosfære. Oppvarming skjer via vannbåren gulvvarme, luft til vann varmepumpe fra 2024 og vedfyring, hvor en sentralt plassert masseovn bidrar til jevn varme i boligen.
Uthuset er oppført i senere tid og inneholder 2 hobbyrom, te-kjøkken, dusjrom og badstue, samt tilknyttet veksthus. Dette gir gode muligheter for gjester, arbeid eller fritidsaktiviteter. Dobbel carport med bod og eget hønsehus kompletterer tunet og understøtter eiendommens helhetlige preg.
Uteområdene er spesielt gjennomarbeidet, med en stor og variert hage som er utviklet over tid. Her finner du dyrkingsarealer, veksthus, frukttrær og bærbusker, samt flere hyggelige oppholdsplasser. Eiendommen har også egen brønn til utebruk og gode forhold for videre hagearbeid og dyrking.
Beliggenheten er landlig og rolig, med vid utsikt mot Mjøsa og omkringliggende kulturlandskap. Samtidig er det kort vei til Hamar og nødvendige servicetilbud, noe som gir en god balanse mellom det skjermede og det praktiske.
Eiendommen er som nevnt utviklet etter prinsipper for økologisk byggeskikk, med bevisst bruk av naturlige og miljøvennlige materialer. Hovedhuset, inkludert tilbygg fra rundt 2000, er arkitekttegnet med fokus på samspill med terrenget, gode lysforhold og energieffektive løsninger. Det er benyttet blant annet treverk fra lokale sagbruk, gjenbrukstegl på tak og naturstein fra området, noe som gir boligen et solid og varig preg. Bygningene er oppført med konstruksjoner som ivaretar et godt inneklima, med pustende materialer og naturlig ventilasjon. Samtidig er det lagt vekt på energiløsninger som vannbåren varme, varmepumpe og vedfyring, som samlet gir en bolig tilpasset både mennesker og omgivelser på en bærekraftig måte.
Dette er en eiendom med særpreg og mange kvaliteter, hvor både bygninger og uteområder er utviklet med omtanke. Her ligger det til rette for et variert og innholdsrikt liv, med nærhet til naturen og gode muligheter for å videreføre det arbeidet som allerede er lagt ned.
Løsøre og tilbehør
Vi viser til liste fra Norges Eiendomsmeglerforbund som gjelder fra 01.01.2020 angående løsøre og tilbehør.
Selger opplyser om at følgende hvitevarer følger med:
Fryseboks, oppvaskmaskin og to komfyrer (den ene med defekt undervarme/ varmluft).
Oppvarming
Oppvarming av boligen skjer gjennom en kombinasjon av vannbåren gulvvarme tilkoblet varmesentral (luft-til-vann-varmepumpe) og plassbygd vedovn/lukket peis med to brennkamre i stue/spisestue. Brennkammeret som vender mot spisestuen bidrar også til oppvarming av det vannbårne systemet når det fyres med ved. I tillegg er det vedovn i loftstua i tilbygget, samt en vedovn i stuen i boligens eldre del. Boligen benytter også elektrisk oppvarming i form av panelovner.
Selger opplyser om følgende:
Det ble installert en luft-til-vann varmepumpe i 2024. Den går inn i eksisterende gulvvarme-system og bidrar også til oppvarming av varmtvann. Varmepumpen har bidratt til anslagsvis 40 % redusert strømforbruk de to årene den har vært i drift.
Dersom beboelsesrom ikke har vegg- eller fastmonterte varmekilder ved visning, følger dette heller ikke med.
Selger har avtalt Norgespris på strøm på eiendommen t.o.m 31.12.2026, og denne er pt på kr 50 øre inkl mva. Nettleie, avgifter og påslag fra kraftleverandøren kommer i tillegg. Er det fjernvarme vil det også komme kostnader i tillegg.
Denne avtalen vil følge eiendommen i den avtalte perioden.
Les mer om Norgespris her: https://www.regjeringen.no/no/aktuelt/legg-fram-lov-om-norgespris-pa-straum-og-fjernvarme/id3102642/
Ferdigattest/brukstillatelse
Etter info fra selger har den eldste delen av eiendommen vært brukt til boligformål siden slutten av 1800-tallet.
Kommunen opplyser at det ikke foreligger ferdigattest eller midlertidig brukstillatelse for den eldste delen av boligen. Det finnes av den grunn ikke dokumentasjon over denne del av eiendommens lovlighet. Kjøper overtar eiendommen slik den fremstår på visning med risiko og ansvaret for eventuelle pålegg fra kommunen og kostnader forbundet med dette.
Det foreligger ferdigattest for tilbygg til boligen, altså det som benyttes som selve hovedhuset. Denne er datert 22.12.2000.
Det foreligger ferdigattest for bruksendring av loft til oppholdsrom datert 20.02.2026.
Det foreligger ferdigattest for riving av gammelt uthus og oppføring av nytt uthus datert 27.10.2025.
Rommene i uthuset er ikke godkjent til varig opphold. Innredning av rommene til bruk for varig opphold er ikke bruksendret/omsøkt og er heller ikke godkjent av kommunen. Konsekvensen ved søknad kan være at rommet ikke godkjennes som varig opphold og at rommet da må brukes som det de opprinnelig er byggemeldt som.
Kjøper overtar alt ansvar, kostnad og risiko for dette videre.
Tinglyste heftelser og rettigheter
Eiendommen overdras fri for pengeheftelser.
Det er tinglyst følgende servitutter på eiendommen:
Dagboknr 1777, tinglyst 09.03.1982, type heftelse: Bestemmelse om adkomstrett.
Dagboknr 7239, tinglyst 12.09.1988, type heftelse: Bestemmelse om adkomstrett.
Begge disse omhandler rett til adkomst over eiendommen til Wetten gård Gnr 756, Bnr 1. Vedlikehold av veien påhviler eier av Gnr 756, Bnr 5.
Servituttene vil følge eiendommen. Kjøpers bank vil få prioritet etter ovennevnte heftelser og servitutter.
Eventuell adgang til utleie
Eiendommen har ikke separat utleieenhet. Det vil normalt være anledning til utleie av hele eiendommen eller enkeltrom, såfremt utleiearealet er bygningsmessig godkjent for varig opphold og har forsvarlige radonnivåer.
Diverse
Tilbud av produkter og tjenester fra våre samarbeidspartnere
Vi er opptatt av verdiskapning, og har knyttet til oss samarbeidspartnere som skal sikre våre kunder de beste produkter og tjenester;
• Gjensidige leverer boligselgerforsikring og tilbyr bygningsforsikring
• Boligkjøperforsikring leveres av Hiscox og med Sedgwick som skadebehandler, og er formidlet gjennom Gjensidige.
• BN bank tilbyr finansieringsløsninger
• Vår avdeling Krogsveen Pluss tilbyr flyttetjenester som utvask, visningsvask, lager, tømming og transport av flyttelass, i tillegg til å formidle kontakt med Flip for overflateoppussing.
• I forbindelse med overtagelse av eiendommen tilbyr Overo avtale om strøm, alarm og bredbånd.
• Krogsveen er, sammen med øvrige bransjeaktører, medeier i den digitale annonseringsplattformen Hjem.
Beliggenhet og tomteforhold
Beliggenhet og tomteforhold
Beliggenhet
Landlig og svært god beliggenhet på Jessnes med vidstrakt utsyn over Mjøsa og omkringliggende områder.
Området har mye å by på, med flotte tur og rekreasjonsmuligheter, og kort vei til Furuberget og Frøbergsberget. Gangavstand ned til Jessnesstranda. Jessnesstranda er godt utbygget med bl.a. sandstrand, lekeplass og båthavn. Fra Jessnesstranda går det en idyllisk turvei langs Mjøsa hele veien inn til Hamar by via både Jernbanemuséet og Domkirkeodden. Fra eiendommen er det kun ca. 8 min med bil til Hamar sentrum.
Adkomst
Fra krysset Aluvegen/Vognvegen ved Joker Ajer. Følg Aluvegen oppover. Helt i toppen av bakken splittes veien i to. Til venstre går Jessnesvegen og til høyre går Kårtorpvegen. Ta til venstre inn Jessnesvegen. Følg denne i ca. 3,5 km, og ta så til venstre krysset, og deretter andre vei til høyre. Boligen ligger på høyre side i enden av veien.
Det vil bli skiltet med Krogsveen visningsskilt ved fellesvisninger.
Barnehager, skoler og fritid
Furnes barnehage (0-5 år) - 3.4 km
Kirkenær skole (1.-7. kl.) - 1.3 km
Furnes ungdomsskole (8.-10. kl.) - 3.6 km
Hamar katedralskole (Vgs.)- 5.2 km
Informasjon om tilhørende skolekretser er hentet fra Prognosesenteret som dataleverandør, og tilhørigheten kan årlig endres av kommunen. Dersom skole- og barnehagetilbud er av betydning for kjøpet, ber vi om at det rettes en særskilt henvendelse til kommunen for oppdatert informasjon.
Beskrivelse av tomt
Eiertomt på 2 358 kvm som fremstår som en gjennomarbeidet og levende hage, utviklet over tid med stor omtanke. Eiendommen er pent opparbeidet med gårdsplass i grus og belegningsstein, steinheller og natursteinsmurer som gir et solid og helhetlig uttrykk. Tomten byr på gode plenarealer, flere lune oppholdsplasser og et rikt innslag av beplantninger. Her finner du både dyrkingsarealer, veksthus, frukttrær og bærbusker, som gir gode muligheter for hagearbeid og egen produksjon. Uteområdet oppleves variert og frodig, med en naturlig sammenheng mellom bygninger og hage som skaper et trivelig og funksjonelt tun.
Parkering
Parkering i carport, samt parkeringsmuligheter på gårdsplass.
Vei, vann og avløp
Eiendommen har adkomst via privat vei med felles vedlikeholdsansvar.
Eiendommen er tilknyttet kommunalt ledningsnett via private stikkledninger. Eier er selv ansvarlig for private stikkledninger til boligen.
Regulerings-og arealplaner
Eiendommen er underlagt kommuneplanens arealdel 2025-2040 med arealbruk bestemt til boligbebyggelse. Planen er datert 22.10.2025.
Utsnitt av plan med tilhørende bestemmelser kan fås ved henvendelse til megler.
Økonomi
Økonomi
Kommunale utgifter
Kommunale avgifter var kr 20 698,- for 2025. I dette inngår gebyr for vann, avløp, renovasjon og feiing/tilsyn. Det tas forbehold om at kommunen kan justere gebyrene i løpet av året.
Eiendomsskatten er kr 5 768,- for inneværende år.
Nåværende eier har et strømforbruk som tilsvarer ca. kr 30 000,- pr. år. / 18 000 kwh. pr. år.
Boligen har en årlig forsikringspremie på kr 8 000,-.
Boligen er tilknyttet Telenor som leverandør av trådløst bredbånd. Selger opplyser at fibertilknytning er lagt klar ved eiendomsgrense.
Eiendommen har privat brøyting med en årlig kostnad på ca. kr 2 500,-.
Utgiftene er basert på nåværende eiers forbruk og avtaler.
Selger har avtalt Norgespris på strøm på eiendommen t.o.m 31.12.2026, og denne er pt på kr 50 øre inkl mva. Nettleie, avgifter og påslag fra kraftleverandøren kommer i tillegg. Er det fjernvarme vil det også komme kostnader i tillegg.
Denne avtalen vil følge eiendommen i den avtalte perioden.
Les mer om Norgespris her: https://www.regjeringen.no/no/aktuelt/legg-fram-lov-om-norgespris-pa-straum-og-fjernvarme/id3102642/
Formuesverdi
Formuesverdi for 2024 var kr 913 099,- ifølge Skatteetaten. Beløpet forutsetter at eier bor fast i boligen (primærbolig).
Ved eventuell øvrig bruk av eiendommen (f.eks. fritidsbolig, pendlerbolig, utleieobjekt) var formuesverdien for 2024 kr 3 652 395,-.
Fra 2026 har Stortinget vedtatt en oppdatert modell for beregning av formuesverdi for primærbolig, så avvik kan forekomme.
For mer informasjon se skatteetaten.no
Omkostninger
7 900 000,00 Prisantydning
Omkostninger
197 500,00 Dokumentavgift til staten (2,5% av kjøpesum)
19 900,00 Gjensidige Boligkjøperpakke* (valgfritt)
545,00 Tinglysing panterettsdokument
545,00 Tinglysing skjøte
--------------------------------------------------------
198 590,00 Omkostninger totalt (uten Gjensidige Boligkjøperpakke)
218 490,00 Omkostninger totalt (med Gjensidige Boligkjøperpakke)
--------------------------------------------------------
8 098 590,00 Totalpris inkl. omkostninger
8 118 490,00 Totalpris inkl. omkostninger (med Gjensidige Boligkjøperpakke)
--------------------------------------------------------
Totalpris inkl. omkostninger forutsetter kjøp til prisantydning.
Det tas forbehold om endringer i avgifter og gebyrer.
Tilbud om lånefinansiering
Megler formidler gjerne kontakt med rådgiver hos vår samarbeidspartner BN Bank. De har konkurransedyktige betingelser samt rask og løsningsorientert behandling av din lånesøknad. Krogsveen mottar et honorar dersom lån opprettes.
Betalingsbetingelser
Kjøpesum inkludert omkostninger, samt pantedokument tilknyttet eventuelt lån, skal være disponibelt hos megler 2 virkedager før overtagelsen.
Annen viktig informasjon
Annen viktig informasjon
Eier
Bente Booth Hugo og Einar Graff Hugo
Overtakelse
Etter nærmere avtale.
Boligselgerforsikring
Selger har i forbindelse med salget tegnet boligselgerforsikring levert av Gjensidige.
Boligselgerforsikringen dekker selgers ansvar etter avhendingsloven begrenset oppad til kr 14 millioner. Dersom kjøper oppdager forhold ved eiendommen som hen mener utgjør en mangel ved eiendommen, vil Gjensidige behandle reklamasjonen på vegne av selger. Forsikringsvilkår kan fås ved henvendelse til megler.
Vedlagt salgsoppgaven følger selgers egenerklæringsskjema og tilstandsrapport. Interessenter må sette seg inn i dokumentene før bud inngis.
Boligkjøperforsikring
Innen kontraktsmøtet må kjøper ta stilling til om det ønskes å bestille Boligkjøperpakken gjennom Gjensidige. I denne gunstige pakken er boligen ferdig forsikret og inkluderer rettshjelpsforsikring, også kalt Boligkjøperforsikring. Rettshjelpsforsikring gir trygghet og tilgang på profesjonell juridisk hjelp dersom det oppdages uventede feil eller mangler det første året etter overtagelse. Forsikringsselskapet behandler i så fall ethvert mangelskrav kjøper måtte ha overfor selger.
Boligkjøperpakken inkluderer bygningsforsikring for hus og hytte, innboforsikring, flytteforsikring og dobbel rentedekning - i situasjoner hvor kjøper ikke får solgt nåværende primærbolig.
Kjøper mottar ingen særskilt faktura for Boligkjøperpakken da kostnaden det første året legges til kjøpesummen for boligen. Det gjøres oppmerksom på Krogsveen mottar et honorar for denne formidlingen.
Produktark for Boligkjøperpakken ligger vedlagt i salgsoppgaven.
Dersom ikke boligkjøperpakke ønskes kan kun rettshjelpsforsikring, også kalt boligkjøperforsikring, tegnes særskilt via megler. Rettshjelpsforsikringen varer i 5 år fra overtagelse og leveres gjennom Gjensidige. Ta kontakt med megler for ytterligere informasjon.
Selskap og privatpersoner som driver med kjøp/salg/utvikling som ledd i egen næringsvirksomhet kan ikke tegne boligkjøperpakke eller rettshjelpsforsikring.
Budgivning
Forbrukerinformasjon om budgivning er vedlagt denne salgsoppgaven og er også på vår hjemmeside Krogsveen.no. Alle bud og budforhøyelser må inngis skriftlig. I tillegg må legitimasjon være fremlagt sammen med signatur fra budgiver.
Vi oppfordrer til å gi bud elektronisk via GI BUD-knappen på eiendommens hjemmeside på Krogsveen.no. Da vil samtlige vilkår bli oppfylt.
Eventuelle forhøyelser eller endringer av budet kan bekreftes pr SMS eller på e-post. Vi oppfordrer alltid til å kontakte megler pr. telefon i tillegg da forsinkelser i SMS og e-post kan forekomme.
For at budene skal kunne bli behandlet og videreformidlet skriftlig til alle involverte parter, må alle bud ha en tilstrekkelig lang akseptfrist, jf. eiendomsmeglingsforskriften § 6-3.
Selger må også skriftlig akseptere budet før aksept kan formidles til budgiver. Akseptfrist bør derfor være på minimum 30 minutter, og budforhøyelser må derfor skje i god tid før fristens utløp.
Bud i forbrukerforhold kan uansett ikke settes med kortere frist enn kl. 12.00 første virkedag etter siste annonserte visning. I tillegg kan ikke budet ha forbehold om at det skal holdes hemmelig ovenfor øvrige interessenter. Megler har iht lov om eiendomsmegling ikke anledning til å videreformidle disse budene, og de vil dermed heller ikke bli journalført.
Etter at eiendommen er solgt vil kjøper og selger få tilsendt budjournal. Øvrige budgivere kan få utlevert kopi av budjournalen i anonymisert form.
Hvitvaskingsreglene
I henhold til lov om hvitvasking og terrorfinansiering har megler plikt til å gjennomføre kontrolltiltak overfor kunder, herunder fullmektiger. Dette innebærer bl.a. å bekrefte kunders og reelle rettighetshaveres identitet på bakgrunn av fremvist gyldig legitimasjon eller på annen godkjent måte, samt å innhente opplysninger om kundeforholdets formål og tilsiktede art.
Dersom slike kundetiltak ikke kan gjennomføres, kan megler ikke etablere kundeforholdet eller utføre transaksjonen.
Hvis kjøper ikke bidrar til gjennomføring av kundekontrollen og dette fører til at transaksjonen blir forsinket eller ikke kan gjennomføres, vil dette ansees som mislighold av avtalen og gi selger rettigheter etter avhendingslova kapittel 5. I tilfeller der selger ikke bidrar til gjennomføring av løpende kundekontroll underveis i oppdraget, er det selger som misligholder sine forpliktelser etter avtalen og gi kjøper rettigheter etter avhendingslovens kapittel 4. Partene er selv ansvarlige for eventuelle kostnader og ansvar dette kan medføre. Eiendomsmegleren eller eiendomsmeglingsforetaket kan ikke holdes ansvarlig for de konsekvenser dette vil kunne få for partene eller andre som har interesser i eiendomshandelen.
Kjøper oppfordres til å innbetale kjøpesummen som ikke kommer fra låneinstitusjon i én samlet innbetaling fra egen konto i norsk bank. Megler har plikt til å melde fra til Økokrim om eiendomshandler som fremstår som mistenkelige. Melding sendes Økokrim uten at partene varsles.
Personopplysningsloven
I henhold til personopplysningsloven gjør vi oppmerksom på at interessenter kan bli registrert for videre oppfølging.
Lovanvendelse
Generelle bestemmelser
Salgsoppgaven er basert på de opplysningene selger har gitt til megler, den bygningssakyndiges tilstandsrapport, samt opplysninger innhentet fra kommunen, Kartverket og andre tilgjengelige kilder. Det er viktig at kjøper setter seg grundig inn i alle salgsdokumentene, herunder salgsoppgave, tilstandsrapport og selgers egenerklæring. Kjøper anses kjent med forhold som er tydelig beskrevet i salgsdokumentene, og slike forhold kan ikke påberopes som mangler. Dette gjelder uavhengig av om kjøper har lest dokumentene. Alle interessenter oppfordres til å undersøke eiendommen nøye, gjerne sammen med fagkyndig før bud inngis. Kjøper som velger å kjøpe usett kan ikke gjøre gjeldende som mangel noe han burde blitt kjent med ved undersøkelsen.
Dersom det er behov for avklaringer, anbefaler vi at interessenter rådfører seg med eiendomsmegler eller egne rådgivere før det legges inn bud.
En bolig som har blitt brukt i en viss tid, har vanligvis blitt utsatt for slitasje og skader kan ha oppstått. Slik bruksslitasje må kjøper regne med, og det kan avdekkes enkelte forhold etter overtakelse som nødvendiggjør utbedringer. Normal slitasje og skader som nødvendiggjør utbedring, er innenfor hva kjøper må forvente og vil ikke utgjøre en mangel.
Kjøper og selgers rettigheter og plikter reguleres av avtalen mellom partene, samt informasjonen som har vært tilgjengelig for kjøperen i forbindelse med handelen. Avtalen utfylles av avhendingsloven, og det gjelder ulike avtalevilkår avhengig av om kjøper er forbrukerkjøper eller ikke. Dette er nærmere beskrevet nedenfor.
På grunn av ulike avtalevilkår kan selger vurdere bud fra en som ikke er forbruker, ulikt fra en forbrukers bud. Dersom kjøper ikke er forbruker, er selger sitt mulige mangelsansvar begrenset fordi eiendommen selges "som den er". Selger kan ikke ta «som den er»- forbehold overfor en forbrukerkjøper. Selv et lavere bud fra en som ikke er forbruker kan foretrekkes fordi begrensningen i mulig mangelsansvar kan ha egenverdi for selger. Selger står fritt til å forkaste eller akseptere ethvert bud, og er for eksempel ikke forpliktet til å akseptere høyeste bud.
Budgiver skal i budskjema avgi egenerklæring om budgiver er forbruker eller næringsdrivende/ person som hovedsakelig handler som ledd i næringsvirksomhet. Budgivere får informasjon dersom andre bud er inngitt av en som ikke er forbruker.
Forbrukerkjøp - definisjon
Med forbrukerkjøp menes kjøp av eiendom når kjøperen er en fysisk person som ikke hovedsakelig handler som ledd i næringsvirksomhet.
Forbruker – avtalevilkår
Eiendommen har en mangel dersom den ikke er i samsvar med kravene som følger av avtalen, eller det foreligger brudd på bestemmelsene i avhendingsloven §§ 3-2 til 3-8. Hvis eiendommen ikke er i samsvar med det kjøperen må kunne forvente ut ifra alder, type og synlig tilstand, kan det være grunnlag for mangelskrav. Det samme gjelder hvis det er holdt tilbake eller gitt uriktige opplysninger om eiendommen. Dette gjelder likevel bare dersom man kan gå ut ifra at det virket inn på avtalen at opplysningen ikke ble gitt eller at mangelskravet ikke blir rettet i tide på en tydelig måte.
Boligen kan ha en mangel etter avhendingsloven § 3-3 andre ledd, dersom det er avvik mellom opplyst og faktisk innvendig areal, forutsatt at avviket er på 2% eller mer og minimum 1 kvm.
Ved beregning av et eventuelt prisavslag eller erstatning må kjøper selv dekke tap/kostnader opptil et beløp på kr 10 000 (egenandel).
Ikke-forbruker (næringsdrivende) – definisjon
Hvis kjøper er en juridisk person, eller en fysisk person som hovedsakelig handler som ledd i næringsvirksomhet, vil kjøpet ikke anses som et forbrukerkjøp.
Ikke-forbruker – avtalevilkår
Eiendommen har en mangel dersom den ikke er i samsvar med kravene som følger av avtalen.
Eiendommen selges «som den er», og selgers ansvar utover det konkret avtalte er da begrenset etter avhendingsloven § 3-9, første ledd andre setning.
Avhendingsloven § 3-3 andre ledd fravikes, og hvorvidt boligens arealsvikt utgjør en mangel vurderes etter avhendingsloven § 3-8.
Informasjon om kjøpers undersøkelsesplikt, herunder oppfordringen om å undersøke eiendommen nøye, gjelder også for kjøpere som ikke anses som forbrukere.
Det forutsettes at hjemmel overføres til kjøper. Hvis kjøper ikke ønsker hjemmelsoverføring av eiendommen, må det tas forbehold om dette i budet.
Meglers vederlag
Meglers vederlag betales av selger og er avtalt til:
Vederlag: 1,00 % av salgssummen inkl. eventuell fellesgjeld. Minimumsprovisjon er kr 60 000,00
Vederlag:
Kontroll av hjemmel og heftelser kr 2 900,00
Markedsføringspakke kr 29 900,00
Oppgjør kr 7 500,00
Salgsoppgaver vanlige kr 3 600,00
Tilrettelegging kr 17 000,00
Visninger kr 4 000,00
Utlegg:
Innhenting av offentlig opplysninger Legalpant Ringsaker kr 652,00
Innhenting av offentlig opplysninger Ringsaker kommune kr 3 991,00
Innhenting av offentlig opplysninger, byggetegninger Ringsaker kr 1 020,00
Tinglysing sikring kr 545,00
Andre utgifter:
AX tilstandsrapport enebolig kr 20 625,00
Boligselgerforsikring Gjensidige Eiet - regnes av prisantydning kr 45 109,00
Boligstyling/rådgivning kr 1 500,00
Foto - 30 bilder - drone kr 6 363,00
Foto - 5 bilder - Kveldsfoto. kr 4 088,00
Vi er opptatt av verdiskapning, og har knyttet til oss samarbeidspartnere som skal sikre våre kunder de beste produkter og tjenester;
• I forbindelse med forberedelse av salget, innhenter vi informasjon om eiendommen hovedsakelig fra vår samarbeidspartner Ambita.
• Gjensidige leverer boligselgerforsikring og tilbyr bygningsforsikring
• Boligkjøperforsikring leveres av Hiscox og med Sedgwick som skadebehandler, og er formidlet gjennom Gjensidige.
• BN bank tilbyr finansieringsløsninger
• Vår avdeling Krogsveen Pluss tilbyr flyttetjenester som utvask, visningsvask, lager, tømming og transport av flyttelass, i tillegg til å formidle kontakt med Flip for overflateoppussing.
• I forbindelse med overtagelse av eiendommen tilbyr Overo avtale om strøm, alarm og bredbånd.
• Krogsveen er, sammen med øvrige bransjeaktører, medeier i den digitale annonseringsplattformen Hjem som eies av Bomega AS.
Opplysninger om oppdraget
Oppdragsnummer 65-0299/25
Eiendomsmegler Krogsveen AS, avd. Hamar
Strandgata 31, 2308, HAMAR
950 007 613
Oppdragets KR-kode KR65.25299
Dato
Sist oppdatert: 30. april 2026 kl. 13:46
Dokumenter
Dokumenter
PDF – 970 KB
PDF – 169 KB
PDF – 226 KB
PDF – 254 KB
PDF – 672 KB
PDF – 283 KB
PDF – 471 KB
PDF – 567 KB
PDF – 943 KB
PDF – 312 KB
PDF – 29 KB
PDF – 127 KB
PDF – 392 KB
Område
Legg til steder som er viktige for deg
Visning
For å delta på visning, ber vi om at du melder deg på. Da sikrer vi at du får nødvendig informasjon og at det er satt av tilstrekkelig med tid. Husk å lese salgsoppgaven før visningen, så du stiller forberedt.
Ønsker du kun å bli holdt orientert, kan du fra eiendommens hjemmeside få varsel om solgtpris, eller kontakte megler.
Lurer du på noe?
Unngå doble boligrenter
Vi tilbyr gunstig forsikring.
Vurderer du utleie?
Få et tilbud fra Utleie KrogsveenHva koster lånet?
Sjekk estimert lånekostnadVil du varsles om lignende boliger?
Ved å lagre ditt boligsøk hos oss får du beskjed når vi har en bolig som ligner denne, før den legges ut på markedet!

























































