Skøyenåsveien 21
3 900 000 kr
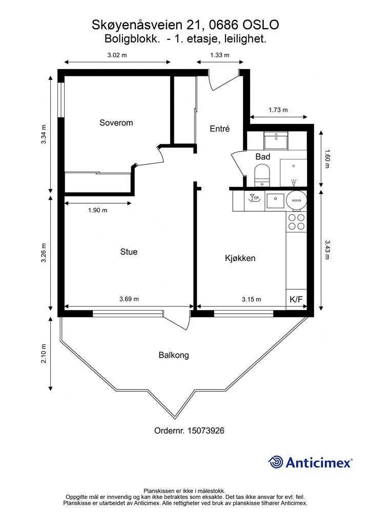
44 m²
1 soverom
Solgt
Oppsal
Moderne leilighet i høy 1. etg. | Stor og usjenert balkong | Fyr. inkl. | Pent kjøkken m/ spiseplass | Super beliggenhet
Prisantydning
3 900 000 krAndel fellesgjeld
59 000 krOmkostninger
19 252 krTotalpris
3 978 252 kr
Pris
Bruksareal
47 m²BRA-I (internt bruksareal)
44 m²BRA-E (eksternt bruksareal)
3 m²TBA (terrasse-balkongareal)
10 m²
Areal
Etasje
1Byggeår
1955Soverom
1 soveromBad
1 badType
AndelsleilighetEierform
AndelFasiliteter
Balkong/TerrasseFellesutgifter
3 091 krEnergimerke
Grønn G
Nøkkelinfo
Unngå doble boligrenter
Vi tilbyr gunstig forsikring.
Vurderer du utleie?
Få et tilbud fra Utleie KrogsveenHva koster lånet?
Sjekk estimert lånekostnadDette liker selger best ved boligen
God planløsning, flott utsikt over 180 grader, utsikt mot Holmenkollen og Ekebergåsen. Rolig blokk og trygt nabolag. Romslig kjøkken med plass til egen sitteplass.
Beskrivelse
Kort om eiendommen
Velkommen til Skøyenåsveien 21!
Denne leiligheten ligger supert til både i borettslaget og i blokken. Den høye 1. etasjen sørger for at leiligheten har tilnærmet ingen innsyn, samtidig som balkongen ligger godt over bakken og har idyllisk utsyn mot grøntområder. Boligen holder en god og moderne standard og arealet er utnyttet effektivt. Et steinkast unna finner du blant annet t-bane, flotte turområder, Oppsal senter.
Verdt å få med seg:
- Velholdt og moderne leilighet
- Perfekt førstegangskjøp
- Usjenert beliggenhet
- Fyring, tv og internett inkludert
- 2 romslige boder
- Stor balkong (vestvendt)
- Nøytralt, flislagt bad
- Romslig kjøkken med moderne innredning
- Veldrevet borettslag og lave kjøpsomkostninger
- Fine fellesområder
Vi sees på visning!
Område
Legg til steder som er viktige for deg
Meglere

Julie Slåtto
Eiendomsmeglerfullmektig MNEF
På flyttefot? Tenk kjøp og salg samtidig.
Få din egen rådgiver gjennom hele kjøps- og salgsprosessen. Det starter med en verdivurdering.
Unngå doble boligrenter
Vi tilbyr gunstig forsikring.
Vurderer du utleie?
Få et tilbud fra Utleie KrogsveenHva koster lånet?
Sjekk estimert lånekostnadVil du varsles om lignende boliger?
Ved å lagre ditt boligsøk hos oss får du beskjed når vi har en bolig som ligner denne, før den legges ut på markedet!



