Edelgranveien 72
5 100 000 kr
100 m²
2 soverom
Solgt

Åsterud // Bekkestua
3(4)-roms endeleilighet med nydelig utsikt og gode solforhold|Garasjeplass og stor terrasse|Rolig|Oppussing m/potensiale
Prisantydning
5 100 000 krAndel fellesgjeld
128 801 krOmkostninger
141 740 krTotalpris
5 370 541 kr
Pris
Bruksareal
104 m²BRA-I (internt bruksareal)
100 m²BRA-E (eksternt bruksareal)
4 m²TBA (terrasse-balkongareal)
19 m²
Areal
Etasje
2Byggeår
1981Soverom
2 soveromBad
1 badType
EierleilighetEierform
EierseksjonFasiliteter
Garasje/P-plass og Balkong/TerrasseFellesutgifter
5 903 krEnergimerke
Rød E
Nøkkelinfo
Unngå doble boligrenter
Vi tilbyr gunstig forsikring.
Vurderer du utleie?
Få et tilbud fra Utleie KrogsveenHva koster lånet?
Sjekk estimert lånekostnadBeskrivelse
Kort om eiendommen
Eiendomsmegler Fredrik Nordstrøm ved Krogsveen Bærum har gleden av å ønske velkommen til Edelgranveien 72 og en stor 3(4)-roms endeleilighet beliggende i rolige og naturskjønne omgivelser nært Bekkestua. Her bor dere tett på naturen med gode turmuligheter, samtidig som det er nærhet til gode servicefasiliteter.
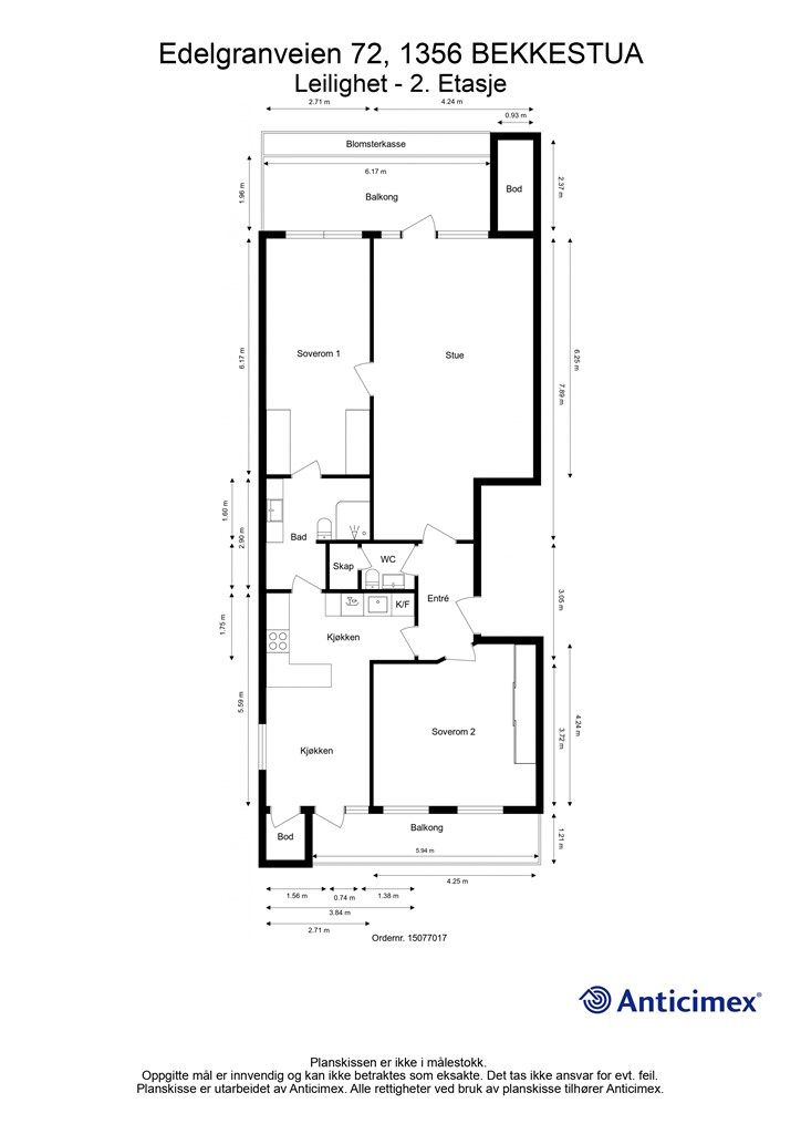
Leiligheten har et generelt oppussingsbehov, og har et stort potensial for dere som ønsker å sette deres eget preg på hjemmet. Leiligheten har en god planløsning bestående av en entre, stue, kjøkken, 2 soverom, bad og toalettrom. I tillegg har leiligheten to flotte balkonger - én nordøstvendt med utgang fra kjøkkenet, og én sydvestvendt med utgang fra stuen. Videre har boligen to romslige boder, samt garasjeplass.
Område
Legg til steder som er viktige for deg
På flyttefot? Tenk kjøp og salg samtidig.
Få din egen rådgiver gjennom hele kjøps- og salgsprosessen. Det starter med en verdivurdering.
Unngå doble boligrenter
Vi tilbyr gunstig forsikring.
Vurderer du utleie?
Få et tilbud fra Utleie KrogsveenHva koster lånet?
Sjekk estimert lånekostnadVil du varsles om lignende boliger?
Ved å lagre ditt boligsøk hos oss får du beskjed når vi har en bolig som ligner denne, før den legges ut på markedet!

