Bjørgebrekken 68
3 690 000 kr
123 m²
2 soverom
Solgt

Presenteres av
Jane Juell OsmoBJØRGE: 3-roms selveier leilighet over 2 plan. |Garasjeplass |2 soverom |fin utsikt fra stuen
Prisantydning
3 690 000 krAndel fellesgjeld
17 892 krOmkostninger
93 760 krTotalpris
3 801 652 kr
Pris
Bruksareal
123 m²BRA-I (internt bruksareal)
123 m²TBA (terrasse-balkongareal)
31 m²
Areal
Etasje
2Byggeår
1990Soverom
2 soveromBad
2 badType
EierleilighetEierform
EierseksjonFasiliteter
Garasje/P-plass og Balkong/TerrasseFellesutgifter
1 766 krEnergimerke
Rød F
Nøkkelinfo
Unngå doble boligrenter
Vi tilbyr gunstig forsikring.
Vurderer du utleie?
Få et tilbud fra Utleie KrogsveenHva koster lånet?
Sjekk estimert lånekostnadBeskrivelse
Kort om eiendommen
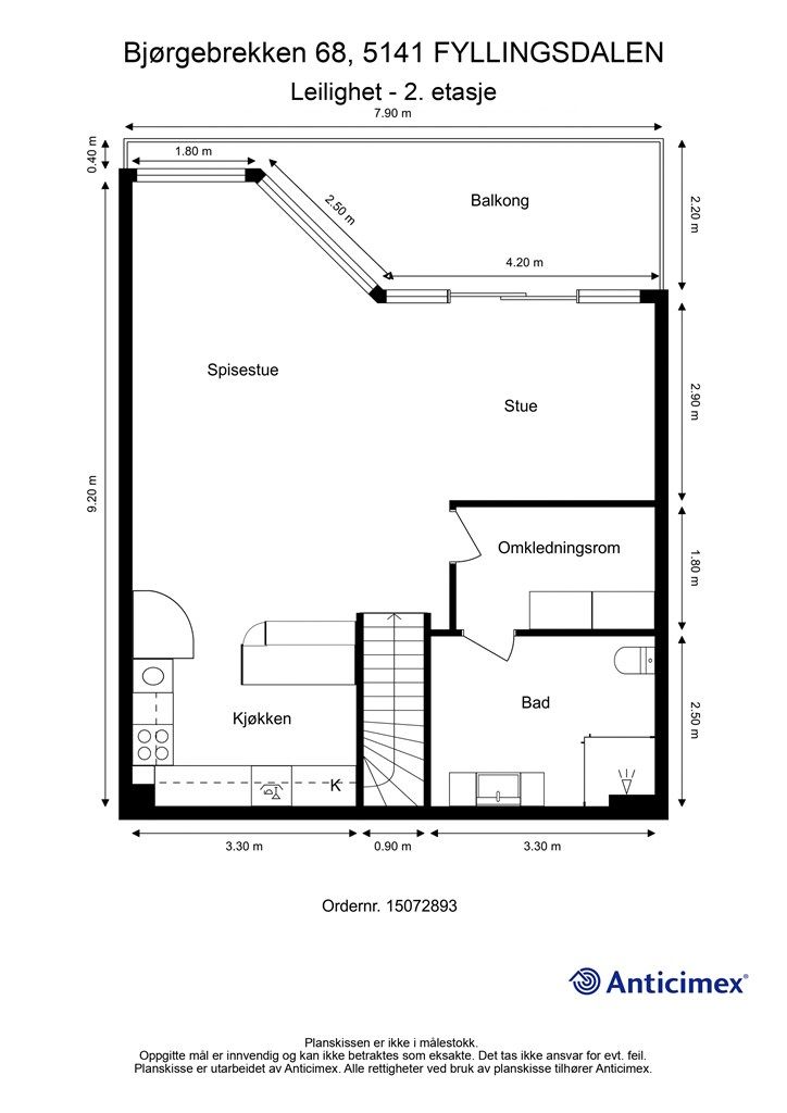
Velkommen til denne innholdsrike leiligheten i Bjørgebrekken 68. Boligen har romslig planløsning fordelt over to etasjer som gir mulighet for å skape et hjem etter egne ønsker og behov. Leiligheten ligger i et etablert boligområde med nærhet til natur og barnevennlige omgivelser.
Høydepunkter:
God planløsning over 2 plan
Fast garasjeplass
Vedovn sentralt i stuen
2 bad
Det er et barnevennlig område som befinner seg i enden av en blindvei med lite trafikk og støy, samt kort vei til lekeplass, barnehage og skole
Meget gode turmuligheter med Knappenfjellet som nabo, Kanadaskogen for turgåing og Gjeddevannet som nærmeste badeplass
Nærhet til offentlig transport
Område
Legg til steder som er viktige for deg
Megler

Jane Juell Osmo
Eiendomsmegler MNEF
På flyttefot? Tenk kjøp og salg samtidig.
Få din egen rådgiver gjennom hele kjøps- og salgsprosessen. Det starter med en verdivurdering.
Unngå doble boligrenter
Vi tilbyr gunstig forsikring.
Vurderer du utleie?
Få et tilbud fra Utleie KrogsveenHva koster lånet?
Sjekk estimert lånekostnadVil du varsles om lignende boliger?
Ved å lagre ditt boligsøk hos oss får du beskjed når vi har en bolig som ligner denne, før den legges ut på markedet!
På flyttefot? Slik gjør vi det enklere for deg
Skreddersydd flyttepakke
Vi fikser håndverkere, vask, pakking, lagring og transport, og legger ut for utgiftene underveis.
Hjelp med både kjøp og salg
Hos oss har du din egen rådgiver gjennom hele kjøps- og salgsprosessen.
Hjelp til finansiering
Vårt samarbeid med BN Bank sikrer deg rask og løsningsorientert hjelp, til konkurransedyktige betingelser.
