Ormerudveien 44
9 900 000 kr
271 m²
3 soverom
Solgt
Kolbotn
Stor og innholdsrik funkis-perle på en høyde med flott utsikt. Nyere dobbelt garasje 2021 og 3 bad og kjøkken 2015.
Prisantydning
9 900 000 krOmkostninger
268 490 krTotalpris
10 168 490 kr
Pris
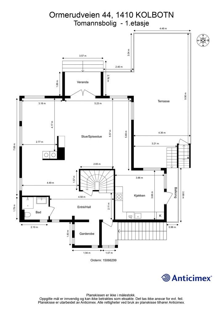
Bruksareal
312 m²BRA-I (internt bruksareal)
271 m²BRA-E (eksternt bruksareal)
41 m²TBA (terrasse-balkongareal)
72 m²
Areal
Etasje
3Byggeår
1940Soverom
3 soveromBad
3 badTomteareal
1 294 m² (eiet)Type
Hel 2-mannsboligEierform
EietFasiliteter
Garasje/P-plass og Balkong/TerrasseEnergimerke
Oransje G
Nøkkelinfo
Unngå doble boligrenter
Vi tilbyr gunstig forsikring.
Vurderer du utleie?
Få et tilbud fra Utleie KrogsveenHva koster lånet?
Sjekk estimert lånekostnadBeskrivelse
Kort om eiendommen
Hel 2-mannsbolig over tre plan med god plass og flott beliggenhet:
- Ligger usjenert på en høyde
- Storslått utsikt fra begge husets etasjer samt fra hagen
- Eiendommen oppleves som en tilbaketrukket oase omringet av syriner og trær
- To store plener foran huset kan nytes på solfylte dager fra morgen til kveld i fred og ro uten innsyn fra naboer
- God plass i boligen med tre soverom samt rom innredet som soverom i kjeller
- Selve huset er innholdsrikt med stue i første etasje, loftstue i andre etasje og innredet kjeller som gir god plass for barn/ungdom
- Hovedetasjens stue og spisestue har store vindusflater som gir naturlig lys uten innsyn, og egner seg utmerket til selskaper
- Øvrige fasiliteter: Tre bad, stort og praktisk vaskerom og dobbelgarasje
Område
Legg til steder som er viktige for deg
På flyttefot? Tenk kjøp og salg samtidig.
Få din egen rådgiver gjennom hele kjøps- og salgsprosessen. Det starter med en verdivurdering.
Unngå doble boligrenter
Vi tilbyr gunstig forsikring.
Vurderer du utleie?
Få et tilbud fra Utleie KrogsveenHva koster lånet?
Sjekk estimert lånekostnadVil du varsles om lignende boliger?
Ved å lagre ditt boligsøk hos oss får du beskjed når vi har en bolig som ligner denne, før den legges ut på markedet!
På flyttefot? Slik gjør vi det enklere for deg
Skreddersydd flyttepakke
Vi fikser håndverkere, vask, pakking, lagring og transport, og legger ut for utgiftene underveis.
Hjelp med både kjøp og salg
Hos oss har du din egen rådgiver gjennom hele kjøps- og salgsprosessen.
Hjelp til finansiering
Vårt samarbeid med BN Bank sikrer deg rask og løsningsorientert hjelp, til konkurransedyktige betingelser.




