Holenbrauta 22
2 950 000 kr
48 m²
1 soverom
Solgt

Gjennomgående 2R eierleilighet | Ferdigstilt 2014 | Gangavstand til Nordbytjernet og Jessheim sentrum | Garasje | Heis
Prisantydning
2 950 000 krOmkostninger
84 790 krTotalpris
3 034 790 kr
Pris
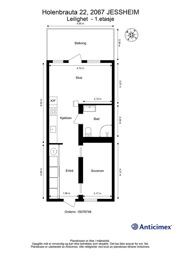
Bruksareal
53 m²BRA-I (internt bruksareal)
48 m²BRA-E (eksternt bruksareal)
5 m²TBA (terrasse-balkongareal)
12 m²
Areal
Etasje
1Byggeår
2014Soverom
1 soveromBad
1 badType
EierleilighetEierform
EierseksjonFasiliteter
Garasje/P-plass, Heis og Balkong/TerrasseFellesutgifter
1 807 krEnergimerke
Oransje C
Nøkkelinfo
Unngå doble boligrenter
Vi tilbyr gunstig forsikring.
Vurderer du utleie?
Få et tilbud fra Utleie KrogsveenHva koster lånet?
Sjekk estimert lånekostnadBeskrivelse
Kort om eiendommen
Velkommen til Holenbrauta 22!
En gjennomgående og fin leilighet som holder en god standard. Moderne og stilren leilighet med lyse og tidsriktige farger. Boligen har en fornuftig og arealeffektiv planløsning som utnytter plassen meget godt, videre har leiligheten mange gode løsninger. Leiligheten består av entré/gang, bad, to soverom, bod, stue og kjøkken i åpen løsning. Utgang fra stue/kjøkken til overbygget nord-vestvendt terrasse på 12 kvm.
Verdt å merke seg:
- Kort vei til bussholdeplass med avgang til OSL og Jessheim Sentrum.
- Balansert ventilasjon med varmegjenvinner.
- Peisovn i stue.
- Fast biloppstillingsplass m/sportsbod i byggets underetasje.
- Heis fra parkeringsanlegg til leilighetens etasjeplan.
- Terrasse på ca. 12 kvm.
- Integrerte hvitevarer foruten om kjøleskap.
Område
Legg til steder som er viktige for deg
Megler

Kine Johansen Ruud
Eiendomsmegler
På flyttefot? Tenk kjøp og salg samtidig.
Få din egen rådgiver gjennom hele kjøps- og salgsprosessen. Det starter med en verdivurdering.
Unngå doble boligrenter
Vi tilbyr gunstig forsikring.
Vurderer du utleie?
Få et tilbud fra Utleie KrogsveenHva koster lånet?
Sjekk estimert lånekostnadVil du varsles om lignende boliger?
Ved å lagre ditt boligsøk hos oss får du beskjed når vi har en bolig som ligner denne, før den legges ut på markedet!
