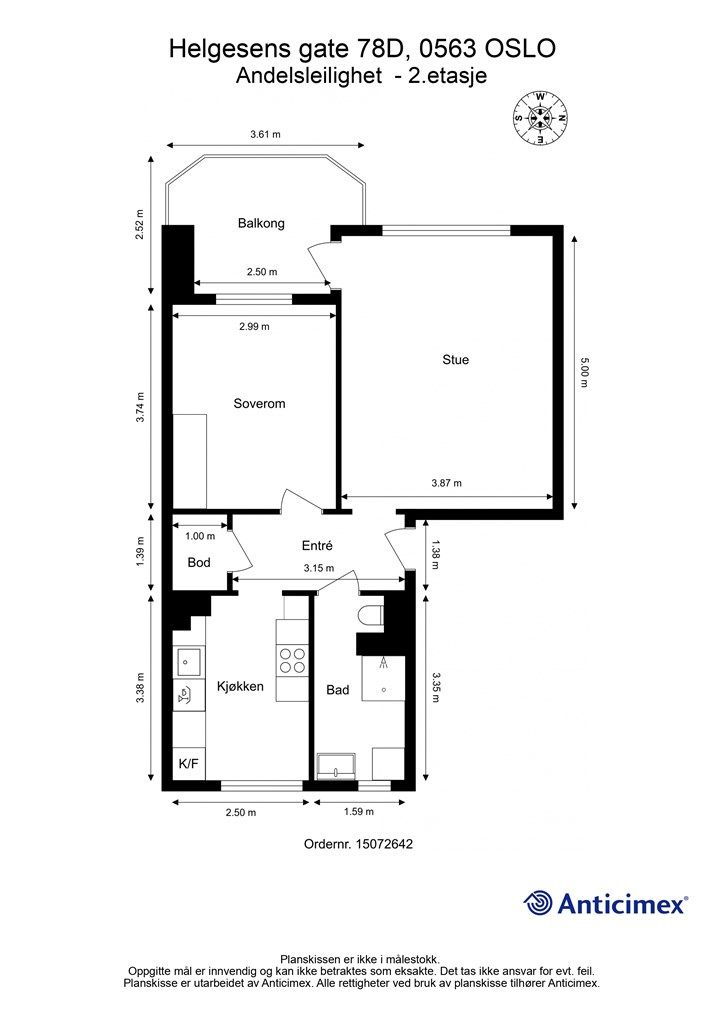
Helgesens gate 78D
4 300 000 kr
53 m²
1 soverom
Solgt
Grünerløkka
Lys, lun og romslig 2-roms m/sjarm|Sentral beliggenhet|Vestvendt balkong|Separat kjøkken|Oppvarming/varmtvann inkl.
Prisantydning
4 300 000 krAndel fellesgjeld
389 000 krOmkostninger
19 252 krTotalpris
4 708 252 kr
Pris
Bruksareal
71 m²BRA-I (internt bruksareal)
53 m²BRA-E (eksternt bruksareal)
18 m²TBA (terrasse-balkongareal)
7 m²
Areal
Etasje
2Byggeår
1941Soverom
1 soveromBad
1 badType
AndelsleilighetEierform
AndelFasiliteter
Balkong/TerrasseFellesutgifter
6 510 krEnergimerke
Lysegrønn F
Nøkkelinfo
Unngå doble boligrenter
Vi tilbyr gunstig forsikring.
Vurderer du utleie?
Få et tilbud fra Utleie KrogsveenHva koster lånet?
Sjekk estimert lånekostnadDette liker selger best ved boligen
Tilbaketrukket soverom pga. fasadeinnhogg. Stor (7 kvadrat) og solfylt balkong som fungerer som et ekstra rom fra mai til oktober. Mye lys til å ligge i (høy) andreetasje. Alltid varmt og godt på vinteren pga. sentralfyr. Ny solskjerming og rullgardin fra Kjells Markiser (2024). Innvendig bod og stor bod på både loft og kjeller (mye lagringsplass). Rolige naboer. God følelse i leilighet, mye sjel og sjarm. Veldig sentralt, gangavstand til alt du trenger, men også store grøntarealer rundt (Botanisk hage, Tøyenparken, Ola Narr, Tøyenbadet). Hyggelig og trygt nabolag. Tilgang til biler fra bilkollektivet rett over gaten (Helgesens gate 82).
Beskrivelse
Kort om eiendommen
Velkommen til Helgesens gate 78D - en lys og romslig 2-roms beliggende i rolige omgivelser, med nærhet til alle byens fasiliteter!
Verdt å nevne:
- Vestvendt balkong på 7 kvm
- Oppvarming og varmtvann inkl. i felleskostnadene
- Balkongdør og vinduer fra 2024
- Stilige, originale tregulv
- Entré med tilgang til praktisk, innvendig bod
- Flislagt bad rehabilitert 2001 i regi av brl. (gulvmembran/varmekabler 2011)
- Stort separat kjøkken m/spisebord - innredning fra 2006 (nyere hvitevarer medfølger)
- Lys og innbydende stue med god plass til ønsket møblering
- Romslig soverom med garderobeskap
- Godt med lagringsplass: loftsbod på 10 kvm (gulvareal 15 kvm) + kjellerbod på 8 kvm
- God vedlikeholdshistorikk i brl. - bl.a. er fasadene og balkongene renovert nå 2024/2025
- Rolige omgivelser
Område
Legg til steder som er viktige for deg
På flyttefot? Tenk kjøp og salg samtidig.
Få din egen rådgiver gjennom hele kjøps- og salgsprosessen. Det starter med en verdivurdering.
Unngå doble boligrenter
Vi tilbyr gunstig forsikring.
Vurderer du utleie?
Få et tilbud fra Utleie KrogsveenHva koster lånet?
Sjekk estimert lånekostnadVil du varsles om lignende boliger?
Ved å lagre ditt boligsøk hos oss får du beskjed når vi har en bolig som ligner denne, før den legges ut på markedet!




