Harstadbekken 23
4 190 000 kr
112 m²
3 soverom
Solgt

Pen og nyere familiebolig | Nydelig uteplass | Integrert garasje | Nær flotte friluftsmuligheter i Romeriksåsen
Prisantydning
4 190 000 krOmkostninger
125 740 krTotalpris
4 315 740 kr
Pris
Bruksareal
137 m²BRA-I (internt bruksareal)
112 m²BRA-E (eksternt bruksareal)
25 m²TBA (terrasse-balkongareal)
47 m²
Areal
Etasje
2Byggeår
2018Soverom
3 soveromBad
2 badType
Halvpart vertikaldelt boligEierform
EierseksjonFasiliteter
Garasje/P-plass og Balkong/TerrasseFellesutgifter
2 000 krEnergimerke
Oransje C
Nøkkelinfo
Unngå doble boligrenter
Vi tilbyr gunstig forsikring.
Vurderer du utleie?
Få et tilbud fra Utleie KrogsveenHva koster lånet?
Sjekk estimert lånekostnadBeskrivelse
Kort om eiendommen
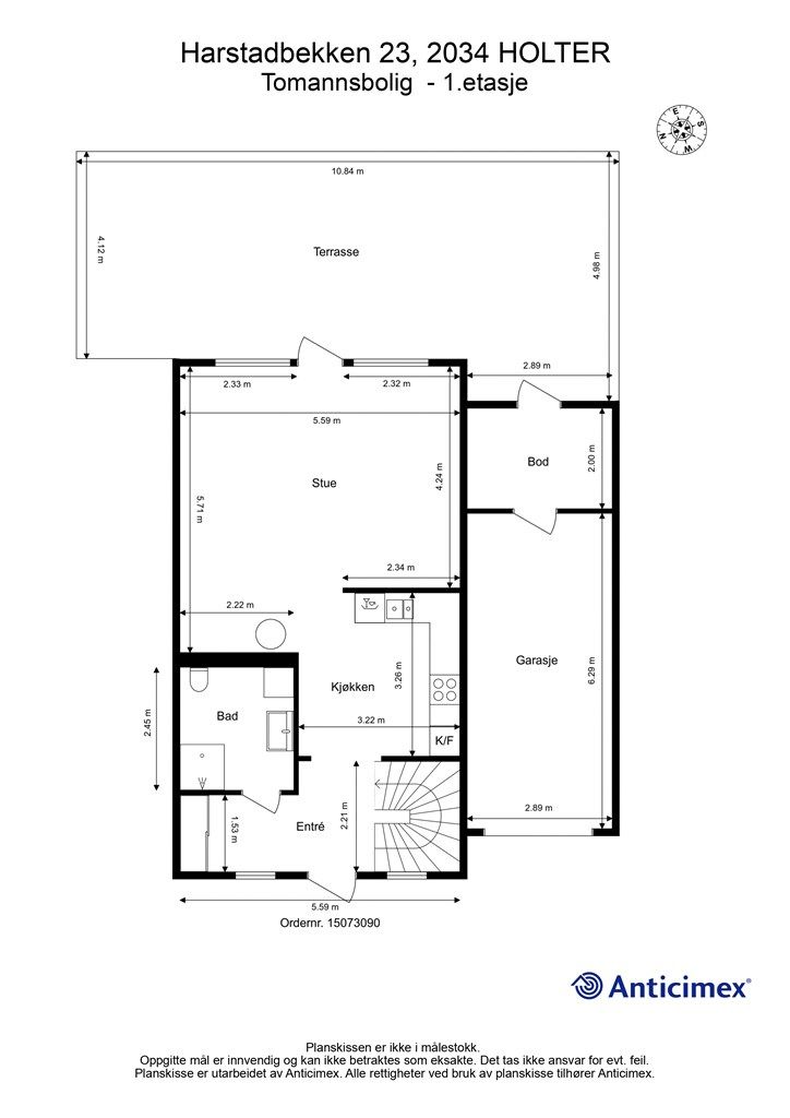
Velkommen til Harstadbekken 23!
En pen familiebolig over to plan. Boligen har entrè med trapp, bad, kjøkken og stue i hovedetasjen. I 2. etasje er det trapperom, tre soverom, bad, samt bod. Det er biloppstillingsplass i asfaltert innkjørsel samt i tilliggende garasje med elbillader. Nydelig og usjenert uteplass.
Eiendommen ligger i et svært familievennlig område med lite biltrafikk. Umiddelbar nærhet til Romeriksåsen med sine fantastiske turområder, samt gangavstand til barnehage, skole, nærbutikk og bussholdeplass. Nyere og sentralt boligområde ved Eltonåsen i Holter, Nannestad. Den korte avstanden til marka, skoler, barnehager, dagligvare og busstilbud gjør dette til et populært område for barnefamilier. Jessheim ligger kun ca. 15 minutters kjøring unna.
Velkommen!
Område
Legg til steder som er viktige for deg
På flyttefot? Tenk kjøp og salg samtidig.
Få din egen rådgiver gjennom hele kjøps- og salgsprosessen. Det starter med en verdivurdering.
Unngå doble boligrenter
Vi tilbyr gunstig forsikring.
Vurderer du utleie?
Få et tilbud fra Utleie KrogsveenHva koster lånet?
Sjekk estimert lånekostnadVil du varsles om lignende boliger?
Ved å lagre ditt boligsøk hos oss får du beskjed når vi har en bolig som ligner denne, før den legges ut på markedet!

