Blomstervegen 13
3 790 000 kr
319 m²
4 soverom
Solgt

Skarnes
Innbydende og stor enebolig med to innganger | Bergvarme(2018), garasje og solrik tomt på 1.135 kvm | Stort potensiale!
Prisantydning
3 790 000 krOmkostninger
115 740 krTotalpris
3 905 740 kr
Pris
Bruksareal
368 m²BRA-I (internt bruksareal)
319 m²BRA-E (eksternt bruksareal)
49 m²TBA (terrasse-balkongareal)
38 m²
Areal
Etasje
2Byggeår
1972Soverom
4 soveromBad
1 badTomteareal
1 135 m² (eiet)Type
Enebolig - FrittliggendeEierform
EietFasiliteter
Garasje/P-plass og Balkong/TerrasseEnergimerke
Lysegrønn D
Nøkkelinfo
Unngå doble boligrenter
Vi tilbyr gunstig forsikring.
Vurderer du utleie?
Få et tilbud fra Utleie KrogsveenHva koster lånet?
Sjekk estimert lånekostnadBeskrivelse
Kort om eiendommen
Blomstervegen 13 - Stor og innholdsrik enebolig beliggende i et barnevennlig, veletablert og rolig boområde på Skarnes. Kort vei til barnehager, skoler samt ca. 2 km til Skarnes sentrum med dagligvarebutikker, kjøpesenter, spisesteder og forretninger. Her bor man tilbaketrukket og rolig til, samtidig som det er kort vei til det meste.
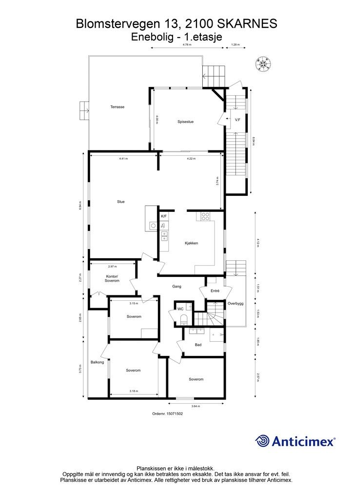
Boligen strekker seg over to plan med hele 319 BRA-i og rommer bl.a. stue, spisestue, kjøkken, bad, 2 toalettrom, vaskerom, badstue, fire soverom og flere boder/rom. U.etg. er i tillegg innredet med to rom benyttet som soverom, men de er ikke godkjent for varig opphold. Egen inngang til u. etasje. Installert bergvarmeanlegg i 2018, asfaltert gårdsplass og byttet alle vinduer i 2019. Parkering i garasje m/lader og på tomt.
Solrik eiendom med mye boltreplass!
Område
Legg til steder som er viktige for deg
På flyttefot? Tenk kjøp og salg samtidig.
Få din egen rådgiver gjennom hele kjøps- og salgsprosessen. Det starter med en verdivurdering.
Unngå doble boligrenter
Vi tilbyr gunstig forsikring.
Vurderer du utleie?
Få et tilbud fra Utleie KrogsveenHva koster lånet?
Sjekk estimert lånekostnadVil du varsles om lignende boliger?
Ved å lagre ditt boligsøk hos oss får du beskjed når vi har en bolig som ligner denne, før den legges ut på markedet!

