Grenborgenveien 10
4 600 000 kr
89 m²
2 soverom
Solgt

Svestad
Unik mulighet! Sjønær og sjarmerende fritidsbolig på Svestad – Helårsbebodd – Fantastisk utsikt – Grenser til skogen
Prisantydning
4 600 000 krOmkostninger
135 990 krTotalpris
4 735 990 kr
Pris
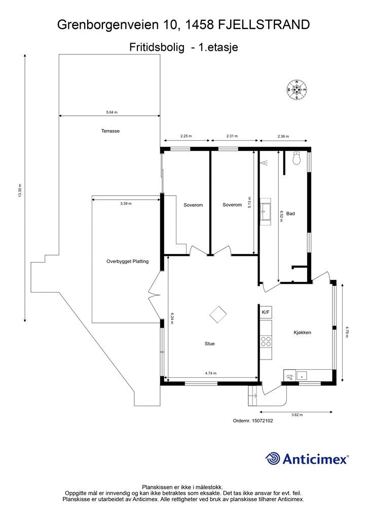
Bruksareal
109 m²BRA-I (internt bruksareal)
89 m²BRA-E (eksternt bruksareal)
20 m²
Areal
Byggeår
1957Soverom
2 soveromTomteareal
2 932 m² (eiet)Type
Fritidseiendom ved sjøenEierform
Eiet
Nøkkelinfo
Vurderer du utleie?
Få et tilbud fra Utleie KrogsveenHva koster lånet?
Sjekk estimert lånekostnadDette liker selger best ved boligen
Grenser til skogen og fantastisk utsikt og nærhet til sjøen, høyt som et ørnerede stille og rolig og gode naboer. Utrolige solnedganger og lange sommerkvelder. Koselig og lunt om vinteren.
Beskrivelse
Kort om eiendommen
Velkommen til Grenborgenveien 10!
Innholdsrik og solrik fritidsbolig med fantastisk utsikt over Oslofjorden, beliggende høyt og fritt på Nesoddens vestside. Boligen er helårsbebodd og inneholder kjøkken, bad, stue og to romslige soverom i 1. etasje, med lys og luftig stue, moderne peisovn og utgang til vestvendt terrasse. Hovedsoverom med garderobeskap og egen terrasseadkomst. Pent kjøkken (2017) og bad med gulvvarme (2018). Stor uteplass med treterrasse og delvis overbygd platting. Uinnredet råkjeller med utvendig adkomst og frittstående drivhus/utestue. Kort vei til turterreng, badestrand med felles badstue, samt butikker, skole og idrettsanlegg. Ca. 10 km til Tangen sentrum.
Område
Legg til steder som er viktige for deg
På flyttefot? Tenk kjøp og salg samtidig.
Få din egen rådgiver gjennom hele kjøps- og salgsprosessen. Det starter med en verdivurdering.
Vurderer du utleie?
Få et tilbud fra Utleie KrogsveenHva koster lånet?
Sjekk estimert lånekostnadVil du varsles om lignende boliger?
Ved å lagre ditt boligsøk hos oss får du beskjed når vi har en bolig som ligner denne, før den legges ut på markedet!

