Åsliveien 21
10 500 000 kr
201 m²
3 soverom
Solgt

Presenteres av
Terje TveitVETTRE
Fantastisk enebolig i blindvei, populært område! Dobbel garasje m/lader. Gode solforhold. Nærhet til sjøen og marka!
Prisantydning
10 500 000 krOmkostninger
283 490 krTotalpris
10 783 490 kr
Pris
Bruksareal
256 m²BRA-I (internt bruksareal)
201 m²BRA-E (eksternt bruksareal)
55 m²TBA (terrasse-balkongareal)
60 m²
Areal
Etasje
2Byggeår
1987Soverom
3 soveromBad
2 badTomteareal
685 m² (eiet)Type
Enebolig - FrittliggendeEierform
EietFasiliteter
Garasje/P-plass og Balkong/TerrasseÅrlig velavgift
1 200 krEnergimerke
Oransje E
Nøkkelinfo
Unngå doble boligrenter
Vi tilbyr gunstig forsikring.
Vurderer du utleie?
Få et tilbud fra Utleie KrogsveenHva koster lånet?
Sjekk estimert lånekostnadBeskrivelse
Kort om eiendommen
Velkommen til Åsliveien 21, presentert av Terje Tveit i Krogsveen.
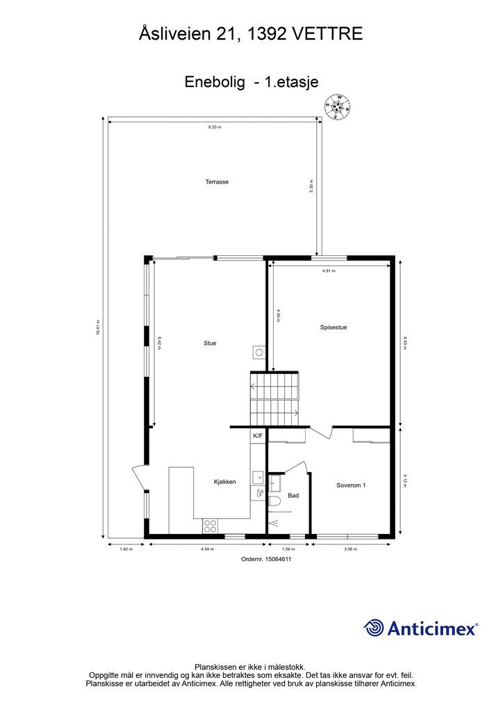
Her får du en meget innholdsrik og vesentlig oppgradert enebolig med flotte uteområder og dobbel garasje. Boligen inneholder 3 soverom, stue med utgang til stor terrasse, spisestue, 2 bad, kjøkken, TV-stue og vaskerom. Den åpne løsningen mellom stue og kjøkken i gir en fantastisk romfølelse og skaper en sosial atmosfære når man er med venner og familie.
Kort fortalt:
Dobbel garasje med lader for elbil
Hovedsoverom med eget bad
Flotte uteområder med gode solforhold
Nærhet til sjøen, marka og Vollen
3 soverom og TV-stue
Stilig planløsning med 4 mellometasjer
Åpen løsning mellom kjøkken, stue og spisestue
Godt med lagringsplass
Velkommen til visning!
Område
Legg til steder som er viktige for deg
På flyttefot? Tenk kjøp og salg samtidig.
Få din egen rådgiver gjennom hele kjøps- og salgsprosessen. Det starter med en verdivurdering.
Unngå doble boligrenter
Vi tilbyr gunstig forsikring.
Vurderer du utleie?
Få et tilbud fra Utleie KrogsveenHva koster lånet?
Sjekk estimert lånekostnadVil du varsles om lignende boliger?
Ved å lagre ditt boligsøk hos oss får du beskjed når vi har en bolig som ligner denne, før den legges ut på markedet!
På flyttefot? Slik gjør vi det enklere for deg
Skreddersydd flyttepakke
Vi fikser håndverkere, vask, pakking, lagring og transport, og legger ut for utgiftene underveis.
Hjelp med både kjøp og salg
Hos oss har du din egen rådgiver gjennom hele kjøps- og salgsprosessen.
Hjelp til finansiering
Vårt samarbeid med BN Bank sikrer deg rask og løsningsorientert hjelp, til konkurransedyktige betingelser.

