Myrsnipevegen 35A
3 890 000 kr
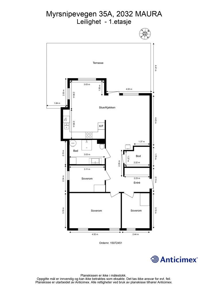
90 m²
3 soverom
Solgt

Maura
Bud mottatt - Innbydende og moderne 4-R eierleilighet i 1. etasje oppført i 2018 - Carport m/lader, peis og solrik terrasse på 33 kvm
Prisantydning
3 890 000 krAndel fellesgjeld
44 233 krOmkostninger
109 390 krTotalpris
4 043 623 kr
Pris
Bruksareal
95 m²BRA-I (internt bruksareal)
90 m²BRA-E (eksternt bruksareal)
5 m²TBA (terrasse-balkongareal)
33 m²
Areal
Etasje
1Byggeår
2018Soverom
3 soveromBad
1 badType
EierleilighetEierform
EierseksjonFasiliteter
Balkong/TerrasseFellesutgifter
2 386 krEnergimerke
Oransje B
Nøkkelinfo
Unngå doble boligrenter
Vi tilbyr gunstig forsikring.
Vurderer du utleie?
Få et tilbud fra Utleie KrogsveenHva koster lånet?
Sjekk estimert lånekostnadBeskrivelse
Kort om eiendommen
Myrsnipevegen 35A er en innbydende, moderne og flott 4-roms eierleilighet beliggende i 1. etasje av flermannsbolig med endetomt. Bygget er oppført i 2018 og leiligheten bærer preg av mange moderne løsninger. Kort vei til barnehage, barneskole og offentlig kommunikasjon med avganger til Oslo Lufthavn, Jessheim og Nannestad sentrum. Dagligvarehandel kan gjøres på Rema 1000, Kiwi eller på Coop, alle i kort avstand fra leiligheten.
Leiligheten rommer lys entré, stue med koselig peis, HTH-kjøkken med integrerte hvitevarer, pent flislagt bad med gulvvarme, tre gode soverom og bod. Fra stuen er det utgang til solrik terrasse på ca. 33 kvm, - en naturlig forlengelse av boligen på sommertid. Leiligheten har tilhørende parkeringsplass i carport m/lader og utvendig bod på ca. 5 kvm.
Område
Legg til steder som er viktige for deg
På flyttefot? Tenk kjøp og salg samtidig.
Få din egen rådgiver gjennom hele kjøps- og salgsprosessen. Det starter med en verdivurdering.
Unngå doble boligrenter
Vi tilbyr gunstig forsikring.
Vurderer du utleie?
Få et tilbud fra Utleie KrogsveenHva koster lånet?
Sjekk estimert lånekostnadVil du varsles om lignende boliger?
Ved å lagre ditt boligsøk hos oss får du beskjed når vi har en bolig som ligner denne, før den legges ut på markedet!

