Gamle Flisnesvegen 34B
3 190 000 kr
63 m²
2 soverom
Solgt

Flisnes
Moderne 3 roms eierleilighet | Vestvendt terrasse med gode sol og utsiktsforhld | Carport m/bod
Prisantydning
3 190 000 krOmkostninger
90 790 krTotalpris
3 280 790 kr
Pris
Bruksareal
68 m²BRA-I (internt bruksareal)
63 m²BRA-E (eksternt bruksareal)
5 m²TBA (terrasse-balkongareal)
7 m²
Areal
Etasje
2Byggeår
2009Soverom
2 soveromBad
1 badType
EierleilighetEierform
EierseksjonFasiliteter
Garasje/P-plass og Balkong/TerrasseFellesutgifter
2 000 krEnergimerke
Rød E
Nøkkelinfo
Unngå doble boligrenter
Vi tilbyr gunstig forsikring.
Vurderer du utleie?
Få et tilbud fra Utleie KrogsveenHva koster lånet?
Sjekk estimert lånekostnadBeskrivelse
Kort om eiendommen
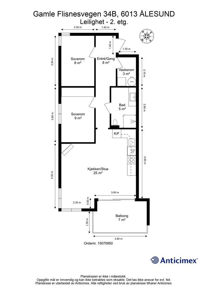
Krogsveen Sunnmøre v/Daglig leder/Eiendomsmegler Preben Willmann har gleden av å presentere en moderne og tiltalende 3-roms eierleilighet beliggende i 2. etasje med følgende innhold: Entre/gang, bad, vaskerom, stue, kjøkken og to soverom. Sørvestvendt balkong på på ca. 7 kvm med utg. fra stue. Flott utsikt og gode solforhold. I tillegg carport med sportsbod.
Kort gangavstand til barneskole og barnehage. Det er også gangavstand til badeplasser og friområde i Skråvika syd for eiendommen og Emblemssanden øst for eiendommen. Flotte turmuligheter på Emblemsfjellet. Avstander til handelssentrum på Moa er 5 km og bysentrum er 17 km.
Område
Legg til steder som er viktige for deg
På flyttefot? Tenk kjøp og salg samtidig.
Få din egen rådgiver gjennom hele kjøps- og salgsprosessen. Det starter med en verdivurdering.
Unngå doble boligrenter
Vi tilbyr gunstig forsikring.
Vurderer du utleie?
Få et tilbud fra Utleie KrogsveenHva koster lånet?
Sjekk estimert lånekostnadVil du varsles om lignende boliger?
Ved å lagre ditt boligsøk hos oss får du beskjed når vi har en bolig som ligner denne, før den legges ut på markedet!

