Ivan Bjørndals gate 17
13 500 000 kr
137 m²
2 soverom
Solgt

Lilleborg
Unik fabrikk leilighet på Lilleborg - Idyllisk takterrasse - Vakker utsikt - Akerselva som nærmeste nabo - Garasjeplass.
Prisantydning
13 500 000 krAndel fellesgjeld
267 564 krOmkostninger
356 605 krTotalpris
14 124 169 kr
Pris
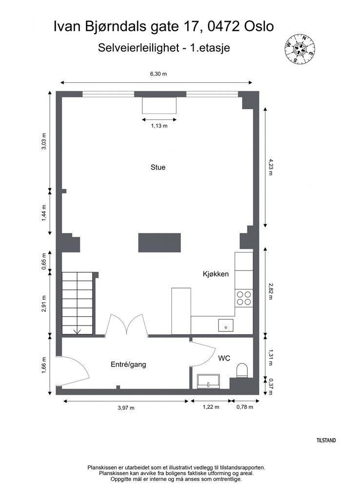
Bruksareal
142 m²BRA-I (internt bruksareal)
137 m²BRA-E (eksternt bruksareal)
5 m²TBA (terrasse-balkongareal)
50 m²
Areal
Etasje
1Byggeår
1902Soverom
2 soveromBad
2 badType
EierleilighetEierform
EierseksjonFasiliteter
Garasje/P-plass og Balkong/TerrasseFellesutgifter
8 614 krEnergimerke
Rød G
Nøkkelinfo
Unngå doble boligrenter
Vi tilbyr gunstig forsikring.
Vurderer du utleie?
Få et tilbud fra Utleie KrogsveenHva koster lånet?
Sjekk estimert lånekostnadBeskrivelse
Kort om eiendommen
Velkommen til Ivan Bjørndals gate 17!
En unik fabrikk leilighet over tre plan med direkte utgang til 50 kvm privat takterrasse, med idylliske Akerselva som nabo. Boligen oser av særpreg med generøs takhøyde på opp til 4,5m, og store fabrikkvinduer med historisk sjarm.
Området utenfor er rolig og aktivt på samme tid, med badeplass i elva, badstue bygget av beboerne selv, og et helt spesielt samhold. Et paradis for både barn og voksne.
Høydepunkter:
- Beliggenhet ved elva, omkranset av trær - en oase midt i byen.
- Historisk fabrikkbygg fra 1902
- Idyllisk hage for beboerne i sameiet
- Privat og usjenert takterrasse
- Garasjeplass i oppvarmet garasjeanlegg med mulighet for el-lader
- Moderniseringsbehov - skap ditt unike drømmehjem!
Område
Legg til steder som er viktige for deg
På flyttefot? Tenk kjøp og salg samtidig.
Få din egen rådgiver gjennom hele kjøps- og salgsprosessen. Det starter med en verdivurdering.
Unngå doble boligrenter
Vi tilbyr gunstig forsikring.
Vurderer du utleie?
Få et tilbud fra Utleie KrogsveenHva koster lånet?
Sjekk estimert lånekostnadVil du varsles om lignende boliger?
Ved å lagre ditt boligsøk hos oss får du beskjed når vi har en bolig som ligner denne, før den legges ut på markedet!

