Myrvangveien 1
21 500 000 kr
236 m²
5 soverom
Komplett salgsoppgave

Haslum
Unik og påkostet enebolig på idyllisk hjørnetomt med godkjent hybel |Skjermet hage og terrasse | Stor garasje
Prisantydning
21 500 000 krOmkostninger
558 490 krTotalpris
22 058 490 kr
Pris
Bruksareal
260 m²BRA-I (internt bruksareal)
236 m²BRA-E (eksternt bruksareal)
24 m²TBA (terrasse-balkongareal)
13 m²
Areal
Etasje
3Byggeår
1900Soverom
5 soveromBad
3 badTomteareal
1 100 m² (eiet)Type
Enebolig - FrittliggendeEierform
EietFasiliteter
Garasje/P-plass og Balkong/Terrasse
Nøkkelinfo
Unngå doble boligrenter
Vi tilbyr gunstig forsikring.
Vurderer du utleie?
Få et tilbud fra Utleie KrogsveenHva koster lånet?
Sjekk estimert lånekostnadBeskrivelse
Kort om eiendommen
Sjarmerende og fleksibel enebolig på hjørnetomt i svært ettertraktet område på Haslum/Bekkestua. En åpen og praktisk planløsning med god takhøyde, gir en luftig og eksklusiv romfølelse. Godkjent utleieleilighet. Eiendommen har gode solforhold og flere uteplasser, samt potensial for videre utbygging. Sentralt.
Høydepunkter:
Familievennlig og fleksibel eiendom
Totalrenovert med arkitekttegnete løsninger
Mulighet for ekstra soverom i øvre etasje
Godkjent 50 kvm hybel i u.etasje. Leieinntekt 15 000kr/mnd
Usjenert hjørnetomt med stor, flat og inngjerdet hage
Solrike uteplasser
Potensial for videre utbygging
Solcelleanlegg og varmepumper
Stor innredet garasje med plass til bil/gjester/ungdomsrom
Attraktiv beliggenhet nær kollektivtransport
Innhold og byggemåte
Innhold og byggemåte
Eiendommen
Myrvangveien 1, 1344 HASLUM
Kommunenummer 3201, gårdsnummer 1, bruksnummer 53, ideell andel 1/1
Innhold
Totalt bruksareal BRA: 260 kvm
BRA-i:
Enebolig:
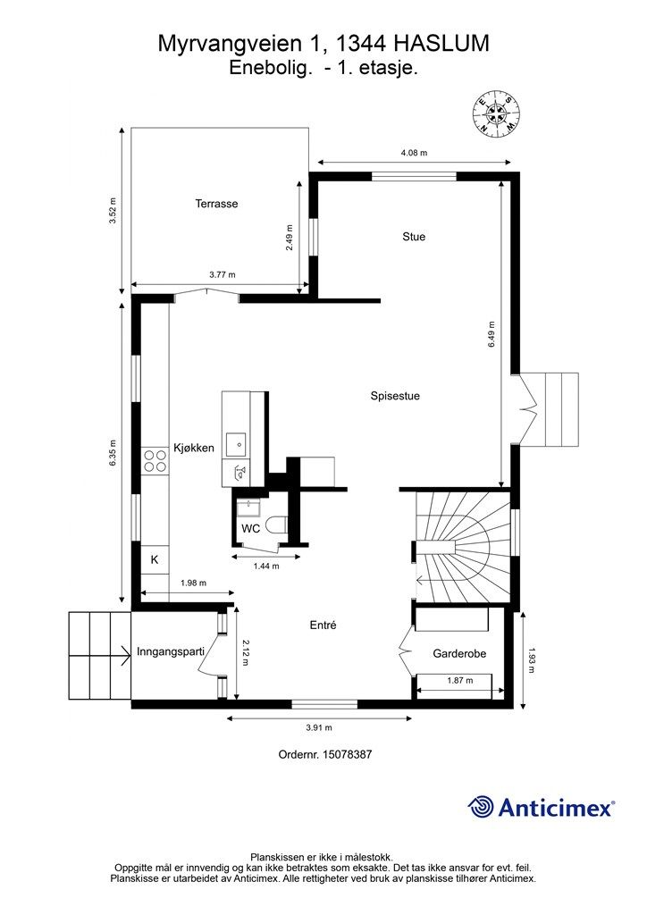
Underetasje 56 kvm: Entre Bad/vaskerom, to soverom, stue og kjøkken
1 etasje 73 kvm: Entre, garderobe, bod, toalettrom, spisestue, stue og kjøkken, terrasse
2.etasje 52 kvm: Gang, garderobe, bad og to soverom
Garasjebygning::
1. etasje 27 kvm: Entre, stue og kjøkken. Utgang til stor terrasse (20 kvm ikke tatt med i areal)
2. etasje 28 kvm: Bad, soverom, stue og kjøkken.
*Garasjen er ikke godkjent til varig opphold. Les mer under pkt. om ferdigattest.
BRA-e:
Garasjebygning:
1. etasje 24 kvm: Garasjedel.
Terrasse- og balkongareal (TBA):
Enebolig:
1. etasje 13 kvm: Terrasse.
I andre etasje på garasjebygningen er det registrert areal med lav himlingshøyde (ALH). Totalt gulvareal (GUA) for denne etasjen er 35 kvm, men på grunn av skråtak er kun 28 kvm av arealet måleverdig som bruksareal. Arealet med lav himlingshøyde utgjør de resterende 7 kvm.
Vedlagte plantegninger er ikke målbare. De oppgitte arealer er hentet fra rapport med befaringsdato 19.01.2026 utført av Anticimex AS v/Owe Fagerlund Leret.
Byggemåte
Selger har fått utarbeidet en tilstandsrapport, dvs. en teknisk gjennomgang av boligen hvor eventuelle avvik, risiko for kjøper og prisoverslag for hva som bør gjøres av oppgradering, er skissert. Se særskilt TGIU (tilstandsgrad ikke undersøkt), samt TG2 og TG3 som viser hva som er boligens normale slitasje, alder og type, eller som bør/må utbedres. Rapporten og selgers egenerklæring er en del av salgsoppgaven og må leses nøye før bud inngis. Kjøper overtar ansvaret for de opplysninger som fremkommer av salgsdokumentasjonen, og kan ikke gjøre gjeldende som mangel noe som burde vært kjent eller som ikke kan anses å ha betydning for avtalen.
Bygningen er iht. tilstandsrapport en enebolig oppført i 1900, ombygget i 1926 og 1996, med tilbygg fra 2005. Bærende konstruksjoner er hovedsakelig av tre, med yttervegger i trekonstruksjoner forblendet med trekledning og etasjeskillere av tre. Grunnmuren er i betong. Yttertaket er en saltakskonstruksjon tekket med takstein fra rundt 2010. Boligen har vinduer med 2-lags glass fra 1997, 2005 og 2020, samt vinduer med 2x1 lags glass av eldre ukjent årstall på garasjen. Entrédøren er fra 2022, og det er terrassedører med 2-lags glass fra 2005 og 3-lags glass fra 2018.
Ingen TG3
Ovennevnte er kun et utdrag fra rapporten. Se supplerende tekst i tilstandsrapporten for mer informasjon. For øvrige tilstandsgrader og tilstandsgrader grunnet høy alder og evt. slitasje, så henvises det til rapporten. Kjøper overtar ansvar og risiko for dette.
Standard
Dette er en sjarmerende og innholdsrik enebolig som kombinerer historisk karakter med moderne funksjonalitet. Boligen antas oppført i 1927 og har gjennomgått betydelige oppgraderinger og totalrenoveringer i flere etapper (senest i 2017 og 2025), noe som gir et solid inntrykk. Her møtes klassiske detaljer og arkitekttegnede løsninger, som sammen med løpende vedlikehold skaper et lunt og innbydende hjem.
Materialvalg og Overflater
Boligen preges av kvalitetsmaterialer. I første etasje finner man vakkert heltre eikegulv fra Dala-Floda, mens andre etasje har klassisk eikeparkett. Inngangspartiet tar imot med portugisiske fliser. Veggene er holdt i en smakfull kombinasjon av malte flater, tapet og trepanel, som underbygger husets lune atmosfære.
Moderne Kjøkkenløsninger
Hovedkjøkkenet (fra 2017) er et stilrent og moderne fra Epoq med glatte fronter og en flott benkeplate i matt kompositt. Kjøkkenet er komplett utstyrt med integrerte hvitevarer, komfyrvakt og waterguard. Det er også etablert moderne og funksjonelle kjøkkenløsninger i både underetasjen og i garasjedelen, noe som gir stor fleksibilitet i bruk.
Bad og Våtrom
Boligen rommer flere bad og toalettrom.
Toalettrommet i 1. etasje har flislagt gulv og malte vegg- og himlingsflater med downlights. Rommet er utstyrt med servant med armatur og et vegghengt toalett med innebygget sisterne.
Badet i 2. etasje er romslig og inneholder både vaskemaskin, dusjkabinett og et innebygget boblebadekar for ekstra velvære.
Underetasjen har et praktisk bad kombinert med vaskerom.
Garasje/hybel: Eget bad i tilknytning til hybeldelen.
Badene har blitt jevnlig oppgradert og er funksjonelle, selv om enkelte flater og tekniske løsninger har nådd en alder der modernisering på sikt må påregnes.
Tekniske Oppgraderinger
Boligen har gjennomgått omfattende tekniske utbedringer de senere år for å sikre en moderne standard:
Elektrisk anlegg: Totalrehabilitert i 2018.
Rør og VVS: utstrakt bruk av rør-i-rør systemer i flere deler av huset.
Pipe: Piperenovering med stålrør (2010),
Isolasjon og Konstruksjon: Betydelig renovering av bjelkelag og tak i 2017. Trinnlydsplater ble lagt i hele første etasje for å få god lydisolering mot underetasjen og mulighet for fremtidig utleie.
Drenering: Utført i 2005 og fornyet i 2009 da hagen ble gjort om.
Underetasje: Delvis ombygget i 2025 med Godkjent ferdigattest, og per idag utleid til 15000kr pr mnd. Etasjen kan enkelt innlemmes i boligen for å få flere soverom og kjellerstue.
Garasje og Hybel
Garasjen (oppført 1999) er delvis ombygget til en praktisk hybeldel i 2020. Denne delen er utstyrt med eget kjøkken, bad med vaskemaskin og varmepumpe, noe som gjør den ideell som hobbyrom, hjemmekontor eller gjesteavdeling Det er varmekabler på badet oppe. (merknad: ikke godkjent for varig opphold).
Løsøre og tilbehør
Vi viser til liste fra Norges Eiendomsmeglerforbund som gjelder fra 01.01.2020 angående løsøre og tilbehør.
Medfølger ikke salget:
- Vaskemaskinen oppe.
- spotlights skinner.
Medfølger salget:
- 2 vaskemaskiner.
- 1 tørketrommel.
- 2 kjøleskap.
- 1 fryser i benk
Oppvarming
Boligen har en meget god og variert oppvarmingsprofil. Det er installert varmepumpe og det er gulvvarme i hele 1. etasje, hele kjelleretasjen, samt på badet i 2. etasje. Peisovnen i stuen gir god varme og en hyggelig atmosfære.
Dersom beboelsesrom ikke har vegg- eller fastmonterte varmekilder ved visning følger dette heller ikke med.
Ferdigattest/brukstillatelse
Det foreligger ikke ferdigattest eller midlertidig brukstillatelse for eneboligen (byggesak 1923/66) i kommunens arkiver.
Boligen er opprinnelig oppført i 1900, før plan- og bygningsloven trådte i kraft. For bygg eldre enn 1965 er det ikke uvanlig at ferdigattest eller annen dokumentasjon mangler i kommunens arkiver.
Det er utstedt følgende attester for eiendommen:
- Ferdigattest for Garasje, datert 01.10.1999.
- Ferdigattest for Bruksendring av kjeller, datert 07.05.2025.
Disse kan fås ved henvendelse til megler.
Ifølge tilstandsrapporten er byggetegninger for boligen fremlagt. Kjelleretasjen er i dag innredet som en egen enhet med entré, bad, to soverom, stue og kjøkken. Denne bruken er i samsvar med den utstedte ferdigattesten for bruksendring av kjeller datert 07.05.2025.
Den frittstående garasjen er delvis innredet med bad, soverom, stue og kjøkken. Ifølge tilstandsrapporten er dette en ikke-godkjent bruk, og garasjen er ikke godkjent for varig opphold. Kommunens arkiver viser en byggesak fra 2016 (arkivsak 2016/9762) for "hybel på garasje", men det er ikke utstedt ferdigattest eller midlertidig brukstillatelse for tiltaket. Tiltaket er dermed ikke lovlig tatt i bruk.
Kommunens arkiver viser en byggesak fra 2005 for "tilbygg" hvor det ikke er utstedt ferdigattest eller midlertidig brukstillatelse. Ettersom tiltaket er omsøkt etter 1998, er det ulovlig tatt i bruk.
For øvrige eldre byggesaker som gjelder endringer og vei/parkering fra 1939, 1993, 1995 og 1997, foreligger det ikke ferdigattest. Det gjøres oppmerksom på at det ikke lenger utstedes ferdigattest på tiltak det er søkt om før 1998 jf. plan- og bygningsloven § 21-10. Kommunen vil ikke kreve ferdigattest for disse tiltakene og vil avvise eventuelle søknader. Bestemmelsen innebærer ikke at tiltak med manglende søknad blir lovlige, men at man ikke trenger å avslutte gamle byggesaker. Normalt sett kreves ferdigattest for alle søknadspliktige tiltak som gjøres etter plan- og bygningsloven.
Tegninger mottatt fra kommunen, datert 07.04.1999, viser en endring hvor tidligere ikke utgravd kjeller er utvidet med nytt inngangsparti i 1. etasje. Det foreligger ikke ferdigattest eller midlertidig brukstillatelse for tiltaket, og dette kan derfor ikke anses som godkjent.
Selger vil undersøke med kommunen og arkitekt vedr. ferdigattest for tilbygg inngangsparti fra 1999/2005 og prøve å fremskaffe dette hvis mulig.
De nevnte avvikene knyttet til innredning av garasje og manglende ferdigattest for tilbygg er ulovlige forhold. Kjøper overtar alt ansvar, kostnad og risiko for dette videre.
Tinglyste heftelser og rettigheter
Eiendommen overdras fri for pengeheftelser.
Det er tinglyst følgende servitutter på eiendommen:
Dagboknr. 900593, tinglyst 19.01.1923, Bestemmelse om veg:
Megler har ikke lyktes i å finne selve servituttdokumentet i Statens digitale arkiver, og har derfor ikke kjennskap til innholdet. Kjøper overtar alt ansvar, kostnader og risiko knyttet til dette videre.
Dagboknr. 13324, tinglyst 27.06.1980, Bestemmelse om garasje/parkering:
Eier av gnr. 1 bnr. 701 har rett til å oppføre og bruke en garasje som delvis er plassert på denne eiendommen (gnr. 1 bnr. 53).
Servituttene vil følge eiendommen. Kjøpers bank vil få prioritet etter ovennevnte heftelser og servitutter.
Eventuell adgang til utleie
Den del av boligens underetasje som er innredet som en hybel er lovlig for utleie og beboelse, med godkjent bruksendring fra kommunen. Det er branndør mellom utleie og bolig og lydisolert med
trinnlydsplater. Leiligheter ikke godkjent som separat boenhet. Kjeller har blitt brukt som barnehage
1996-1998. I den forbindelse ble det foretatt radonmåling. Ga ingen utslag.
Det gjøres oppmerksom på at det er krav til forsvarlige radonnivåer ved utleie. Det er ikke gjennomført radonmåling på denne boligen.
Beliggenhet og tomteforhold
Beliggenhet og tomteforhold
Beliggenhet
Myrvangveien 1 har en meget attraktiv plassering i et veletablert villaområde på Haslum. Området er sentralt beliggende og familievennlig, med et velutviklet kollektivtilbud, skoler, barnehager, butikker og nær tilgang til naturen.
Det er gangavstand til flere skoler og barnehager (bla. Tveterjordet og Myrsnipa FUS, Nadderudskogen), inkludert Haslum skole (Haslum skolekrets), Oslo International School, Bekkestua skole og Nadderud videregående skole.
Haslum T-banestasjon ligger få minutters gange unna boligen, og herfra tar T-banen deg til Majorstuen på ca. 20 minutter. Den nærmeste bussholdeplassen er noen minutter unna med avganger til blant annet Sandvika og Bekkestua. På Bekkestua er det tilknytning til de fleste bussrutene i Bærum, trikk og T-bane.
Området har et mangfold av fritidsaktiviteter å by på. Umiddelbar nærhet til fotball-, håndball- og bandybane. Vest- og Bærumsmarka er bare en kort avstand unna og tilbyr vakre tur- og sykkelstier om sommeren, samt kilometervis med skiløyper om vinteren. Skiløyper finnes også på Haga golfbane og Sauejordet.
Kolsåstoppen og Dælivann har også flotte turstier for de som ønsker å utforske naturen. For de som er glad i trening, er det muligheter hos bla. SATS og Gnist på Bekkestua.
Det er få meter å gå til Coop Extra Haslum, den nærmeste dagligvarebutikken. Bekkestua sentrum er også lett tilgjengelig, med et bredt utvalg av butikker som dagligvareforretninger, klesbutikker, blomsterbutikker, vinmonopol, restauranter, kafeer og treningssentre.
For de som ønsker et større utvalg av servicetilbud og shopping, er Sandvika, Fornebu, Eiksmarka, Østerås og CC-Vest på Lilleaker et godt alternativ med flere butikker, restauranter og kulturtilbud. Om sommeren kan man også ta turen til de idylliske Kalvøya og Kadettangen for å nyte strandlivet.
Adkomst
Det vil bli skiltet med Krogsveen visningsskilt ved fellesvisninger.
Barnehager, skoler og fritid
Fra eiendommen er det kort og trygg gangavstand til både skoler og barnehager.
Barnehager:
- Tveterjordet Fus barnehage
- Myrsnipa Fus barnehage
- Nadderudskogen barnehage
Barneskoler:
- Haslum skole
- Oslo International School
- Bekkestua barneskole
Ungdomsskoler:
- Bekkestua skole
- NTG-U Bærum
Dersom skole- og barnehagetilbud er av betydning for kjøpet, ber vi om at det rettes en særskilt henvendelse til kommunen for oppdatert informasjon.
Beskrivelse av tomt
Eiet tomt på 1100 m², opparbeidet med plen, diverse beplantning og asfaltert innkjørsel. Oppgitt tomteareal er beregnet fra digitalt eiendomskart, og grensene kan være usikre da kun ett punkt er nøyaktig oppmålt, mens øvrige punkter er terrengmålt eller digitalisert fra skannede kopier.
Parkering
Eiendommen har en frittstående garasje, samt parkering på asfaltert innkjørsel. Det er installert elbillader.
Vei, vann og avløp
Eiendommen har adkomst via kommunal vei.
Eiendommen er tilknyttet kommunalt ledningsnett via private stikkledninger. Eier er selv ansvarlig for private stikkledninger til boligen.
Regulerings-og arealplaner
Eiendommen er uregulert, men omfattes av KOMMUNEPLANENS AREALDEL 2022-2042 (plan-ID 202101), vedtatt 21.06.2023. I kommuneplanen er hele eiendommen på 1100 m² avsatt til boligbebyggelse, nåværende.
Byggesaker i nærområdet:
- 2025/12036: Tveterveien 32 - garasje - omlegging av private VA-ledninger. Saksstatus: Under behandling.
- 2017/20271: Sandtakveien 17 - fasadeendring og bruksendring i underbygg. Saksstatus: Under behandling.
- 2016/5150: Sandtakveien 13 - tilbygg i 2 etasjer til tomannsbolig. Saksstatus: Under behandling.
Utsnitt av plan med tilhørende bestemmelser kan fås ved henvendelse til megler.
Økonomi
Økonomi
Kommunale utgifter
Kommunale avgifter inkluderer avløp, feiing, renovasjon og vann.
Fakturert beløp i 2025:
- Avløp: kr 7 211,-
- Feiing: kr 392,-
- Renovasjon: kr 5 384,-
- Vann: kr 6 170,-
Totalt: kr 19 157,-
Årsprognose for 2026 er kr 17 908,-.
Eiendommen har ikke installert vannmåler. Gebyrene for vann og avløp er derfor basert på areal.
Øvrige driftskostnader:
- Bygningsforsikring: kr 11 745,- per år (Tryg). Kjøper må selv tegne innboforsikring.
- Strømforbruk: 32 103 kWh, som utgjorde kr 31 434,- (inkludert elbil og leilighet). Det er tegnet Norgespris på strøm, låst til 31.12.2026.
- TV/Internett: Tilknyttet Altiboks. Kjøper må selv tegne abonnement.
- Eiendomsskatt: Det er ikke eiendomsskatt i kommunen per dags dato.
Utgiftene er basert på nåværende eiers forbruk og avtaler.
Formuesverdi
Formuesverdi for 2024 var kr 3 665 300,- ifølge selgers skatteetaten. Beløpet forutsetter at eier bor fast i boligen (primærbolig).
Ved eventuell øvrig bruk av eiendommen (f.eks. fritidsbolig, pendlerbolig, utleieobjekt) var formuesverdien for 2023 kr 11 664 714,-
Formuesverdien justeres normalt årlig.
Fra 2026 har Stortinget vedtatt en oppdatert modell for beregning av formuesverdi for primærbolig, så avvik kan forekomme.
For mer informasjon se skatteetaten.no
Omkostninger
21 500 000,00 Prisantydning
Omkostninger
537 500,00 Dokumentavgift til staten (2,5% av kjøpesum)
19 900,00 Gjensidige Boligkjøperpakke (valgfri)
545,00 Tinglysing panterettsdokument
545,00 Tinglysing skjøte
--------------------------------------------------------
558 490,00 Omkostninger totalt
--------------------------------------------------------
22 058 490,00 Totalpris inkl. omkostninger
--------------------------------------------------------
Tilbud om lånefinansiering
Megler formidler gjerne kontakt med rådgiver hos vår samarbeidspartner BN Bank. De har konkurransedyktige betingelser samt rask og løsningsorientert behandling av din lånesøknad. Krogsveen mottar et honorar dersom lån opprettes.
Betalingsbetingelser
Kjøpesum inkludert omkostninger, samt pantedokument tilknyttet eventuelt lån, skal være disponibelt hos megler 2 virkedager før overtagelsen.
Annen viktig informasjon
Annen viktig informasjon
Eier
Haakon Gellein og Pirkko Stina Gellein
Overtakelse
Etter nærmere avtale.
Boligselgerforsikring
Selger har i forbindelse med salget tegnet boligselgerforsikring levert av Gjensidige.
Boligselgerforsikringen dekker selgers ansvar etter avhendingsloven begrenset oppad til kr 14 millioner. Dersom kjøper oppdager forhold ved eiendommen som hen mener utgjør en mangel ved eiendommen, vil Gjensidige behandle reklamasjonen på vegne av selger. Forsikringsvilkår kan fås ved henvendelse til megler.
Vedlagt salgsoppgaven følger selgers egenerklæringsskjema og tilstandsrapport. Interessenter må sette seg inn i dokumentene før bud inngis.
Boligkjøperforsikring
Innen kontraktsmøtet må kjøper ta stilling til om det ønskes å bestille Boligkjøperpakken gjennom Gjensidige. I denne gunstige pakken er boligen ferdig forsikret og inkluderer rettshjelpsforsikring, også kalt Boligkjøperforsikring. Rettshjelpsforsikring gir trygghet og tilgang på profesjonell juridisk hjelp dersom det oppdages uventede feil eller mangler det første året etter overtagelse. Forsikringsselskapet behandler i så fall ethvert mangelskrav kjøper måtte ha overfor selger.
Boligkjøperpakken inkluderer bygningsforsikring for hus og hytte, innboforsikring, flytteforsikring og dobbel rentedekning - i situasjoner hvor kjøper ikke får solgt nåværende primærbolig.
Kjøper mottar ingen særskilt faktura for Boligkjøperpakken da kostnaden det første året legges til kjøpesummen for boligen. Det gjøres oppmerksom på Krogsveen mottar et honorar for denne formidlingen.
Produktark for Boligkjøperpakken ligger vedlagt i salgsoppgaven.
Dersom ikke boligkjøperpakke ønskes kan kun rettshjelpsforsikring, også kalt boligkjøperforsikring, tegnes særskilt via megler. Rettshjelpsforsikringen varer i 5 år fra overtagelse og leveres gjennom Gjensidige. Ta kontakt med megler for ytterligere informasjon.
Selskap og privatpersoner som driver med kjøp/salg/utvikling som ledd i egen næringsvirksomhet kan ikke tegne boligkjøperpakke eller rettshjelpsforsikring.
Budgivning
Forbrukerinformasjon om budgivning er vedlagt denne salgsoppgaven og er også på vår hjemmeside Krogsveen.no. Alle bud og budforhøyelser må inngis skriftlig. I tillegg må legitimasjon være fremlagt sammen med signatur fra budgiver.
Vi oppfordrer til å gi bud elektronisk via GI BUD-knappen på eiendommens hjemmeside på Krogsveen.no. Da vil samtlige vilkår bli oppfylt.
Eventuelle forhøyelser eller endringer av budet kan bekreftes pr SMS eller på e-post. Vi oppfordrer alltid til å kontakte megler pr. telefon i tillegg da forsinkelser i SMS og e-post kan forekomme.
For at budene skal kunne bli behandlet og videreformidlet skriftlig til alle involverte parter, må alle bud ha en tilstrekkelig lang akseptfrist, jf. eiendomsmeglingsforskriften § 6-3.
Selger må også skriftlig akseptere budet før aksept kan formidles til budgiver. Akseptfrist bør derfor være på minimum 30 minutter, og budforhøyelser må derfor skje i god tid før fristens utløp.
Bud i forbrukerforhold kan uansett ikke settes med kortere frist enn kl. 12.00 første virkedag etter siste annonserte visning. I tillegg kan ikke budet ha forbehold om at det skal holdes hemmelig ovenfor øvrige interessenter. Megler har iht lov om eiendomsmegling ikke anledning til å videreformidle disse budene, og de vil dermed heller ikke bli journalført.
Etter at eiendommen er solgt vil kjøper og selger få tilsendt budjournal. Øvrige budgivere kan få utlevert kopi av budjournalen i anonymisert form.
Hvitvaskingsreglene
I henhold til lov om hvitvasking og terrorfinansiering har megler plikt til å gjennomføre kontrolltiltak overfor kunder, herunder fullmektiger. Dette innebærer bl.a. å bekrefte kunders og reelle rettighetshaveres identitet på bakgrunn av fremvist gyldig legitimasjon eller på annen godkjent måte, samt å innhente opplysninger om kundeforholdets formål og tilsiktede art.
Dersom slike kundetiltak ikke kan gjennomføres, kan megler ikke etablere kundeforholdet eller utføre transaksjonen.
Hvis kjøper ikke bidrar til gjennomføring av kundekontrollen og dette fører til at transaksjonen blir forsinket eller ikke kan gjennomføres, vil dette ansees som mislighold av avtalen og gi selger rettigheter etter avhendingslova kapittel 5. I tilfeller der selger ikke bidrar til gjennomføring av løpende kundekontroll underveis i oppdraget, er det selger som misligholder sine forpliktelser etter avtalen og gi kjøper rettigheter etter avhendingslovens kapittel 4. Partene er selv ansvarlige for eventuelle kostnader og ansvar dette kan medføre. Eiendomsmegleren eller eiendomsmeglingsforetaket kan ikke holdes ansvarlig for de konsekvenser dette vil kunne få for partene eller andre som har interesser i eiendomshandelen.
Kjøper oppfordres til å innbetale kjøpesummen som ikke kommer fra låneinstitusjon i én samlet innbetaling fra egen konto i norsk bank. Megler har plikt til å melde fra til Økokrim om eiendomshandler som fremstår som mistenkelige. Melding sendes Økokrim uten at partene varsles.
Personopplysningsloven
I henhold til personopplysningsloven gjør vi oppmerksom på at interessenter kan bli registrert for videre oppfølging.
Lovanvendelse
Generelle bestemmelser
Salgsoppgaven er basert på de opplysningene selger har gitt til megler, den bygningssakyndiges tilstandsrapport, samt opplysninger innhentet fra kommunen, Kartverket og andre tilgjengelige kilder. Det er viktig at kjøper setter seg grundig inn i alle salgsdokumentene, herunder salgsoppgave, tilstandsrapport og selgers egenerklæring. Kjøper anses kjent med forhold som er tydelig beskrevet i salgsdokumentene, og slike forhold kan ikke påberopes som mangler. Dette gjelder uavhengig av om kjøper har lest dokumentene. Alle interessenter oppfordres til å undersøke eiendommen nøye, gjerne sammen med fagkyndig før bud inngis. Kjøper som velger å kjøpe usett kan ikke gjøre gjeldende som mangel noe han burde blitt kjent med ved undersøkelsen.
Dersom det er behov for avklaringer, anbefaler vi at interessenter rådfører seg med eiendomsmegler eller egne rådgivere før det legges inn bud.
En bolig som har blitt brukt i en viss tid, har vanligvis blitt utsatt for slitasje og skader kan ha oppstått. Slik bruksslitasje må kjøper regne med, og det kan avdekkes enkelte forhold etter overtakelse som nødvendiggjør utbedringer. Normal slitasje og skader som nødvendiggjør utbedring, er innenfor hva kjøper må forvente og vil ikke utgjøre en mangel.
Kjøper og selgers rettigheter og plikter reguleres av avtalen mellom partene, samt informasjonen som har vært tilgjengelig for kjøperen i forbindelse med handelen. Avtalen utfylles av avhendingsloven, og det gjelder ulike avtalevilkår avhengig av om kjøper er forbrukerkjøper eller ikke. Dette er nærmere beskrevet nedenfor.
På grunn av ulike avtalevilkår kan selger vurdere bud fra en som ikke er forbruker, ulikt fra en forbrukers bud. Dersom kjøper ikke er forbruker, er selger sitt mulige mangelsansvar begrenset fordi eiendommen selges "som den er". Selger kan ikke ta «som den er»- forbehold overfor en forbrukerkjøper. Selv et lavere bud fra en som ikke er forbruker kan foretrekkes fordi begrensningen i mulig mangelsansvar kan ha egenverdi for selger. Selger står fritt til å forkaste eller akseptere ethvert bud, og er for eksempel ikke forpliktet til å akseptere høyeste bud.
Budgiver skal i budskjema avgi egenerklæring om budgiver er forbruker eller næringsdrivende/ person som hovedsakelig handler som ledd i næringsvirksomhet. Budgivere får informasjon dersom andre bud er inngitt av en som ikke er forbruker.
Forbrukerkjøp - definisjon
Med forbrukerkjøp menes kjøp av eiendom når kjøperen er en fysisk person som ikke hovedsakelig handler som ledd i næringsvirksomhet.
Forbruker – avtalevilkår
Eiendommen har en mangel dersom den ikke er i samsvar med kravene som følger av avtalen, eller det foreligger brudd på bestemmelsene i avhendingsloven §§ 3-2 til 3-8. Hvis eiendommen ikke er i samsvar med det kjøperen må kunne forvente ut ifra alder, type og synlig tilstand, kan det være grunnlag for mangelskrav. Det samme gjelder hvis det er holdt tilbake eller gitt uriktige opplysninger om eiendommen. Dette gjelder likevel bare dersom man kan gå ut ifra at det virket inn på avtalen at opplysningen ikke ble gitt eller at mangelskravet ikke blir rettet i tide på en tydelig måte.
Boligen kan ha en mangel etter avhendingsloven § 3-3 andre ledd, dersom det er avvik mellom opplyst og faktisk innvendig areal, forutsatt at avviket er på 2% eller mer og minimum 1 kvm.
Ved beregning av et eventuelt prisavslag eller erstatning må kjøper selv dekke tap/kostnader opptil et beløp på kr 10 000 (egenandel).
Ikke-forbruker (næringsdrivende) – definisjon
Hvis kjøper er en juridisk person, eller en fysisk person som hovedsakelig handler som ledd i næringsvirksomhet, vil kjøpet ikke anses som et forbrukerkjøp.
Ikke-forbruker – avtalevilkår
Eiendommen har en mangel dersom den ikke er i samsvar med kravene som følger av avtalen.
Eiendommen selges «som den er», og selgers ansvar utover det konkret avtalte er da begrenset etter avhendingsloven § 3-9, første ledd andre setning.
Avhendingsloven § 3-3 andre ledd fravikes, og hvorvidt boligens arealsvikt utgjør en mangel vurderes etter avhendingsloven § 3-8.
Informasjon om kjøpers undersøkelsesplikt, herunder oppfordringen om å undersøke eiendommen nøye, gjelder også for kjøpere som ikke anses som forbrukere.
Det forutsettes at hjemmel overføres til kjøper. Hvis kjøper ikke ønsker hjemmelsoverføring av eiendommen, må det tas forbehold om dette i budet.
Meglers vederlag
Meglers vederlag betales av selger og er avtalt til:
Vederlag: 0,80 % av salgssummen inkl. eventuell fellesgjeld. Minimumsprovisjon er kr 60 000,00
Vederlag:
Foto Enebolig kr 6 500,00
Kontroll av hjemmel og heftelser kr 3 900,00
Markedsføringspakke kr 31 500,00
Oppgjør kr 8 900,00
Tilrettelegging kr 19 900,00
Visninger pr stk / Overtagelse kr 4 500,00
Utlegg:
Innhenting av offentlig opplysninger Bærum kommune kr 4 426,00
Tinglysing sikring kr 545,00
Andre utgifter:
AX tilstandsrapport enebolig kr 20 625,00
Boligoptimalisering kr 2 950,00
Boligselgerforsikring Gjensidige Eiet - regnes av prisantydning kr 65 000,00
Opplysninger om oppdraget
Oppdragsnummer 10-0013/26
Eiendomsmegler Krogsveen AS, avd. Bærum
Gml. Ringeriksvei 40, 1357, BEKKESTUA
950 007 613
Oppdragets KR-kode KR10.2613
Dato
Sist oppdatert: 10. februar 2026 kl. 11:31
Dokumenter
Dokumenter
PDF – 462 KB
PDF – 167 KB
PDF – 167 KB
PDF – 167 KB
PDF – 1 MB
PDF – 312 KB
PDF – 29 KB
PDF – 127 KB
PDF – 392 KB
Område
Legg til steder som er viktige for deg
Visning
Det er ingen planlagte visninger. Meld deg på for å avtale en tid som passer.
Lurer du på noe?
Unngå doble boligrenter
Vi tilbyr gunstig forsikring.
Vurderer du utleie?
Få et tilbud fra Utleie KrogsveenHva koster lånet?
Sjekk estimert lånekostnadVil du varsles om lignende boliger?
Ved å lagre ditt boligsøk hos oss får du beskjed når vi har en bolig som ligner denne, før den legges ut på markedet!

