Rosenborggata 12

4 700 000 kr

38 m²

1 soverom

Komplett salgsoppgave

Majorstuen

Stilfull og påkostet andelsleilighet med moderne design og generøs takhøyde i klassisk bygård. Perfekt førstegangskjøp!

    Pris

  • Prisantydning

    4 700 000 kr

  • Andel fellesgjeld

    47 102 kr

  • Omkostninger

    11 040 kr

  • Totalpris

    4 758 142 kr

    Areal

  • Bruksareal

    40 m²

  • BRA-I (internt bruksareal)

    38 m²

  • BRA-E (eksternt bruksareal)

    2 m²

    Nøkkelinfo

  • Etasje

    3

  • Byggeår

    1894

  • Soverom

    1 soverom

  • Bad

    1 bad

  • Type

    Andelsleilighet

  • Eierform

    Andel

  • Fasiliteter

    Heis

  • Fellesutgifter

    4 459 kr

  • Energimerke

    Rød F

Unngå doble boligrenter

Vi tilbyr gunstig forsikring.

Hva koster lånet?

Sjekk estimert lånekostnad

Beskrivelse

Kort om eiendommen

I Rosenborggata 12 får du muligheten til å flytte rett inn i en elegant og stilfull andelsleilighet som har gjennomgått en stor oppgradering i 2025.
Med et moderne design og nøye utvalgte materialer, byr denne boligen på en unik atmosfære, hvor hvert rom er preget av funksjonalitet og estetikk.
Beliggenheten er perfekt for deg som ønsker rolige omgivelser, samtidig som du bor nærme Bogstadveien.

- Kvalitetskjøkken fra HTH
- Nyslipte tregulv
- Vindu fra 2014 som sørger for mye naturlig lys
- Spafølelse på badet med mikrosement og spesialbestilt steinvask i super white kvartsitt fra Brasil i 2025
- 3 etg. m/ heis
- Optimale oppbevaringsløsninger
- Belysning styres av smartfunksjon fra "Plejd"
- VV og internett inkl. i fk
- God takhøyde på 2.90 m
- Klassisk sjarm

Denne bør opppleves!

Innhold og byggemåte

Eiendommen

Rosenborggata 12, 0356 OSLO
Kommunenummer 301, gårdsnummer 214, bruksnummer 319, ideell andel 1/1
Andelsnummer 29, Borettslaget Rosenborggata 12, organisasjonsnummer 981579844

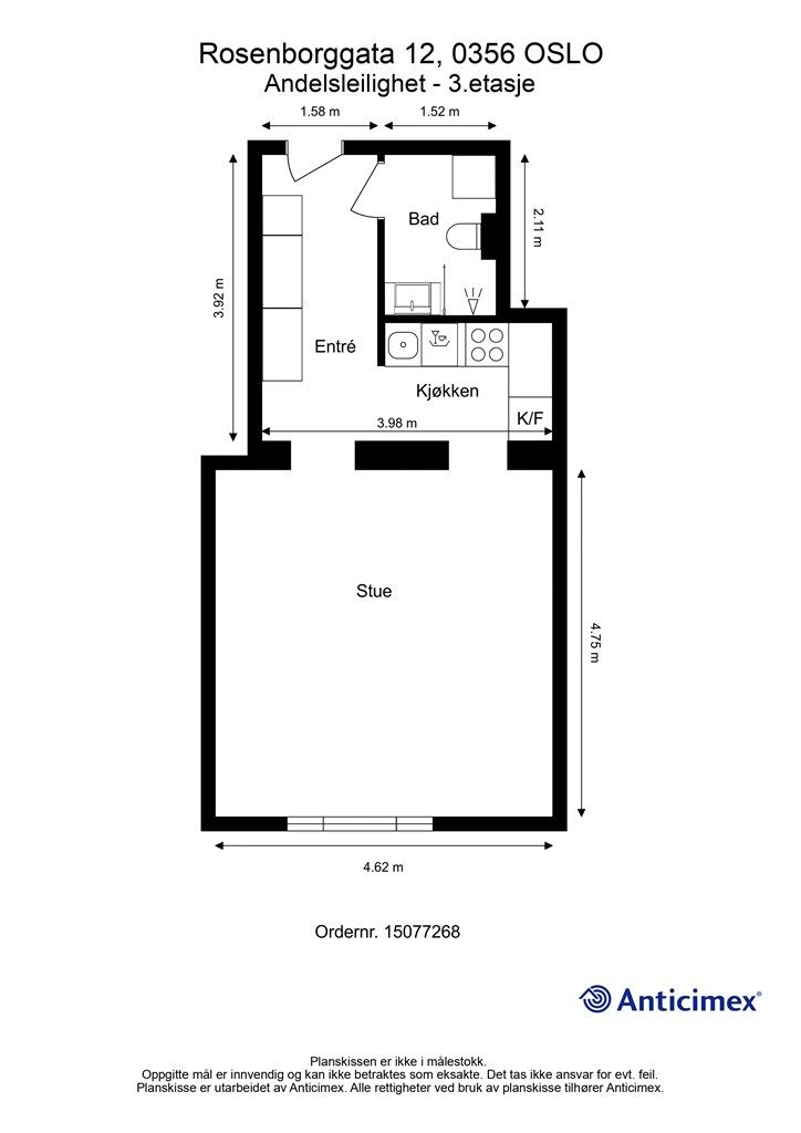
Innhold

Totalt bruksareal BRA: 40 kvm

BRA-i:
3. etasje 38 kvm: Kjøkken med åpen løsning mot entré, bad og stue.

BRA-e:
Kjeller: 2 kvm: Bod.

Boligen disponerer 1 kjellerbod. Det gjøres oppmerksom på at boligens eksterne boder tilhører borettslagets fellesareal, og at boden således ikke eies av den enkelte andelseier. Dette medfører at borettslaget i fellesskap beslutter bruken, og at man ikke selv har eierrett og rettsvern for boden. Borettslaget kan ved vedtak beslutte annet bruk av fellesarealet og disponering av bodarealet kan dermed opphøre.

Vedlagte plantegninger er ikke målbare. De oppgitte arealer er hentet fra rapport med befaringsdato 18.11.2025 utført av Anticimex AS. Arealene er beregnet og rom er definert etter dagens faktiske bruk, uavhengig av hva som er godkjent av bygningsmyndighetene.

Byggemåte

Andelsleilighet tilhørende Rosenborggaten 12 Borettslaget, beliggende i bydel Frogner, Oslo kommune. Boligbygg over 3.etasjer samt loft og kjeller. Grunnmur av naturstein. Bærende konstruksjoner og skillende dekker av betong. Utvendig fasader forblendet med pussede flater. Takkonstruksjonen av valmtakskonstruksjon utvendig tekket med takstein/plater (taket er ikke besiktiget). Leiligheten har entrédør med brannklasse B30 og lydklasse db35. Vinduer med karmer av tre, og to-lags glass (fra 2014). Les for øvrig mer om byggemåte og den tekniske tilstanden i rapporten.

Selger har fått utarbeidet en tilstandsrapport, dvs. en teknisk gjennomgang av boligen hvor eventuelle avvik, risiko for kjøper og prisoverslag for hva som bør gjøres av oppgradering, er skissert. Se særskilt TGIU (tilstandsgrad ikke undersøkt), samt TG2 som viser hva som er boligens normale slitasje, alder og type, hva som er avvik fra dette og hva som bør/må utbedres. Rapporten og selgers egenerklæring er en del av salgsoppgaven og må leses nøye før bud inngis. Kjøper overtar ansvaret for de opplysninger som fremkommer av salgsdokumentasjonen, og kan ikke gjøre gjeldende som mangel noe som burde vært kjent eller som ikke kan anses å ha betydning for avtalen.  

Sammendrag av boligens tilstandsgrad:
TG1: 79%
TG2: 14%
TGIU: 7%

Det gjøres spesielt oppmerksom på:
Tilstandsgrad 2 (TG2):
- Våtrom: Sanitærutstyr / innredning, Membran, tettesjikt og overgang til sluk.
- Kjøkken: Vannrør
- Elektrisk anlegg: Forenklet vurdering av det elektriske anlegget

Tilstandsgrad ikke undersøkt (TGIU):
- Tekniske anlegg, VVS anlegg: Ventilasjon, Stakeluke.

Kjøper overtar ansvar og risiko for dette. For mer utdypende informasjon om overnevnte punkter, vennligst se boligens tilstandsrapport.

Sammendrag av selgerens egenerklæring:
Er det utført arbeid på bad, vaskerom eller toalettrom? - "Ja."
Fortell kort hva som ble gjort av faglærte. - "Det ble lagt mikrosement på bad av OJ BYGG AS i 2025."
Har du dokumentasjon på arbeidet? -"Ja."

Har sameiet eller borettslaget hatt problemer med fukt, vann eller oversvømmelse i kjeller eller underetasje? -"Ja. Har vært påvist fukt i kjelleren som har ført til at det er gjort en sanering og ozon-behandling 14-17 november 2025."

Har det vært mugg, sopp eller råte i sameiet eller borettslaget? -"Ja. Det har blitt funnet mugg og fuktsopp i kjeller som gjennomgår behandling"

Standard

E n t r é :
Romslig entré med plass for klesoppheng og oppbevaring av sko i innholdsrikt garderobeskap fra gulv til tak. Leiligheten har adkomst via fellestrappeoppgang med heis og calling anlegg. Velkommen inn!

S t u e / s o v e s o n e
Lys og trivelig stue med god plass til å møblere etter ønske og behov. Innred med sofa, bord stoler og tilhørende mediemøblement. Stort vindu fra 2014 slipper inn rikelig med naturlig lys gir i kombinasjon med den generøse takhøyde på 2.90 m en god romfølelse. Flotte, klassiske detaljer som stukkatur og rosett. Sjarmerende, nyslipte tregulv og overflater som er nymalt i lys palett. Praktisk sovesone med skinner i taket og lyse gardiner som henger som slør.

K j ø k k e n :
Delikat og innholdsrikt kjøkken med innredning fra HTH av god kvalitet (2009). Speil på kjøkkenet skaper en fin forstørrelseseffekt. Innredningen har en fin kombinasjon av skap- og benkeplass for både oppbevaring og matlaging. Det er slette fronter og benkeplate i laminat med planlimt oppvaskkum. Integrerte hvitevarer som stekeovn med nedfelt platetopp, oppvaskmaskin og kjøleskap med fryser. Enkelte elementer har fått TG2. Vennligst se tilstandsrapporten for mer informasjon.

B a d :
Leilighetens bad er opprinnelig fra 2009 med varmekabler i gulvet og opplegg til vaskemaskin. Varmekablene ble oppgradert i 2022 og i 2025 ble badet påkostet ytterligere med mikrosement, ny innredning og blant annet en unik vask laget av super white kvartsitt fra Brasil. Et bad preget av flott design som gir en lukseriøs og behagelig spafølelse. Badet er innredet med vegghengt servantinnredning med skuffer, ovenpåliggende servant, speil med sidelys, samt vegghengt toalett. Videre er det dusjnisje med fast glassvegg og med takhengt regndusj og veggmontert hånddusj. Badet har fått enkelte punkter med TG2, vennligst se tilstandsrapporten for ytterligere informasjon.

Øvrig:
Gulv: Gulvflater belagt med parkett.
Vegger og himling: Vegg- og himlingsflater i malte flater.
Takhøyde: Stue er takhøyden målt til 2,90 meter, entré og kjøkken er takhøyden målt til 2,80 meter og på bad er takhøyden målt til 2,47 meter.

Løsøre og tilbehør

Oppvaskmaskin, komfyr, steketopp, kjøleskap/fryser, og vifte vil medfølge salget.
Ellers viser vi til liste fra Norges Eiendomsmeglerforbund som gjelder fra 01.01.2020 angående løsøre og tilbehør.

Oppvarming

Leiligheten er tilknyttet felles varmtvann. Oppvarming med elektrisitet. Gulvvarme på bad.
Dersom beboelsesrom ikke har vegg- eller fastmonterte varmekilder ved visning, følger dette heller ikke med. 

Ferdigattest/brukstillatelse

Det foreligger et attestert ekspedisjonsdokument for våningshus datert 04.05.1895, som i følge kommunen anses som datidens ferdigattest.

Det foreligger også et attestert ekspedisjonsdokument vedrørende innredning av bad/WC datert 10.08.1936. Videre er det gitt ferdigattest for rehabilitering av hybelhus datert 20.09.1999.

Det gjøres oppmerksom på at det tidligere var en liten lettvegg i entréen som nå er fjernet for å åpne entréen mer opp. Ellers stemmer dagens planløsning overens med siste godkjente tegninger.

Kjøper overtar eiendommen slik den fremstår på visning.

Tinglyste heftelser og rettigheter

Utover andel fellesgjeld overdras leiligheten fri for pengeheftelser.

Borettslaget har legalpant for forfalte felleskostnader og andre krav som følger av borettslagsforholdet iht. burettslagsloven § 5-20. Pantet er begrenset oppad til 2G (G = folketrygdens grunnbeløp).

Det er tinglyst 4 servitutter på borettslagets eiendom. Disse omhandler blant annet bestemmelse om bebyggelse og bestemmelse om adkomstrett.

Servituttene vil følge eiendommen. Kjøpers bank vil få prioritet etter ovennevnte heftelser og servitutter. 

Eventuell adgang til utleie

Andelseier kan ikke uten samtykke fra styret i borettslaget overlate bruken av boligen til andre. Med samtykke kan andelseier overlate boligen til andre i inntil tre år hvis andelseier har bodd i boligen i minst ett av de to siste år. Utleie i andre tilfeller kan godtas ved særlige grunner, jf. burettslagslova § 5-6.

Se også borettslagets vedtekter og konferer megler ved spørsmål.

Diverse

Tilbud av produkter og tjenester fra våre samarbeidspartnere
Vi er opptatt av verdiskapning, og har knyttet til oss samarbeidspartnere som skal sikre våre kunder de beste produkter og tjenester;
• Gjensidige leverer boligselgerforsikring og tilbyr bygningsforsikring
• Boligkjøperforsikring leveres av Hiscox og med Sedgwick som skadebehandler, og er formidlet gjennom Gjensidige.
• BN bank tilbyr finansieringsløsninger
• Vår avdeling Krogsveen Pluss tilbyr flyttetjenester som utvask, visningsvask, lager, tømming og transport av flyttelass, i tillegg til å formidle kontakt med Flip for overflateoppussing.
• I forbindelse med overtagelse av eiendommen tilbyr Overo avtale om strøm, alarm og bredbånd.
• Krogsveen er, sammen med øvrige bransjeaktører, medeier i den digitale annonseringsplattformen Hjem.

Beliggenhet og tomteforhold

Beliggenhet

Velkommen til Rosenborggata 12 en leilighet beliggende i et svært attraktivt og ettertraktet boligområde på Majorstuen. Her bor du sentralt i byen, men likevel skjermet og rolig. Området er kjent for sine vakre og klassiske bygårder, og du har alt du trenger innen kort gangavstand: hyggelige kaféer, restauranter, barer, nisjebutikker og et pulserende byliv.

I nærområdet finner du blant annet Majorstukrysset, Bogstadveien/Hegdehaugsveien og Frognerparken, som alle ligger bare noen minutter unna. Ønsker du å reise kollektivt, ligger Majorstuen stasjon ca. 7–8 minutters gange fra boligen. Stasjonen er et av byens viktigste knutepunkter med t-bane til alle linjer, samt hyppige buss- og trikkeforbindelser i alle retninger. Flybussen stopper også i nærheten.

For den som liker shopping er Bogstadveien et naturlig trekkplaster Oslos mest populære og eksklusive handlegate. Området har gjennomgått en omfattende oppgradering med bedre tilgjengelighet, varmet fortau og økt beplantning, noe som gjør det til et svært hyggelig sted å ferdes. Det er også kort vei til Slottsparken og videre til Karl Johans gate med sitt brede utvalg av butikker, serveringssteder og kulturtilbud. Aker Brygge og Tjuvholmen ligger også i nærheten og byr på noen av byens mest attraktive restauranter og utesteder.

Når du ønsker rekreasjon, er Frognerparken kun en liten spasertur unna. Her finner du Vigelandsparken, store grøntarealer, turstier, dammer, Frognerbadet og populære Hundesletta. I tillegg ligger Stensparken, Slottsparken og flere grønne områder i umiddelbar nærhet. Området har et bredt utvalg av treningssentre, blant annet SATS Colosseum, SATS Bislett og det mer eksklusive The Riot med både trening og spa. Det er flotte muligheter for jogging og løping i nærliggende parker hele året, og med t-banen kommer du deg raskt til både Sognsvann og Holmenkollen med et omfattende nettverk av tur- og løypemuligheter.

Det er også enkel tilgang til flere av byens utdanningsinstitusjoner, som Universitetet i Oslo, Høyskolen og BI.

Adkomst

Det vil bli skiltet med Krogsveen visningsskilt ved fellesvisninger.

Barnehager, skoler og fritid

Informasjon om tilhørende skolekretser er hentet fra Prognosesenteret som dataleverandør, og tilhørigheten kan årlig endres av kommunen. Dersom skole- og barnehagetilbud er av betydning for kjøpet, ber vi om at det rettes en særskilt henvendelse til bydelsadministrasjonen for oppdatert informasjon.

Beskrivelse av tomt

Eiertomt på 832 kvm som tilhører borettslaget. Borettslaget består av tomt opparbeidet med blant annet sittegruppe i bakgård med blomster og beplantning. Det er sykkelparkering i bakgård.

Parkering

Det er innført beboerparkering i dette området (indre by). Dette betyr at du kan parkere fritt døgnet rundt på parkeringsplassene regulert til beboerparkering i området rundt din bolig for kun kr. 6.200,- pr. år for fossile biler, dieselbil, hybridbil, ladbar hybrid.
Har du el-bil så betaler du kr. 2.090,- pr år, hydrogenbil og el-varebil er gratis.
Motorsykkel og moped kr 3.100,- pr år.
El-motorsykkel og el-moped kr 1.045,- pr år.

Se Oslo kommune sine nettsider for mer informasjon og priser for ytre by.
Gateparkering etter områdets bestemmelser. 

Vei, vann og avløp

Eiendommen har adkomst via kommunal vei. Eiendommen er tilknyttet kommunalt ledningsnett via private stikkledninger.

Borettslaget er ansvarlig for private stikkledninger til bygningen.

Regulerings-og arealplaner

Eiendommen er regulert til byggeområde for boliger i henhold til reguleringsplan S-2255 datert 28.07.1977 med tilhørende reguleringsbestemmelser endret reguleringsbestemmelse S-2937 datert 01.10.1987.

Planen er helt eller delvis opphevet som følge av bystyrets vedtak 23.09.2015 sak 262 gjennom ny "Kommuneplan 2015 - Oslo mot 2030 - Smart, trygg og grønn." Området blir berørt av endringer i reguleringsplan for Oslo Sentrum og indre sone i Oslo kommune som følge av dette. Denne nye planen får betydning for en rekke vedtatte reguleringsplaner i Oslo. Henviser til kommunens nettsider for ytterligere informasjon: https://www.oslo.kommune.no/politikk-og-administrasjon/politikk/kommuneplan/.

Eiendommen er verneverdig da den står oppført på Byantikvarens Gule Liste. Dette kan medføre at større endringer av bygningen må godkjennes av kommunen eller fylket før igangsetting.

Pågående byggesaker:
Byggesak: Rosenborggata 14 - Oppføring av balkong. Se saksnummer 202512406.
Byggesak: Pilestredet 75 A-B og Sporveisgata 3-7 - Oppføring av boligblokk. Se saksnummer 202511638.

Det må påregnes støy, ulemper og/eller endringer i omgivelsene ved ovennevnte plan- og byggesaker.

Opplistingen er ikke uttømmende og interessenter oppfordres til å sette seg inn i reguleringsplaner for området. For flere byggesaker og informasjon i området, gå inn på Oslo kommune, plan og bygg sine nettsider: https://od2.pbe.oslo.kommune.no/kart/

Utsnitt av plan med tilhørende bestemmelser kan fås ved henvendelse til megler.

Økonomi

Boligens kostnader

Felleskostnadene er kr  4.459,-  pr. mnd. og inkluderer: varmtvann, internett, renter og avdrag for nedbetaling av andel fellesgjeld, felles bygningsforsikring, forretningsførsel, kommunale avgifter m.m.

Felleskostnadene justeres normalt en til to ganger årlig i forhold til borettslagets faktiske utgifter og ble sist justert 01.01.2026.
Oversikt over fordelingen av felleskostnadene foreligger ikke fra forretningsfører.

Nåværende eier har et strømforbruk som tilsvarer ca. kr 5.600,- pr. år. / 2.500 kwh. pr. år.
Boligen er tilknyttet internett, og dette er inkludert i felleskostnadene. Dersom kabel-tv er ønskelig må dette tegnes utenom.

Utgiftene er basert på nåværende eiers forbruk. Kjøper må selv tegne innboforsikring.

Formuesverdi

Formuesverdi for 2023 var kr 1 216 346,- ifølge Skatteetaten. Beløpet forutsetter at eier bor fast i boligen (primærbolig).

Ved eventuell øvrig bruk av eiendommen (f.eks. fritidsbolig, pendlerbolig, utleieobjekt) var formuesverdien for 2023 kr 4 865 382,-.

Formuesverdien justeres normalt årlig. Se Skatteetaten.no for mer informasjon om fastsettelse av formuesverdien.

Opplysninger om fellesgjeld

Andel formue er kr 20 882,- pr. 31.12.2024
Andel fellesgjeld er kr 47 102,- pr. 18.11.2025

Total fellesgjeld for boligselskapet er kr 1 712 619,- pr. 18.11.2025 og lånevilkårene er:
Rentebetingelser: 5,49% flytende rente
Innfrielsesdato: 30.12.2043
IN-avtale: Nei
Avdragsfrihet: Nei

For denne andelen er begge lånene med IN-ordning allerede nedbetalt.

Omkostninger

4 700 000,00 Prisantydning
47 102,00 Andel av fellesgjeld
--------------------------------------------------------
4 747 102,00 Pris inkl. fellesgjeld

Omkostninger

9 950,00  Gjensidige Boligkjøperpakke (valgfri)
545,00  Tinglysing hjemmel
545,00  Tinglysing panterettsdokument
--------------------------------------------------------
11 040,00 Omkostninger totalt

--------------------------------------------------------
4 758 142,00 Totalpris inkl. omkostninger

--------------------------------------------------------

Dersom kjøper ikke er medlem av boligbyggelaget, må det påregnes en innmeldingsavgift og årlig medlemsgebyr pr. ny andelseier. Dette faktureres direkte fra boligbyggelaget.
Dersom borettslaget har fellesgjeld, vil leilighetens andel av fellesgjelden komme i tillegg til kjøpesummen. Denne gjelden skal ikke innbetales i oppgjøret, men følger leiligheten.
Det tas forbehold om endringer i avgifter og gebyrer.

Tilbud om lånefinansiering

Megler formidler gjerne kontakt med rådgiver hos vår samarbeidspartner BN Bank. De har konkurransedyktige betingelser samt rask og løsningsorientert behandling av din lånesøknad. Krogsveen mottar et honorar dersom lån opprettes. 

Betalingsbetingelser

Kjøpesum inkludert omkostninger, samt pantedokument tilknyttet eventuelt lån, skal være disponibelt hos megler 2 virkedager før overtagelsen.

Annen viktig informasjon

Eier

Karl Elmer Eng og Sara Orozco Bøe

Informasjon om borettslaget

Leiligheten er tilknyttet Borettslaget Rosenborggata 12. Borettslaget består av 40 andelsleiligheter.
Forretningsfører er Obos Eiendomsforvaltning AS, tlf. 22 865 999.
Dugnad må påregnes.
Det er tillatt med dyrehold i borettslaget så lenge det ikke er til sjenanse for andre andelseiere. Andelseier forplikter seg til å følge reglene ved husdyrhold.
Det er ihht. borettslagets husordensregler ikke tillatt å montere kjøkkenvifte med utslipp til friluft.

Foretatt påkostninger de senere år: 
2025: Skiftet ut varmtvannsberedere
2025: Utbedret for mygg i kjeller.
2024: Skiftet ut alle lys i fellesarealer til LEDlys
2024: Fulgt opp løpende tjenester, som vaktmester, skadedyr og rasfareavtale
2024: Kontroll av fellesarealer
2024: Fulgt opp forsikringssaker for beboere
2024: Brannøvelse
2024: Fulgt opp henvisninger fra beboere
2024: Kontroll av varmtvannsberedere og rør. Planlagt utskifte av varmtvannsberedere
2024: Opprettet rørlegger-rammeavtale med Vinderen Rør
2024: Kontroll av vifter på tak
2023: Utbedring etter lekkasje på tak.
2020: Ventilasjonsrens.
2011-2014 og 2020: Utskiftning av vinduene over en lenger periode.
2019: Oppgradering av sokkelen til gården.
2018-2019: Drenering.
1995: Fullstendig rehabilitert innvendig og ut.

Planlagte påkostninger: 
Iht. samtale med styreleder 26.11.2025 planlegger borettslaget å utbedre sprekkene i fasaden dersom det er økonomisk kapasitet til tiltaket. Arbeidet vil ikke bli finansiert gjennom nytt låneopptak.

Det er en eldre bygård og fremtidig vedlikehold som kan påvirke felleskostnadene/fellesgjelden må påregnes på sikt.

Styregodkjenning:
I henhold til borettslagets vedtekter må kjøper godkjennes av styret som ny andelseier. Det er kjøpers ansvar at styregodkjenning blir gitt, men styret kan ikke nekte godkjenning uten saklig grunn. Iht. burettslagslova kan man bare eie én andel i borettslaget. Kun fysiske personer kan være andelseiere.

For å dekke eventuell manglende innbetaling av fellesutgifter fra øvrige andelseiere, er borettslaget tilknyttet et sikringsfond gjennom OBOS. Dette innebærer at OBOS innbetaler samtlige felleskostnader til borettslaget hver måned og dermed overtar ansvar og risiko for eventuell inndrivelse av utestående fellesutgifter. Avtalen om sikringsfond gjennom OBOS er gyldig til den sies opp av en av partene. Oppsigelsesfrist er 12 måneder.

Dokumenter for borettslaget kan fås ved henvendelse til megler.

Informasjon om forkjøpsrett

Det er ikke forkjøpsrett i borettslaget.

Overtakelse

Etter nærmere avtale.

Boligselgerforsikring

Selger har i forbindelse med salget tegnet boligselgerforsikring levert av Gjensidige.  
Boligselgerforsikringen dekker selgers ansvar etter avhendingsloven begrenset oppad til kr 14 millioner. Dersom kjøper oppdager forhold ved eiendommen som hen mener utgjør en mangel ved eiendommen, vil Gjensidige behandle reklamasjonen på vegne av selger. Forsikringsvilkår kan fås ved henvendelse til megler.  

Vedlagt salgsoppgaven følger selgers egenerklæringsskjema og tilstandsrapport. Interessenter må sette seg inn i dokumentene før bud inngis. 

Boligkjøperforsikring

Innen kontraktsmøtet må kjøper ta stilling til om det ønskes å bestille Boligkjøperpakken gjennom Gjensidige. I denne gunstige pakken er boligen ferdig forsikret og inkluderer rettshjelpsforsikring, også kalt Boligkjøperforsikring. Rettshjelpsforsikring gir trygghet og tilgang på profesjonell juridisk hjelp dersom det oppdages uventede feil eller mangler det første året etter overtagelse. Forsikringsselskapet behandler i så fall ethvert mangelskrav kjøper måtte ha overfor selger. 

Boligkjøperpakken inkluderer bygningsforsikring for hus og hytte, innboforsikring, flytteforsikring og dobbel rentedekning - i situasjoner hvor kjøper ikke får solgt nåværende primærbolig.   

Kjøper mottar ingen særskilt faktura for Boligkjøperpakken da kostnaden det første året legges til kjøpesummen for boligen. Det gjøres oppmerksom på Krogsveen mottar et honorar for denne formidlingen.
Produktark for Boligkjøperpakken ligger vedlagt i salgsoppgaven.  

Dersom ikke boligkjøperpakke ønskes kan kun rettshjelpsforsikring, også kalt boligkjøperforsikring, tegnes særskilt via megler. Rettshjelpsforsikringen varer i 5 år fra overtagelse og leveres gjennom Gjensidige. Ta kontakt med megler for ytterligere informasjon. 

Selskap og privatpersoner som driver med kjøp/salg/utvikling som ledd i egen næringsvirksomhet kan ikke tegne boligkjøperpakke eller rettshjelpsforsikring. 

Budgivning

Forbrukerinformasjon om budgivning er vedlagt denne salgsoppgaven og er også på vår hjemmeside Krogsveen.no. Alle bud og budforhøyelser må inngis skriftlig. I tillegg må legitimasjon være fremlagt sammen med signatur fra budgiver.

Vi oppfordrer til å gi bud elektronisk via GI BUD-knappen på eiendommens hjemmeside på Krogsveen.no. Da vil samtlige vilkår bli oppfylt.  
Eventuelle forhøyelser eller endringer av budet kan bekreftes pr SMS eller på e-post. Vi oppfordrer alltid til å kontakte megler pr. telefon i tillegg da forsinkelser i SMS og e-post kan forekomme.

For at budene skal kunne bli behandlet og videreformidlet skriftlig til alle involverte parter, må alle bud ha en tilstrekkelig lang akseptfrist, jf. eiendomsmeglingsforskriften § 6-3.

Selger må også skriftlig akseptere budet før aksept kan formidles til budgiver. Akseptfrist bør derfor være på minimum 30 minutter, og budforhøyelser må derfor skje i god tid før fristens utløp.

Bud i forbrukerforhold kan uansett ikke settes med kortere frist enn kl. 12.00 første virkedag etter siste annonserte visning. I tillegg kan ikke budet ha forbehold om at det skal holdes hemmelig ovenfor øvrige interessenter. Megler har iht lov om eiendomsmegling ikke anledning til å videreformidle disse budene, og de vil dermed heller ikke bli journalført.

Etter at eiendommen er solgt vil kjøper og selger få tilsendt budjournal. Øvrige budgivere kan få utlevert kopi av budjournalen i anonymisert form.

Hvitvaskingsreglene

I henhold til lov om hvitvasking og terrorfinansiering har megler plikt til å gjennomføre kontrolltiltak overfor kunder, herunder fullmektiger. Dette innebærer bl.a. å bekrefte kunders og reelle rettighetshaveres identitet på bakgrunn av fremvist gyldig legitimasjon eller på annen godkjent måte, samt å innhente opplysninger om kundeforholdets formål og tilsiktede art.
Dersom slike kundetiltak ikke kan gjennomføres, kan megler ikke etablere kundeforholdet eller utføre transaksjonen.
Hvis kjøper ikke bidrar til gjennomføring av kundekontrollen og dette fører til at transaksjonen blir forsinket eller ikke kan gjennomføres, vil dette ansees som mislighold av avtalen og gi selger rettigheter etter avhendingslova kapittel 5. I tilfeller der selger ikke bidrar til gjennomføring av løpende kundekontroll underveis i oppdraget, er det selger som misligholder sine forpliktelser etter avtalen og gi kjøper rettigheter etter avhendingslovens kapittel 4. Partene er selv ansvarlige for eventuelle kostnader og ansvar dette kan medføre. Eiendomsmegleren eller eiendomsmeglingsforetaket kan ikke holdes ansvarlig for de konsekvenser dette vil kunne få for partene eller andre som har interesser i eiendomshandelen.

Kjøper oppfordres til å innbetale kjøpesummen som ikke kommer fra låneinstitusjon i én samlet innbetaling fra egen konto i norsk bank. Megler har plikt til å melde fra til Økokrim om eiendomshandler som fremstår som mistenkelige. Melding sendes Økokrim uten at partene varsles. 

Personopplysningsloven

I henhold til personopplysningsloven gjør vi oppmerksom på at interessenter kan bli registrert for videre oppfølging.

Lovanvendelse

Generelle bestemmelser
Salgsoppgaven er basert på de opplysningene selger har gitt til megler, den bygningssakyndiges tilstandsrapport, samt opplysninger innhentet fra kommunen, Kartverket og andre tilgjengelige kilder. Det er viktig at kjøper setter seg grundig inn i alle salgsdokumentene, herunder salgsoppgave, tilstandsrapport og selgers egenerklæring. Kjøper anses kjent med forhold som er tydelig beskrevet i salgsdokumentene, og slike forhold kan ikke påberopes som mangler. Dette gjelder uavhengig av om kjøper har lest dokumentene. Alle interessenter oppfordres til å undersøke eiendommen nøye, gjerne sammen med fagkyndig før bud inngis. Kjøper som velger å kjøpe usett kan ikke gjøre gjeldende som mangel noe han burde blitt kjent med ved undersøkelsen. 

Dersom det er behov for avklaringer, anbefaler vi at interessenter rådfører seg med eiendomsmegler eller egne rådgivere før det legges inn bud.

En bolig som har blitt brukt i en viss tid, har vanligvis blitt utsatt for slitasje og skader kan ha oppstått. Slik bruksslitasje må kjøper regne med, og det kan avdekkes enkelte forhold etter overtakelse som nødvendiggjør utbedringer. Normal slitasje og skader som nødvendiggjør utbedring, er innenfor hva kjøper må forvente og vil ikke utgjøre en mangel.

Kjøper og selgers rettigheter og plikter reguleres av avtalen mellom partene, samt informasjonen som har vært tilgjengelig for kjøperen i forbindelse med handelen. Avtalen utfylles av avhendingsloven, og det gjelder ulike avtalevilkår avhengig av om kjøper er forbrukerkjøper eller ikke.  Dette er nærmere beskrevet nedenfor. 

På grunn av ulike avtalevilkår kan selger vurdere bud fra en som ikke er forbruker, ulikt fra en forbrukers bud. Dersom kjøper ikke er forbruker, er selger sitt mulige mangelsansvar begrenset fordi eiendommen selges "som den er".  Selger kan ikke ta «som den er»- forbehold overfor en forbrukerkjøper. Selv et lavere bud fra en som ikke er forbruker kan foretrekkes fordi begrensningen i mulig mangelsansvar kan ha egenverdi for selger. Selger står fritt til å forkaste eller akseptere ethvert bud, og er for eksempel ikke forpliktet til å akseptere høyeste bud.

Budgiver skal i budskjema avgi egenerklæring om budgiver er forbruker eller næringsdrivende/ person som hovedsakelig handler som ledd i næringsvirksomhet. Budgivere får informasjon dersom andre bud er inngitt av en som ikke er forbruker. 

Forbrukerkjøp - definisjon
Med forbrukerkjøp menes kjøp av eiendom når kjøperen er en fysisk person som ikke hovedsakelig handler som ledd i næringsvirksomhet.

Forbruker – avtalevilkår
Eiendommen har en mangel dersom den ikke er i samsvar med kravene som følger av avtalen, eller det foreligger brudd på bestemmelsene i avhendingsloven §§ 3-2 til 3-8. Hvis eiendommen ikke er i samsvar med det kjøperen må kunne forvente ut ifra alder, type og synlig tilstand, kan det være grunnlag for mangelskrav. Det samme gjelder hvis det er holdt tilbake eller gitt uriktige opplysninger om eiendommen. Dette gjelder likevel bare dersom man kan gå ut ifra at det virket inn på avtalen at opplysningen ikke ble gitt eller at mangelskravet ikke blir rettet i tide på en tydelig måte.

Boligen kan ha en mangel etter avhendingsloven § 3-3 andre ledd, dersom det er avvik mellom opplyst og faktisk innvendig areal, forutsatt at avviket er på 2% eller mer og minimum 1 kvm.

Ved beregning av et eventuelt prisavslag eller erstatning må kjøper selv dekke tap/kostnader opptil et beløp på kr 10 000 (egenandel).

Ikke-forbruker (næringsdrivende) – definisjon 
Hvis kjøper er en juridisk person, eller en fysisk person som hovedsakelig handler som ledd i næringsvirksomhet, vil kjøpet ikke anses som et forbrukerkjøp. 

Ikke-forbruker – avtalevilkår
Eiendommen har en mangel dersom den ikke er i samsvar med kravene som følger av avtalen.
Eiendommen selges «som den er», og selgers ansvar utover det konkret avtalte er da begrenset etter avhendingsloven § 3-9, første ledd andre setning. 

Avhendingsloven § 3-3 andre ledd fravikes, og hvorvidt boligens arealsvikt utgjør en mangel vurderes etter avhendingsloven § 3-8. 

Informasjon om kjøpers undersøkelsesplikt, herunder oppfordringen om å undersøke eiendommen nøye, gjelder også for kjøpere som ikke anses som forbrukere.

Det forutsettes at hjemmel overføres til kjøper. Hvis kjøper ikke ønsker hjemmelsoverføring av eiendommen, må det tas forbehold om dette i budet.

Meglers vederlag

Meglers vederlag betales av selger og er avtalt til:
Vederlag: 0,90 % av salgssummen inkl. eventuell fellesgjeld.

Vederlag:
Kontroll av hjemmel og heftelser  kr 2 900,-
Markedsføringspakke  kr 28 250,-
Oppgjør  kr 7 500,-
Tilrettelegging  kr 17 000,-
Visninger pr stk / Overtagelse kr. 3.500,-

Utlegg:
Eierskiftegebyr forretningsfører - OBOS ca.   kr 6 570,-
Innhenting av informasjon forretningsfører - OBOS ca.   kr 4 038,-
Tinglysing sikring  kr 545,-

Andre utgifter:
Foto stor pakke m/ bilder av uteområdet   kr 4 300,-
Tilstandsrapport fra bygningssakkyndig kr. 7.950,-

Opplysninger om oppdraget

Oppdragsnummer 40-0232/25
Eiendomsmegler Krogsveen AS, avd. Majorstuen og Oslo Vest
Hegdehaugsveien 31, 0352, OSLO
950 007 613
Oppdragets KR-kode KR40.25232

Dato

Sist oppdatert: 11. februar 2026 kl. 14:38

Dokumenter

Utskriftsvennlig salgsoppgave

Område

Legg til steder som er viktige for deg

Prisutvikling for området

Kvadratmeterpris

0 kr/m²

Endring

↘︎ % ()

Visning

Ta gledelig kontakt med megler på tlf: 47352466 for avtale tidspunkt for privatvisning.

Lurer du på noe?

Unngå doble boligrenter

Vi tilbyr gunstig forsikring.

Hva koster lånet?

Sjekk estimert lånekostnad

Vil du varsles om lignende boliger?

Ved å lagre ditt boligsøk hos oss får du beskjed når vi har en bolig som ligner denne, før den legges ut på markedet!

På flyttefot? Slik gjør vi det enklere for deg

Skreddersydd flyttepakke

Vi fikser håndverkere, vask, pakking, lagring og transport, og legger ut for utgiftene underveis.

Hjelp med både kjøp og salg

Hos oss har du din egen rådgiver gjennom hele kjøps- og salgsprosessen.

Hjelp til finansiering

Vårt samarbeid med BN Bank sikrer deg rask og løsningsorientert hjelp, til konkurransedyktige betingelser.