Christian Bjellands gate 40
9 000 000 kr
219 m²
4 soverom
Komplett salgsoppgave

Indre Tasta
Flott, moderne og romslig familiebolig i et svært attraktivt boligområde på populære Tasta. Hybel i sokkeletasje.
Prisantydning
9 000 000 krOmkostninger
245 990 krTotalpris
9 245 990 kr
Pris
Bruksareal
221 m²BRA-I (internt bruksareal)
219 m²BRA-E (eksternt bruksareal)
2 m²TBA (terrasse-balkongareal)
17 m²
Areal
Byggeår
2013Soverom
4 soveromBad
3 badTomteareal
686 m² (eiet)Type
Halvpart vertikaldelt boligEierform
EietFasiliteter
Balkong/Terrasse
Nøkkelinfo
Unngå doble boligrenter
Vi tilbyr gunstig forsikring.
Vurderer du utleie?
Få et tilbud fra Utleie KrogsveenHva koster lånet?
Sjekk estimert lånekostnadBeskrivelse
Kort om eiendommen
Innhold og byggemåte
Innhold og byggemåte
Eiendommen
Christian Bjellands gate 40, 4026 STAVANGER
Kommunenummer 1103, gårdsnummer 59, bruksnummer 305, seksjonsnummer 2, ideell andel 1/1
Innhold
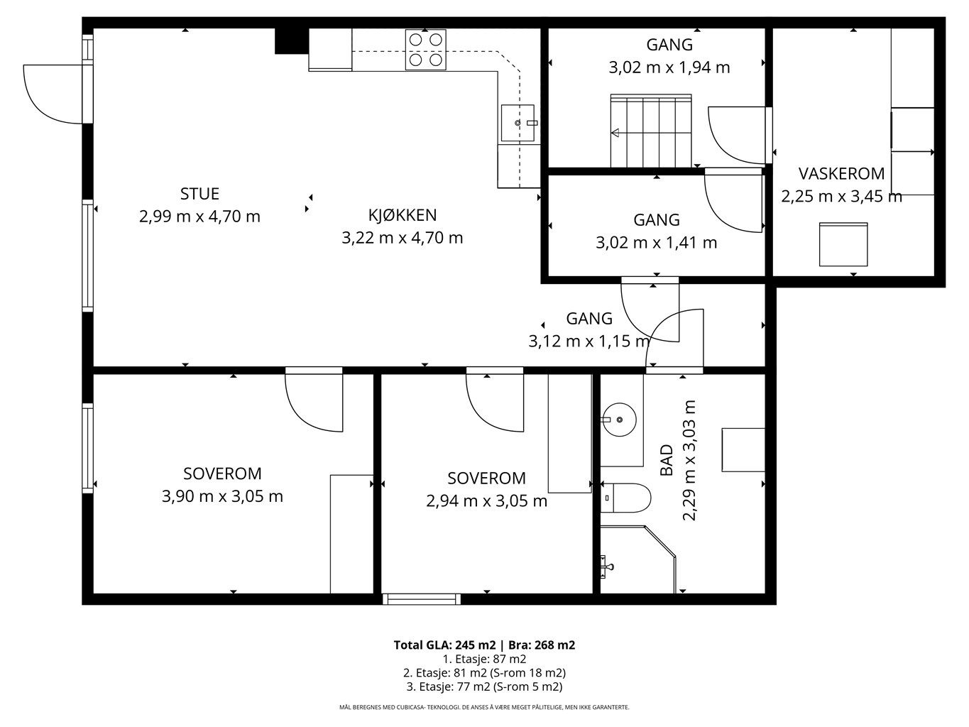
Totalt bruksareal (BRA) 221 kvm
BRA-i:
Del av tomannsbolig:
Underetasje 80 kvm: Gang, vaskerom, bod, stue/kjøkken, bad/vaskerom og to soverom.
1. etasje 75 kvm: Gang, bad, soverom og stue/kjøkken i åpen løsning.
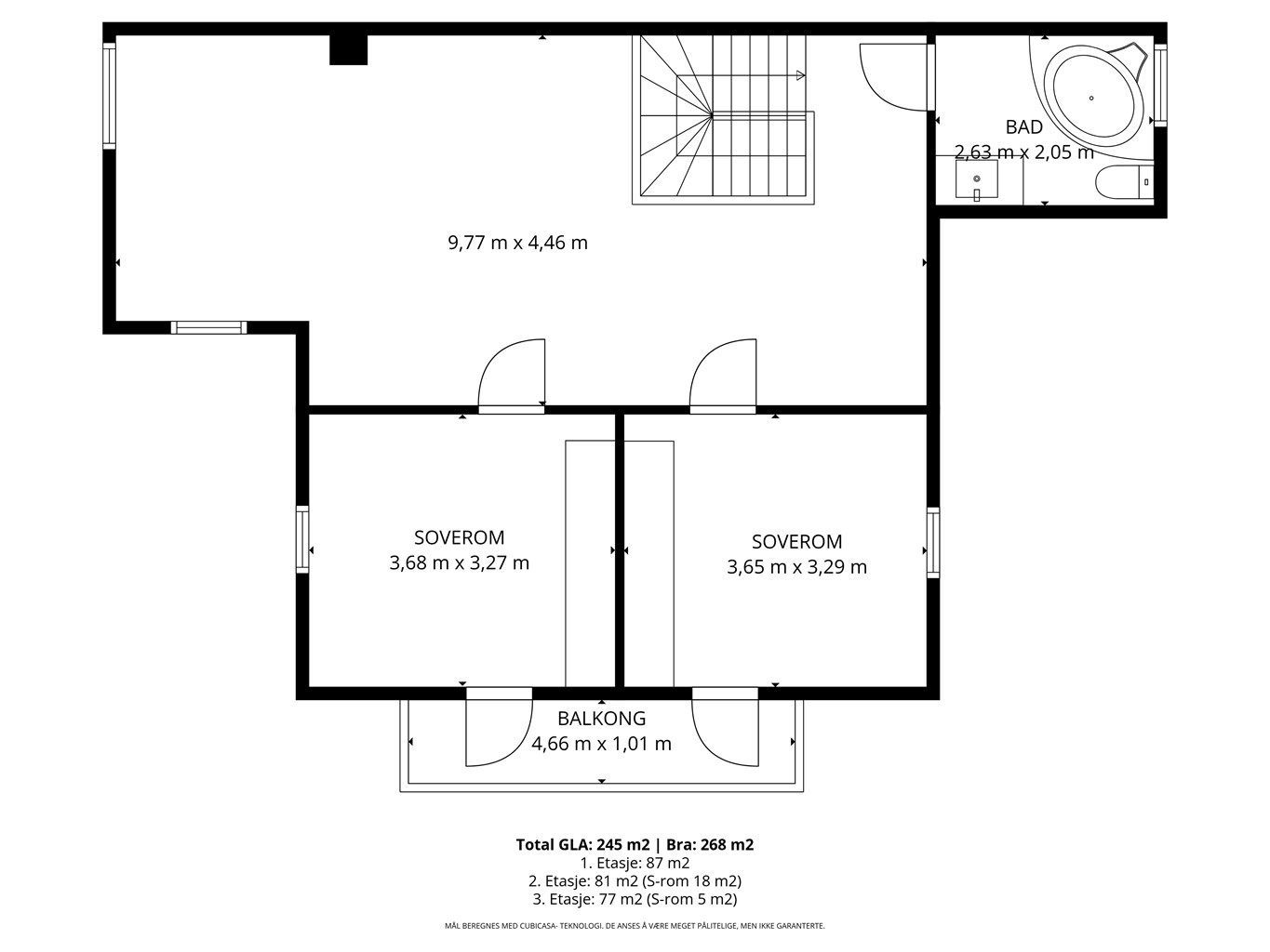
2. etasje 64 kvm: Stue, bad, kott og to soverom.
BRA-e:
1. etasje 2 kvm: Bod.
TBA (terrasse- og balkongareal):
1. etasje 13 kvm: Terrasse.
2. etasje 4 kvm: Balkong.
2. etasje har et totalt gulvareal (GUA) på 75 kvm. Areal med lav takhøyde (ALH) utgjør 11 kvm, og det måleverdige bruksarealet (BRA) er derfor 64 kvm.
Det ene soverommet i underetasjen er ikke omsøkt/godkjent til rom for varig opphold. Les mer under punkt om ferdigattest.
Vedlagte plantegninger er ikke målbare. De oppgitte arealer er hentet fra rapport med befaringsdato 23.04.2026 utført av Rogatakst AS v/Aleksander Vågen. Arealene er beregnet og rom er definert etter dagens faktiske bruk, uavhengig av hva som er godkjent av bygningsmyndighetene.
Byggemåte
Standard
Løsøre og tilbehør
Vi viser til liste fra Norges Eiendomsmeglerforbund som gjelder fra 01.01.2020 angående løsøre og tilbehør.
Følgende hvitevarer medfølger:
Vaskemaskin, oppvaskmaskin, fryseskapdel og kjøleskap i hovedbolig og i utleiedel, samt tørketrommel og fryseboks i hoveddel.
Mulighet for ekstra fryseboks og vinskap i hoveddel om ønskelig.
Hvitevarene leveres uten noen form for garantier, utover eventuelle gjenværende leverandørgaranti.
Oppvarming
Elektrisk oppvarming og vedfyring er de primære oppvarmingskildene i boligen, med vedovn i stuen i 1. etasje. Det er varmekabler på bad i alle etasjer (1. etasje, 2. etasje og underetasje/bad). Boligen har balansert ventilasjon med varmegjenvinning.
Dersom beboelsesrom ikke har vegg- eller fastmonterte varmekilder ved visning, følger dette heller ikke med.
Ferdigattest/brukstillatelse
Boligen er en vertikaldelt tomannsbolig oppført i 2013. Det foreligger ferdigattest for nybygg 2-mannsbolig datert 04.12.2013. Denne kan fås ved henvendelse til megler.
Det foreligger godkjente og byggemeldte tegninger, stemplet mottatt av kommunen sist 07.01.2013. Disse kan fås ved henvendelse til megler.
Det er avvik mellom godkjente byggetegninger og dagens planløsning. Godkjente tegninger viser kjellerstue og ett gjesterom i underetasjen.
Dagens planløsning i underetasje:
Bod er omgjort til vaskerom.
Rom for oppbevaring er ominnredet til soverom og satt inn vindu, dette er ikke omsøkt/bruksendret. Rommet er derfor ikke godkjent til rom for varig opphold.
Konsekvensen er at kommunen kan kreve at rommet tilbakeføres til rom for oppbevaring/bod.
Kjøper overtar alt ansvar, kostnad og risiko for dette videre.
Tinglyste heftelser og rettigheter
Eiendommen overdras fri for pengeheftelser
Sameiet har legalpant for krav mot sameieren som følger av sameieforholdet iht. eierseksjonsloven § 31. Pantet er begrenset oppad til 2G (G = folketrygdens grunnbeløp).
2013/71346-3/200 25.01.2013 SEKSJONERING
Opprettet seksjoner:
SNR: 2
Formål: Bolig
Sameiebrøk: 1/2
Servituttene vil følge eiendommen. Kjøpers bank vil få prioritet etter ovennevnte heftelser og servitutter.
Eventuell adgang til utleie
Boligen kan leies ut såfremt boligen har forsvarlige radonverdier.
Deler av boligen som er innredet som utleiedel er ikke godkjent til varig opphold eller som separat boenhet av kommunen. Konsekvensen ved søknad kan være at rommet ikke godkjennes for varig opphold. Kjøper overtar alt ansvar og risiko for dette. Det gjøres oppmerksom på at det er krav til forsvarlige radonnivåer ved utleie.
Diverse
Eiendommen er seksjonert, og boligen er tilknyttet sameie, med sameiebrøk 1/2.
Sameiet består av 2 vertikaldelte boliger. Sameiet har ikke forretningsfører eller styre, og det føres ikke regnskap eller budsjett. Dersom det mottas felles regninger til sameiet vil kostnader bli fordelt etter nærmere regler angitt av sameiet, vanligvis etter sameiebrøk eller vedtekter.
Vi gjør videre oppmerksom på at det iht. eierseksjonsloven ikke er anledning å erverve mer enn 2 seksjoner i sameiet, her teller også eierskap via. firma, nærstående og familie. Kjøper har risikoen for at overskjøting på denne bakgrunn kan nektes av Statens Kartverk. I så fall vil kjøper uansett være forpliktet til å gjennomføre handelen, og oppgjør til selger vil finne sted tross manglende overskjøting.
Konferer med megler for mer informasjon.
Kopi av seksjonsbegjæringen kan fås ved henvendelse til megler.
Beliggenhet og tomteforhold
Beliggenhet og tomteforhold
Beliggenhet
Christian Bjellands gate 40 har en svært attraktiv beliggenhet på populære Tasta. Boligen ligger i et etablert og ettertraktet boligområde, kjent for rolige omgivelser, samt nærhet til byens fasiliteter.
Her får du det beste av to verdener, en fredelig boligadresse med sentral tilgjengelighet og gode oppvekst og bokvaliteter.
Området byr på flotte tur og rekreasjonsmuligheter med gangavstand til grønne friområder, lekeplasser og flotte turområder.
Kort vei til barnehager, skoler og idrettsanlegg.
Dagligvarebutikker, servicetilbud og kollektivtransport finnes i umiddelbar nærhet, med gode bussforbindelser til Stavanger sentrum.
Adkomst
Veibeskrivelse: Se Google maps - det er enkelt å finne frem i kartet.
Det vil bli skiltet med Krogsveen visningsskilt ved fellesvisninger.
Barnehager, skoler og fritid
Barnehager:
- Byfjordparken barnehage (1–5 år) 0,6 km
- Barnehagen Tasta (1–5 år) 1,0 km
- Bjergsted barnehage (1–5 år) 1,0 km
Skoler:
- Byfjord skole (1–7 kl.) 0,5 km
- BISS Sentrum (1–10 kl.) 0,8 km
- Kampen skole (1–7 kl.) 1,2 km
- Tastaveden skole (8–10 kl.) 0,6 km
- Tastarustå skole (8–10 kl.) 1,5 km
- Stavanger offshore tekniske skole, 0,7 km
- Bergeland videregående skole, 0,8 km
Informasjon om tilhørende skolekretser er hentet fra Prognosesenteret som dataleverandør, og tilhørigheten kan årlig endres av kommunen. Dersom skole- og barnehagetilbud er av betydning for kjøpet, ber vi om at det rettes en særskilt henvendelse til kommunen for oppdatert informasjon.
Beskrivelse av tomt
Eiertomt på 686 kvm som tilhører sameiet.
Det foreligger ikke tegninger som viser fordeling av tomt, men det er naturlig delt mellom seksjonene i hagen.
Parkering av nabo i nr. 38 foregår ved siden av deres del, mens denne seksjonen disponerer plass foran sin del.
Oppgitt tomteareal er hentet fra digitalt eiendomskart fra Stavanger kommune. Oppgitt/anslått areal kan derfor avvike fra nøyaktig areal.
Parkering
Parkering i enden av innkjørsel, foran boligen. Det er plass til to biler.
Tomten er felles, men det er naturlig delt med nabo som parkerer ved siden av sin bolig.
Det er mulighet for montering av ladeboks for elbil.
I tillegg er det gratis gateparkering i området.
Vei, vann og avløp
Eiendommen har adkomst via kommunal vei. Eiendommen er tilknyttet kommunalt ledningsnett via private stikkledninger. Sameiet er ansvarlig for private stikkledninger til bygningen.
Regulerings-og arealplaner
Eiendommen er regulert til frittliggende småhusbebyggelse i henhold til reguleringsplan "Reguleringsplan for Indre Tasta." (ID: 1989), vedtatt 13.02.2006, med tilhørende reguleringsbestemmelser. Hoveddelen av eiendommen (685,77 m²) er regulert til dette formålet, med feltnavn 111.
I henhold til reguleringsbestemmelsene (§ 2.1.1) kan tomten bebygges med inntil 35 % BYA (bebygd areal).
Eiendommen berøres også av en eldre reguleringsplan, "Tastaveden - gml. bygrense" (ID: 541), vedtatt 27.05.1969. I henhold til denne planen er en svært liten del av tomten (0,11 m²) regulert til kjørevei (feltnavn 310).
Eiendommen omfattes av Kommuneplanens arealdel 2023-2040 (ID: KP 2023-2040), vedtatt 28.06.2024. I kommuneplanen er 685,89 m² av eiendommen avsatt til boligbebyggelse (feltnavn B330).
Eiendommen berøres av gul støysone fra vei, i henhold til kommunens støykartlegging (T-1442). Dette kan medføre krav til støyreduserende tiltak ved byggearbeider.
Det er per d.d. ingen kjente plan- eller byggesaker i nærområdet med direkte innvirkning på eiendommen.
Utsnitt av plan med tilhørende bestemmelser kan fås ved henvendelse til megler.
Økonomi
Økonomi
Kommunale utgifter
Kommunale avgifter er kr 22.233,- for 2026. I dette inngår gebyr for vann, avløp og renovasjon.
Nåværende eier har et strømforbruk som tilsvarer ca. 21.000 kWh pr. år, med en kostnad på ca. kr 10.550,-. Kostnaden er ekskludert nettleie.
Nåværende eier har husforsikring i If Skadeforsikring som koster ca. kr 10.000,- pr. år.
Boligen er tilknyttet Lyse Altibox som leverandør av kabel-tv og internett og koster kr 1.507,- pr. mnd. Ny eier må tegne eget abonnement. Dekoder medfølger.
Utgiftene er basert på nåværende eiers forbruk og avtaler.
Formuesverdi
Formuesverdi for 2024 var kr 1.809.295,- ifølge Skatteetaten. Beløpet forutsetter at eier bor fast i boligen (primærbolig).
Ved eventuell øvrig bruk av eiendommen (f.eks. fritidsbolig, pendlerbolig, utleieobjekt) var formuesverdien for 2024 kr 7.237.181,-.
Fra 2026 har Stortinget vedtatt en oppdatert modell for beregning av formuesverdi for primærbolig, så avvik kan forekomme.
For mer informasjon se skatteetaten.no
Eiendomsskatt
Eiendomsskatt er kr 3.143,- i 2026.
Omkostninger
9 000 000,00 Prisantydning
Omkostninger
225 000,00 Dokumentavgift til staten (2,5% av kjøpesum)
19 900,00 Gjensidige Boligkjøperpakke* (valgfritt)
545,00 Tinglysing panterettsdokument
545,00 Tinglysing skjøte
--------------------------------------------------------
226 090,00 (Omkostninger totalt (uten Gjensidige Boligkjøperpakke))
245 990,00 Omkostninger totalt (med Gjensidige Boligkjøperpakke))
--------------------------------------------------------
9 226 090,00 Totalpris inkl. omkostninger
9 245 990,00 Totalpris inkl. omkostninger (med Gjensidige Boligkjøperpakke)
--------------------------------------------------------
Totalpris inkl. omkostninger forutsetter kjøp til prisantydning.
Det tas forbehold om endringer i avgifter og gebyrer.
Tilbud om lånefinansiering
Megler formidler gjerne kontakt med rådgiver hos vår samarbeidspartner BN Bank. De har konkurransedyktige betingelser samt rask og løsningsorientert behandling av din lånesøknad. Krogsveen mottar et honorar dersom lån opprettes.
Betalingsbetingelser
Kjøpesum inkludert omkostninger, samt pantedokument tilknyttet eventuelt lån, skal være disponibelt hos megler 2 virkedager før overtagelsen.
Annen viktig informasjon
Annen viktig informasjon
Eier
Dag Gunnar Milje
Overtakelse
Etter nærmere avtale.
Boligselgerforsikring
Selger har i forbindelse med salget tegnet boligselgerforsikring levert av Gjensidige.
Boligselgerforsikringen dekker selgers ansvar etter avhendingsloven begrenset oppad til kr 14 millioner. Dersom kjøper oppdager forhold ved eiendommen som hen mener utgjør en mangel ved eiendommen, vil Gjensidige behandle reklamasjonen på vegne av selger. Forsikringsvilkår kan fås ved henvendelse til megler.
Vedlagt salgsoppgaven følger selgers egenerklæringsskjema og tilstandsrapport. Interessenter må sette seg inn i dokumentene før bud inngis.
Boligkjøperforsikring
Innen kontraktsmøtet må kjøper ta stilling til om det ønskes å bestille Boligkjøperpakken gjennom Gjensidige. I denne gunstige pakken er boligen ferdig forsikret og inkluderer rettshjelpsforsikring, også kalt Boligkjøperforsikring. Rettshjelpsforsikring gir trygghet og tilgang på profesjonell juridisk hjelp dersom det oppdages uventede feil eller mangler det første året etter overtagelse. Forsikringsselskapet behandler i så fall ethvert mangelskrav kjøper måtte ha overfor selger.
Boligkjøperpakken inkluderer bygningsforsikring for hus og hytte, innboforsikring, flytteforsikring og dobbel rentedekning - i situasjoner hvor kjøper ikke får solgt nåværende primærbolig.
Kjøper mottar ingen særskilt faktura for Boligkjøperpakken da kostnaden det første året legges til kjøpesummen for boligen. Det gjøres oppmerksom på Krogsveen mottar et honorar for denne formidlingen.
Produktark for Boligkjøperpakken ligger vedlagt i salgsoppgaven.
Dersom ikke boligkjøperpakke ønskes kan kun rettshjelpsforsikring, også kalt boligkjøperforsikring, tegnes særskilt via megler. Rettshjelpsforsikringen varer i 5 år fra overtagelse og leveres gjennom Gjensidige. Ta kontakt med megler for ytterligere informasjon.
Selskap og privatpersoner som driver med kjøp/salg/utvikling som ledd i egen næringsvirksomhet kan ikke tegne boligkjøperpakke eller rettshjelpsforsikring.
Budgivning
Forbrukerinformasjon om budgivning er vedlagt denne salgsoppgaven og er også på vår hjemmeside Krogsveen.no. Alle bud og budforhøyelser må inngis skriftlig. I tillegg må legitimasjon være fremlagt sammen med signatur fra budgiver.
Vi oppfordrer til å gi bud elektronisk via GI BUD-knappen på eiendommens hjemmeside på Krogsveen.no. Da vil samtlige vilkår bli oppfylt.
Eventuelle forhøyelser eller endringer av budet kan bekreftes pr SMS eller på e-post. Vi oppfordrer alltid til å kontakte megler pr. telefon i tillegg da forsinkelser i SMS og e-post kan forekomme.
For at budene skal kunne bli behandlet og videreformidlet skriftlig til alle involverte parter, må alle bud ha en tilstrekkelig lang akseptfrist, jf. eiendomsmeglingsforskriften § 6-3.
Selger må også skriftlig akseptere budet før aksept kan formidles til budgiver. Akseptfrist bør derfor være på minimum 30 minutter, og budforhøyelser må derfor skje i god tid før fristens utløp.
Bud i forbrukerforhold kan uansett ikke settes med kortere frist enn kl. 12.00 første virkedag etter siste annonserte visning. I tillegg kan ikke budet ha forbehold om at det skal holdes hemmelig ovenfor øvrige interessenter. Megler har iht lov om eiendomsmegling ikke anledning til å videreformidle disse budene, og de vil dermed heller ikke bli journalført.
Etter at eiendommen er solgt vil kjøper og selger få tilsendt budjournal. Øvrige budgivere kan få utlevert kopi av budjournalen i anonymisert form.
Hvitvaskingsreglene
I henhold til lov om hvitvasking og terrorfinansiering har megler plikt til å gjennomføre kontrolltiltak overfor kunder, herunder fullmektiger. Dette innebærer bl.a. å bekrefte kunders og reelle rettighetshaveres identitet på bakgrunn av fremvist gyldig legitimasjon eller på annen godkjent måte, samt å innhente opplysninger om kundeforholdets formål og tilsiktede art.
Dersom slike kundetiltak ikke kan gjennomføres, kan megler ikke etablere kundeforholdet eller utføre transaksjonen.
Hvis kjøper ikke bidrar til gjennomføring av kundekontrollen og dette fører til at transaksjonen blir forsinket eller ikke kan gjennomføres, vil dette ansees som mislighold av avtalen og gi selger rettigheter etter avhendingslova kapittel 5. I tilfeller der selger ikke bidrar til gjennomføring av løpende kundekontroll underveis i oppdraget, er det selger som misligholder sine forpliktelser etter avtalen og gi kjøper rettigheter etter avhendingslovens kapittel 4. Partene er selv ansvarlige for eventuelle kostnader og ansvar dette kan medføre. Eiendomsmegleren eller eiendomsmeglingsforetaket kan ikke holdes ansvarlig for de konsekvenser dette vil kunne få for partene eller andre som har interesser i eiendomshandelen.
Kjøper oppfordres til å innbetale kjøpesummen som ikke kommer fra låneinstitusjon i én samlet innbetaling fra egen konto i norsk bank. Megler har plikt til å melde fra til Økokrim om eiendomshandler som fremstår som mistenkelige. Melding sendes Økokrim uten at partene varsles.
Personopplysningsloven
I henhold til personopplysningsloven gjør vi oppmerksom på at interessenter kan bli registrert for videre oppfølging.
Lovanvendelse
Generelle bestemmelser
Salgsoppgaven er basert på de opplysningene selger har gitt til megler, den bygningssakyndiges tilstandsrapport, samt opplysninger innhentet fra kommunen, Kartverket og andre tilgjengelige kilder. Det er viktig at kjøper setter seg grundig inn i alle salgsdokumentene, herunder salgsoppgave, tilstandsrapport og selgers egenerklæring. Kjøper anses kjent med forhold som er tydelig beskrevet i salgsdokumentene, og slike forhold kan ikke påberopes som mangler. Dette gjelder uavhengig av om kjøper har lest dokumentene. Alle interessenter oppfordres til å undersøke eiendommen nøye, gjerne sammen med fagkyndig før bud inngis. Kjøper som velger å kjøpe usett kan ikke gjøre gjeldende som mangel noe han burde blitt kjent med ved undersøkelsen.
Dersom det er behov for avklaringer, anbefaler vi at interessenter rådfører seg med eiendomsmegler eller egne rådgivere før det legges inn bud.
En bolig som har blitt brukt i en viss tid, har vanligvis blitt utsatt for slitasje og skader kan ha oppstått. Slik bruksslitasje må kjøper regne med, og det kan avdekkes enkelte forhold etter overtakelse som nødvendiggjør utbedringer. Normal slitasje og skader som nødvendiggjør utbedring, er innenfor hva kjøper må forvente og vil ikke utgjøre en mangel.
Kjøper og selgers rettigheter og plikter reguleres av avtalen mellom partene, samt informasjonen som har vært tilgjengelig for kjøperen i forbindelse med handelen. Avtalen utfylles av avhendingsloven, og det gjelder ulike avtalevilkår avhengig av om kjøper er forbrukerkjøper eller ikke. Dette er nærmere beskrevet nedenfor.
På grunn av ulike avtalevilkår kan selger vurdere bud fra en som ikke er forbruker, ulikt fra en forbrukers bud. Dersom kjøper ikke er forbruker, er selger sitt mulige mangelsansvar begrenset fordi eiendommen selges "som den er". Selger kan ikke ta «som den er»- forbehold overfor en forbrukerkjøper. Selv et lavere bud fra en som ikke er forbruker kan foretrekkes fordi begrensningen i mulig mangelsansvar kan ha egenverdi for selger. Selger står fritt til å forkaste eller akseptere ethvert bud, og er for eksempel ikke forpliktet til å akseptere høyeste bud.
Budgiver skal i budskjema avgi egenerklæring om budgiver er forbruker eller næringsdrivende/ person som hovedsakelig handler som ledd i næringsvirksomhet. Budgivere får informasjon dersom andre bud er inngitt av en som ikke er forbruker.
Forbrukerkjøp - definisjon
Med forbrukerkjøp menes kjøp av eiendom når kjøperen er en fysisk person som ikke hovedsakelig handler som ledd i næringsvirksomhet.
Forbruker – avtalevilkår
Eiendommen har en mangel dersom den ikke er i samsvar med kravene som følger av avtalen, eller det foreligger brudd på bestemmelsene i avhendingsloven §§ 3-2 til 3-8. Hvis eiendommen ikke er i samsvar med det kjøperen må kunne forvente ut ifra alder, type og synlig tilstand, kan det være grunnlag for mangelskrav. Det samme gjelder hvis det er holdt tilbake eller gitt uriktige opplysninger om eiendommen. Dette gjelder likevel bare dersom man kan gå ut ifra at det virket inn på avtalen at opplysningen ikke ble gitt eller at mangelskravet ikke blir rettet i tide på en tydelig måte.
Boligen kan ha en mangel etter avhendingsloven § 3-3 andre ledd, dersom det er avvik mellom opplyst og faktisk innvendig areal, forutsatt at avviket er på 2% eller mer og minimum 1 kvm.
Ved beregning av et eventuelt prisavslag eller erstatning må kjøper selv dekke tap/kostnader opptil et beløp på kr 10 000 (egenandel).
Ikke-forbruker (næringsdrivende) – definisjon
Hvis kjøper er en juridisk person, eller en fysisk person som hovedsakelig handler som ledd i næringsvirksomhet, vil kjøpet ikke anses som et forbrukerkjøp.
Ikke-forbruker – avtalevilkår
Eiendommen har en mangel dersom den ikke er i samsvar med kravene som følger av avtalen.
Eiendommen selges «som den er», og selgers ansvar utover det konkret avtalte er da begrenset etter avhendingsloven § 3-9, første ledd andre setning.
Avhendingsloven § 3-3 andre ledd fravikes, og hvorvidt boligens arealsvikt utgjør en mangel vurderes etter avhendingsloven § 3-8.
Informasjon om kjøpers undersøkelsesplikt, herunder oppfordringen om å undersøke eiendommen nøye, gjelder også for kjøpere som ikke anses som forbrukere.
Det forutsettes at hjemmel overføres til kjøper. Hvis kjøper ikke ønsker hjemmelsoverføring av eiendommen, må det tas forbehold om dette i budet.
Meglers vederlag
Meglers vederlag betales av selger og er avtalt til:
Vederlag: 0,80 % av salgssummen.
Vederlag:
Kontroll av hjemmel og heftelser kr 4 500,00
Markedsføringspakke kr 28 900,00
Oppgjør kr 8 900,00
Salgsoppgaver vanlige kr 5 500,00
Tilrettelegging kr 11 900,00
Visninger pr stk / Overtagelse 4500'2 kr 9 000,00
Utlegg:
Innhenting av offentlig opplysninger kommune kr 3 166,02
Tinglysing sikring kr 545,00
Andre utgifter:
AX tilstandsrapport rekkehus/tomannsbolig over 100 kvm kr 14 950,00
Foto kr 4 800,00
Vi er opptatt av verdiskapning, og har knyttet til oss samarbeidspartnere som skal sikre våre kunder de beste produkter og tjenester;
• I forbindelse med forberedelse av salget, innhenter vi informasjon om eiendommen hovedsakelig fra vår samarbeidspartner Ambita.
• Gjensidige leverer boligselgerforsikring og tilbyr bygningsforsikring
• Boligkjøperforsikring leveres av Hiscox og med Sedgwick som skadebehandler, og er formidlet gjennom Gjensidige.
• BN bank tilbyr finansieringsløsninger
• Vår avdeling Krogsveen Pluss tilbyr flyttetjenester som utvask, visningsvask, lager, tømming og transport av flyttelass, i tillegg til å formidle kontakt med Flip for overflateoppussing.
• I forbindelse med overtagelse av eiendommen tilbyr Overo avtale om strøm, alarm og bredbånd.
• Krogsveen er, sammen med øvrige bransjeaktører, medeier i Bomega AS som tilbyr den digitale annonseringsplattformen Hjem.
Opplysninger om oppdraget
Oppdragsnummer 35-0169/26
Eiendomsmegler Krogsveen AS, avd. Stavanger
Nedre Strandgate 41, 4005, STAVANGER
950007613
Oppdragets KR-kode KR35.26169
Dato
Sist oppdatert: 30. april 2026 kl. 22:56
Dokumenter
Dokumenter
PDF – 914 KB
PDF – 168 KB
PDF – 7 MB
PDF – 1 MB
PDF – 892 KB
PDF – 312 KB
PDF – 29 KB
PDF – 127 KB
PDF – 392 KB
Område
Legg til steder som er viktige for deg
Visning
Unngå doble boligrenter
Vi tilbyr gunstig forsikring.
Vurderer du utleie?
Få et tilbud fra Utleie KrogsveenHva koster lånet?
Sjekk estimert lånekostnadVil du varsles om lignende boliger?
Ved å lagre ditt boligsøk hos oss får du beskjed når vi har en bolig som ligner denne, før den legges ut på markedet!



















































