Grønnegata 142
2 350 000 kr
52 m²
1 soverom
Komplett salgsoppgave
Hamar
Flott 2-roms hjørneleilighet i Hamar sentrum med balkong, fin planløsning og parkeringsplass i bakgård.
Prisantydning
2 350 000 krAndel fellesgjeld
249 525 krOmkostninger
11 040 krTotalpris
2 610 565 kr
Pris
Bruksareal
55 m²BRA-I (internt bruksareal)
52 m²BRA-E (eksternt bruksareal)
3 m²TBA (terrasse-balkongareal)
4 m²
Areal
Etasje
3Byggeår
1989Soverom
1 soveromBad
1 badType
AndelsleilighetEierform
AndelFellesutgifter
7 803 kr
Nøkkelinfo
Unngå doble boligrenter
Vi tilbyr gunstig forsikring.
Vurderer du utleie?
Få et tilbud fra Utleie KrogsveenHva koster lånet?
Sjekk estimert lånekostnadBeskrivelse
Kort om eiendommen
Flott 2-roms andelsleilighet i Hamar sentrum hvor man bor kun en kort spasertur unna byens gode utvalg av butikker, spisesteder, Kulturhuset og Mjøsa med bade- og turmuligheter. Leiligheten ligger i 3. etasje og har en fin planløsning med soverom av god størrelse, baderom med opplegg for vaskemaskin, stue med utgang til balkong og kjøkken i egen sone.
- Hjørneleilighet som gir gode og naturlige lysforhold
- Stue med plass til flere møbleringssoner
- Parkeringsplass i bakgård
- Alle servicefasiliteter innenfor gangavstand
- Bod i samme etasje som leiligheten
Velkommen til en hyggelig visning!
Innhold og byggemåte
Innhold og byggemåte
Eiendommen
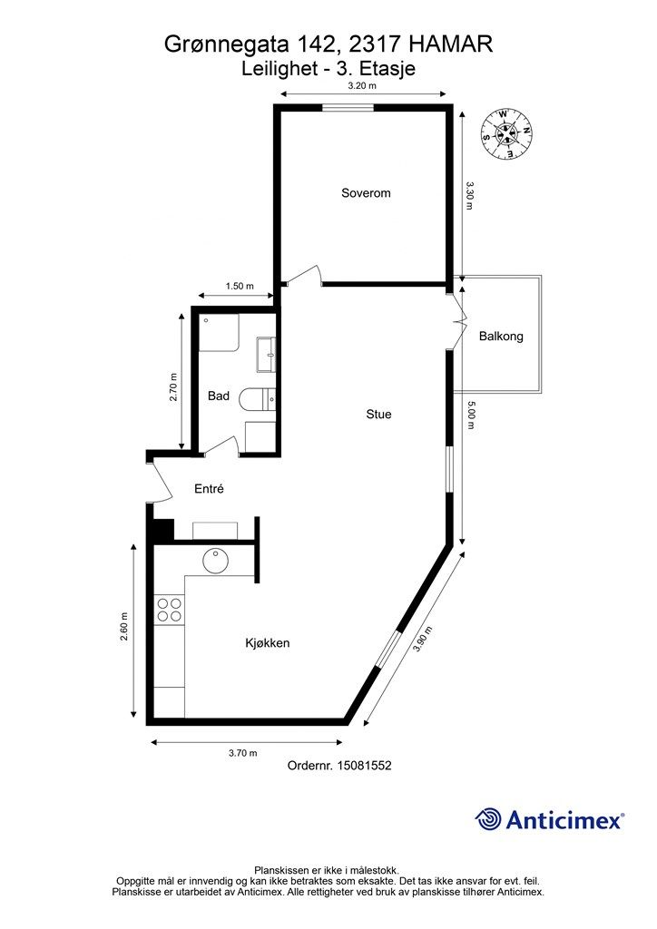
Grønnegata 142, 2317 HAMAR
Kommunenummer 3403, gårdsnummer 1, bruksnummer 158, seksjonsnummer 4, ideell andel 1/1
Andelsnummer 10230, Grønnegata 142 brl, organisasjonsnummer 951164038
Innhold
Totalt bruksareal BRA: 55 kvm
BRA-i:
3. etasje 52 kvm: Entré, bad, soverom, stue og kjøkken.
BRA-e:
3. etasje 3 kvm: Bod.
Åpent areal:
3. etasje 4 kvm: Balkong.
Leiligheten har et totalt gulvareal (GUA) på 53 kvm, men grunnet skråtak/lav takhøyde er kun 52 kvm av arealet måleverdig som bruksareal. De delene av arealene som har lav himlingshøyde (ALH) utgjør 1 kvm.
Boden har et totalt gulvareal (GUA) på 4 kvm, men grunnet skråtak/lav takhøyde er kun 3 kvm av arealet måleverdig som bruksareal. De delene av arealene som har lav himlingshøyde (ALH) utgjør 1 kvm.
Boligen disponerer én bod (oppgitt som BRA-e). Det gjøres oppmerksom på at boligens eksterne boder tilhører borettslagets fellesareal, og at boden således ikke eies av den enkelte andelseier. Dette medfører at borettslaget i fellesskap beslutter bruken, og at man ikke selv har eierrett og rettsvern for boden. Borettslaget kan ved vedtak beslutte annet bruk av fellesarealet og disponering av bodarealet kan dermed opphøre.
Vedlagte plantegninger er ikke målbare. De oppgitte arealer er hentet fra rapport med befaringsdato 24.04.2026 utført av Anticimex v/Pål Granseth Aasbakken. Arealene er beregnet og rom er definert etter dagens faktiske bruk, uavhengig av hva som er godkjent av bygningsmyndighetene.
Byggemåte
Selger har innhentet en tilstandsrapport av boligen/eiendommen. Av rapporten fremgår det at flere bygningsdeler har fått tilstandsgrad ikke undersøkt/ikke tilgjengelig for undersøkelse (TG IU), 2 (TG2) og/eller 3 (TG3). Rapporten beskriver også avvik på undersøkte bygningsdeler uten tilstandsgrad. Kjøper overtar ansvaret for de opplysninger som fremkommer av salgsdokumentasjonen, og kan ikke gjøre gjeldende som mangel noe som burde vært kjent eller som ikke kan anses å ha betydning for avtalen.
Bygningen er iht. tilstandsrapporten:
Leilighetsbygg oppført i 1989. Grunnmur og bærende konstruksjoner i hovedsak av betong. Yttervegger i en kombinasjon av tre- og betongkonstruksjoner. Utvendige fasader av murpuss. Etasjeskillere av betong. Saltak i trekonstruksjoner. Yttertak er belagt med takstein. Entrédør med dørkikkert. Vinduer med karmer av tre. Balkongdør med karmer av tre. Boligen ventileres med en kombinasjon av naturlig ventilasjon (gjennom vinduer og ventiler) og stedvis mekanisk avtrekk.
Det gjøres spesielt oppmerksom på at følgende bygningsdeler har fått TG2 (Vesentlige avvik):
Bad:
• Det er registrert riss/sprekker i enkelte fliser ved blandebatteri i dusj og tegn til riss og sprekker i flisfuger inne i dusjsonen.
• Fallforhold utenfor sluksonen vurderes ikke til å være tilstrekkelig for å lede eventuelt lekkasjevann til sluk, og det er ikke påvist at vanntett sjikt har tilstrekkelig oppkant ved dørterskel for å kompensere for dette.
• Vanntett sjikt har en alder som tilsier at fremtidig funksjon er usikker.
• Selv om våtrommet er oppgradert, er sluket ikke skiftet.
• Vannrør av kobber (og tilhørende komponenter) har en alder som tilsier at fremtidig funksjon er usikker.
• Det er registrert redusert avrenningshastighet i avløp til servant.
• Innredningen bærer samlet sett preg av slitasje og enkelte mindre skader (dørhengsler og lignende).
Kjøkken:
• Gulvets overflatemateriale har tegn til svelleskader.
• Vannrør av kobber (og tilhørende komponenter) har en alder som tilsier at fremtidig funksjon er usikker.
Teknisk anlegg:
• Boligens vannrør av kobber (og tilhørende komponenter) har en alder som tilsier at fremtidig funksjon er usikker.
• Varmtvannsberederen er bygget inne, og kan derfor ikke undersøkes tilstrekkelig (plassert i hjørne under kjøkkenbenk).
• Varmtvannsberederen står i et rom uten tilstrekkelig lekkasjesikring.
Øvrige rom:
• Det observeres stedvis tegn til riss/sprekker i takflater ved overgang skrå til flat himling.
• Det observeres stedvis tegn til riss i veggflater.
• Synlige deler av gulvets overflatemateriale bærer preg av slitasje med enkelte gliper, riper og hakk.
• Det vurderes at det ikke er tilstrekkelige åpninger/luftespalter mellom rom for å sikre tilfredsstillende luftgjennomstrømning, noe som er et viktig prinsipp for ventilasjon av boliger.
• Deler av etasjen har skråtak som er en lukket konstruksjon. Slike konstruksjoner betraktes erfaringsmessig som fuktrisikokonstruksjoner.
Yttervegger:
• Enkelte moderate tegn til riss i overflaten.
Yttertak:
• Taket er ikke fysisk inspisert grunnet manglende tilkomst og sikkerhetsmessige forhold.
Det gjøres spesielt oppmerksom på at følgende bygningsdeler har fått TGIU (Ikke undersøkt):
Øvrige rom:
• Deler av overflatene i soverom var ikke tilgjengelige for inspeksjon på grunn av inventar som var oppbevart i rommet på befaringsdagen.
Balkonger:
• Rekkverkshøyder, lysåpninger og andre sikkerhetsmessige forhold er kontrollert opp mot dagens gjeldende byggtekniske forskrift, selv om denne ikke har tilbakevirkende kraft.
Se supplerende tekst i tilstandsrapporten. Kjøper overtar ansvar og risiko for dette.
Tilstandsrapporten er inntatt i salgsoppgaven. Rapporten inneholder informasjon om avvikene og konsekvensen av disse. For avvik som er gitt TG3 har den bygningssakkyndige i tillegg gitt et anslag på hva det vil koste å utbedre disse avvikene. Ettersom kjøper regnes å være kjent med forhold som tydelig fremgår av tilstandsrapporten, oppfordres du til å sette deg grundig inn i rapporten i sin helhet.
Standard
Kjøkken:
Innredning er fra ukjent årstall. Det er glatte fronter, benkeplate av tre, kjøkkenvask og benkeskapsbelysning og stikkontakter over kjøkkenbenk. Gulvflater belagt med parkett, malte veggflater, malte flater i himling og fliser mellom kjøkkenbenk og overskap. Ventilator i overskap. Frittstående komfyr, oppvaskmaskin og kjøleskap med fryser. Det er kun de hvitevarene som er listet opp som følger med. Disse hvitevarene følger med: Kjøleskap, oppvaskmaskin, komfyr og vaskemaskin slik det fremstår på visning.
Varmtvannsbereder er plassert under kjøkkenbenk.
Bad:
Baderom oppgradert i 2010. Det er flislagt gulv med gulvvarme, flislagte vegger og malte flater i himling. Vegghengt servantinnredning, speil med overlys, vegghengt skap ved speil, dusjhjørne med dører, gulvstående toalett og opplegg for vaskemaskin.
Øvrige rom:
Gulvflater belagt med parkett, malte veggflater og malte flater i himling. Det er profilerte innerdører.
Løsøre og tilbehør
Vi viser til liste fra Norges Eiendomsmeglerforbund som gjelder fra 01.01.2020 angående løsøre og tilbehør.
Selger opplyser at følgende fastmontert løsøre og tilbehør ikke medfølger:
- Speil i gang
- Tre vaser og én hylle på vegg i stue
- Speil på soverom
Oppvarming
Oppvarming ved bruk av panelovner (elektrisk oppvarming) og gulvvarme/varmekabler på bad.
Dersom beboelsesrom ikke har vegg- eller fastmonterte varmekilder ved visning, følger dette heller ikke med.
Ferdigattest/brukstillatelse
Det foreligger ferdigattest på fors. lokale, kontor og leiligheter, datert 27.09.1990. Denne kan fås ved henvendelse til megler.
Det foreligger ferdigattest på ombygging, utvidelser og fasadeendring, datert 10.09.2018. Denne kan fås ved henvendelse til megler.
Det er mottatt byggetegninger fra kommunen. Disse er i samsvar med dagens bruk.
Eventuell adgang til utleie
Andelseier kan ikke uten samtykke fra styret i borettslaget overlate bruken av boligen til andre. Med samtykke kan andelseier overlate boligen til andre i inntil tre år hvis andelseier har bodd i boligen i minst ett av de to siste år. Utleie i andre tilfeller kan godtas ved særlige grunner, jf. burettslagslova § 5-6. Utleie forutsetter at leiligheten har forsvarlige radonverdier. Se også borettslagets vedtekter og konferer megler ved spørsmål.
Diverse
I følge Elvia ble det elektriske anlegget sist kontrollert 17.12.2009. Foreligger det pålegg om utbedring av feil på det elektriske anlegget: Nei.
Beliggenhet og tomteforhold
Beliggenhet og tomteforhold
Beliggenhet
Leiligheten ligger med kort gangavstand til sentrum, Mjøsa og byens fasiliteter. Det er kort avstand til Stortorget med Kulturhuset, biblioteket, kino, restauranter og Rema 1000 i Basarene-bygget. Mjøsa gir gode turmuligheter til bl.a. strandpromenaden forbi Ridehuset og i retning Domkirkeodden og Jessnes. Strandområdet er opparbeidet med skatepark, volleyballbane, basketballbane og stupetårn. Det er i tillegg kort vei til CC Hamar med et godt utvalg av butikker og Ankerskogen med blant annet svømmehall.
Adkomst
Se kart for adkomst.
Det vil bli skiltet med Krogsveen visningsskilt ved fellesvisninger.
Beskrivelse av tomt
Eiertomt på 868 kvm som tilhører borettslaget. Tomten er opparbeidet med asfalt.
Parkering
Leiligheten disponerer én biloppstillingsplass i bakgården. Øvrig gateparkering etter områdets til en hver tid gjeldende bestemmelser.
Det gjøres oppmerksom på at arealet til biloppstillingsplassene tilhører sameiets fellesareal, og at biloppstillingsplassen således ikke eies av den enkelte andelseier. Dette medfører at sameiet i fellesskap beslutter bruken, og at man ikke selv har eierrett og rettsvern for biloppstillingsplassen. Sameiet kan ved vedtak beslutte annet bruk av fellesarealet og disponering av biloppstillingsplassen kan dermed opphøre.
Vei, vann og avløp
Eiendommen har adkomst via kommunal vei.
Eiendommen er tilknyttet kommunalt ledningsnett via private stikkledninger. Eier er selv ansvarlig for private stikkledninger til boligen.
Regulerings-og arealplaner
Eiendommen omfattes av Områderegulering for Vestbyen 2 datert 31.08.2011 hvor eiendommen er regulert til sentrumsformål.
Eiendommen omfattes også Kommunedelplan for Hamar sentrum datert 24.05.2023 hvor eiendommen er regulert til sentrumsformål.
Eiendommen omfattes også av Kommuneplanens arealdel 2018-2030 datert 30.05.2018 hvor eiendommen er regulert til sentrumsformål.
Utsnitt av plan med tilhørende bestemmelser kan fås ved henvendelse til megler.
Økonomi
Økonomi
Boligens kostnader
Felleskostnadene er kr. 7 803 pr. mnd. og inkluderer kommunale avgifter, strøm i fellesarealer, TV/ bredbånd, snørydding, vaktmestertjenester og kostnader til drift og vedlikehold. Felleskostnadene justeres normalt en til to ganger årlig i forhold til borettslagets faktiske utgifter og ble sist justert. 01.01.2026.
Det foreligger ikke erfaringstall for strømforbruk.
Boligen er tilknyttet Telenor som leverandør av kabel-tv og har avgift på kr. 848 pr. mnd. Tv-tuner/dekoder medfølger.
Utgiftene er basert på nåværende eiers forbruk. Kjøper må selv tegne innboforsikring.
Formuesverdi
Formuesverdi for 2024 var kr. 626 880 ifølge selgers skattemelding/Skatteetaten. Beløpet forutsetter at eier bor fast i boligen (primærbolig).
Ved eventuell øvrig bruk av eiendommen (f.eks. fritidsbolig, pendlerbolig, utleieobjekt) var formuesverdien for 2024 kr. 2 507 521.
Fra 2026 har Stortinget vedtatt en oppdatert modell for beregning av formuesverdi for primærbolig, så avvik kan forekomme.
For mer informasjon se skatteetaten.no.
Opplysninger om fellesgjeld
Andel formue er kr.34 578 pr. 31.12.2025
Andel fellesgjeld er kr. 249 525 pr. 17.04.2026
Total fellesgjeld for boligselskapet er kr. 2 599 265 pr. 17.04.2026 og lånevilkårene er:
Rentebetingelser: 5,49% flytende rente
Innfrielsesdato: 30.06.2049
Avdragsfrihet: Nei
Borettslaget har ikke tilrettelagt for individuell nedbetaling av andel fellesgjeld.
Omkostninger
2 350 000,00 Prisantydning
249 525,00 Andel av fellesgjeld
--------------------------------------------------------
2 599 525,00 Pris inkl. fellesgjeld
Omkostninger
9 950,00 Gjensidige Boligkjøperpakke* (valgfritt)
545,00 Tinglysing hjemmel
545,00 Tinglysing panterettsdokument
--------------------------------------------------------
1 090,00 Omkostninger totalt (uten Gjensidige Boligkjøperpakke)
11 040,00 Omkostninger totalt (med Gjensidige Boligkjøperpakke)
--------------------------------------------------------
2 600 615,00 Totalpris inkl. omkostninger
2 610 565,00 Totalpris inkl. omkostninger (med Gjensidige Boligkjøperpakke)
--------------------------------------------------------
Dersom kjøper ikke er medlem av boligbyggelaget, må det påregnes en innmeldingsavgift og årlig medlemsgebyr pr. ny andelseier. Dette faktureres direkte fra boligbyggelaget.
Dersom borettslaget har fellesgjeld, vil leilighetens andel av fellesgjelden komme i tillegg til kjøpesummen. Denne gjelden skal ikke innbetales i oppgjøret, men følger leiligheten.
Det tas forbehold om endringer i avgifter og gebyrer.
Betalingsbetingelser
Kjøpesum inkludert omkostninger, samt pantedokument tilknyttet eventuelt lån, skal være disponibelt hos megler 2 virkedager før overtagelsen.
Annen viktig informasjon
Annen viktig informasjon
Eier
Renate Kromann Øgaard
Informasjon om borettslaget
Leiligheten er tilknyttet Grønnegata 142 borettslag. Borettslaget består av 10 leiligheter.
Forretningsfører er OBOS Eiendomsforvaltning.
Dugnad må påregnes.
Det er tillatt med hundehold i borettslagets leiligheter. Søknad skal forelegges generalforsamlingen. Det forutsettes imidlertid at hundeholdet ikke er til sjenanse for andre beboere i borettslaget.
Styret opplyser at det pr. 29.04.2026 ikke er vedtatt eler igangsatt noe vedlikehold som øker felleskostnadene.
I henhold til borettslagets vedtekter må kjøper godkjennes av styret som ny andelseier. Det er kjøpers ansvar at styregodkjenning blir gitt, men styret kan ikke nekte godkjenning uten saklig grunn.
Iht. burettslagslova kan man bare eie én andel i borettslaget. Kun fysiske personer kan være andelseiere.
Øvrige andelseiere i borettslaget og eventuelt medlemmer av boligbyggelaget har forkjøpsrett. I henhold til burettslagslova tar dette inntil 20 dager å avklare fra melding om salget er gitt borettslaget. Dersom boligen tas på forkjøpsrett løses kjøper fra avtalen.
For å dekke eventuell manglende innbetaling av fellesutgifter fra øvrige andelseiere, er borettslaget tilknyttet et sikringsfond gjennom OBOS. Dette innebærer at OBOS innbetaler samtlige felleskostnader til borettslaget hver måned og dermed overtar ansvar og risiko for eventuell inndrivelse av utestående fellesutgifter. Avtalen om sikringsfond gjennom OBOS er gyldig til den sies opp av en av partene. Oppsigelsesfrist er 12 måneder.
Overtakelse
Etter nærmere avtale. Overtakelse kan tidligst skje etter at forkjøpsretten for øvrige andelseiere i borettslaget og eventuelt medlemmer av boligbyggelaget er avklart, samt at styrets godkjennelse er avklart.
Boligselgerforsikring
Selger har i forbindelse med salget tegnet boligselgerforsikring levert av Gjensidige.
Boligselgerforsikringen dekker selgers ansvar etter avhendingsloven begrenset oppad til kr 14 millioner. Dersom kjøper oppdager forhold ved eiendommen som hen mener utgjør en mangel ved eiendommen, vil Gjensidige behandle reklamasjonen på vegne av selger. Forsikringsvilkår kan fås ved henvendelse til megler.
Vedlagt salgsoppgaven følger selgers egenerklæringsskjema og tilstandsrapport. Interessenter må sette seg inn i dokumentene før bud inngis.
Boligkjøperforsikring
Innen kontraktsmøtet må kjøper ta stilling til om det ønskes å bestille Boligkjøperpakken gjennom Gjensidige. I denne gunstige pakken er boligen ferdig forsikret og inkluderer rettshjelpsforsikring, også kalt Boligkjøperforsikring. Rettshjelpsforsikring gir trygghet og tilgang på profesjonell juridisk hjelp dersom det oppdages uventede feil eller mangler det første året etter overtagelse. Forsikringsselskapet behandler i så fall ethvert mangelskrav kjøper måtte ha overfor selger.
Boligkjøperpakken inkluderer bygningsforsikring for hus og hytte, innboforsikring, flytteforsikring og dobbel rentedekning - i situasjoner hvor kjøper ikke får solgt nåværende primærbolig.
Kjøper mottar ingen særskilt faktura for Boligkjøperpakken da kostnaden det første året legges til kjøpesummen for boligen. Det gjøres oppmerksom på Krogsveen mottar et honorar for denne formidlingen.
Produktark for Boligkjøperpakken ligger vedlagt i salgsoppgaven.
Dersom ikke boligkjøperpakke ønskes kan kun rettshjelpsforsikring, også kalt boligkjøperforsikring, tegnes særskilt via megler. Rettshjelpsforsikringen varer i 5 år fra overtagelse og leveres gjennom Gjensidige. Ta kontakt med megler for ytterligere informasjon.
Selskap og privatpersoner som driver med kjøp/salg/utvikling som ledd i egen næringsvirksomhet kan ikke tegne boligkjøperpakke eller rettshjelpsforsikring.
Budgivning
Forbrukerinformasjon om budgivning er vedlagt denne salgsoppgaven og er også på vår hjemmeside Krogsveen.no. Alle bud og budforhøyelser må inngis skriftlig. I tillegg må legitimasjon være fremlagt sammen med signatur fra budgiver.
Vi oppfordrer til å gi bud elektronisk via GI BUD-knappen på eiendommens hjemmeside på Krogsveen.no. Da vil samtlige vilkår bli oppfylt.
Eventuelle forhøyelser eller endringer av budet kan bekreftes pr SMS eller på e-post. Vi oppfordrer alltid til å kontakte megler pr. telefon i tillegg da forsinkelser i SMS og e-post kan forekomme.
For at budene skal kunne bli behandlet og videreformidlet skriftlig til alle involverte parter, må alle bud ha en tilstrekkelig lang akseptfrist, jf. eiendomsmeglingsforskriften § 6-3.
Selger må også skriftlig akseptere budet før aksept kan formidles til budgiver. Akseptfrist bør derfor være på minimum 30 minutter, og budforhøyelser må derfor skje i god tid før fristens utløp.
Bud i forbrukerforhold kan uansett ikke settes med kortere frist enn kl. 12.00 første virkedag etter siste annonserte visning. I tillegg kan ikke budet ha forbehold om at det skal holdes hemmelig ovenfor øvrige interessenter. Megler har iht lov om eiendomsmegling ikke anledning til å videreformidle disse budene, og de vil dermed heller ikke bli journalført.
Etter at eiendommen er solgt vil kjøper og selger få tilsendt budjournal. Øvrige budgivere kan få utlevert kopi av budjournalen i anonymisert form.
Hvitvaskingsreglene
I henhold til lov om hvitvasking og terrorfinansiering har megler plikt til å gjennomføre kontrolltiltak overfor kunder, herunder fullmektiger. Dette innebærer bl.a. å bekrefte kunders og reelle rettighetshaveres identitet på bakgrunn av fremvist gyldig legitimasjon eller på annen godkjent måte, samt å innhente opplysninger om kundeforholdets formål og tilsiktede art.
Dersom slike kundetiltak ikke kan gjennomføres, kan megler ikke etablere kundeforholdet eller utføre transaksjonen.
Hvis kjøper ikke bidrar til gjennomføring av kundekontrollen og dette fører til at transaksjonen blir forsinket eller ikke kan gjennomføres, vil dette ansees som mislighold av avtalen og gi selger rettigheter etter avhendingslova kapittel 5. I tilfeller der selger ikke bidrar til gjennomføring av løpende kundekontroll underveis i oppdraget, er det selger som misligholder sine forpliktelser etter avtalen og gi kjøper rettigheter etter avhendingslovens kapittel 4. Partene er selv ansvarlige for eventuelle kostnader og ansvar dette kan medføre. Eiendomsmegleren eller eiendomsmeglingsforetaket kan ikke holdes ansvarlig for de konsekvenser dette vil kunne få for partene eller andre som har interesser i eiendomshandelen.
Kjøper oppfordres til å innbetale kjøpesummen som ikke kommer fra låneinstitusjon i én samlet innbetaling fra egen konto i norsk bank. Megler har plikt til å melde fra til Økokrim om eiendomshandler som fremstår som mistenkelige. Melding sendes Økokrim uten at partene varsles.
Personopplysningsloven
I henhold til personopplysningsloven gjør vi oppmerksom på at interessenter kan bli registrert for videre oppfølging.
Lovanvendelse
Generelle bestemmelser
Salgsoppgaven er basert på de opplysningene selger har gitt til megler, den bygningssakyndiges tilstandsrapport, samt opplysninger innhentet fra kommunen, Kartverket og andre tilgjengelige kilder. Det er viktig at kjøper setter seg grundig inn i alle salgsdokumentene, herunder salgsoppgave, tilstandsrapport og selgers egenerklæring. Kjøper anses kjent med forhold som er tydelig beskrevet i salgsdokumentene, og slike forhold kan ikke påberopes som mangler. Dette gjelder uavhengig av om kjøper har lest dokumentene. Alle interessenter oppfordres til å undersøke eiendommen nøye, gjerne sammen med fagkyndig før bud inngis. Kjøper som velger å kjøpe usett kan ikke gjøre gjeldende som mangel noe han burde blitt kjent med ved undersøkelsen.
Dersom det er behov for avklaringer, anbefaler vi at interessenter rådfører seg med eiendomsmegler eller egne rådgivere før det legges inn bud.
En bolig som har blitt brukt i en viss tid, har vanligvis blitt utsatt for slitasje og skader kan ha oppstått. Slik bruksslitasje må kjøper regne med, og det kan avdekkes enkelte forhold etter overtakelse som nødvendiggjør utbedringer. Normal slitasje og skader som nødvendiggjør utbedring, er innenfor hva kjøper må forvente og vil ikke utgjøre en mangel.
Kjøper og selgers rettigheter og plikter reguleres av avtalen mellom partene, samt informasjonen som har vært tilgjengelig for kjøperen i forbindelse med handelen. Avtalen utfylles av avhendingsloven, og det gjelder ulike avtalevilkår avhengig av om kjøper er forbrukerkjøper eller ikke. Dette er nærmere beskrevet nedenfor.
På grunn av ulike avtalevilkår kan selger vurdere bud fra en som ikke er forbruker, ulikt fra en forbrukers bud. Dersom kjøper ikke er forbruker, er selger sitt mulige mangelsansvar begrenset fordi eiendommen selges "som den er". Selger kan ikke ta «som den er»- forbehold overfor en forbrukerkjøper. Selv et lavere bud fra en som ikke er forbruker kan foretrekkes fordi begrensningen i mulig mangelsansvar kan ha egenverdi for selger. Selger står fritt til å forkaste eller akseptere ethvert bud, og er for eksempel ikke forpliktet til å akseptere høyeste bud.
Budgiver skal i budskjema avgi egenerklæring om budgiver er forbruker eller næringsdrivende/ person som hovedsakelig handler som ledd i næringsvirksomhet. Budgivere får informasjon dersom andre bud er inngitt av en som ikke er forbruker.
Forbrukerkjøp - definisjon
Med forbrukerkjøp menes kjøp av eiendom når kjøperen er en fysisk person som ikke hovedsakelig handler som ledd i næringsvirksomhet.
Forbruker – avtalevilkår
Eiendommen har en mangel dersom den ikke er i samsvar med kravene som følger av avtalen, eller det foreligger brudd på bestemmelsene i avhendingsloven §§ 3-2 til 3-8. Hvis eiendommen ikke er i samsvar med det kjøperen må kunne forvente ut ifra alder, type og synlig tilstand, kan det være grunnlag for mangelskrav. Det samme gjelder hvis det er holdt tilbake eller gitt uriktige opplysninger om eiendommen. Dette gjelder likevel bare dersom man kan gå ut ifra at det virket inn på avtalen at opplysningen ikke ble gitt eller at mangelskravet ikke blir rettet i tide på en tydelig måte.
Boligen kan ha en mangel etter avhendingsloven § 3-3 andre ledd, dersom det er avvik mellom opplyst og faktisk innvendig areal, forutsatt at avviket er på 2% eller mer og minimum 1 kvm.
Ved beregning av et eventuelt prisavslag eller erstatning må kjøper selv dekke tap/kostnader opptil et beløp på kr 10 000 (egenandel).
Ikke-forbruker (næringsdrivende) – definisjon
Hvis kjøper er en juridisk person, eller en fysisk person som hovedsakelig handler som ledd i næringsvirksomhet, vil kjøpet ikke anses som et forbrukerkjøp.
Ikke-forbruker – avtalevilkår
Eiendommen har en mangel dersom den ikke er i samsvar med kravene som følger av avtalen.
Eiendommen selges «som den er», og selgers ansvar utover det konkret avtalte er da begrenset etter avhendingsloven § 3-9, første ledd andre setning.
Avhendingsloven § 3-3 andre ledd fravikes, og hvorvidt boligens arealsvikt utgjør en mangel vurderes etter avhendingsloven § 3-8.
Informasjon om kjøpers undersøkelsesplikt, herunder oppfordringen om å undersøke eiendommen nøye, gjelder også for kjøpere som ikke anses som forbrukere.
Det forutsettes at hjemmel overføres til kjøper. Hvis kjøper ikke ønsker hjemmelsoverføring av eiendommen, må det tas forbehold om dette i budet.
Meglers vederlag
Meglers vederlag betales av selger og er avtalt til:
Vederlag: 1,80 % av salgssummen.
Vederlag:
Kontroll av hjemmel og heftelser kr 3 900,00
Markedsføringspakke kr 29 900,00
Oppgjør kr 8 900,00
Tilrettelegging kr 19 900,00
Visninger kr 4 500,00
Utlegg:
Eierskiftegebyr forretningsfører - OBOS kr 6 725,00
Innhenting av informasjon forretningsfører OBOS kr 4 375,00
Innhenting av offentlig opplysninger - ligningsverdi kr 117,00
Innhenting av offentlig opplysninger, ferdigattest alle kommune kr 515,00
Tinglysing sikring kr 545,00
Andre utgifter:
AX tilstandsrapport leilighet kr 10 750,00
Boligselgerforsikring Gjensidige Andel/Aksje regnes av prisant. kr 6 187,00
Foto - 20 bilder - drone kr 6 019,00
Vi er opptatt av verdiskapning, og har knyttet til oss samarbeidspartnere som skal sikre våre kunder de beste produkter og tjenester;
• I forbindelse med forberedelse av salget, innhenter vi informasjon om eiendommen hovedsakelig fra vår samarbeidspartner Ambita.
• Gjensidige leverer boligselgerforsikring og tilbyr bygningsforsikring
• Boligkjøperforsikring leveres av Hiscox og med Sedgwick som skadebehandler, og er formidlet gjennom Gjensidige.
• BN bank tilbyr finansieringsløsninger
• Vår avdeling Krogsveen Pluss tilbyr flyttetjenester som utvask, visningsvask, lager, tømming og transport av flyttelass, i tillegg til å formidle kontakt med Flip for overflateoppussing.
• I forbindelse med overtagelse av eiendommen tilbyr Overo avtale om strøm, alarm og bredbånd.
• Krogsveen er, sammen med øvrige bransjeaktører, medeier i Bomega AS som tilbyr den digitale annonseringsplattformen Hjem.
Opplysninger om oppdraget
Oppdragsnummer 65-0095/26
Eiendomsmegler Krogsveen AS, avd. Hamar
Strandgata 31, 2308, HAMAR
950 007 613
Oppdragets KR-kode KR65.2695
Dato
Sist oppdatert: 30. april 2026 kl. 11:21
Dokumenter
Dokumenter
PDF – 920 KB
PDF – 166 KB
PDF – 11 MB
PDF – 554 KB
PDF – 543 KB
PDF – 312 KB
PDF – 29 KB
PDF – 127 KB
PDF – 392 KB
Visning
For å delta på visning, ber vi om at du melder deg på. Da sikrer vi at du får nødvendig informasjon og at det er satt av tilstrekkelig med tid. Husk å lese salgsoppgaven før visningen, så du stiller forberedt.
Ønsker du kun å bli holdt orientert, kan du fra eiendommens hjemmeside få varsel om solgtpris, eller kontakte megler.
Lurer du på noe?
Unngå doble boligrenter
Vi tilbyr gunstig forsikring.
Vurderer du utleie?
Få et tilbud fra Utleie KrogsveenHva koster lånet?
Sjekk estimert lånekostnadVil du varsles om lignende boliger?
Ved å lagre ditt boligsøk hos oss får du beskjed når vi har en bolig som ligner denne, før den legges ut på markedet!




