Sporveisgata 23B
8 400 000 kr
88 m²
3 soverom
Solgt
Majorstuen
Stilfull, lys og gjennomgående 4-roms eierseksjon med klassiske detaljer og god takhøyde. Nymalt i 2026. Attraktiv bel.
Prisantydning
8 400 000 krAndel fellesgjeld
356 000 krOmkostninger
229 940 krTotalpris
8 985 940 kr
Pris
Bruksareal
94 m²BRA-I (internt bruksareal)
88 m²BRA-E (eksternt bruksareal)
6 m²
Areal
Etasje
1Byggeår
1877Soverom
3 soveromBad
1 badType
EierleilighetEierform
EierseksjonFellesutgifter
6 003 krEnergimerke
Nøkkelinfo
Unngå doble boligrenter
Vi tilbyr gunstig forsikring.
Vurderer du utleie?
Få et tilbud fra Utleie KrogsveenHva koster lånet?
Sjekk estimert lånekostnadBeskrivelse
Kort om eiendommen
Velkommen til Sporveisgata 23B!
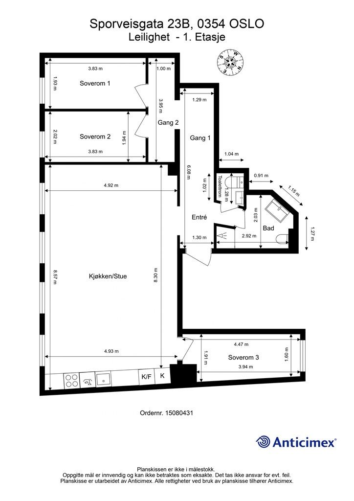
En innbydende og innholdsrik eierseksjon med attraktiv beliggenhet mellom Bislett og Bogstadveien. Her har du anledning til å bo tilbaketrukket i et urbant bymiljø, med gangavstand til Bogstadveien, offentlig kommunikasjon, samt en rekke parker. Leiligheten ligger i byggets 1. etasje (fremstår som 2.etasje mot Sporveisgata) og består av entré, gang, bad/wc, gjestetoalett, stort oppholdsrom med stue/kjøkken i åpen løsning og tre soverom.
Verdt å nevne:
- Leiligheten er nymalt april 2026
- Delikat og moderne kjøkken fra 2017
- Baderom og toalettrom oppgradert i 2013
- Mulighet for peis i stuen
- Gode oppbevaringsmuligheter i kjellerbod
- Renovering av bygården i 2021/2022 (nye vinduer, tak, oppgang, fasade)
- Kort vei til "alt" Oslo har å by på!
Område
Legg til steder som er viktige for deg
På flyttefot? Tenk kjøp og salg samtidig.
Få din egen rådgiver gjennom hele kjøps- og salgsprosessen. Det starter med en verdivurdering.
Unngå doble boligrenter
Vi tilbyr gunstig forsikring.
Vurderer du utleie?
Få et tilbud fra Utleie KrogsveenHva koster lånet?
Sjekk estimert lånekostnadVil du varsles om lignende boliger?
Ved å lagre ditt boligsøk hos oss får du beskjed når vi har en bolig som ligner denne, før den legges ut på markedet!












































