Brunholmgata 20
2 350 000 kr
39 m²
1 soverom
Solgt

Ålesund sentrum
BUD MOTTATT!Lekker og nyoppusset 2-roms med populær beliggenhet | Vesentlige oppgraderinger i 2023
Prisantydning
2 350 000 krOmkostninger
59 840 krTotalpris
2 409 840 kr
Pris
Bruksareal
39 m²BRA-I (internt bruksareal)
39 m²
Areal
Etasje
1Byggeår
1906Soverom
1 soveromBad
1 badType
EierleilighetEierform
EierseksjonFellesutgifter
2 800 krEnergimerke
Rød G
Nøkkelinfo
Unngå doble boligrenter
Vi tilbyr gunstig forsikring.
Vurderer du utleie?
Få et tilbud fra Utleie KrogsveenHva koster lånet?
Sjekk estimert lånekostnadBeskrivelse
Kort om eiendommen
Leiligheten ligger i en sjarmerende bygård i en sentral, men samtidig rolig bydel av Ålesund sentrum.
Det er kort veg til å tilfredsstille dagligdagse behov som trening og matvarehandel. I tillegg er det kort veg til noen av byens beste serveringssteder, sauna, friluftsområder og fasiliteter som utendørs badekar og yoga ved Hotel Brosundet.
Leiligheten gjennomgikk en vesentlig renovering i 2023 og har en tiltalende, moderne og høy standard. Nye vinduer og dører, nytt el-anlegg, nytt røropplegg og avløpssystem i tillegg til nytt bjelkelag mot krypkjeller som ble fylt igjen.
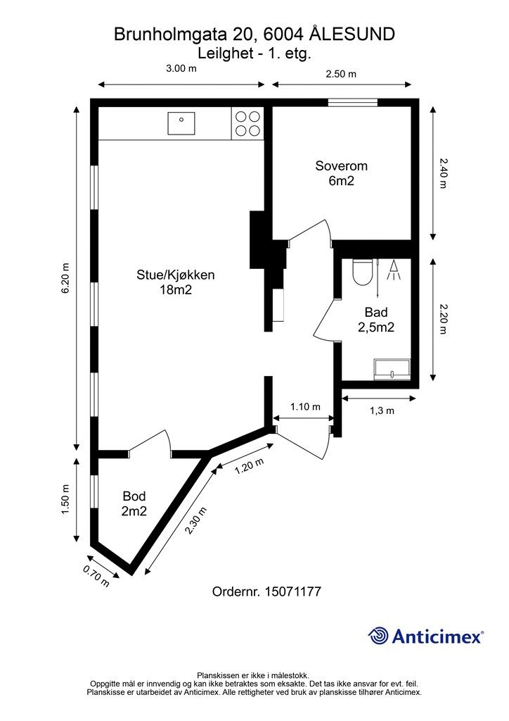
Planløsningen fordeler seg på entré/gang, stue-kjøkken, bad, soverom og bod/vaskerom. Takhøyden er målt opp til 2,57 og med gjennomgående planløsning får en godt med naturlig lysinnslipp og behagelig romfølelse!
Område
Legg til steder som er viktige for deg
På flyttefot? Tenk kjøp og salg samtidig.
Få din egen rådgiver gjennom hele kjøps- og salgsprosessen. Det starter med en verdivurdering.
Unngå doble boligrenter
Vi tilbyr gunstig forsikring.
Vurderer du utleie?
Få et tilbud fra Utleie KrogsveenHva koster lånet?
Sjekk estimert lånekostnadVil du varsles om lignende boliger?
Ved å lagre ditt boligsøk hos oss får du beskjed når vi har en bolig som ligner denne, før den legges ut på markedet!

