Trollfaret 11A
8 300 000 kr
203 m²
3 soverom
Komplett salgsoppgave
Innbydende enebolig med romslig planløsning-kombinasjon av sentral og landlig beliggenhet-tre soverom-solcelleanlegg
Prisantydning
8 300 000 krOmkostninger
228 490 krTotalpris
8 528 490 kr
Pris
Bruksareal
203 m²BRA-I (internt bruksareal)
203 m²TBA (terrasse-balkongareal)
48 m²
Areal
Etasje
2Byggeår
1966Soverom
3 soveromBad
2 badTomteareal
855 m² (eiet)Type
Enebolig - FrittliggendeEierform
EietEnergimerke
Gul D
Nøkkelinfo
Unngå doble boligrenter
Vi tilbyr gunstig forsikring.
Vurderer du utleie?
Få et tilbud fra Utleie KrogsveenHva koster lånet?
Sjekk estimert lånekostnadBeskrivelse
Kort om eiendommen
Moderne familiebolig med marka som næ rmeste nabo. Velkommen til Trollfaret, en flott enebolig med gjennomgående god standard. Boligen har gode solforhold og en familievennlig planløsning.
-Drømmekjøkken! Veldig stort og åpent kjøkken
-Romslig stue med store vinduer og masse lys, direkte ut til stor herlig terrasse
-3 soverom samt et rom som er brukt som ekstra stue/soverom med tilgang til eget bad (ikke godkjent for varig opphold)
-2 pene flislagte bad, en i hver etasje, med varmekabler & praktisk WC rett ved inngang & separat vaskerom
-Oppvarming med bergvarme & peis både i stua og spisestua
-Nytt tak med stort solcelleannlegg
-Naturtomt - her bor du rett ved skogen. Rolig, stille, veldig lite trafikk
Kort vei til alt fra badevann i Tæruddalen til butikker.
Innhold og byggemåte
Innhold og byggemåte
Eiendommen
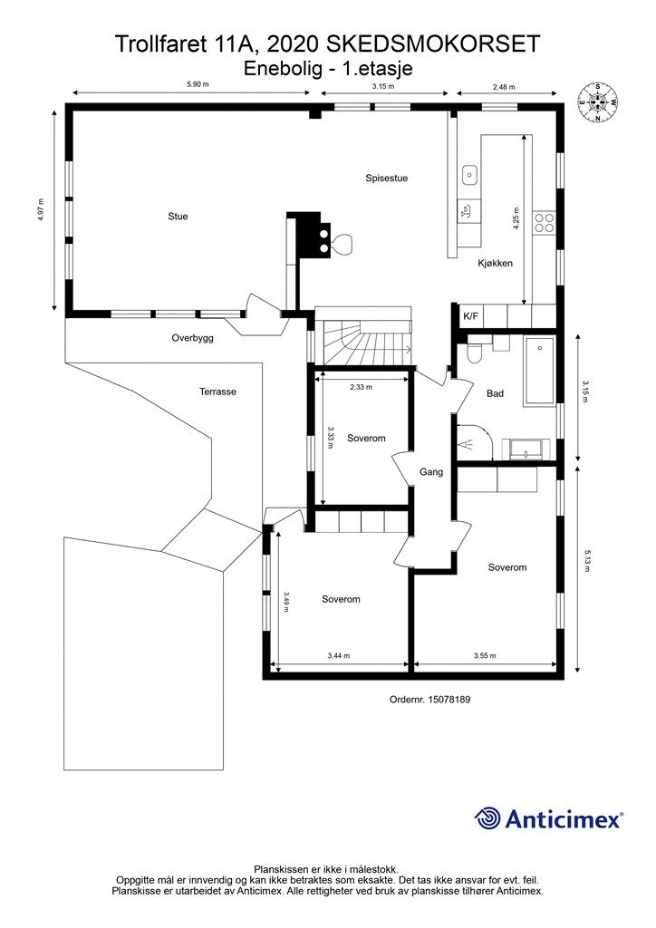
Trollfaret 11A, 2020 SKEDSMOKORSET
Kommunenummer 3205, gårdsnummer 51, bruksnummer 64, ideell andel 1/1
Innhold
Totalt bruksareal BRA: 203 kvm
BRA-i:
Kjeller: 85 kvm: Vindfang, baderom, vaskerom, toalettrom, gang/trapperom og kjellerstue samt 2 bodrom.
1. etasje 118 kvm: Trapperom, baderom, kjøkken, spisestue/stue, gang og 3 soverom.
Åpent areal:
Kjeller: 7 kvm: Overbygg
1. etasje 41 kvm: Terrasse (Flere plan)
Vedlagte plantegninger er ikke målbare. De oppgitte arealer er hentet fra rapport med befaringsdato 21.01.2026 utført av Anticimex v/ Pål Einar Sommeling. Arealene er beregnet og rom er definert etter dagens faktiske bruk, uavhengig av hva som er godkjent av bygningsmyndighetene.
Kjellerstuen er på godkjente byggetegninger betegnet som hobby og bod, og er derfor ikke godkjent for varig opphold.
Byggemåte
Selger har fått utarbeidet en tilstandsrapport, dvs. en teknisk gjennomgang av boligen hvor eventuelle avvik, risiko for kjøper og prisoverslag for hva som bør gjøres av oppgradering, er skissert. Se særskilt TGIU (tilstandsgrad ikke undersøkt), samt TG2 og TG3 som viser hva som er boligens normale slitasje, alder og type, hva som er avvik fra dette og hva som bør/må utbedres. Rapporten og selgers egenerklæring er en del av salgsoppgaven og må leses nøye før bud inngis. Kjøper overtar ansvaret for de opplysninger som fremkommer av salgsdokumentasjonen, og kan ikke gjøre gjeldende som mangel noe som burde vært kjent eller som ikke kan anses å ha betydning for avtalen.
Bygningen er iht. tilstandsrapporten oppført i tre Les for øvrig mer om byggemåte og den tekniske tilstanden i rapporten.
Det er gitt en del TG 2 på boligen. De fleste punktene er gitt TG 2 pga. alder. Det er gitt TG 2 på følgende punkter:
Våtrom - Baderom 1.etasje:
Overflater vegger
Fallforhold (gulv)
Membran, tettesjikt og overgang til sluk.
Sanitærutstyr / innredning
Våtrom - Baderom kjelleretasje
Slukets plassering i forhold til at vann utenfor dusjsonen kan nå det
Sanitærutstyr / innredning
Fukt i tilliggende konstruksjoner. Gitt pga manglende hulltaking, samt øvrige registrerte avvik
Overflater himling
Overflater gulv
Fallforhold (gulv)
Vannrør
Våtrom - Vaskerom
Overflater gulv
Membran, tettesjikt og overgang til sluk.
Ventilasjon
Fukt i tilliggende konstruksjoner: Gitt pga manglende hulltaking og alder.
Kjøkken - Kjøkken
Overflater gulv
Vannrør
Innredning
Toalettrom (Ikke våtrom) - W.c:
Overflater gulv
Avløpsrør
Øvrige rom:
Overflater gulv
Innerdører
Rom under terreng (kjeller, underetasje, sokkeletasje):
Overflater vegger
Overflater gulv
Innerdører
Ventilasjon
Krypekjeller Helhetsvurdering
Loft - uinnredet / råloft:
Konstruksjonsoppbygging
Statikk
Ildsteder / skorsteiner innvendig. (Omfatter ikke funksjonalitet og innvendig pipeløp):
Skorsteiner inne i boligen
Etasjeskiller - 1.etasje Skjevhetsmåling
Etasjeskiller - Kjelleretasje Skjevhetsmåling
Tekniske anlegg, VVS anlegg (Sjekkpunkter utover det som er inkludert i andre rom):
Vannrør (Sjekkpunkter utover det som er inkludert i andre rom)
Avløpsrør. (Sjekkpunkter utover det som er inkludert i andre rom)
Yttervegger inkl. fasader og konstruksjon:
Fasader ink. kledning
Dører og vinduer:
Vinduer. Gjelder fastkarm vinduer fra byggeår.
Yttertak - Hovedtak:
Konstruksjon
Drenering Helhetsvurdering
Stikkledninger og tanker Vann- og avløpsledninger (ink. stikkledninger)
Det er gitt TGUI på følgende punkter:
-Innvendige pipeløp og funksjonalitet er ikke vurdert.
- Byggegrunnens eksakte beskaffenhet er ukjent.
-Fundamenter er naturgitt skjult, og det er for øvrig ingen sikre og dokumenterte opplysninger om type fundamenter som huset har.
Se supplerende tekst i tilstandsrapporten om rommet/badet/bygningsdelen/skjevheten/sluket/fuktigheten/taket/det elektriske etc. Kjøper overtar ansvar og risiko for dette.
Sammendrag selgers egenerklæring:
Har det vært feil på bad, vaskerom eller toalettrom?
-Baderom 1. etasje: Sprekk i en flis over toalettet.
-Vaskerom: Elektrisk gulvvarme ble tatt ut av bruk (virker derfor ikke)
Er det utført arbeid på bad, vaskerom eller toalettrom?
-Ny bad i underetasje, eksisterende vaskerom og gamle matbod ble ombygget til en nytt bad og mindre vaskerom. Utført av faglært: Membran og fliser, nytt vindu
(Englund Bygg) Egeninnsats: Riving av gamle og etablering av nye vegg. Montering av toilett og vask.
Er det utført arbeid på tak, yttervegg, vindu eller annen fasade?
-Nytt tak 2022
-Nye vinduer i soverommene i 1.etg 2020
Har sameiet eller borettslaget hatt problemer med fukt, vann eller oversvømmelse i kjeller eller underetasje?
-Kjeller: Bare alminnelig fukt. Vi brukte en avfukter i perioder for å unngå
kjellerlukt.
Er det utført arbeid på det elektriske anlegget?
-Montering og tilkobling av solcelleanlegg (13.5kWp) 2022
-El-bil lader og opprydding i sikringsskapet 2025
Er det utført arbeid på utvendige eller innvendige avløpsrør eller vannrør?
-Lagt nye rør i forbindelse med bygging av bad
Er det utført arbeid på varmeanlegg eller ventilasjonsanlegg?
-Omfattende service av varmepumpe inklusive reparasjon av rør på kompressor, påfyll med nytt kuldegass og utskifting av ekspansjonskaret.
Har det vært skadedyr i boligen eller andre bygninger på eiendommen?
-Vi hadde mus i kryptkjeller ved enkelte tilfeller. Satt opp musefelle.
Mangler boligen eller andre bygninger brukstillatelse eller ferdigattest for søknadspliktige tiltak?
-Ifølge salgsoppgaven fra når vi kjøpte bolig står det:
"Eiendommen har vært i bruk til boligformål siden byggeår. Kommunen opplyser at det ikke foreligger ferdigattest eller midlertidlig brukstillatelse
for eiendommen. Det foreligger godkjente bygningstegninger på eiendommen."
Vi har ikke fulgt det opp videre.
Standard
Entré:
Stor entré/gang med god plass til oppbevaring av sko- og yttertøy. Flislagt gulv. Tilgang til et praktisk toalett ved inngangsdør.
Kjøkken:
Lekkert nyere HTH kjøkken fra 2010. Veldig stort og praktisk kjøkken med i åpen løsning mot spisestue. Dette gir den perfekte planløsningen ved servering og samling til måltider med familie og venner.
Stue:
Pen og romslig stue med store vinduer og utgang til herlig terrasse. Her er det god plass til en stor sofagruppe, bord og tv-benk, samt spisebord. Utgang til sør- og vestvendt terrasse på ca. 40 m2 med supre solforhold. Her er det god plass til alt man skulle ønske av utemøbler. I hjerte av stuen finner du peisen som gir godt med varme og en herlig atmosfære. Det er også en peis i tilknytning til spisestuen.
Soverom:
Boligen har 3 lyse og romslige soverom. Rommet i underetasjen brukes i dag som en kjellerstue, men er i tegninger registrert som et hobbyrom. Rommet har store fine vinduer. Perfekt for barn og ungdom. Rikelig med skapplass på soverommene.
Bad:
-2 pene flislagte bad, en i hver etasje med varmekabler + praktisk WC rett ved inngang.
-Separat vaskerom med god plass til vaskemaskin og tørketrommel.
U.etg: Innehar i dag mye bodrom med god takhøyde. Her er det egen inngang og det kan gi mange muligheter. Ønsker man å endre bruken av rom e.l. må dette undersøkes av fagmenn og søkes om i kommunen. Dette er kun til inspirasjon og det er ukjent om dette er gjennomførbart.
Solcelleanlegg
- Solcelleanlegg
Nytt tak med solcelleanlegg etablert i 2022. Strømproduksjon på ca 9000 kWh/år. Produsert strøm brukes først og fremst i huset, overskuddstrøm selges til spotpris og gir dermed ekstrainntekter.
God lagringsplass:
-Stor to-delt bod (med egen inngang) med lite verksted og store hyller
-Ekstra lagringsplass i krypkjeller
-I tillegg: masse plass på kaldloftet
Løsøre og tilbehør
Dette følger med av hvitevarer:
Kjøleskapet 2x, oppvaskmaskin, mikrobølgeoven, stekeoven, induksjons kokefelt; fryser i bod, vaskemaskin, tørketrommel
Selger beholder alt fra Hue lights (en fast montert lampe i stua, ledstrip i barnerom og noen lyspærer). Klatreveggen inkl. plasttak og ribbeveggen i barnerommet forblir, men selger tar med seg kompositt takene. Veggmontert leselampe i hovedsoverom tar selger med. Værstasjon på taket, hangboard ved kjøkkeninngang og skotørker tar selger med seg.
Vi viser til liste fra Norges Eiendomsmeglerforbund som gjelder fra 01.01.2020 angående løsøre og tilbehør.
Oppvarming
Oppvarming med bergvarme, via varmepumpe og radiatorer kombinert med peis og peisovn. Varmekabler på kjøkken og to av badene.
Dersom beboelsesrom ikke har vegg- eller fastmonterte varmekilder ved visning, følger dette heller ikke med.
Ferdigattest/brukstillatelse
Eiendommen har vært brukt til boligformål siden byggeår.
Kommunen opplyser at det ikke foreligger ferdigattest eller midlertidig brukstillatelse for eiendommen. Kjøper påtar seg risikoen for fremtidig fortsatt bruk, og eventuelle pålegg fra det offentlige. Dette omfatter også risikoen for om midlertidig brukstillatelse / ferdigattest vil bli gitt, og alle kostnader i den forbindelse. Kjøper aksepterer denne risikoen og selger/megler skal med dette holdes skadesløse for ethvert eventuelt pålegg/krav som springer ut av den manglende midlertidige brukstillatelsen.
Det er mottatt byggemeldte tegninger fra kommunen. Tegningene stemmer overens med dagens løsning med noen unntak:
1.etg:
-Det er satt inn et ekstra vindu på kjøkkenet. Dette er en fasadeendring og er søknadspliktig. Kjøper overtar risikoen for eventuelle kostnader og konsekvenser knyttet til slike endringer. Kommunen kan i noen tilfeller kreve at fasaden tilbakeføres til godkjent utførelse, eller at nødvendige søknader sendes inn for ettergodkjenning
-Soverommet som ligger vegg i vegg med badet i overetasjen er opprinnelig 2 soverom.
Kjeller:
- Teknisk rom er i originale tegninger betegnet som fyr.
- Kjellerstuen er opprinnelig tegnet inn som hobbyrom og bod og er derfor ikke godkjent for varig opphold.
- Bad/vaskerom er opprinnelig tegnet inn som bod og vaskerom.
Kjellerstuen er ikke godkjent til varig opphold. Innredning av rommet til bruk for varig opphold er ikke bruksendret/omsøkt og er heller ikke godkjent for denne bruk av kommunen. Konsekvensen ved søknad kan være at rommet ikke godkjennes som varig opphold og at rommet da må brukes som bod/midlertidig oppbevaring. Kjøper overtar alt ansvar, kostnad og risiko for dette videre.
Tinglyste heftelser og rettigheter
På eiendommen er det tinglyst følgende heftelser og rettigheter som følger eiendommens matrikkel ved overskjøting til ny hjemmelshaver:
3205/51/64:
23.02.1966 - Dokumentnr: 100706 - Rettigheter iflg. skjøte
Bestemmelse om vann/kloakkledning
Elektriske kraftlinjer
Med flere bestemmelser
Gjelder denne registerenheten med flere
Dette dokumentet omhandler blant annet rett til kommunen å vedlikehold rør og ledninger som er på tomta og eiers plikt til å bevare trær på eiendommen m.m.
Denne matrikkelenheten er utskilt fra knr: 3205 gnr: 51 bnr:31. Megler har hentet ut grunnboken på den gamle matrikkelen men den er stort sett uleselig. Denne kan fås ved å spørre megler.
Eventuell adgang til utleie
Eiendommen har ikke separat utleieenhet. Det vil normalt være anledning til utleie av hele eiendommen eller enkeltrom, såfremt utleiearealet er bygningsmessig godkjent for varig opphold og har forsvarlige radonnivåer.
Diverse
Tilbud av produkter og tjenester fra våre samarbeidspartnere
Vi er opptatt av verdiskapning, og har knyttet til oss samarbeidspartnere som skal sikre våre kunder de beste produkter og tjenester;
• Gjensidige leverer boligselgerforsikring og tilbyr bygningsforsikring
• Boligkjøperforsikring leveres av Hiscox og med Sedgwick som skadebehandler, og er formidlet gjennom Gjensidige.
• BN bank tilbyr finansieringsløsninger
• Vår avdeling Krogsveen Pluss tilbyr flyttetjenester som utvask, visningsvask, lager, tømming og transport av flyttelass, i tillegg til å formidle kontakt med Flip for overflateoppussing.
• I forbindelse med overtagelse av eiendommen tilbyr Overo avtale om strøm, alarm og bredbånd.
• Krogsveen er, sammen med øvrige bransjeaktører, medeier i den digitale annonseringsplattformen Hjem som eies av Bomega AS.
Beliggenhet og tomteforhold
Beliggenhet og tomteforhold
Beliggenhet
Trollfaret er en del av et naturskjønt villaområde på Korsfjellet. Med kort vei til turområder og badevann i Tæruddalen, samt kort vei til sentrum av Skedsmokorset slipper man å velge mellom sentrumsnært eller landlig - her får du begge deler.
Tæruddalen og marka ligger som nevnt godt i nærheten av Trollfaret. Nærområdet byr blant annet på fotballbaner, rulleskibane, volleyballbane og lysløype. Det er bare å spenne på seg skiene og følge lysløypene innover i marka eller langs med rulleskibanen i Tæruddalen. Det er både barnehage og ungdomsskole i Tæruddalen og fin og trygg gangavstand til barneskole.
Skedsmo Senter ligger et par minutter unna med bil og har et godt servicetilbud med klesbutikker, vinmonopol, dagligvare, apotek, skobutikk, frisør og en rekke andreb butikker og forretninger. Et populært og naturlig samlingssted for lokalsamfunnet.
Det er kort vei til busstopp med god kommunikasjon til Lillestrøm og Oslo. Ca. 20 min. med bil til Oslo og ca. 10 min med bil til Lillestrøm.
Adkomst
Veibeskrivelse Se Google maps - det er enkelt å finne frem i kartet.
Det vil bli skiltet med Krogsveen visningsskilt ved fellesvisninger.
Barnehager, skoler og fritid
Skoler
Brånås skole (1-7 kl.) 1.1 km
Åsenhagen skole (1-7 kl.) 1.3 km
Tæruddalen skole (8-10 kl.) 1.5 km
Lillestrøm videregående skole 7.4 km
Skedsmo videregående skole 7.7 km
Barnehager
Tæruddalen barnehage (1-5 år) 0.9 km
Korshagen kommunale barnehage 1.2 km
Skolsegglia Fus barnehage (1-5 år) 1.2 km
Beskrivelse av tomt
Eiet tomt på 855,4 kvm. Tomten er pent opparbeidet og er en skjermet og tilbaketrukket naturtomt. Lettstelt og idyllisk.
Parkering
Parkering på gårdsplass, her er det plass til flere biler.
Fastmontert lader for EL-bil følger med.
Gateparkering etter områdets bestemmelser.
Vei, vann og avløp
Eiendommen har adkomst via kommunal vei.
Eiendommen er tilknyttet kommunalt ledningsnett via private stikkledninger. Eier er selv ansvarlig for private stikkledninger til boligen.
Regulerings-og arealplaner
Eiendommen er regulert til frittliggende småhus. Området øst for boligen, er regulert til friområdet i henhold til reguleringsplan 45/64 - plan 27 - Korsfjellet, Midtskogen med tilhørende reguleringsbestemmelser datert 05.02.1962.
Området er i henhold til kommuneplanen avsatt til nåværende boligbebyggelse. Området øst for boligen er avsatt til nåværende naturområdet.
Utsnitt av plan med tilhørende bestemmelser kan fås ved henvendelse til megler.
Økonomi
Økonomi
Kommunale utgifter
Kommunale avgifter har prognose for 2026 på kr. 19 358,-. I dette inngår gebyr for vann, avløp, renovasjon og feiing/tilsyn.
Nåværende eier har et strømforbruk som tilsvarer ca. kr 10 000,- pr. år. / 11 000 kwh. pr. år.
Egen strømproduksjon med solceller ca. 9000kwh/år (ekstrainntekter)
Boligen har en årlig forsikringspremie på kr 13 8104,-
Utgiftene er basert på nåværende eiers forbruk og avtaler.
Selger har avtalt Norgespris på strøm på eiendommen frem til 1.oktober 2026.
Denne avtalen vil følge eiendommen i den avtalte perioden.
Les mer om Norgespris her: https://www.regjeringen.no/no/aktuelt/legg-fram-lov-om-norgespris-pa-straum-og-fjernvarme/id3102642/
Det er installert vannmåler på eiendommen og kostnadene betales etter forbruk. Forbruk avleses etter henvendelse fra kommunen. Forbruk betales à konto basert på siste avlesning. Avregning foretas i forbindelse med neste forfall på kommunale avgifter.
For denne eiendommen utgjør vannforbruket kr. 5013,- av de kommunale avgiftene. Oppgitt kostnad baserer seg på selgers forbruk og vil variere utfra bruk/personer i husstanden. I selgers husstand har det bodd 4 mennesker.
Formuesverdi
Ved hjelp av skatteetatens boligkalkulator er boligens formuesverdi beregnet til kr. 2 198 762 kroner for fjoråret når boligen benyttes som primærbolig.
Formuesverdien er en gitt prosent av den beregnede markedsverdien. Beregnet markedsverdi er basert på Statistisk sentralbyrå (SSB) sine opplysninger om omsatte boliger. I beregningen tas det hensyn til boligens beliggenhet, areal, byggeår og boligtype.
Det er eier av boligen som fastsetter formuesverdien, jf. skatteforvaltningsloven § 9-1 første ledd, men skattemyndighetene kan kontrollere at verdien er satt riktig.
Formuesverdi skal ikke overstige:
Primærbolig: 25 % av beregnet eller dokumentert markedsverdi opp til kr. 10 000 000, og deretter 70 % av den overskytende markedsverdi.
Sekundærbolig: 100 % av beregnet eller dokumentert markedsverdi.
Formuesverdier som overstiger disse grensene, kan kreves nedjustert av eier.
Fra 2026 har Stortinget vedtatt en oppdatert modell for beregning av formuesverdi for primærbolig, så avvik kan forekomme.
For mer informasjon se skatteetaten.no
Eiendomsskatt
Eiendomsskatten utgjør kr. 2 960,- pr år.
Omkostninger
8 300 000,00 Prisantydning
Omkostninger
207 500,00 Dokumentavgift til staten (2,5% av kjøpesum)
19 900,00 Gjensidige Boligkjøperpakke (valgfri)
545,00 Tinglysing panterettsdokument
545,00 Tinglysing skjøte
--------------------------------------------------------
228 490,00 Omkostninger totalt
--------------------------------------------------------
8 528 490,00 Totalpris inkl. omkostninger
--------------------------------------------------------
Tilbud om lånefinansiering
Megler formidler gjerne kontakt med rådgiver hos vår samarbeidspartner BN Bank. De har konkurransedyktige betingelser samt rask og løsningsorientert behandling av din lånesøknad. Krogsveen mottar et honorar dersom lån opprettes.
Betalingsbetingelser
Kjøpesum inkludert omkostninger, samt pantedokument tilknyttet eventuelt lån, skal være disponibelt hos megler 2 virkedager før overtagelsen.
Annen viktig informasjon
Annen viktig informasjon
Eier
Julia Wind og Thomas Skazedonigg
Overtakelse
Etter nærmere avtale.
Boligselgerforsikring
Selger har i forbindelse med salget tegnet boligselgerforsikring levert av Gjensidige.
Boligselgerforsikringen dekker selgers ansvar etter avhendingsloven begrenset oppad til kr 14 millioner. Dersom kjøper oppdager forhold ved eiendommen som hen mener utgjør en mangel ved eiendommen, vil Gjensidige behandle reklamasjonen på vegne av selger. Forsikringsvilkår kan fås ved henvendelse til megler.
Vedlagt salgsoppgaven følger selgers egenerklæringsskjema og tilstandsrapport. Interessenter må sette seg inn i dokumentene før bud inngis.
Boligkjøperforsikring
Innen kontraktsmøtet må kjøper ta stilling til om det ønskes å bestille Boligkjøperpakken gjennom Gjensidige. I denne gunstige pakken er boligen ferdig forsikret og inkluderer rettshjelpsforsikring, også kalt Boligkjøperforsikring. Rettshjelpsforsikring gir trygghet og tilgang på profesjonell juridisk hjelp dersom det oppdages uventede feil eller mangler det første året etter overtagelse. Forsikringsselskapet behandler i så fall ethvert mangelskrav kjøper måtte ha overfor selger.
Boligkjøperpakken inkluderer bygningsforsikring for hus og hytte, innboforsikring, flytteforsikring og dobbel rentedekning - i situasjoner hvor kjøper ikke får solgt nåværende primærbolig.
Kjøper mottar ingen særskilt faktura for Boligkjøperpakken da kostnaden det første året legges til kjøpesummen for boligen. Det gjøres oppmerksom på Krogsveen mottar et honorar for denne formidlingen.
Produktark for Boligkjøperpakken ligger vedlagt i salgsoppgaven.
Dersom ikke boligkjøperpakke ønskes kan kun rettshjelpsforsikring, også kalt boligkjøperforsikring, tegnes særskilt via megler. Rettshjelpsforsikringen varer i 5 år fra overtagelse og leveres gjennom Gjensidige. Ta kontakt med megler for ytterligere informasjon.
Selskap og privatpersoner som driver med kjøp/salg/utvikling som ledd i egen næringsvirksomhet kan ikke tegne boligkjøperpakke eller rettshjelpsforsikring.
Budgivning
Forbrukerinformasjon om budgivning er vedlagt denne salgsoppgaven og er også på vår hjemmeside Krogsveen.no. Alle bud og budforhøyelser må inngis skriftlig. I tillegg må legitimasjon være fremlagt sammen med signatur fra budgiver.
Vi oppfordrer til å gi bud elektronisk via GI BUD-knappen på eiendommens hjemmeside på Krogsveen.no. Da vil samtlige vilkår bli oppfylt.
Eventuelle forhøyelser eller endringer av budet kan bekreftes pr SMS eller på e-post. Vi oppfordrer alltid til å kontakte megler pr. telefon i tillegg da forsinkelser i SMS og e-post kan forekomme.
For at budene skal kunne bli behandlet og videreformidlet skriftlig til alle involverte parter, må alle bud ha en tilstrekkelig lang akseptfrist, jf. eiendomsmeglingsforskriften § 6-3.
Selger må også skriftlig akseptere budet før aksept kan formidles til budgiver. Akseptfrist bør derfor være på minimum 30 minutter, og budforhøyelser må derfor skje i god tid før fristens utløp.
Bud i forbrukerforhold kan uansett ikke settes med kortere frist enn kl. 12.00 første virkedag etter siste annonserte visning. I tillegg kan ikke budet ha forbehold om at det skal holdes hemmelig ovenfor øvrige interessenter. Megler har iht lov om eiendomsmegling ikke anledning til å videreformidle disse budene, og de vil dermed heller ikke bli journalført.
Etter at eiendommen er solgt vil kjøper og selger få tilsendt budjournal. Øvrige budgivere kan få utlevert kopi av budjournalen i anonymisert form.
Hvitvaskingsreglene
I henhold til lov om hvitvasking og terrorfinansiering har megler plikt til å gjennomføre kontrolltiltak overfor kunder, herunder fullmektiger. Dette innebærer bl.a. å bekrefte kunders og reelle rettighetshaveres identitet på bakgrunn av fremvist gyldig legitimasjon eller på annen godkjent måte, samt å innhente opplysninger om kundeforholdets formål og tilsiktede art.
Dersom slike kundetiltak ikke kan gjennomføres, kan megler ikke etablere kundeforholdet eller utføre transaksjonen.
Hvis kjøper ikke bidrar til gjennomføring av kundekontrollen og dette fører til at transaksjonen blir forsinket eller ikke kan gjennomføres, vil dette ansees som mislighold av avtalen og gi selger rettigheter etter avhendingslova kapittel 5. I tilfeller der selger ikke bidrar til gjennomføring av løpende kundekontroll underveis i oppdraget, er det selger som misligholder sine forpliktelser etter avtalen og gi kjøper rettigheter etter avhendingslovens kapittel 4. Partene er selv ansvarlige for eventuelle kostnader og ansvar dette kan medføre. Eiendomsmegleren eller eiendomsmeglingsforetaket kan ikke holdes ansvarlig for de konsekvenser dette vil kunne få for partene eller andre som har interesser i eiendomshandelen.
Kjøper oppfordres til å innbetale kjøpesummen som ikke kommer fra låneinstitusjon i én samlet innbetaling fra egen konto i norsk bank. Megler har plikt til å melde fra til Økokrim om eiendomshandler som fremstår som mistenkelige. Melding sendes Økokrim uten at partene varsles.
Personopplysningsloven
I henhold til personopplysningsloven gjør vi oppmerksom på at interessenter kan bli registrert for videre oppfølging.
Lovanvendelse
Generelle bestemmelser
Salgsoppgaven er basert på de opplysningene selger har gitt til megler, den bygningssakyndiges tilstandsrapport, samt opplysninger innhentet fra kommunen, Kartverket og andre tilgjengelige kilder. Det er viktig at kjøper setter seg grundig inn i alle salgsdokumentene, herunder salgsoppgave, tilstandsrapport og selgers egenerklæring. Kjøper anses kjent med forhold som er tydelig beskrevet i salgsdokumentene, og slike forhold kan ikke påberopes som mangler. Dette gjelder uavhengig av om kjøper har lest dokumentene. Alle interessenter oppfordres til å undersøke eiendommen nøye, gjerne sammen med fagkyndig før bud inngis. Kjøper som velger å kjøpe usett kan ikke gjøre gjeldende som mangel noe han burde blitt kjent med ved undersøkelsen.
Dersom det er behov for avklaringer, anbefaler vi at interessenter rådfører seg med eiendomsmegler eller egne rådgivere før det legges inn bud.
En bolig som har blitt brukt i en viss tid, har vanligvis blitt utsatt for slitasje og skader kan ha oppstått. Slik bruksslitasje må kjøper regne med, og det kan avdekkes enkelte forhold etter overtakelse som nødvendiggjør utbedringer. Normal slitasje og skader som nødvendiggjør utbedring, er innenfor hva kjøper må forvente og vil ikke utgjøre en mangel.
Kjøper og selgers rettigheter og plikter reguleres av avtalen mellom partene, samt informasjonen som har vært tilgjengelig for kjøperen i forbindelse med handelen. Avtalen utfylles av avhendingsloven, og det gjelder ulike avtalevilkår avhengig av om kjøper er forbrukerkjøper eller ikke. Dette er nærmere beskrevet nedenfor.
På grunn av ulike avtalevilkår kan selger vurdere bud fra en som ikke er forbruker, ulikt fra en forbrukers bud. Dersom kjøper ikke er forbruker, er selger sitt mulige mangelsansvar begrenset fordi eiendommen selges "som den er". Selger kan ikke ta «som den er»- forbehold overfor en forbrukerkjøper. Selv et lavere bud fra en som ikke er forbruker kan foretrekkes fordi begrensningen i mulig mangelsansvar kan ha egenverdi for selger. Selger står fritt til å forkaste eller akseptere ethvert bud, og er for eksempel ikke forpliktet til å akseptere høyeste bud.
Budgiver skal i budskjema avgi egenerklæring om budgiver er forbruker eller næringsdrivende/ person som hovedsakelig handler som ledd i næringsvirksomhet. Budgivere får informasjon dersom andre bud er inngitt av en som ikke er forbruker.
Forbrukerkjøp - definisjon
Med forbrukerkjøp menes kjøp av eiendom når kjøperen er en fysisk person som ikke hovedsakelig handler som ledd i næringsvirksomhet.
Forbruker – avtalevilkår
Eiendommen har en mangel dersom den ikke er i samsvar med kravene som følger av avtalen, eller det foreligger brudd på bestemmelsene i avhendingsloven §§ 3-2 til 3-8. Hvis eiendommen ikke er i samsvar med det kjøperen må kunne forvente ut ifra alder, type og synlig tilstand, kan det være grunnlag for mangelskrav. Det samme gjelder hvis det er holdt tilbake eller gitt uriktige opplysninger om eiendommen. Dette gjelder likevel bare dersom man kan gå ut ifra at det virket inn på avtalen at opplysningen ikke ble gitt eller at mangelskravet ikke blir rettet i tide på en tydelig måte.
Boligen kan ha en mangel etter avhendingsloven § 3-3 andre ledd, dersom det er avvik mellom opplyst og faktisk innvendig areal, forutsatt at avviket er på 2% eller mer og minimum 1 kvm.
Ved beregning av et eventuelt prisavslag eller erstatning må kjøper selv dekke tap/kostnader opptil et beløp på kr 10 000 (egenandel).
Ikke-forbruker (næringsdrivende) – definisjon
Hvis kjøper er en juridisk person, eller en fysisk person som hovedsakelig handler som ledd i næringsvirksomhet, vil kjøpet ikke anses som et forbrukerkjøp.
Ikke-forbruker – avtalevilkår
Eiendommen har en mangel dersom den ikke er i samsvar med kravene som følger av avtalen.
Eiendommen selges «som den er», og selgers ansvar utover det konkret avtalte er da begrenset etter avhendingsloven § 3-9, første ledd andre setning.
Avhendingsloven § 3-3 andre ledd fravikes, og hvorvidt boligens arealsvikt utgjør en mangel vurderes etter avhendingsloven § 3-8.
Informasjon om kjøpers undersøkelsesplikt, herunder oppfordringen om å undersøke eiendommen nøye, gjelder også for kjøpere som ikke anses som forbrukere.
Det forutsettes at hjemmel overføres til kjøper. Hvis kjøper ikke ønsker hjemmelsoverføring av eiendommen, må det tas forbehold om dette i budet.
Meglers vederlag
Meglers vederlag betales av selger og er avtalt til:
Vederlag: 0,55 % av salgssummen inkl. eventuell fellesgjeld. Minimumsprovisjon er kr 44 500,00
Vederlag:
Kontroll av hjemmel og heftelser kr 2 900,00
Markedsføringspakke kr 27 400,00
Oppgjør kr 7 500,00
Tilrettelegging kr 17 000,00
Visninger pr stk / Overtagelse kr 4000,- (Første gratis) kr 0,00
Utlegg:
Innhenting av offentlig opplysninger kr 5 000,00
Tinglysing sikring kr 545,00
Andre utgifter:
Foto kr 4 000,00
Tilstandsrapport kr 20 625,00
Opplysninger om oppdraget
Oppdragsnummer 59-0165/25
Eiendomsmegler Krogsveen AS, avd. Skedsmokorset
Furuholtet 1, 2020, SKEDSMOKORSET
950 007 613
Oppdragets KR-kode KR59.25165
Dato
Sist oppdatert: 15. april 2026 kl. 14:18
Dokumenter
Dokumenter
PDF – 1015 KB
PDF – 170 KB
PDF – 312 KB
PDF – 29 KB
PDF – 127 KB
PDF – 392 KB
Område
Legg til steder som er viktige for deg
Visning
For å delta på visning, ber vi om at du melder deg på. Da sikrer vi at du får nødvendig informasjon og at det er satt av tilstrekkelig med tid. Kontakt megler dersom annet tidspunkt ønskes. Husk å lese salgsoppgaven før visningen, så du stiller forberedt.
Ønsker du kun å bli holdt orientert, kan du fra eiendommens hjemmeside få varsel om solgtpris, eller kontakte megler.
Lurer du på noe?
Unngå doble boligrenter
Vi tilbyr gunstig forsikring.
Vurderer du utleie?
Få et tilbud fra Utleie KrogsveenHva koster lånet?
Sjekk estimert lånekostnadVil du varsles om lignende boliger?
Ved å lagre ditt boligsøk hos oss får du beskjed når vi har en bolig som ligner denne, før den legges ut på markedet!

































































