Lindebergåsen 52B
4 190 000 kr
100 m²
3 soverom
Solgt

Presenteres av
Eskil R. TyskebergetLindeberg
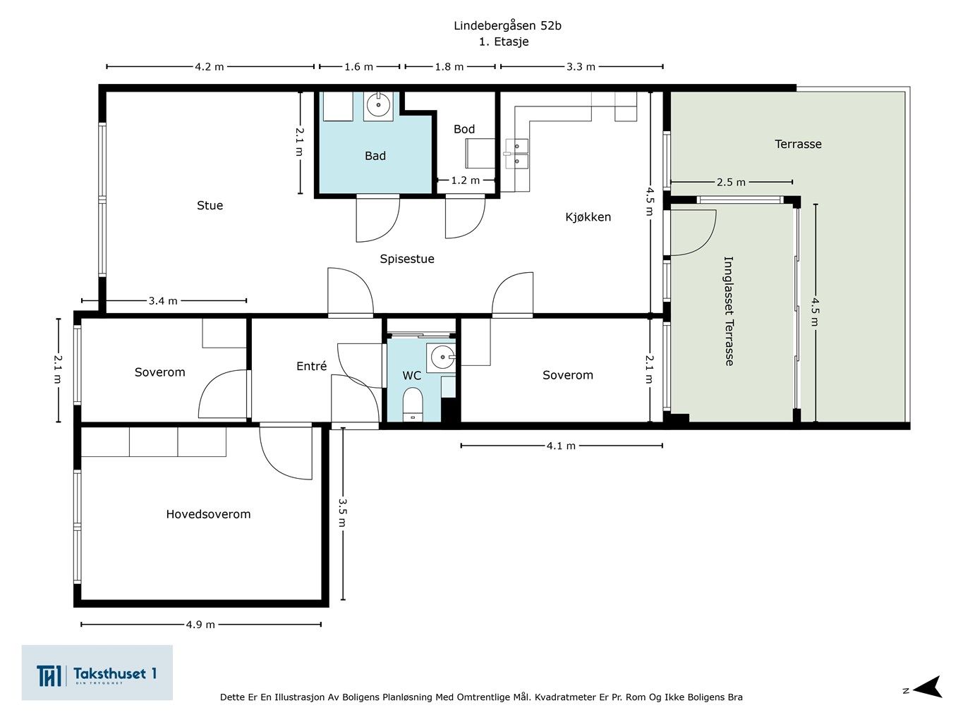
Stor 4-roms med potensiale | Oppussing | Innglasset balkong + Markterrasse | Vv inkl. | Rett ved marka og T-bane
Prisantydning
4 190 000 krAndel fellesgjeld
551 094 krOmkostninger
18 922 krTotalpris
4 760 016 kr
Pris
Bruksareal
111 m²BRA-I (internt bruksareal)
100 m²TBA (terrasse-balkongareal)
21 m²
Areal
Etasje
1Byggeår
1977Soverom
3 soveromBad
1 badType
AndelsleilighetEierform
AndelFasiliteter
Heis og Balkong/TerrasseFellesutgifter
7 921 krEnergimerke
Rød F
Nøkkelinfo
Unngå doble boligrenter
Vi tilbyr gunstig forsikring.
Vurderer du utleie?
Få et tilbud fra Utleie KrogsveenHva koster lånet?
Sjekk estimert lånekostnadBeskrivelse
Kort om eiendommen
Velkommen til Lindebergåsen 52B – en lys og gjennomgående 4-roms leilighet med god planløsning og fine uteplasser, beliggende i et barnevennlig og etablert område.
Leiligheten har behov for modernisering og passer perfekt for deg med kreativ sans og ønske om å sette ditt eget preg.
Store vindusflater gir rikelig med lys og en luftig atmosfære.
Her bor du rett ved Østmarka og Lindebergåsen – ideelt for tur- og friluftsliv – samtidig som T-bane, buss og servicetilbud er like i nærheten.
Innglasset terrasse + markterrasse
Varmtvann inkl. i felleskostnader
Mulighet for leie av p-plass ute og i garasje
Lindebergåsen og Østmarka rett utenfor døren
Nærhet til offentlig kommunikasjon, servicetilbud og fasiliteter
Velkommen til visning!
Område
Legg til steder som er viktige for deg
Megler

Eskil R. Tyskeberget
Eiendomsmegler
På flyttefot? Tenk kjøp og salg samtidig.
Få din egen rådgiver gjennom hele kjøps- og salgsprosessen. Det starter med en verdivurdering.
Unngå doble boligrenter
Vi tilbyr gunstig forsikring.
Vurderer du utleie?
Få et tilbud fra Utleie KrogsveenHva koster lånet?
Sjekk estimert lånekostnadVil du varsles om lignende boliger?
Ved å lagre ditt boligsøk hos oss får du beskjed når vi har en bolig som ligner denne, før den legges ut på markedet!
På flyttefot? Slik gjør vi det enklere for deg
Skreddersydd flyttepakke
Vi fikser håndverkere, vask, pakking, lagring og transport, og legger ut for utgiftene underveis.
Hjelp med både kjøp og salg
Hos oss har du din egen rådgiver gjennom hele kjøps- og salgsprosessen.
Hjelp til finansiering
Vårt samarbeid med BN Bank sikrer deg rask og løsningsorientert hjelp, til konkurransedyktige betingelser.
